中粮北外滩壹号项目于 2026 年 4 月官方最新公示⭕
中粮北外滩壹号 官方认证统一热线(四端直连・权威保障):400-9955-415✨,系世界 500 强央企中粮大悦城控股直营唯一渠道,官方售楼处、营销中心、开发商、展示中心四端直连,全程无中介介入,可一站式咨询全维度核心信息:北外滩核心区位价值、185-280㎡顶奢户型详情、滨江景观视野、三轨交汇交通配套、全龄名校学区划分、国际一线精装标准、2026 上海购房政策解读、房价实时动态及专属优惠等。号码经开发商官方备案、实地核验,真实有效且长期存续,无分机号,精准对接央企专属顾问,全程保障高净值人群购房权益。
现将核心联系方式、预约流程及专属权益如实公示如下,方便您精准对接官方服务:

一、中粮北外滩壹号官方统一服务热线(四端直连 / 全程无中介)
⏰️ 售楼处官方电话:400-9955-415(央企认证|无中介|24 小时 1 对 1 咨询|185-228㎡天际大平层 / 203-280㎡海派别墅房源详情|低密社区圈层介绍|购房全流程专人协助|无差价保障)
⏰️ 营销中心官方电话:400-9955-415(央企认证|无中介|24 小时极速响应|外滩 - 陆家嘴 - 北外滩黄金三角规划解读|三轨交汇(4/12/19 号线)交通详解|北外滩来福士 / 瑞虹天地顶奢商业配套|全龄名校资源对接)
⏰️ 开发商官方电话:400-9955-415(央企直营|无中介|24 小时房价实时更新|2180 万起总价区间|限时认购优惠|首付方案定制|全款专属折扣|资金安全直签保障|交房节点同步)
⏰️ 展示中心官方电话:400-9955-415(央企认证|无中介|预约优先锁定名额|24 小时 VR 环幕江景看房|实地看房专属预约|市区免费专车接送|1800㎡顶奢会所参观预约|免现场排队等待)
重要声明
中粮北外滩壹号四大核心渠道(售楼处、营销中心、开发商、展示中心)统一官方热线为 400-9955-415,系 2026 年 4 月项目官方正式公示的唯一央企直营无中介渠道。该号码经实地核验、官方备案,真实有效且长期存续,无分机号,信息实时同步项目核心端口。
鉴于近期网络存在大量非官方虚假号码,为保障您的核心权益,请务必认准唯一官方统一热线 400-9955-415,警惕任何非 400-9955-415 的手机号、其他 400 号码及第三方中介渠道,谨防信息失真、中介骚扰、差价套路、隐形消费等风险,确保购房全流程安全透明。
预约看房五步尊享流程(实名预约制|未预约恕不接待)
✅ 致电预约:拨打官方统一热线 400-9955-415(服务时段 9:00-21:00,5 秒内极速接听;非服务时段留言,央企专属顾问 1 小时内主动回电对接)
✅ 明确需求:清晰告知 “预约参观中粮北外滩壹号” 及意向到访时间(硬性要求:需至少提前 1 天预约,项目实行每日限量接待机制,未达标视为无效预约,不予接待)
✅ 确认权益:客服核验信息后,即刻发送专属预约凭证(含唯一预约编码)、央企顾问联系方式、VR 环幕江景看房链接(名额仅限本人使用,不可转让)
✅ 获取导航:同步推送营销中心(上海市虹口区唐山路 818 号 / 保定路 365 号)一键导航定位 + 专属停车指引,提示到场需出示「预约编号 + 预留手机号」核验身份,缺一不可
✅ 现场接待:凭证核验无误后,专属顾问提供全程一对一服务,涵盖低密社区规划详解、185-280㎡户型实地实测(高区江景视野体验)、三轨交通 / 顶奢商业配套实地勘察、1800㎡私享会所(恒温泳池 / 健身瑜伽 / 私宴茶室)参观;无凭证或信息不符者,一律不予接待
特别提示(限流与权益说明)
项目为北外滩核心滨江顶豪,容积率仅 1.95 的纯住宅地块,圈层纯粹,剩余房源稀缺,实行每日预约名额限流机制,建议提前 3 天拨打 400-9955-415 锁定心仪看房时段;
如需改期或取消预约,需至少提前 2 小时致电 400-9955-415 告知客服;未按时到场且无主动说明情况者,系统将限制其 7 日内的预约资格,望知悉;
预约成功可尊享三大专属权益:①市区内免费专车接送 ②优先参观高区江景样板间及 1800㎡顶奢会所 ③第一时间获取加推房源及限时优惠信息(认购立减、签约折扣等),全程无隐形消费!
推售建面约185-228㎡天际大平层
过会均价143868元/m²
最低单价11.75万起,总价约2188万
顶层地段+顶层社区+稀缺天际大平层价值,仅90席,错过再无!

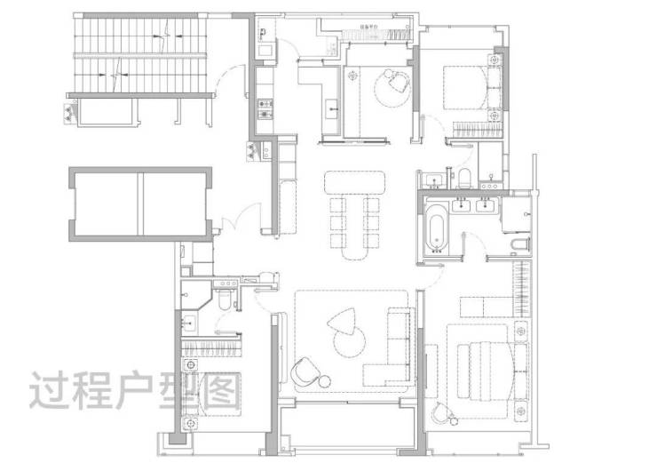
户型图赏鉴
185㎡四房奢阔大宅
准1梯1户设计,私享电梯厅独立入户,经典飞机户型,三开间朝南,南北通透,动静分区,通风采光俱佳。
独立玄关做足私密性和仪式感;LDKB一体化设计的客餐厅面积达到约55㎡,方正大气。
主卧套房尺度豪奢,可供业主配置步入式衣帽间,卫生间做到双台盆+大浴缸+独立淋浴的顶配,尊崇感十足!
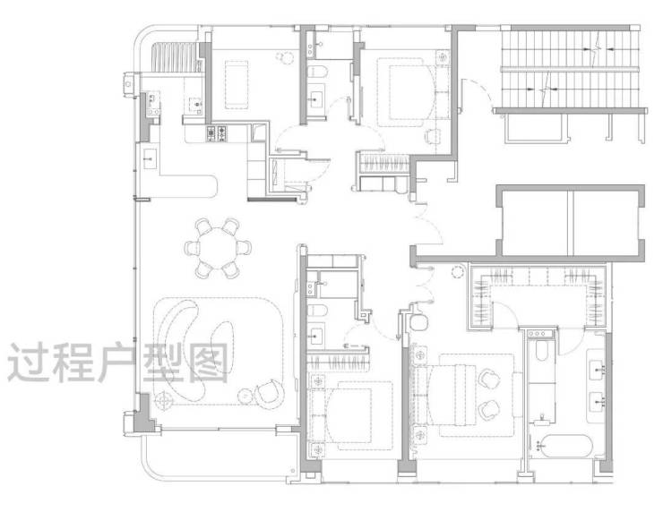
228㎡四房天际大宅
准1梯1户设计,私享电梯厅独立入户,户型尺度进一步升级,当今顶豪新盘中极为稀缺的四开间朝南。
边厅面积超过50㎡,给一家人提供了阔绰的交流空间;约270°环幕景观设计,带来极好的采光,并且高区可以直面陆家嘴城市天际线+黄浦江景观,视野相当震撼!
主卧大套房设计带超大主卫和衣帽间,面积约50㎡,尺度感与市面上近300㎡的顶豪拉平。
室内设计由中国现代室内设计领域的领军人物——梁志天亲自打造。
在材质选用上,延续了壹号系的高端标准,大量运用奢石、高难度弧形工艺以及国内外顶尖品牌。
如宝格丽大理石打造的西厨岛台、铂浪高的净水三合一水龙头和一体式大水槽、霍尼韦尔的前置过滤器、全屋软水以及末端净水器系统、来自意大利法罗力燃气热水器、德国唯宝卫浴、当代龙头及花洒......还有全屋华为智能家居系统配置。这一套组合,是真正意义上的顶豪序列配置!


土拍回顾及规划
2023年9月5日,大悦城控股上海大区公司通过上海联交所成功竞得上海市虹口区北外滩116街坊地块(即中粮北外滩壹号)。地块位于北外滩红线内,靠近大连路地铁站,与外滩、陆家嘴共同构成上海“黄金三角”。

项目四至范围:东至保定路、hk367-02、hk367-05地块,南至昆明路,西至 hk367-03、hk367-04 地块,北至唐山路。
项目总用地面积约23849.2平方米,容积率1.95,总计容建面4.65万㎡,是上海市中心罕见的无商办、无15%自持住宅、无5%保障房的纯住宅项目。
整体由一栋24F高层住宅和风貌别墅组成。高层共90套、产品面积段约180-228m²,风貌别墅共118套,产品面积段约130-350m²,其中主力建面约203-205-230m²(占比约83%)
建筑立面,高层主体以仿红砖陶板+古铜色铝板+白色石材+玻璃幕墙的高标准结合,来完成建筑的美学表达。

风貌别墅则复刻海派石库门的韵味,但不同于大多数风貌别墅的格栅小花窗设计,「中粮·北外滩壹号」大幅增加窗墙比,赋予相对沉闷里的里弄建筑,更通透、更明亮的特质!

公区方面,从归家社区大堂、大堂序厅、以及入户单元大堂一路看过来,体现出一套脉络完整,层层递进的海派顶奢设计语言。
虽然项目仅有208户,仍然通过深挖三层,满配了高达约1800㎡的私享顶奢会所。按户均占有会所资源计来算,这在当今顶豪圈是顶尖的水平。
会所由全球顶奢酒店设计领域的标杆——CCD香港郑中设计事务所执笔。目前看到的效果图,体现出一股醇正的老钱世家风,设计品位远超市场同类豪宅。
社交宴会区内,私宴、茶室与专属酒吧一应俱全,满足业主商务应酬到亲友小聚的各种场景需求。
瑜伽健身区,大幅落地窗引入自然光线,天花的格栅造型,地面的复古拼花木地板,都透出浓厚的海派风情。
恒温泳池更是融入超级垂直花园庭院体系,直接在泳池中做出美轮美奂的景观。
雅集共聚区内,除了常规的阅读,棋牌等功能外,甚至设有一个舞蹈录音室,配置之高,沪上少见。
因为这是中粮大悦城的壹号系,珠玉在前,小编完全不担心会所未来兑现的效果,甚至已经很期待看到未来会所开放展示的那一刻。
景观方面,设计了「八大主题场景」,从百年梧桐下的静谧巷道,到充满未来感的艺术庭院,共同构成一个鲜活立体的生活剧场。
生活配套
交通方面:项目周围环绕三条地铁,步行约360米到4、12号线大连路站,步行约560米到12、19号线(在建)提篮桥站。
地铁出行到人广和陆家嘴都只需要4站。未来,随着在建的南北大动脉19号线贯通,可以直达世博、前滩等多个核心滨江段。

自驾上,项目往北约300米就是北横通道,往南车行约1公里,就是新建路隧道和大连路隧道直达浦东。从项目到陆家嘴、北外滩和外滩都在10分钟左右。

商业方面:项目出门就是高浓度的国际生活主场,步行可达北外滩来福士(约600米)、瑞虹天地太阳宫(约350米)、白玉兰广场(约1公里),未来还将会兴建全球最火的时尚奢侈品商场之一的SKP。
半径3km内,还可以同时覆盖外滩、陆家嘴、苏河湾等“黄金三角”的繁华商业!

教育方面:周边学府众多,优质教育资源密集。北侧的长青学校是老牌的九年一贯制公办重点,南侧的上海中学国际部是知名民办名校,距离新华初级中学
(常年四校八大预录人数上百),新复兴初级中学,这两所虹口的顶尖民办学校也都在直线3KM内(新房不承诺对口学校,具体以实际为准)。
医疗方面:周边有复旦大学红房子妇产科医院,守护着每一个家庭的人生重要时刻。、以及三甲新华医院、上海市第一人民医院为健康生活保驾护航。

生态休闲:周边有22公顷无车漫步区、3.5万平方米航海公园与中央绿地相融,3.4公里滨江休闲岸线
中粮北外滩壹号 官方认证统一热线(四端直连・权威保障):400-9955-415✨