持续热销中,400万级上车闵行滨江红盘!九年制公办旁【招商中旅·揽阅售楼部电话:400-1010-064欢迎来电咨询【认证】】建面约96-120㎡3-4房!均价4.3万/㎡
招商中旅·揽阅售楼处电话:400-101-0064【已认证】
案场限流 看房需提前来电预约登记
仅预约客户可进入销售现场,感谢您的支持
其三批次新品今日开启认购
低首付即可抢位闵行滨江价值板块!
醇熟完善设施,滨水生态宜居
招商蛇口&中旅投资双央企倾力打造
甄选100%装修,品质生活越级享受
三批次上新房源位居9#楼与11#楼
建面约96-104㎡装修三房户型
联动均价约4.3万元/㎡
上海闵行招商中旅·揽阅售楼处电话;400-1010-064售楼处地址(24小时服务热线)
效果图
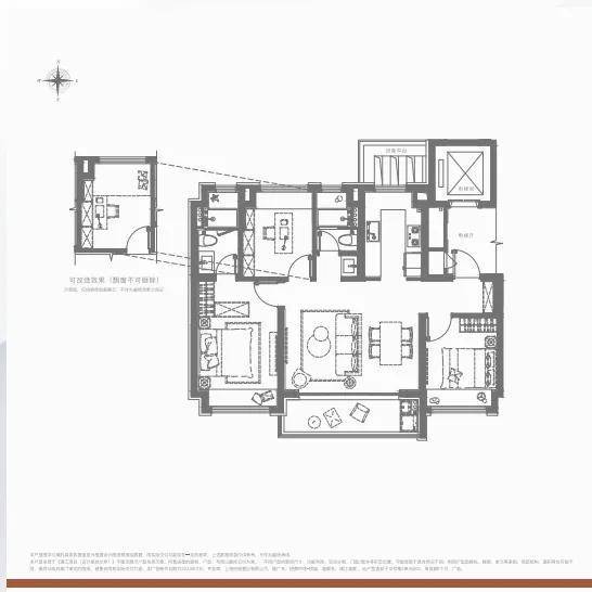
▶ 9号楼,社区中轴,窗前即是社区四时景观,下楼即是景观空间,此次上新的户型为建面建面约96㎡三房(飞机户型)和104㎡三房两种户型;
▶ 11号楼,社区中轴景观C位,步行归家即是中轴水景,出行便利,且下楼即是小区中央景观与儿童游乐区,采光与视野俱佳,此次上新的户型为每次开盘即热销的建面约104㎡爆款三房户型
轻松入主闵行滨江的三房「质优解」
340万房源号:24号101室;433万房源号:24号1301室;372万房源号:29号102室;491万房源号:28号1301室
▶ 建面约104㎡主力户型,面积更大单价更低,且以阔尺横厅的产品亮点,成为每次开盘热销的爆款三房。
▶ 招商中旅·揽阅建面约96㎡超值小户型,轻松上车功能三房,本次新品仅28套,机会难得千万不要错过!
近400位贵邻业主选择
高配品质的一致认可
每一次开盘,都能收获一众高知贵邻业主的选择。
作为科创行业、金融精英行业以及医疗政企行业的高素质业主,他们拥有着独到的审美眼光、精致的品质标准以及非凡的视界与思考,招商中旅·揽阅凭借全景设施、高品质装修打动他们,并以热销流量领衔上海楼市「400万级」置业榜单。
热领浦江之上,夺目一燃再燃
热销,并非一蹴而就,有目共睹的成绩背后都有其价值逻辑的共性,招商中旅·揽阅「热销揭秘」——双央企护航的产品力与品质力的兑现。近日,招商中旅·揽阅3.0五奢高配地库实景呈现,以关键触点考量与品质化革新的高奢标准,从颜值、设计、奢享、礼序、精质等五重维度进行迭代进化,并从业主感官出发,让轩然明朗的地库体验,成为每一位揽阅业主车行归家的独家记忆。
奢艺/光影颜值-精奢高颜值,美学光影铺就回家路
融入星光顶&星光灯带交融设计的标准,运用美术馆级的米黄色石材搭配古铜色铝板,并臻选有“奢石之王”美誉之称的奢石背景墙。
奢定/高定标准-高定奢适感,提升层层归家体验
坡道主体部分15%坡度设计,以平缓坡度从容归家,主车道吊顶净高均在约2.2m,高定宽阔尺度,提升层层归家体验。
奢礼/归家礼序-奢配入户大堂,尊享每一步的归家礼序
奢配「地库坡道玄关」、「单元入户空间」,大气的尺度感媲美星级酒店大堂。
奢享/进阶尊享-进阶高级感,奢享明亮归家的荣耀
在每一栋楼栋标识上,采用金属发光楼栋标识,精致归家路线,匹配高端住宅的奢享感不彰自显。
奢材/精质选材-匠琢精奢感,敬呈高配地库范本
行车道的材质上,摒弃一般项目采用的金刚砂固化地坪做法,采用高颜值的灰色环氧超耐磨地坪漆工艺,清晰美观具有增加阻力的作用,光面持久如新。
实景图
优选理由一:超配品牌-双央企品牌,实力兑现交付
招商蛇口,百年招商局集团城市综合开放运营旗舰,连续两年荣登上海楼市销售榜TOP1(数据来源:克尔瑞),中旅投资,中国旅游集团八大重点战略业务之一,双央企品质共筑,实力锻造品质人居。
优选理由二:轻松上车-低总价低首付 置业更轻松
新政之下,首套仅20%首付即可轻松上车闵行滨江,低利率、低门槛,置业良机错过不再。
优选理由三:超配装修——甄选高配装修,品质更放心
厨房交付方太(或同等档次)品牌油烟机/防干烧燃气灶/洗碗机等一体化厨电;
天然奢石卫浴洗手台面,主次卫甄选高仪、科勒(或同等档次)品牌智能马桶;
配置一体化金属包边美学镜柜,以越级标准兑现卓越品质。
优选理由四:超配品质-全屋装修交付 居住更舒心
100%全屋装修品质住区,省心省力,拒绝交付即装修的社区噪音与杂乱无序,未来统一交付,让居住更赏心悦目。
优选理由五:超配收纳-十四大收纳设计 细节更贴心
以十四重智慧空间,轻松解决收纳储物问题,入户玄关柜,收纳鞋柜与常用小物品,厨房空间定制收纳橱柜、升降拉篮、碗碟拉篮一应俱全,卫浴间台盆下收纳柜、金属包边美学镜柜、美妆冰箱等精细思考。
优选理由六:超配住宅-超低能耗建筑 高标准住宅
以多重超低能耗标准打造高品质绿色住宅,运用外墙保温一体化、三玻两腔节能窗等方式,打造安全耐久、健康舒适、环境宜居的高品质建筑。
优选理由七:超配区域-三水交汇之地 未来更可期
闵行滨江价值板块,世界湾区三水交汇核心,多重规划加持。社区班车直达8号线地铁站,可享浦江万达广场商圈、浦江郊野公园、K12教育资源等醇熟资源。
优选理由八:超配地库-3.0五奢高配地库 尊享品质归家
招商中旅·揽阅项目3.0五奢高配星光地库,以关键触点考量与品质化革新的高奢标准,从颜值、设计、奢享、礼序、精质等五重维度进行迭代进化,并从业主感官出发,让轩然明朗的地库体验,成为每一位揽阅业主车行归家的独家记忆。
效果图(最终以实际交付为准)
2024上海楼市「400万级」品质红盘
双央企品质+100%甄选装修范本
招商中旅·揽阅三批次新品
正在认购
联动均价4.3万/㎡起
新政之下,低总价低预算抓紧上车
品质三房户型,置业良机错过不再
一房一价表
01
双央企实力迭新
高颜值滨水美学住区
招商中旅·揽阅,以双央企的产品力实力迭新,以多重超低能耗标准打造高品质绿色住宅,为城市精英打造了高颜值+高品质兼具的硬核产品。
高颜值的现代主义油画框建筑立面
外立面浅米色主色调与灰色、香槟色比例恰到好处,笔直的线条搭配局部弧形转角的金属外框与香槟金装饰线条,精致挺拔的塔冠让建筑的识别性更强,从一众“大众脸”中一下子脱颖而出,轻易就能找到归家的坐标。
五重归家礼序,铺陈每一刻生活质感
以西岸美术馆、浦东美术馆等艺术地标的颜值美学为蓝本,匠造约50米超长气质门庭,演绎惊艳的归家画卷。从轴线空间流动双水系与滨水界面的浑然相应,到双重酒店式入口的倍享尊崇,铺就丰富且尊崇的归家场景。
效果图(最终以实际交付为准)
三轴一心六幕,高定园林臻境
“三轴·一心·六幕”美学园林,以植物季相设计营造交替的四季风光。约220米景观艺术长廊,连接起多重园林场景和丰富的林荫空间。特别打造约3000㎡中心景观,结合多维立体会客厅、艺术草坪等生活聚落,为全龄业主营造全天候自然社交场所。
效果图(最终以实际交付为准)
五大新意场景,阅享生活日常
招商中旅·揽阅将更多空间还给自然与生活,创新打造尊享雅奢门庭、景观艺术长廊、跌级超感水院、中央景观会客厅、航海主题儿童乐园五大新意场景,带来公园般的生活体验,让每一天都是可以感知的美好。
02
超硬核产品力
品质拉满的经典飞机户型
闵行滨江高颜值产品,全景理享生活范本,招商中旅·揽阅建筑面积约96-135㎡3-4房,100%高品质装修,不仅有“一梯两户无连廊”设计,更有“大宽厅+大阳台+全飘窗”,处处体现用心。
约96㎡精致三房,南北通透格局
以科学合理的布局打造全域,最大化利用空间。南向三开间,自然光线大面积入室,给人开阔舒畅的明亮体验。
套房主卧配置独立卫生间,是致敬主人的尊崇私享。北向灵动X空间既可以作为家里的书房,也可以按照需求随心改造。
U型厨房让烹饪更高效,近在咫尺的餐厅设计,可以尽情和家人享受美味时光。客厅相连景观阳台,无界衔接园林风景,在每一天都能领略清风拂面,浪漫满屋。
百平户型中罕见的3.5开间,约5.3米的横厅大阳台,南向超大面宽采光,无须追逐阳光的脚步。
经典优雅的横厅设计,是一家人的共享公区,也是待客会友的第一空间,聚会Party轻松容纳,抬眼便是阔景阳台外的无边美景,温馨相伴的喜悦,总能让人乐在心田。
U型厨房预留双开门冰箱位置,方便拿取烹饪料理。三室与主客卫皆附赠飘窗,北向静心书房可以按需改造为临时客房,孩子的艺术乐园,太太的优雅秀场,延伸美好空间的惊喜想象。
细节力满分
100%甄选+14大收纳空间
宽绰的空间,舒适的居住体验,招商中旅·揽阅在空间营造上细节拉满,建面约96-135㎡三到四房,从玄关、厨房到卧室等空间全方位精研,创新14大收纳设计,兑现越级生活质感。
● 入户玄关+超级收纳设计
钢木复合入户门隔绝外界喧扰,品牌智能门锁多种方式便捷归家。美观实用的玄关柜内含旋转鞋架/消毒精灵等多功能设置,搭配精致金属壁龛,带来别具一格的空间观感。
● 精细化打磨通厅+敞阔视觉
气质大砖铺陈客厅地面与灵动弧形吊顶,结合典雅岩板电视背景墙与精美壁纸,更增添开敞明亮的视觉美感。智能化可视化对讲、中央空调/地暖两联供、新风系统等现代化智慧系统,呵护每一刻居家生活。
● 多重智慧收纳+储物空间
在每一个户型里,厨房皆配置高颜值玻璃移门,以集成铝板吊顶+LED嵌入式条形灯营造厨房顶部,飘窗处打造操作台与储物空间,高品质装修交付超薄镜面机身油烟机/防干烧燃气灶/洗碗机等品牌系列套装厨电,定制收纳橱柜/升降拉篮/谷物抽/多功能调味篮/碗碟拉篮/飘窗延伸平台等多重收纳组合还原整洁秩序,另有集成线性凉霸与末端净水器等考究设计,打造现代化美好厨房。
● 人性化考究+品牌洁具
套房主卧卫浴间带天然奢石台面,诚意配置一体化金属包边美学镜柜(包含美妆冰箱/门板收纳架/轨道式置物架等,镜柜附带线控/触控镜面灯光+镜面除雾),兼具风暖浴霸、恒温顶喷花洒、双下水隐形地漏等人性化细节。另外,主客卫皆甄选知名品牌智能马桶,为现代化都会生活赋予更多品质享受。
十四大收纳设计 演绎空间的魔法师
收纳空间多才是王道,招商中旅·揽阅深度考量每一个家庭未来生活的收纳设计,以十四重智慧空间,轻松解决储物问题。入户玄关柜,收纳鞋柜与常用小物品,专为尊享生活而设计;厨房空间定制收纳橱柜、升降拉篮、碗碟拉篮一应俱全,让烹饪时光变得美好;卫浴收纳以台下收纳柜、金属包边美学镜柜、美妆冰箱等收纳设计,让生活更条理清晰。
六大定制科技场景 赋能高品质生活
招商中旅·揽阅从从智能安防、灯光设计、温度及湿度控制等全方位入手,从社区门到家门,从共享公区到私享场域,以更温暖的房子、更舒适的空气、更健康的空间、更智能的体验、更便捷的出入、更安全的物管等六大场景,为上海城市青年敬献高品质全景住区!
03
置业好时机
轻松上车滨江价值板块
上海的滨江板块房价自然不必多说。在黄浦江沿岸,陆家嘴和外滩已经达到20万+/㎡的天价,徐汇滨江和前滩这几年房价也在飞速上涨,眼看就要冲破20万的大关。
根据“一江一河”战略规划,黄浦江沿岸是商务金融、创新科技等城市功能集中展示区,无疑是价值腾飞的重要兑现地!
而闵行横跨黄浦江两岸,从整个上海市域格局来看,处于核心腹地的位置,是惟一一个拥有两岸资源的行政区。
对比闵行12个板块的新房价格,会发现闵行新盘至少5字开头,外环外徘徊在6万/㎡,紫竹滨江板块的均价甚至已经达到了8万+。(数据来源:网上房地产新房入市均价)
效果图
招商中旅·揽阅的出现,我愿称之为2024性价比神盘,难能可贵的是它还坐拥板块内醇熟完善的生活设施,未来可以说是“即买即享受”!
优质学府,K12教育资源环绕
项目东侧就是上师大附属中学闵行实验学校,公办九年一贯制,师资力量雄厚,拥有一支高水平、高能力、高业务的优秀师资团队。另外还有闵浦小学、尚师初中、七宝中学浦江分校等K12教育资源。
(教育配套信息仅供参考,项目对此不做任何承诺。最终学区划分、招生信息等均以教育主管部门和具体学校发布政策为准。)

实景图
繁华商业环绕,家门口就是吃喝玩乐购
商业方便,距10万㎡浦江万达广场直线距离约750米,步行即可到达。永辉超市,约2000㎡大型菜场(在建),家门口就可以满足生活所需。距8万㎡山钢和润旭辉里商圈直线距离约1.9公里,板块内还拥有浦江欢乐颂和浦江城市生活广场,未来还有沈杜公路站的TOD商业,吃喝玩乐购轻松get。(数据来源:百度地图测距)

实景图
三横三纵多轨,专享班车直达8号线
项目近享BRT快速公交,距离浦江线汇臻路站约2公里,可搭乘浦江线换乘8号线沈杜公路站,7站直达前滩太古里,全线与14条轨交线换乘。(据悉,交付后小区将提供3年免费社区班车,直达8号线,方便业主出行。具体班车方案敬请留意项目后续相关通知。)
项目西侧距规划中的奉贤线鲁南路站约500米,东侧就是浦星公路,可快速连接嘉闵高架、申嘉湖高速等,自驾至前滩,通过济阳路高架,连通中环和外环,自驾高速随心抵达江浙沪。
滨水生态绿境,城市难得宜居
项目周边优美的自然生态,也是城市中难得复制的甄稀资源。近瞰大治河绿地景观,拥享黄浦江滨江、浦江郊野公园、浦江玫瑰园等休闲设施。
在“2+1+10+N”的公园体系规划下,达到社区绿化全覆盖,可以说是一个巨大的天然氧吧,直接把生态宜居的属性拉到满格!(数据来源:闵行区浦江新市镇(含浦锦街道)总体规划暨土地利用总体规划(2017-2035))
另外,仁济医院南院、复旦大学附属耳鼻喉科医院、复旦大学附属口腔医院等三甲医疗资源,西北边直线距离约400米为浦江社区卫生服务中心永康分中心,为家人的健康保驾护航。(数据来源:百度地图测距)


潜力迸发的价值高地,如此完善的生活设施,从地段、价格来说,招商中旅·揽阅都远超同级400万级的产品,更何况还有全方位都能打的硬核品质,这也是为何能够让招商中旅·揽阅项目在短短蓄客时间内首开即当红!