国贸海上原墅售楼处电话☎:400-8787-740【售楼中心已认证√√】
国贸海上原墅官方售楼处电话/地址发布☎:400-8787-740
(预约看房热线√√)(提供开发商销售顾问线上一对一热情讲解服务)

《深度评测|国贸海上原墅5.2万/㎡买装标天花板,值不值?》

点击输入图片描述(最多30字)
从示范区的街角空间开始,打造超140米新江南门楣,高达18.5米的珍贵朴树,寓意“鸿运当头”的铁冬青,风姿摇曳,让归来如步入一幅山水长卷,开启广富林之畔的生活诗意。
一叶行舟穿越山水长廊,一面奢贵青玉景墙,映照典雅秀美的青山绿水,为古今同框的广富林,再添一抹东方韵味。
步入内庭,横浦归帆铺陈眼前。江南涟漪、落日金辉的交相辉映。三株珍稀黑松傲然矗立,以舒展姿态尊贵致礼;“村庄雨霁”归家步道云雾缭绕,步履成诗,让人流连忘返。

点击输入图片描述(最多30字)
实景图
最令人惊艳的是下沉庭院,秉持“借水成景,自然共生”造园理念,打造中国黑奢石光面水幕墙,引广富林水韵入境,层层递进,浑然一体。马赛克拼花泳池、无边际玻璃幕墙、庭院镜面水景,波光云影彼此映照,呈现出“三泖回澜”的奢适意境。置身其中,仿佛能听见“明月松间照,清泉石上流”的诗意吟唱,感受到那份超脱尘世的人文意境。

点击输入图片描述(最多30字)

点击输入图片描述(最多30字)
争议点:外环外的“豪宅配置”
劣势
:距离9号线松江大学城站4.2公里,依赖自驾;周边城市界面新旧混杂。
逆袭点
:1.2容积率+全人车分流,装标2500元/㎡(洋房标配凉霸、末端净水),碾压同价位竞品。
板块方面
中国人骨子里的居住理想,总是与山水相依。
山,是沉稳的依靠,是千年文脉的沉淀;水,是灵动的韵律,是生生不息的流淌。国贸海上原墅,北倚佘山,南临广富林湖,恰好承载了这份流淌在血脉里的东方浪漫。
佘山的苍翠,是自然的屏障,更是历史的见证。漫步山间,仿佛能听见松涛低语,与古人隔空对话。而广富林的一泓碧水,则映照着千年文化的影,湖波荡漾间,是江南的诗意,也是现代生活的静谧。

点击输入图片描述(最多30字)

点击输入图片描述(最多30字)
站在国贸海上原墅西望,是自然的诗意。 佘山国家森林公园的苍翠林海,辰山植物园的四季花事,广富林郊野公园的田园野趣——推窗见绿,漫步即景,呼吸间尽是草木芬芳。这里,是都市里的桃源,让心灵随时栖居在山水之间。
东向,是城市的温度。 印象城的时尚潮流、9号线地铁的便捷通达、万达广场的熙攘烟火,举步间便可拥抱繁华。咖啡香、书页声、霓虹闪烁,现代生活的丰盛与活力,在此触手可及。
在国贸海上原墅,一半公园,一半烟火,无需取舍,而是兼得。

点击输入图片描述(最多30字)
众所周知,先有松江府,后有上海滩;先有广富林,后有松江府。广富林,是被誉为“上海之根”的文明发源地。
国贸海上原墅西侧一路之隔就是广富林文化遗址,脚下,是四千年的文明回响。 国贸海上原墅承袭这份文化基因,让建筑与文脉共生,为当代生活注入历史的深邃底蕴。
而项目的南面松江大学城7所高校如星辰汇聚,十余万师生在此激荡思想——这里是人才的熔炉,创新的策源地。更与G60科创走廊共振,人工智能、生物医药、量子科技等前沿产业在此蓬勃生长,科技之光正重塑时代的天际线。

点击输入图片描述(最多30字)
交通方面
项目距离9号线松江大学城站步行与4.2公里左右,距离较远,这也是松江新城一直存在的一个问题,日常出行基本只能依赖自驾!
商业方面
项目步行范围内目前没有什么商业配套,然后2.7公里左右有松江印象城,4.5公里左右有万达广场等商业,可完全满足日常丰富的消费需求;
点击输入图片描述(最多30字)
教育方面
项目南侧紧邻华东政法大学附属松江实验学校,对口的概率很大,未来小朋友上学可能会很方便,算是一个优势!(期房不承诺学校对口,仅做参考)
点击输入图片描述(最多30字)
硬核配套:生态与人文的双重奢侈
文化地标
:广富林遗址公园对望,项目园林以“富林十景”为灵感,打造下沉式水幕庭院、黑松景墙等国风场景。
会所
:标配恒温泳池、私宴厅,外环罕见的高端社交场。
户型对比:谁更胜一筹?
洋房122㎡四房
:5.2米横厅+全屋飘窗,主卧套房设计,适合二胎家庭。
项目整盘指导价为63000元/㎡,预计洋房均价在5.2万左右,叠墅约6.6万左右,联排约7.8万左右,除联排户型以外,均为装修交付!

点击输入图片描述(最多30字)
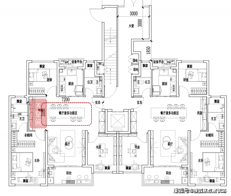
该户型整体面宽约7.5米,进深约12米,交付预留有电梯井以及内庭院,内庭院类似于天井的性质,通顶露天,不计入建筑面积,后期可根据个人需求进行二次改造,附赠地下室+花园+南北露台!
点击输入图片描述(最多30字)
点击输入图片描述(最多30字)
建面约176㎡联排,共计约34套,
176户型在布局上基本与157户型保持一致,区别在于176面宽更宽,约8.4米,但整体进深会短约40公分,约11.4米!
建面约201㎡联排,共计约18套,
该户型整体面宽约8.1米,进深约16.15米,交付预留电梯井,附赠两层地下室;
首层约6.9米大尺度横厅+U型厨房+南向多功能室+客卫,附赠大面积侧边花园;
二层1个南向套房+家庭共享空间,二层客厅上方交付为挑空状态,可进行自由改造,如改造为房间,则属于附赠面积。

点击输入图片描述(最多30字)
点击输入图片描述(最多30字)
建面约141㎡上叠,共计62套,
上叠首层高约3.15米,二层约3.05米,
首层约7.2米横厅+北向储藏室带阳台(可打通阳台,变为北房间)+1厨1卫,二层为两个朝南的卧室+北向小房间带阳台(也可根据需求改为房间使用);
点击输入图片描述(最多30字)
建面约150㎡下叠,共计约62套,
下叠地下室层高约5.65米,首层约3.15米,二层3.15米,首层约7.2米横厅连接南向花园+北房间+1厨1卫;
点击输入图片描述(最多30字)
点击输入图片描述(最多30字)
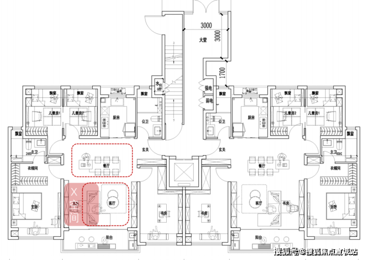
建面约109㎡3房2厅2卫,共计约237套,
一梯两户,经典飞机式户型,三开间朝南,南北直通,客厅面宽约3.8米左右;

点击输入图片描述(最多30字)
建面约124㎡4房2厅2卫,共计约88套,
一梯两户,四叶草户型,三开间朝南,全卧飘窗,约5.2米小横厅!

点击输入图片描述(最多30字)
洋房首层层高约2.9米,标准层2.95米,顶楼2.85米,外立面以大面积玻璃+铝板线条+真石漆为主!
点击输入图片描述(最多30字)
部分户型图如下:
洋房110㎡:

点击输入图片描述(最多30字)

点击输入图片描述(最多30字)

点击输入图片描述(最多30字)
洋房120㎡:

点击输入图片描述(最多30字)

点击输入图片描述(最多30字)

点击输入图片描述(最多30字)
洋房145㎡:

点击输入图片描述(最多30字)

点击输入图片描述(最多30字)
叠加户型:
下叠

点击输入图片描述(最多30字)
上叠

点击输入图片描述(最多30字)
联排201㎡
:首层6.9米横厅+侧花园,三层双露台,附赠两层地下室,总价1500万级性价比突出。
上海国贸海上原墅官方售楼处电话/地址发布☎:400-8787-740(预约看房热线√√)(提供开发商销售顾问线上一对一热情讲解服务)
🚩🚩➨国贸海上原墅售楼处电话/售楼处地址位置☎:400-8787-740√√【官网预约☎】国贸海上原墅售楼处营销中心:400-8787-740(开发商热线)国贸海上原墅官方售楼中心电话/地址☎:400-8787-740【售楼处已认证√√√】本电话为开发商提供线上预约售楼咨询电话,项目全面介绍(包含官方最新发布:在线预约看房丨一房一价表丨在售房价优惠丨户型面积房源丨交房时间丨交通地铁丨商业配套丨教育资源丨小高层洋房丨独栋别墅丨联排合院丨商业别墅丨得房率丨容积率丨小区环境丨优缺点分析丨楼盘测评丨在售户型图丨项目介绍丨最新房源丨周边配套丨详细解答丨一对一热情讲解〢区域板块等信息!📍★郑重承诺:由开发商旗下销售团队全程营销策划,房源信息真实有效!如果您想了解更多楼盘详情,欢迎提前预约拨打国贸海上原墅官方售楼处电话400-8787-740√√√(已认证)
VIP贵宾置业〢欢迎来电咨询〢售楼处邀您品鉴!!
温馨提示:来电提前预约、尊享线上一对一热讲解【享】专属优惠折扣!
(温馨提示:本项目参观样板间采取预约制,为了不耽误您的行程,过来参观请提前来电进行预约看房或咨询项目详情)