滨江一品苑售楼处首页网站全新上线!滨江一品苑2025 深度评测来袭,涵盖房价户型、商圈配套等,速览楼盘最新价格,解锁多样户型 。

搜狐焦点孝感站

2025-06-01 08:34:00

购房群

买房如何避坑,加入购房群,看看他们怎么说

立即进群

浦东内环内准现房!【🔥滨江一品苑售楼处电话:400-8787-740👈🔥】江景大宅134-710m²!天际大平层,均价11.2万起 绿城物业加持!

🔥滨江一品苑售楼处电话:400-8787-740👈🔥

🔥线上预约看房【享】专属优惠折扣🔥

🔥在售户型图丨项目介绍丨最新房源丨周边配套丨详细解答〢🔥

🔥 售楼处24小时VIP电话:400-8787-740←【已认证】🔥

🔥温馨提示:来电预约看房、尊享更多现场优惠!(中介勿扰)🔥

🔥售楼中心热线:400-8787-740←【已认证】【VIP贵宾专线】🔥

编辑

☀︎滨江一品苑售楼处电话:400-8787-740☎☎☀︎

★彡提-前-来-电-预-约-登-记—售楼处1v1销售专业讲解〢一对一热情服务〢

★彡温馨提示:网上售楼中心〢欢迎来电咨询〢预约可享内部优惠〢匠心钜制恭迎品鉴〢

编辑

꧁༺ 🔥滨江一品苑售楼处电话:400-8787-740👈🔥 ༻꧂

热热热 火火火 上车正当时!

浦东内环内 塘桥滨江

由2栋30层高层组成

建面约134-234㎡ 阔景大宅

装修:精装修、中央空调带地暖,1.2万装修标。

均价:11.18万元/m²

低区仅约8.66万/㎡起!

将加推约134—234㎡3-5房!

不要积分!不用摇号!

最后一栋!售完即罄!

编辑

🔥滨江一品苑售楼处电话:400-8787-740👈🔥最新消息, 内环江景大宅 再次启动!134-234m²!均价11.18万,预计2025.6.30日交房,绿城物业加持 准现房 房源少量! 同样地段内环外的保利世博天悦新房在售均价16万+/平,🔥滨江一品苑售楼处电话:400-8787-740👈🔥性价比超高。

实景拍摄:

编辑

🔥滨江一品苑售楼处电话:400-8787-740👈🔥,经历了资金链断裂、项目停工、开发公司破产重整,终于重新走上正轨。

“停工这三年,数不清的不眠之夜,顶着各种压力,还要定期缴还银行贷款、支付在外租房费用。”业主吴女士书面回应了《每日经济新闻》记者的采访。

项目的新物业公司有关负责人在接受每经记者采访时表示,🔥滨江一品苑售楼处电话:400-8787-740👈🔥是保交付项目,管理人在费用控制上比较严格,实际物业费单价维持在业务平衡线上,物业公司前期压力比较大。

2月13日,业主张仪(化名)向每经记者透露了最新进展,3月2日~10日分批预看房。

🔥滨江一品苑售楼处电话:400-8787-740👈🔥也重启了剩余房源和地下车位的销售,由销售代理机构代为销售。

图源|上海网上房地产

编辑

🔥滨江一品苑售楼处电话:400-8787-740👈🔥

上海网上房地产显示,目前项目在售房源82套,超过总房源数的23%。未售房源中包括顶层约713平方米的超大户型以及大户型底墅。🔥滨江一品苑售楼处电话:400-8787-740👈🔥

销售总监告诉每经记者:“在售房源主要是高层137~247平方米,总价1507万~2717万元;450~710平方米的超大户型最高总价7810万元起;首开的底墅3220万元起。

编辑

🔥滨江一品苑售楼处电话:400-8787-740👈🔥

2017年7月,保利地产以49.71亿元代价获得一宗黄浦江边、规划建筑面积逾20万㎡的住宅项目50%股权。

根据协议,除了增资所需的49.7亿之外,保利还需要另外贷款40.7亿给上海华辕实业。

所以这块地的开发成本极高

除了在资金上有高要求外,该项目在增资条件上还要求增资企业必须在借款协议签订日起5个工作日一次性支付贷款额给增资人。🔥滨江一品苑售楼处电话:400-8787-740👈🔥

这幅地块就是曾经的世博村,地上建筑面积达到16.73万㎡,项目的总建筑面积(包括地上车库)达到20.85万平方米。

编辑

目前保利世博天悦在售房源均价16万+/平,预计26年9月底交房,🔥滨江一品苑售楼处电话:400-8787-740👈🔥内环内,准现房,装修标准超高,唯一的缺点是塔楼,旧改的项目.

🔥滨江一品苑售楼处电话:400-8787-740👈🔥项目属于陆家嘴金融贸易区内,内环内塘桥板块.在整个上海内环新盘稀缺的当下,🔥滨江一品苑售楼处电话:400-8787-740👈🔥尊雅双子塔楼,俯瞰滨江盛世,立面风格整体为ARTDECO风格,配以落地玻璃窗,干挂石材外立面。以137㎡- 234㎡江景小户型升级归来,肯定吸引众多自住买家。

编辑

🔥滨江一品苑售楼处电话:400-8787-740👈🔥效果示意图

🔥滨江一品苑售楼处电话:400-8787-740👈🔥最新消息, 内环江景大宅 再次启动!134-234m²!均价11.18万,预计2025.6.30日交房,绿城物业加持 准现房 房源少量! 同样地段内环外的保利世博天悦新房在售均价16万+/平,🔥滨江一品苑售楼处电话:400-8787-740👈🔥性价比超高。

一品价值|三大核心资本

陆家嘴、外滩、前滩环抱,上海资本金三角核心位置。享三大中心规划利好,可谓滨江一线至贵之焦点。

一品占位|陆家嘴臻藏席位

承载滨江百年繁华,擎启陆家嘴都会繁荣。这里是无数人极致梦想中的生活圣地。滨江稀贵土地抢夺步伐愈发加快,你不来,它不待。

🔥滨江一品苑售楼处电话:400-8787-740👈🔥

一品人生|璀璨生活高地

IFC国金中心、环球金融中心,陆家嘴璀璨的世界商业地标;众多米其林餐厅,赏味世界美食。

编辑

浦东🔥滨江一品苑售楼处电话:400-8787-740👈🔥在2017年以前叫东樱花苑,是日本松下产业株式会社于上世纪九十年代在上海开发的项目,原两幢楼的开发商是日本松下集团,因小区中有200多颗樱花尔起名东樱花苑。项目于1997年一期竣工。项目规划用地为住宅用地,项目建成后主要是作为公寓式酒店,提供给在沪生活的日本人家庭及在上海出差的日本人租用。

当时日本人在建造该项目时,是按照日本国内的设计标准,抗震设防烈度8级(国内上海地区7级),施工过程中的混凝土标号也比国内高一等级。因此可以看出东樱花苑最大的优点是建筑建构设计和施工质量好。

2016年上海城利房地产有限公司以均价3.3万左右,共计30多个亿从松下产业株式会社收购该项目,现开始进行改造重新包装,这就是现在的🔥滨江一品苑售楼处电话:400-8787-740👈🔥。

编辑

🔥滨江一品苑售楼处电话:400-8787-740👈🔥是上海城利地产开发的高端住宅,“一品苑”系为城利地产的注册品牌,在上海能看到的所有叫“一品苑”的项目皆为城利地产开发。

编辑

🔥滨江一品苑售楼处电话:400-8787-740👈🔥

项目位于浦东新区内环内,毗邻陆家嘴商圈,距离世纪公园商圈3公里,距离陆家嘴商圈1.5公里,地理位置优越,称得上是上海真正的市中心地段。享三大区域规划利好,位于滨江沿线区位,中区以上楼层全面瞰江。

编辑

🔥滨江一品苑售楼处电话:400-8787-740👈🔥

编辑

🔥滨江一品苑售楼处电话:400-8787-740👈🔥

编辑

01.周边配套

交通优势:🔥滨江一品苑售楼处电话:400-8787-740👈🔥

1环2桥2隧道双轨交:内环内,南浦大桥、卢浦大桥,复兴路隧道、人民路隧道,门口轨道交通4/6号线。

编辑

商业环绕:🔥滨江一品苑售楼处电话:400-8787-740👈🔥

项目1公里范围内有巴黎春天、新塘桥生活广场、世纪联华、沃尔玛等商业配套。

编辑

🔥滨江一品苑售楼处电话:400-8787-740👈🔥

教育资源:

学校方面有爱绿幼儿园、浦东南路小学、文建中学、洋泾中学等。

参考的教育配套有冰厂田幼儿园、爱绿幼儿园、建平中学、宋庆龄国际学校(期房非对口)。

编辑

医疗资源:🔥滨江一品苑售楼处电话:400-8787-740👈🔥

项目距离仁济医院、上海儿童医学中学步行仅需约5分钟。

编辑

🔥滨江一品苑售楼处电话:400-8787-740👈🔥

真正的大宅排面

编辑

编辑

🔥滨江一品苑售楼处电话:400-8787-740👈🔥

编辑

🔥滨江一品苑售楼处电话:400-8787-740👈🔥

编辑

🔥滨江一品苑售楼处电话:400-8787-740👈🔥

编辑

🔥滨江一品苑售楼处电话:400-8787-740👈🔥

02.主力户型

本期推出共175套,目前主推建筑面积131~226平3房,另有非标准户型200~500平底楼,顶楼复式。套房设计,套内独立卫生间,独享私人空间。🔥滨江一品苑售楼处电话:400-8787-740👈🔥

编辑

🔥滨江一品苑售楼处电话:400-8787-740👈🔥

编辑

🔥滨江一品苑售楼处电话:400-8787-740👈🔥

编辑

🔥滨江一品苑售楼处电话:400-8787-740👈🔥

编辑

🔥滨江一品苑售楼处电话:400-8787-740👈🔥

131平米:3房2厅1卫 (1梯2户)

编辑

🔥滨江一品苑售楼处电话:400-8787-740👈🔥

户 型 图

193平米:4房2厅3卫(1梯2户)

编辑

户 型 图

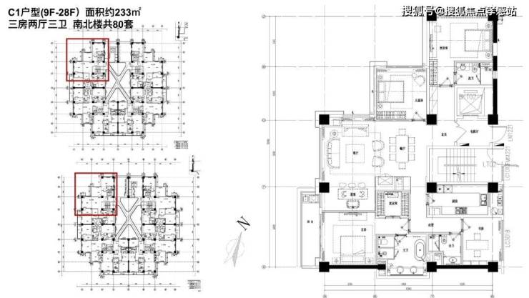
226平米:4房3厅3卫(1梯1户)

🔥滨江一品苑售楼处电话:400-8787-740👈🔥

编辑

户 型 图

全面积段覆盖,满足二人世界、三口之家以及大家族的不同需求,量身定制经典户型。

🔥滨江一品苑售楼处电话:400-8787-740👈🔥 参考样板间:

编辑

🔥滨江一品苑售楼处电话:400-8787-740👈🔥

编辑

🔥滨江一品苑售楼处电话:400-8787-740👈🔥

编辑

编辑

🔥滨江一品苑售楼处电话:400-8787-740👈🔥

编辑

🔥滨江一品苑售楼处电话:400-8787-740👈🔥

编辑

🔥滨江一品苑售楼处电话:400-8787-740👈🔥

编辑

🔥滨江一品苑售楼处电话:400-8787-740👈🔥

编辑

🔥滨江一品苑售楼处电话:400-8787-740👈🔥

编辑

🔥滨江一品苑售楼处电话:400-8787-740👈🔥

编辑

🔥滨江一品苑售楼处电话:400-8787-740👈🔥

编辑

🔥滨江一品苑售楼处电话:400-8787-740👈🔥屹立外滩、陆家嘴、前滩3大核心资本圈之内,享三大区域规划利好,可谓滨江一线至贵焦点。于陆家嘴-世博-前滩发展轴线之心,滨江顶豪圈层内,执掌核心土地价值。

03.

前期一房一价表:

编辑

🔥滨江一品苑售楼处电话:400-8787-740👈🔥

编辑

🔥滨江一品苑售楼处电话:400-8787-740👈🔥

编辑

04.物业管理

2025年2月绿城物业服务集团(上海)物业管理有限公司中标🔥滨江一品苑售楼处电话:400-8787-740👈🔥前期物业项目,正式成为🔥滨江一品苑售楼处电话:400-8787-740👈🔥物业。

绿城物业一直以来都是物业行业的佼佼者,以专业、贴心、高品质的服务著称。相信在绿城的管理和服务下,🔥滨江一品苑售楼处电话:400-8787-740👈🔥一定会成为一个环境优美、服务周到、邻里和谐的高品质社区。业主期待与绿城物业携手,共同开启🔥滨江一品苑售楼处电话:400-8787-740👈🔥的美好新篇章!

编辑

🔥滨江一品苑售楼处电话:400-8787-740👈🔥

🔥线上预约看房【享】专属优惠折扣🔥

🔥在售户型图丨项目介绍丨最新房源丨周边配套丨详细解答〢🔥

🔥 售楼处24小时VIP电话:400-8787-740←【已认证】🔥

🔥温馨提示:来电预约看房、尊享更多现场优惠!(中介勿扰)🔥

🔥售楼中心热线:400-8787-740←【已认证】【VIP贵宾专线】🔥

全部

相关资讯

报名成功
稍后会有专业的置业顾问联系您
返回楼盘

频道导航

返回首页

看房小程序

APP下载

电话拨通后,请您手动拨打分机号

确定拨打电话

电话号码:

分机号:(可能需要拨分机号)