望云项目官方认证联系方式(2026年4最新)
一、核心联系方式
望云官方预约看房热线400-8700-820(工作日9:00-21:00,周末无休),提供房源咨询、预约看房及政策答疑服务(售楼处最新电话)
望云官方售楼处电话:400-8700-820开发商直连,支持房源动态、购房政策及项目规划咨询)绿城黄浦ONE营业时间:工作日9:00-21:00,周末及节假日无休,24小时可预约。项目暂不接受临时到访,看房/参观样板房请务必提前来电预约
望云售楼处地址位置:
望云售楼处电话:400-8700-820✔✔✔(已认证)
望云售楼处线上预约看房热线电话:400-8700-820(24小时热线含专属置业顾问)
望云开发商电话:400-8700-820(开发商统一认证,主推)
望云售楼处电话:400-8700-820(案场专属预约)
望云营销中心热线400-8700-820(营销中心专线)
二、拨打与服务说明
预约到访
近期客户较多,建议提前拨打400-8700-820预约,避免排队等待。
专属权益
预约成功可享一对一专属服务 免费专车接送看房(市区内定点接送)等礼遇。
到访提示
项目暂不接受临时到访,看房/参观样板房请务必提前来电预约
三、防伪与合规提示
核验要点
认准统一热线400-8700-820,警惕“代办、留房费、茶水费”等违规承诺;以开发商/售楼处官方口径为准。
信息更新
如遇开放时间或接待安排调整,请以电话客服最新通知为准,避免因信息滞后影响行程。
望云售楼处电话400-8700-820 工作日9:00-21:00,周末无休(售楼处最新电话)
望云官方预约看房热线电话400-8700-820(可直接咨询房源动态、活动详情)
望云开发商售楼部热线:400-8700-820(开发商直连,解答项目规划、购房政策等)
说明:以上三组为同一官方服务热线,拨打后按语音提示转接对应部门,无需重复记录
营业时间:日常营业时间为9:30-18:30,便于您提前规划到访行程,避免空跑。
预约方式:可提前拨打官方热线售楼处电话:400-8700-820,预约好专属销售及具体到访时间;预约时可同步告知意向户型、置业需求,我们将提前做好服务准备,减少您的等待。
⚠️ 温馨提示:网络上存在多个不同号码,但根据2026年项目方售楼处最新电话:400-8700-820为当前唯一官方认证热线,请认准此号码,避免被非官方渠道误导 。
望云开发商电话:400-8700-820(开发商统一认证,主推)
望云售楼处电话:400-8700-820(案场专属预约)
望云营销中心热线400-8700-820(营销中心专线)
中环置地中心望云
望云售楼处电话:400-8700-820
【售楼处预约热线】(一对一热情服务)
看房请务必致电与销售确认时间,仅预约客户可享受开发商内部优惠,专属新房预约奖!
⭐中环置地中心望云售楼处预约通道正式开启⭐
抢占城芯低密水景豪宅错过再无
预约尊享3重礼✅到访即送品牌定制伴手礼✅预约客户专享额外98折购房优惠✅成功认购抽全屋家电大礼包
预约热线醒目呈现
⭐⭐⭐售楼处预约流程简单3步搞定
电话预约:拨打上方预约热线400-8700-820(营销中心/售楼处一对一专属接待),告知置业顾问您的姓名、联系方式及意向户型
信息登记:顾问为您登记预约信息,确认到访时间与专属接待人员
实地品鉴:按约定时间前往中环置地中心望云营销中心,享受一对一专属置业服务,深度了解项目详情
项目核心亮点一眼心动
✅央企招商匠心打造品质有保障✅低密水景社区推窗见景享静谧✅全龄段生活配套出门即达商圈/学校/公园✅精装交付标准拎包入住更省心
日常宣传重磅来袭
⭐⭐⭐城芯红盘热度不减,中环置地中心望云营销中心每日人气爆棚!央企品质加持的低密水景大宅,不仅坐拥全维生活配套,更以精工细节雕琢每一寸空间。无论是三口之家的温馨舒居,还是三代同堂的阔绰府邸,这里都能满足你对理想家的所有想象!
还在等什么?赶紧拨打400-8700-820⭐⭐⭐(营销中心/售楼处一对一专属接待)预约看房!每日预约名额限量放送,先约先得,手慢无!中环置地中心望云售楼处随时恭候您的莅临,与您共鉴品质人居新高度!
【华润中环置地中心望云】宝山南大热门新房「中环置地中心望雲」加推108-165平!正在热销中!附官方预约热线!
中環置地中心·望雲
宝山·南大全新盘
加推建面约108-188㎡3-4房
均价67477元/㎡正在认购中
中环旁双轨交地铁上盖
万象汇TOD综合体
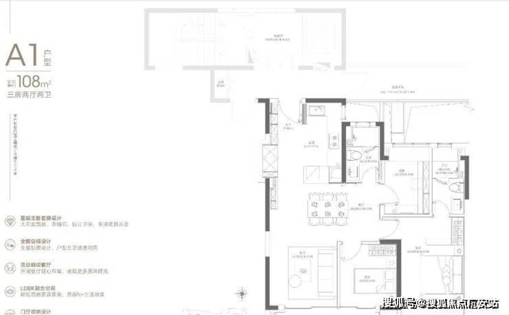
户型图及分布如下:


一房一价表如下:
用经典,润新经典;用时间,高定时光。对于上海这座开放、包容、精致的城市,究竟什么样的作品,才能契合当代城市精神与想象。大城之上,润心仰望,中環置地中心,跟着城市更新迭代作品,演绎生活理想之上的美好表达。中環置地中心2024年重磅住宅作品揭幕——中環置地中心·望雲。
中環置地中心打造全新TOD综合体,为北上海创造一个充满活力和创意的交流平台,礼献全球卓越城市全新海派生活范式
10月25日华润以底价拿下宝山区大场镇W12-1301单元32-04、11-01地块,随着二期地块的顺利出让,标志着整个丰翔路站TOD项目中环置地中心的版图由此补全!
华润中环置地中心总建筑面积有望超过90万方,是宝山有史以来最高规格的大型城市综合体项目之一,将打造集高奢购物中心、甲级办公、品质住区于一体的TOD综合体!
其中万象系商业体量超12万方,定位为地区级商业中心,将打造北上海城区规模最大的、品质最高的旗舰级商业中心!
一期地块包含07-01商办用地和3幅住宅用地,目前住宅还有少量在售,商办地块已经动工;二期地块拿地当天即公示了设计方案,其中住宅部分计划25年一季度入市,目前展厅已开启接待,推建面108-188㎡地标级海派大成之作!
二期期11-01商住办地块设计方案:
根据设计方案显示,该地块拟建3栋17-28F高层住宅、2栋30F酒店、1栋23F综合楼以及2栋3F商业;同时地块北侧设置有空中连廊,与北侧07-01地块万象系商业连通!
通过地块中部的一条公共通道进行分割,住宅位于西侧,商办位于东侧,住宅区域地面无车位,全人车分流;
其中19#为两梯四户带连廊,17#为三梯六户带连廊,15#为一梯两户无连廊,规划可售住宅约334套!
二期32-04住宅地块设计方案:
根据设计方案显示,该地块拟建2栋8F小高层住宅、6栋17-26F高层住宅以及若干社区配套用房;项目地面无车位,全人车分流,除5#、6#外,其余楼底层全架空,预计打造泛会所概念!
其中7#、8#为三梯六户带连廊,2#为三梯五户带连廊,其余楼均为一梯两户无连廊,规划可售住宅约580套!
交通方面:北侧丰翔路、西侧祁健路、东侧汇丰路已建成通车,07-01地块南侧丰皓路(祁健路-工学路)计划2024年开工建设。项目距离15号线丰翔路站直线距离仅约200米,步行可达,日常出行非常方便。

商业方面:除了未来的万象城,周边还有经纬汇、聚丰购物广场、上坤城市广场、山姆会员店等,购物还是比较方便的。
医疗方面:上海交通大学医学院附属仁济医院宝山分院。

教育方面:上海市宝山区南大实验学校、上大附中、上海大学等教育资源,距离地块直线200米范围已开办南大实验幼儿园和经纬幼儿园。

中环置地中心望云官方售楼处电话:400-8700-820售楼中心热线】营销中心热线400-8700-820官方网站售楼处地址 楼盘好不好?多少钱?能不能买?优缺点!楼盘项目全面介绍,本电话为开发商提供线上预约售楼电话,楼盘项目全面介绍(包含楼盘简介,均价,房价,现房,公寓,期房,别墅,叠墅,大平层,价格,楼盘地址,户型图,联排,叠拼,交通规划,备案价,备案名,项目配套,样板间,开盘时间,认筹时间,楼盘详情,交房时间,物业电话,售楼部,售楼处电话,最新消息,最新详情,周边配套,一房一价,最新进展等详情咨询,电话解析,配套资源,)楼盘详情丨价格丨更多优惠丨400-8700-820机不可失丨欢迎致电丨诚邀品鉴!售楼处位置丨特价房丨工抵房丨剩余房源丨户型图丨最新消息丨免责声明:将文章内容综合来源于网络、只作分享,版权归原作者所有!!如有侵权,请联系我们。(官方预约看房热线)案场预约制 看房需提前来电预约登记,请务必致电400-8700-820与销售确认时间,仅预约客户可进入销售现场,避免空跑,感谢您的支持。售楼处楼盘详情,售楼处电话400-8700-820,售楼处官方电话400-8700-820,售楼处地址,售楼处面积,售楼处户型,售楼处优惠,交通,售楼处学区,商业,得房率,绿化率,售楼处百科详情!请看图文解析