联仲都悦汇售楼处首页网站全新上线!联仲都悦汇2025深度评测来袭,涵盖房价户型、商圈配套等,速览楼盘最新价格,解锁多样户型 。

搜狐焦点孝感站

2025-06-30 12:13:00

购房群

买房如何避坑,加入购房群,看看他们怎么说

立即进群

🔷🔸联仲都悦汇售楼部电话:400-8877-480

🔷🔸如需参观样板间或了解房源信息,请务必提前致电预约!

🔷🔸专业销售一对一咨询 耐心等待官方VIP客户经理回电

🔷🔸联仲都悦汇售楼部电话:400-8877-480

最新消息,送100w装修!闵行·商墅 联仲·都悦汇 约310-411㎡法式商墅!总价约1420万~1800

闵行·旗忠别墅富人区

【联仲·都悦汇】

建面310~411㎡商业联排别墅

法式干挂 地上三层 地下一层

带南北双花园90-300㎡

总价约:1420-1800万

实景现房 不限购 通燃气

🔷🔸联仲都悦汇售楼部电话:400-8877-480

🔷🔸联仲都悦汇售楼部电话:400-8877-480

01.项目基本信息

【开发商】:上海联仲置业有限公司

【物业】:上海仲量联行物业管理公司

【容积率】:1.0

【绿化率】:35%

【车位比】:1:2.1

【物业费】:8元/㎡/月

【本次开盘】:14套

【物业类型】:商业联排别墅

【交付标准】:毛坯

【拿地时间】:2014年8月

【交房时间】:2023年6月

🔷🔸联仲都悦汇售楼部电话:400-8877-480

在售户型:建面约310-410平米,地上三层地下一层

(地上:一层层高3.6米/二层层高3.4米/三层层高3.4米/地下层高5.4米)

总价:约1400-1800万️

单价:约5万/平米

小区整体商业:10万方(在建)南北双花园90-300平

水电:商水&商电,电1.3元/度,水6元/吨

产权车位:约30万左右

🔷🔸联仲都悦汇售楼部电话:400-8877-480

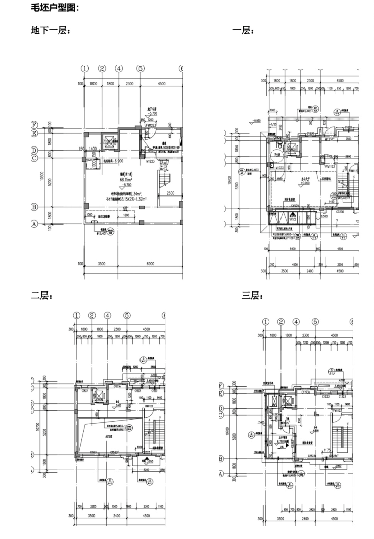
02.户型图及样板间照户

(特殊说明:户型朝向-上南下北)

约10.4米大面宽,面积达到55平

送电梯,北进门,南花园,超大地下室

客厅7米落地窗,采光明亮,尽显大气

约310平户型图▼

🔷🔸联仲都悦汇售楼部电话:400-8877-480

约378~420平户型图▼

🔷🔸联仲都悦汇售楼部电话:400-8877-480

约407~441平户型图▼

🔷🔸联仲都悦汇售楼部电话:400-8877-480

样板间效果图如下:

🔷🔸联仲都悦汇售楼部电话:400-8877-480

🔷🔸联仲都悦汇售楼部电话:400-8877-480

🔷🔸联仲都悦汇售楼部电话:400-8877-480

🔷🔸联仲都悦汇售楼部电话:400-8877-480

🔷🔸联仲都悦汇售楼部电话:400-8877-480

🔷🔸联仲都悦汇售楼部电话:400-8877-480

🔷🔸联仲都悦汇售楼部电话:400-8877-480

🔷🔸联仲都悦汇售楼部电话:400-8877-480

🔷🔸联仲都悦汇售楼部电话:400-8877-480

🔷🔸联仲都悦汇售楼部电话:400-8877-480

03.项目区位配套

【联仲·都悦汇】位于闵行马桥旗忠别墅区,旗忠别墅区是上海老牌的富人区,与松江佘山、浦东东郊齐称为沪上三大国际别墅区。上海仅存少量的容积率0.18以下超低密度居住用地中,大多数在马桥旗忠别墅区。

🔷🔸联仲都悦汇售楼部电话:400-8877-480

板块以低容积率、生态自然环境和高端国际品牌配置,2010年被列为上海第二批大型居住社区之一。总建面约33万方城市综合体联仲都悦汇位于旗忠板块正核心,紧临网球中心,超10万方市政绿化所环绕。

🔷🔸联仲都悦汇售楼部电话:400-8877-480

【联仲都悦汇】同样是低密度别墅区里的一员,背靠绿城玫瑰园,容积率低至1.0。项目贯穿了3条自然水系,分为ABCD四个地块,其中ABC为商住办综合地块,自带商业办公。

🔷🔸联仲都悦汇售楼部电话:400-8877-480

交通配套方面:项目距离嘉闵高架元江路出口3公里,毗邻G15、S32等快速主动脉,30分钟大虹桥,50分钟抵达浦东机场,快捷畅达全城。

🔷🔸联仲都悦汇售楼部电话:400-8877-480

地铁:5号线华宁路站,剑川路站

公交:马莘专线:联工路站,闵行19路:银春路华宁路站

高速:嘉闵高架、沪金高速、虹梅南路高架 沪昆高速、申嘉湖高速、沪闵高架

高铁:距离上海虹桥枢纽站(高铁、机场)约20km

未来规划:嘉闵线延伸段

(以上数据来源于高德地图)

🔷🔸联仲都悦汇售楼部电话:400-8877-480

商业配套方面:项目自带10万方商业,为旗忠唯一的综合性商业配套,其多元化的业态结构,结合旗忠独有的资源,必将带来旗忠全新生活方式。

🔷🔸联仲都悦汇售楼部电话:400-8877-480

🔷🔸联仲都悦汇售楼部电话:400-8877-480

🔷🔸联仲都悦汇售楼部电话:400-8877-480

生态资源方面:项目周边有马桥森林公园、旗忠高尔夫球场、旗忠网球中心、韩湘水博园、养云安缦酒店等。

🔷🔸联仲都悦汇售楼部电话:400-8877-480

教育资源方面:周边有复旦万科实验学校,德威英国国际学校、斯代文森国际高中、上海美高学校。幼儿园:元祥幼儿园、富杰幼儿园启英幼儿园,大学:上海交通大学、华东师范大学

🔷🔸联仲都悦汇售楼部电话:400-8877-480

🔷🔸联仲都悦汇售楼部电话:400-8877-480

🔷🔸联仲都悦汇售楼部电话:400-8877-480

全部

相关资讯

报名成功
稍后会有专业的置业顾问联系您
返回楼盘

频道导航

返回首页

看房小程序

APP下载

电话拨通后,请您手动拨打分机号

确定拨打电话

电话号码:

分机号:(可能需要拨分机号)