🔥国贸海上原墅售楼处电话:400-8787-740👈🔥首开认筹率超188%,容积率仅约1.2墅级社区,触发积分!松江广富林旁容积率1.2江南风墅居香爆了!!


🏫周边学校: 项目周边落座了松江大学城、上海外国语大学松江外国语学校、上海外国语大学附属外国语学校松江云间中学、上海实验学校松江新城分校(规划中),还有华东政法附属学校、上师大附属学校、东华大学附属学校等丰富的教育资源(注:本资料中学校信息仅作介绍不做入学承诺,项目对口学校最终以教育部门划分为准。)
1地段
🔥国贸海上原墅售楼处电话:400-8787-740👈🔥
地块所在的广富林板块,本身的生态资源非常优秀!项目西侧一路之隔就是广富林文化遗址、广富林郊野公园、直线距离约1km+是辰山植物园,北面直线距离约3km是佘山国家森林公园、月湖雕塑公园等。🔥国贸海上原墅售楼处电话:400-8787-740👈🔥
🔥国贸海上原墅售楼处电话:400-8787-740👈🔥
商业方面,项目周边涵盖了约60万方(数据来源:上海松江)综合性商业集群——松江万达、开元地中海、五龙广场、马利来广场......还有地标性商业松江印象城一期!更有印象城二期(待建成),一期+二期总商业体量将高达约40万方!
🔥国贸海上原墅售楼处电话:400-8787-740👈🔥

🔥国贸海上原墅售楼处电话:400-8787-740👈🔥
周边学校:项目周边落座了松江大学城、上海外国语大学松江外国语学校、上海外国语大学附属外国语学校松江云间中学、上海实验学校松江新城分校(规划中),还有华东政法附属学校、上师大附属学校、东华大学附属学校等丰富的教育资源。 (注:本资料中学校信息仅作介绍不做入学承诺,项目对口学校最终以教育部门划分为准。)
🔥国贸海上原墅售楼处电话:400-8787-740👈🔥

🔥国贸海上原墅售楼处电话:400-8787-740👈🔥
医疗方面,附近有上海市第一人民医院南院,为三甲综合性医院,以及养志康复医院
🔥国贸海上原墅售楼处电话:400-8787-740👈🔥
2产品
该项目位于松江新城板块,容积率1.2,占地面积约8.03万方,计容面积约9.64万方;保障房占比5%,类型为公共租赁住房;
🔥国贸海上原墅售楼处电话:400-8787-740👈🔥中小套户型不得低于总住宅建筑面积的30%,全装修比例50%!指导价6.3万/㎡,装标要求不低于2500元/㎡!
🔥国贸海上原墅售楼处电话:400-8787-740👈🔥从设计方案来看,该项目由9栋7-8F多层住宅、9栋4F多层住宅、12栋3F低层住宅、1栋8F保障房以及若干社区配套用房组成,共计规划778户(含保障房)。

🔥国贸海上原墅售楼处电话:400-8787-740👈🔥
亮点在于,项目容积率只有1.2,地面无车位,全人车分流,规划地下车位1414辆,小区在西南角规划了下沉式庭院和配套用房,还有公共开放空间。

🔥国贸海上原墅售楼处电话:400-8787-740👈🔥
从设计方案来看,该项目由9栋7-8F多层住宅、9栋4F多层住宅、12栋3F低层住宅、1栋8F保障房以及若干社区配套用房组成,共计规划778户(含保障房)。🔥国贸海上原墅售楼处电话:400-8787-740👈🔥
项目将推出洋房、叠墅、联排三种产品,其中洋房约381套,叠墅约132套,联排约162套,户型图即将发布!
🔥国贸海上原墅售楼处电话:400-8787-740👈🔥户型图曝光:
建面约109㎡洋房

建面约122㎡洋房🔥国贸海上原墅售楼处电话:400-8787-740👈🔥

🔥国贸海上原墅售楼处电话:400-8787-740👈🔥
建面约143㎡洋房

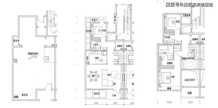
建面约140㎡上叠🔥国贸海上原墅售楼处电话:400-8787-740👈🔥
🔥国贸海上原墅售楼处电话:400-8787-740👈🔥
建面约150㎡下叠
项目实景图如下🔥国贸海上原墅售楼处电话:400-8787-740👈🔥