本次开放的样板层,是项目施工工艺与质量标准的集中展示。项目部严格遵循设计蓝图,将“过程精品”理念融入建造全程。
严苛选材管控,所有主辅材均经多层筛选与封样确认,关键部位材料严格按标准送检,确保源头可靠。
标准化工艺落地,全面推行实测实量体系与样板引路制度。从基础结构到精装收口,每一道工序均先做实体工艺样板,验收合格后复制推广,确保精度统一。
特发·香阅里预约热线☎:400-8080-420✅✅
重新定义
滴水湖高阶改善住宅的稀缺样本
上海豪宅市场正迎来前所未有的热度!2025年6月,核心地段顶豪频现“日光”,徐汇滨江绿城潮鸣东方、黄浦上海壹号院等项目单日销售额突破70亿,非沪籍买家占比超70%,印证全国资本对上海顶豪的追捧。
在此背景下,临港新片区作为国家战略“再造浦东”的引擎,正以万亿GDP目标、250万人口规划、世界级产业集群,孕育着下一个价值爆发点。而占据临港CBD头排的纯改善大作——特发·香阅里,以公园首排资产、纯大户基因、顶配产品力,正掀起临港高端客群的关注风暴!
近期特发·香阅里位于港城新天地的展厅已开放,即使阴雨连绵,但参观的客户仍然不断,据天机所知,展厅接待客户量大于临港80%以上售楼处客户到访量。这个数据在临港新房90%启动中介合作及部分发放带看奖的情况下,说实话很难得。
而且作为临港105板块,环湖北三路的头牌位置,时隔2年之久,以纯大户型(109㎡起)入市,市场接受度及客户认可度到底如何,我也十分期待。
特发·香阅里预约热线☎:400-8080-420✅✅
艺术源自生活|FashionTime
"
当两港快线的轨道划破晨曦,临港105片区的轮廓在晨雾中渐次清晰。
这里是未来十年上海的战略心脏——规划中的“临港陆家嘴”,约200米地标群勾勒出国际金融都会的天际线。
而在这幅澎湃蓝图的正南首排,特发·香阅里以公园封面大宅之姿,静候时代人物的归来。

特发·香阅里预约热线☎:400-8080-420✅✅
临港核芯+双公园首排
滴水湖稀缺资产的终极占位
决定房地产价值的因素,第一是地段,第二是地段,第三还是地段。无论房地产行情如何,地段永远是置业首要因素。
特发·香阅里正处于寸土寸金的滴水湖105板块,占位环二公园带(规划中)金镶边际,执掌环湖北三路时代首排,紧邻临港中轴动脉——以头牌视野,定义公园生活与城市效率的黄金平衡点。项目同时直线距离滴水湖约2公里。
特发·香阅里预约热线☎:400-8080-420✅✅
项目区位示意图
站在落地窗前,对面就是超百万方绿脉蜿蜒和环抱未来金融地标--荣耀之环。往东,可以将城市公园(规划)及酒店(规划)风景尽收眼底。北望,则是未来绚烂的临港TOD,既有挺拔高耸对标“陆家嘴”的临港三件套(规划),又含临港中轴动脉--滴水湖北站(建设中)。
特发·香阅里预约热线☎:400-8080-420✅✅
特发·香阅里预约热线☎:400-8080-420✅✅
荣耀之环实景图

特发·香阅里预约热线☎:400-8080-420✅✅
滴水湖北站--效果示意图
滴水湖北站(规划)枢纽将打造成集新型国际贸易、交通枢纽、金融财富、时尚生活趋势、免税消费中心、国际交往目的地于一体的繁华会客厅,链接浦东机场T3航站楼(建设中)、上海东站(建设中) 、虹桥机场的关键节点,以城市之心的跳动,对话世界繁华。
特发·香阅里预约热线☎:400-8080-420✅✅
滴水湖北站--效果示意图
不止有诗(双园环抱)和远方(双轨交汇+16号线),更有眼前的高级烟火生活。
特发·香阅里项目周边在建商圈环绕,一路之隔就是滴水湖北站TOD商业综合体(建设中)、星海汇(建设中)、金融总部湾(建设中)、港城新天地、蓝鲸世界购物中心(7月开业),出门约700米,就是城市轨交南汇线(建设中)、南枫线(建设中)交汇的滴水湖北站(建设中),距离约2公里滴水湖站。这份便捷与惬意,临港难有其二。
临港105板块的定位与发展格局,恰似一曲磅礴的东方交响,以“陆家嘴2.0”为战略基调,在时代蓝图上书写着错位互补的金融诗篇。
其以“金融+轨交”的规划定位,在滴水湖新片区中占位头部,这一点也无需赘言。在临港蓬勃发展之际,105板块稀缺头排产品的含金量,如同黄金价格一般,还在不断上升。
肉眼可见的绝版地段,错过再无的紧迫感,坚挺广阔的升值前景,迭代宜居的产品打造,让更多的城市精英坚定的期待着特发·香阅里。
特发·香阅里预约热线☎:400-8080-420✅✅
艺术源自生活 |FashionTime
"
若您愿做临港蓝图的同行者,不妨亲临现场:触摸岩板背景墙的温润质感,感受星空车库坡道的光影艺术,观赏时代前沿的公园风景。
站在样板间窗前想象未来——当公园的晨风拂过主卧的玻璃,俯瞰金融总部湾及荣耀之环,您已站在时代前排。

特发·香阅里预约热线☎:400-8080-420✅✅
特发答卷+产品焕新
与滴水湖共生长的承诺
上海这片繁华热土上,都市的节奏与人们的梦想交织,淬炼出对居住的崭新愿景。
临港人民,浸润于这片充满希望的土地,对“家”的期许早已超越了国标的刻度——它被注入更多人文的温度、自然的诗意和未来美好生活的蓝图。
特发·香阅里预约热线☎:400-8080-420✅✅
“好房子”,须是生长的建筑:精研每一寸空间的艺术,让阳光与风自由穿梭,以匠心细节雕琢日常的仪式感;融入便捷与温度,让邻里笑语萦绕,赋予生活从容的底气;更要前瞻时代脉搏,以智慧与韧性为未来留白。
唯有如此,才能以超越期待的品质和触达心灵的共鸣,将房子真正升华为临港年轻人心灵的栖息港,让他们欣然拥抱这份值得托付的“真改善”,在滴水湖畔,落笔属于自己的人居新篇章。
特发·香阅里值得临港久候,独一档的地段,只是基础,突破性豪宅产品内核,才是关键。
这份产品突破性,首先体现在建筑立面上。
特发·香阅里预约热线☎:400-8080-420✅✅
设计师在对香阅里的设计上去繁就简,运用有力的竖向线条勾勒出简洁硬朗的形态,突出建筑本身韵律之美,建筑整体外观选择了“现代艺术”的建筑风格,在立面的处理上,采用大面积玻璃+铝板线条+浅色涂料,以突破性大窗墙比设计,赋予建筑轻盈灵动的现代质感,同时让室内通透明亮。
这份产品突破性,体现在架空层泛会所打造上。
以架空层为宣纸,挥毫泼墨绘就【社区会客厅】【健身运动】【悦读书吧】【儿童主题乐园】四重意境,让缺席的会所,蜕变为无处不在的生活舞台。为临港高净值人群带来了高奢酒店的度假体验。
特发·香阅里预约热线☎:400-8080-420✅✅
这份产品突破性,体现在高奢酒店般的归家礼仪动线上。
项目售楼处以后部分将作为小区酒店式环岛落客区尊享礼序归家,通过石材、铝板的元素,构建出极具质感的空间和松弛氛围,令临港的归家仪式感焕然一新。通过归家动线设计:酒店式环岛落客区、地库坡道星光穹顶天幕、水系归家景观轴、双精装大堂打造,每一步都辉映着业主的尊贵身份。
这份产品突破性,体现在一环两轴六园景观匠心打造上。
绿岸森谷里的家,这里环绕着流水、树木、鲜花、山丘、公园与阳光。以【一环两轴六园】的空间分区,打造出:尊崇礼序归家、简约艺术空间(架空层泛会所打造)、热烈沉浸自然氛围、丰富的生活场景(儿童花园等)。致力打造 • 自然艺术花园社区,唯美而灵动,让家与自然零距离。
特发·香阅里预约热线☎:400-8080-420✅✅
这份产品突破性,也体现在车库星空顶坡道打造上。
相信很多人都被临港中建玖海云天的劳斯莱斯星空顶地库刷屏过。劳斯莱斯星空顶车库也已然成为上海中高端豪宅产品的标配。但临港因为现有楼盘基本为22-23年推售,产品设计和打造上必然会和潮流存在滞后,而且我们也无法要求,在之前一房难求的市场下,开发商去主动耗费成本去打造品质和迭代产品。本次特发·香阅里诚意重金打造的地库星空顶坡道,让归家仪式感进一步拉满。
特发·香阅里预约热线☎:400-8080-420✅✅
艺术源自生活 |FashionTime
"
我们都知道,上海之前“7090政策”,以及出让文件上对户型配比都有硬性要求“中小户型占比60%”的约定,这就导致临港在售楼盘所做出的产品非常相似,同质化较为严重,而最终客户只能被迫买单。
作为临港在售项目上车门槛最高的社区之一,特发·香阅里的魅力,来自于它纯粹的大户型产品定位,天然与市场产品形成互补。同时纯粹的大户型也必然造就纯粹的高阶业主圈层。

特发·香阅里预约热线☎:400-8080-420✅✅
纯大户型+真改善
精装3.0时代革新者
12幢14-16层的小高层社区,联动价34500元/㎡,主力109-170㎡纯改善大户型产品,让特发·香阅里成为滴水湖畔真正的“非富即贵”。
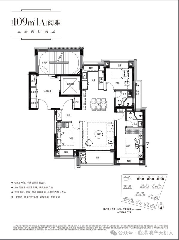
据天机了解,项目首推预计为109㎡三房两厅两卫,118㎡四房两厅两卫,170㎡大四房两厅三卫。

特发·香阅里预约热线☎:400-8080-420✅✅
特发·香阅里109户型做到全屋四飘窗、南北通透、飞机户型的配置同时客餐厅空间非常方正,一眼就能看出尺度感的差异,舒适度极佳。
而临港在售的更多的是因高层消防连廊导致的非真正意义上南北通和私密性差的“卧室集聚”户型。

特发·香阅里预约热线☎:400-8080-420✅✅
建面118㎡四房两厅两卫户型整体采用的罕见的全屋6飘窗+无连廊南北通+四开间朝南+类一梯一户设计。单凭这三点,已经超越临港绝大多数如今的产品!
入户门厅不再是单纯占用空间,浪费得房率的“鸡肋”,而是彻底释放出来,拥有更多归家仪式感、私密性及功能空间的附加使用面积,让双国企打造的环湖公园人居封面作品118㎡四房更显阔绰。

特发·香阅里预约热线☎:400-8080-420✅✅
在临港滴水湖畔入手建面约170㎡首排公园无慕视野+直面荣耀之环+毗邻滴水湖北站+105环湖北三路而居,又是临港产品力品质及装标拉满的超级改善4房,本身就是极为稀缺的机遇。
4房3卫,类一梯一户设计,不仅私密性好,安全性高,出行方便,还能大幅度提高业主享有的公区空间。三个卧室+超大横厅朝南,南向15.6米左右面宽,尽览首排公园视野,双套房设计,让170㎡的空间,装得下四代人的欢声笑语,却装不满生活的可能性——这才是真正的传世之宅!
最后,高定奢装---重塑临港封面之作,精工品质---标杆人居。
项目14-16层臻品小高层匠心打造、双精装大堂+地库坡道星空顶配置,归家即享视觉盛宴,【一环两轴六园】景观布局+架空层泛会所【四大主题】打造,赋能全龄沉浸园林生活场景,无不彰显重塑临港封面作品的匠心。
精装交付配备中央空调、新风系统、地暖三大件,同时品质细节升级:增加电视背景墙岩板交付、厨房增配洗碗机和主卧配备智能马桶,以超越板块的悉心细节,诠释“好房子回归居住的本质”。
特发·香阅里预约热线☎:400-8080-420✅✅