叠墅户型!远香湖C位 ⫸⫸⫸招商林屿湖畔售楼处电话: 400-8787-740【已认证】⫷⫷⫷ 将推约110-145㎡高层&160-170㎡叠墅!



叠墅户型首曝:⫸⫸⫸招商林屿湖畔售楼处电话: 400-8787-740【已认证】⫷⫷⫷
建面约168m下叠,4房2厅3卫,共计约38套,独立入户玄关,附带地下室+花园,首层横厅+南向次卧+北向1厨1卫,二层三个卧室全朝南+北向公共休闲空间;边套户型客厅以及主卧为270°飘窗!
下图为边套户型过程稿,红框线范围内可能会对另外一个次卧的飘窗位置进行优化,优化为阳台,也就是南白两个次卧均带阳台!⫸⫸⫸招商林屿湖畔售楼处电话: 400-8787-740【已认证】⫷⫷⫷

⫸⫸⫸招商林屿湖畔售楼处电话: 400-8787-740【已认证】⫷⫷⫷
建面约163m上叠,4房2厅3卫,共计约38套,上叠的户型布局其本与下叠一致,附赠南北露台,边套户型的客厅以及主卧同样也是270°飘窗!⫸⫸⫸招商林屿湖畔售楼处电话: 400-8787-740【已认证】⫷⫷⫷
下图为边套户型过程稿,红框线范围内可能会优化,一是客厅飘窗位置可能会优化为阳合,变为南向双阳台;是六层南白次卧飘窗位置优化为露台,两个次的露合连通!

⫸⫸⫸招商林屿湖畔售楼处电话: 400-8787-740【已认证】⫷⫷⫷
建面约165m大平层,4房2厅3卫,共计约37套,一梯一户,五开间朝南,约8.6米横厅,双套房设计,边套户型主卧为270°转角飘窗!⫸⫸⫸招商林屿湖畔售楼处电话: 400-8787-740【已认证】⫷⫷⫷
下图为边套户型过程稿,红框线范围内可能会对餐厅位置飘窗进行优化,优化为阳合,使客餐厅阳台贯通!

⫸⫸⫸招商林屿湖畔售楼处电话: 400-8787-740【已认证】⫷⫷⫷
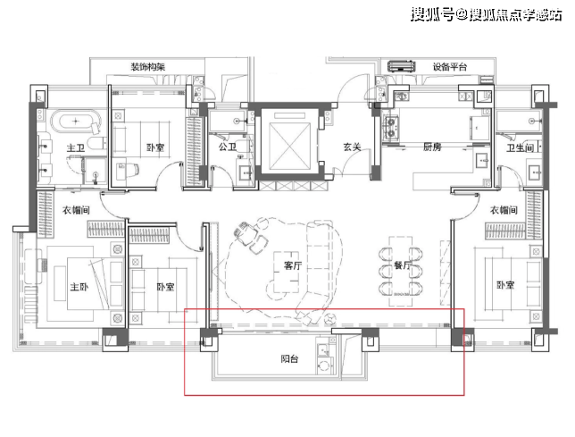
高层户型图:
⫸⫸⫸招商林屿湖畔售楼处电话: 400-8787-740【已认证】⫷⫷⫷
⫸⫸⫸招商林屿湖畔售楼处电话: 400-8787-740【已认证】⫷⫷⫷
⫸⫸⫸招商林屿湖畔售楼处电话: 400-8787-740【已认证】⫷⫷⫷
01.
基本信息
3月3日,上海2025第二批次土拍,经过49轮竞价,招商蛇口以266030万元的总价摘得嘉定新城远香湖F03A-4地块,溢价率30%,成交楼板价约31850元/㎡。⫸⫸⫸招商林屿湖畔售楼处电话: 400-8787-740【已认证】⫷⫷⫷
⫸⫸⫸招商林屿湖畔售楼处电话: 400-8787-740【已认证】⫷⫷⫷
高品质建设指标:商品住宅装修标准3000元/㎡,公共服务设施1500㎡,高端人才住房配建比例0.2%。

⫸⫸⫸招商林屿湖畔售楼处电话: 400-8787-740【已认证】⫷⫷⫷
该地块出让面积37966㎡,容积率2.2,纯住宅用地,限高60米。地块要求中小套型比例60%,需配建5%保障房,2%高端人才住房。
项目设计方案发布:
⫸⫸⫸招商林屿湖畔售楼处电话: 400-8787-740【已认证】⫷⫷⫷
根据设计方案显示,项目拟建8幢16-17F高层住宅(含17F保障房)、5幢6F多层住宅以及若干社区配套用房,共计规划686户;⫸⫸⫸招商林屿湖畔售楼处电话: 400-8787-740【已认证】⫷⫷⫷
小区人车分流;车位比约1:1.8,社区内部有水景、地上泛会所+地下会所、下沉式庭院。
公区设计方面,北区设有水景和风雨连廊,还有10m高超奢华入户大门,且小区部分人车分流。在层高方面预计都将超3m。⫸⫸⫸招商林屿湖畔售楼处电话: 400-8787-740【已认证】⫷⫷⫷
项目外立面要求采用石材、铝板等材质,金属部分应采用铝板、紫铜等防锈防腐蚀金属材料。
⫸⫸⫸招商林屿湖畔售楼处电话: 400-8787-740【已认证】⫷⫷⫷
按照指标要求,该项目肯定是嘉定新城未来的品质新标杆,整体套型也更适配改善客群。
项目是嘉定新城远香湖中央活动区最后一块拼图,就位于远香湖公园的南侧,与11号线嘉定新城站直线距离约1.7公里。招商嘉定新城项目东至益飞路、南至希望路、西至地块边界、北至伊宁路,虽然不近地铁,但位于嘉定新城的核心位置,是远香湖中央活动区最后一幅宅地。⫸⫸⫸招商林屿湖畔售楼处电话: 400-8787-740【已认证】⫷⫷⫷
⫸⫸⫸招商林屿湖畔售楼处电话: 400-8787-740【已认证】⫷⫷⫷
这里成片的商品房大多建成于2010年以后,整体城市界面崭新,从控规也能看出,项目周边学校、商业、办公和绿地公园应有尽有,且大多配套都是现成的。
⫸⫸⫸招商林屿湖畔售楼处电话: 400-8787-740【已认证】⫷⫷⫷
嘉定新城远香湖CAZ定位嘉定新城的综合功能中心与城市形象集中展示区,集聚国际住区、大型商业集群、摩天地标集群、科创科研企业集群、国际教育文化等功能为一体。(规划来自上海嘉定微信公众号)
整个片区总开发体量约531.4万㎡,规划公共服务建面约27.7万㎡,教育科研设计建面约71.6万㎡,商办体量约284.1万㎡。⫸⫸⫸招商林屿湖畔售楼处电话: 400-8787-740【已认证】⫷⫷⫷
这里将打造总部经济集群,涵盖汽车城、智能传感、瑞金创新中心精准医疗特色产业等,国北科技先进金融中心、世界500强绿地集团、海螺创业等企业总部已相继官宣落户。北侧有远香湖、保利大剧院、嘉定图书馆老三大件配套,以及地标级超高层建筑凯悦酒店。

⫸⫸⫸招商林屿湖畔售楼处电话: 400-8787-740【已认证】⫷⫷⫷
未来,远香湖核心区还将建设文化环、未来塔、活力谷等城市“新三件套”,也在项目周边。文化环:除了现有嘉定图书馆、保利大剧院、江南书院、尚画美术馆外,围绕着远香湖未来还将打造立体儿童乐园、航模活动中心、嘉昆太路演中心等一系列高能级文化设施。
⫸⫸⫸招商林屿湖畔售楼处电话: 400-8787-740【已认证】⫷⫷⫷
未来塔:位于CAZ的正中央,建成约300米,将成为嘉定甚至是上海西北第一高楼,是真正的C位地标
活力谷:集商业和办公于一体的休闲创意街区。周边现有教育资源非常丰富,包括上海市实验学校嘉定新城分校(九年一贯制公办学校)、远香湖幼儿园、中福会新城幼儿园、嘉定新城实验第二小学、马陆小学、上海市育才中学等。周边大体量商业体环伺,包括西云楼、宝龙广场、万达广场、大融城、理想之地配套商业(在建)等近40万方商业。
⫸⫸⫸招商林屿湖畔售楼处电话: 400-8787-740【已认证】⫷⫷⫷
⫸⫸⫸招商林屿湖畔售楼处电话: 400-8787-740【已认证】⫷⫷⫷
周边有三甲医院瑞金医院北院、嘉定区妇幼保健院、上海嘉定中医医院嘉定新院等优质医疗资源。
⫸⫸⫸招商林屿湖畔售楼处电话: 400-8787-740【已认证】⫷⫷⫷
所以综合来看,项目品质应该还是能得到一定保障的;目前该地块的关注度也很高,优势在于其位于嘉定新城核心区域,周边配套很成熟,一路之隔就是远香湖公园;也是目前远香湖中央活动区最后一块住宅用地,存在一定的稀缺性,感兴趣的客户可保持关注,预计6-7月份左右即可入市!