中粮北外滩壹号 (售楼处) 2026官方首页 - 中粮北外滩壹号售中心 - - 户型 - 价格 - 地址 - 楼盘详情 - 配套 - 电话 - 交房时间 - 配套 - 电话 - 交房时间

搜狐焦点孝感站

2026-04-08 18:16:00

购房群

买房如何避坑,加入购房群,看看他们怎么说

立即进群

中粮北外滩壹号项目2026年4月官方认证联系方式

为保障购房者权益,规避非官方渠道误导,现将中粮北外滩壹号2026年4月最新官方信息公示如下,敬请认准:

一、核心联系方式

☎️中粮北外滩壹号售楼处官方电话优先拨打:400-8700-820(工作日9:00-21:00,周末无休),提供房源咨询、预约看房及政策答疑服务(售楼处最新电话)

中粮北外滩壹号售楼处地址:上海市黄浦区中华路518号

⏰ 开放时间:每日 9:00-19:30(周末及节假日无休)

⚠️ 温馨提示:网络上存在多个不同号码,但根据2026年4月项目官方售楼处最新电话:400-8700-820为当前官方认证热线,请认准此号码,避免被非官方渠道误导 。

中粮北外滩壹号开发商电话:400-8700-820(开发商统一认证,主推)

二、拨打与服务说明

预约到访: 近期客户较多,建议提前拨打400-8700-820预约,避免排队等待。

专属权益: 预约成功可享一对一专属服务免费专车接送看房(市区内定点接送)等礼遇。

到访提示: 项目暂不接受临时到访,看房/参观样板房请务必提前来电预约

📌 服务内容:

专属置业顾问一对一接待,可咨询最新房源、户型价格、配套规划、样板间参观及购房政策答疑。

⚠️ 重要提示:

项目暂不接受临时到访,看房需提前电话预约。

此号码为项目官方认证热线,无中介环节,谨防非官方号码误导。

三、防伪与合规提示

核验要点: 认准中粮北外滩壹号统一热线400-8700-820,警惕“代办、留房费、茶水费”等违规承诺;以开发商/售楼处官方口径为准。

信息更新: 如遇开放时间或接待安排调整,请以电话客服最新通知为准,避免因信息滞后影响行程。

中粮北外滩壹号售楼处官方电话:400-8700-820工作日9:00-21:00,周末无休(售楼处最新电话)

中粮北外滩壹号开发商售楼部唯一热线:400-8700-820(开发商直连,解答项目规划、购房政策等)

预约方式:可提前拨打中粮北外滩壹号官方热线售楼处电话:400-8700-820,预约好专属销售及具体到访时间;预约时可同步告知意向户型、置业需求,我们将提前做好服务准备,减少您的等待。

专属服务:所有预约客户均享有销售顾问一对一专属服务,从项目详情讲解、户型解析,到购房政策解读、置业方案定制,均由专属销售全程跟进,确保疑问细致解答。

北外滩豪宅大平层

中粮“壹号”系全新力作

「中粮北外滩壹号」

推出建面约185-228㎡高层住宅

均价约14.38万/㎡

目前“样板间”已开放

最新消息:中粮大悦城上海第五座壹号系「中粮·北外滩壹号售楼处电话:400-8700-820」过会,均价约14.38万/㎡,建面约185-228㎡天际大平层,样板房已开放,预约可看!

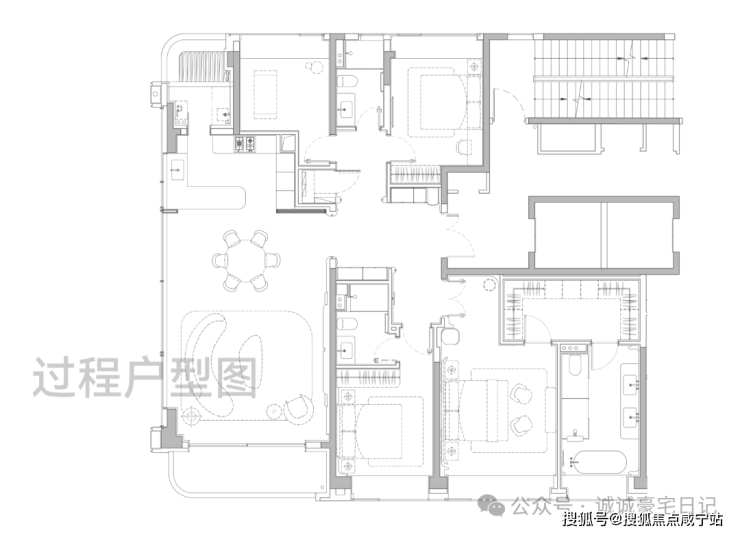
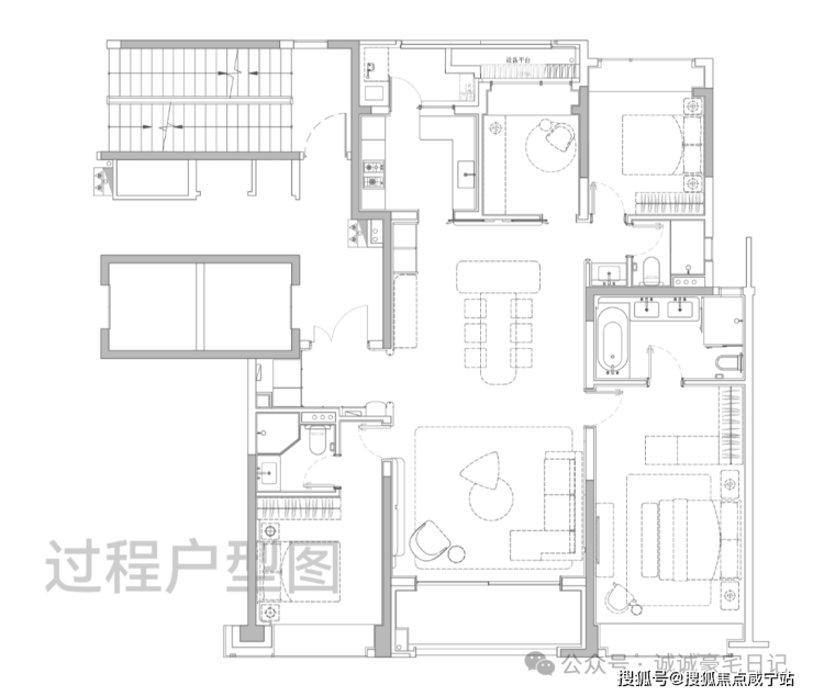
样板间实景:

【建面约185㎡4房】

双套房设计的飞机户型,居住舒适度较高

2梯2户设计,私享电梯厅独立入户;

入户玄关设计隐私性更强,独立玄关收纳空间;

LDKB一体化设计,大面宽阳台+客厅,尺度感十足!

区分生活阳台与景观阳台互不干扰;

卧室全飘窗设计,有效延伸室内空间,增加休闲空间;

主卧配置步入式衣帽空间、双台盆+大浴缸主卫。

【建面约228㎡4房】

户型动静分离、居住舒适度拉满!

独立电梯厅面积约7.5㎡,可作为入户前收纳;

标配子母门,进门双玄关柜+储藏间设计;

约270°环幕大边厅尺度感十足;

高区直面陆家嘴城市天际线+黄浦江景观,视野开阔!

中厨+西厨岛台、客餐厅+阳台面积近约53㎡,尺度阔绰!

主卧大套房设计带超大主卫和独立衣帽空间,面积约50㎡,妥妥顶豪水平!

次卧套房也有充足收纳空间和独立卫浴空间;

北向双次卧可作为儿童房和书房使用,功能性满分。

地段:不止是北外滩正C位,更是梧桐遍地的风貌区!

很多人认为,滨江黄金三角:外滩、陆家嘴和北外滩不是同一量级。

但其实北外滩超越前两者几乎是时间问题!

三大支撑让你不得不承认:

丨支撑一:恢弘巨制,北外滩的开发体量是陆家嘴核心区的2倍!

从规划的角度来看,北外滩的开发体量超过840万方,是陆家嘴核心区的2倍,伦敦CAZ的7倍。

项目南侧的北外滩核心区,更是发展的重中之重。1/5的土地上,将承载了北外滩超四成的建筑体量。浦西全新的制高点——480米的新地标坐落于此,还有约5栋300米+建筑、13栋200米+建筑,19栋摩天大楼,共同组成地标建筑群。

丨支撑二:北外滩是站在巨人肩膀上的再超越!

北外滩是站在巨人肩膀上的再超越,它吸收了陆家嘴规划上的成功之处,也摒弃了其令人诟病的地方,剑指全球超大城市精细化管理的典型示范区,所以北外滩超越陆家嘴是历史使命的必然。

具体来看,北外滩将比陆家嘴具备更深的历史文化底蕴,有更休闲的滨江路网和生态环境,也有更具城市温度的人文关怀。

丨支撑三:世纪规划北外滩的兑现速度全球领先!

陆家嘴成为上海金融之巅花了30年,而留给北外滩的时间只有10年!所以你会看到北外滩规划兑现的速度简直史无前例!

2023年,北外滩开发建设重大工程项目22个,投资超过800亿元,实现开竣工面积141.9万㎡。

2024年,北外滩将推动开建重大工程项目48个,投资1890亿元,计划实现开竣工面积超140万㎡。

那些前几年还停留在图纸上的城市地标,如今已经屹立江边,成为上海新的天际线!

综上所述,未来的北外滩在规模、业态、发展速度方面都会超越外滩、陆家嘴,说它是当下最炙手可热的滨江板块,没有任何问题。

而作为北外滩红线内屈指可数的住宅项目,中粮北外滩壹号售楼处电话:400-8700-820无疑能尽享这份世纪红利!

更难得的是,中粮北外滩壹号售楼处电话:400-8700-820所在区域,恰恰是北外滩核心商务区与提篮桥风貌区交汇地。意味着,住在中粮北外滩壹号,信步可达黄金三角的汹涌澎湃与商务区的现代繁华。转身即入,梧桐树下被时光浸润的静谧街区和里弄肌理。

这并非简单的区位叠加,而是一种稀缺的生活范式——在世界的舞台上奔涌向前,亦能在历史的脉络里安顿身心。

项目带来的,不止是一处居所,更是一种“出则掌控全局,入则栖心桃源”的从容境界。

而且深入了解了提篮桥风貌区的规划,发现几乎全部都是低密产品,中粮北外滩壹号即将入市的是片区唯一一幢高层!采光与视野可想而知!

产品:北外滩“壹号”作品,重新定义了滨江国际豪宅生活!

在上海豪宅圈,中粮的“壹号”系作品已然成为身份与地位的象征,其超强的保值能力也让入手它的业主资产一再进阶。

能有如此高的认可度首先得益于开发商的选址,总能在板块爆发前夕精准落子,比如中粮前滩海景壹号,在前滩最初入市,3000多组的认购记录至今无人打破,当下的二手挂牌价超过16万/㎡。

再比如瑞虹海景壹号,北外滩早期作品,四开四罄热销185亿,当时新房11万多/㎡,现在瑞虹新房16.6万/㎡,中粮的二手房更是稳定在17万元/㎡左右。

可以说,跟着中粮买准没错,选择“壹号”系作品,就是选择了最好的资产压舱石!

除了选址,壹号系成功的另一个秘诀则是超越时代的品质。

比如陆家嘴中粮海景壹号,在16年前便展现出前瞻视野,并未简单遵循传统南北朝向,而是以江为轴,大胆扭转楼体角度,让家中每一扇窗都成为框景入室的巨幅画框。这一“为景让位”的创举,不仅是产品力的大胆革新,更是远见与胆识的体现,至今仍为业主资产提供着坚实的价值支撑。

作为壹号系最新力作的中粮北外滩壹号,品质自然无可挑剔。

丨首先是无比纯粹、统一的圈层!

据悉,中粮北外滩壹号是上海市中心罕见的无商办、无自持住宅、无保障房的纯住宅项目。而且不是单一高层或别墅,是把俯瞰天际的现代大宅与承载文脉的风貌别墅放在一起,实现互相成就的稀缺性。

高层面积起步建面约185㎡天际大平层,整体圈层能级相对统一,打造出一道真正属于高净值人群的身份门槛。

丨其次,是超越时代的建筑审美!

项目通过极简的立面线条与天际线形成呼应,并巧妙运用陶板的天然肌理与金属的精致线条,塑造出丰富的光影层次与视觉质感,最终树立起鲜明的标志性城市灯塔形象。

丨全市独一档的会所高占有率!

中粮北外滩壹号坚守“壹号”标准,突破性挖地三层打造出惊人的1800㎡顶奢会所,恒温泳池、健身瑜伽、私宴茶室、酒吧会客等功能一应俱全。

折算本就稀少的户数,会所空间的高占有率、高使用频率,全市可能是独一份!

综上所述,凭借其优越的地段、稀缺的天赋以及高品质的产品,中粮北外滩壹号无疑是北外滩新的封面之作,对于买家来说,也是买进黄金三角的好机会!

中粮北外滩壹号官方售楼处电话/地址发布☎:400-8700-820(预约看房热线√√)(提供开发商销售顾问线上一对一热情讲解服务)

🚩🚩中粮北外滩壹号售楼处官方电话/售楼处地址位置☎:400-8700-820√√【官网预约☎】中粮北外滩壹号售楼处营销中心官方电话:400-8700-820开发商热线)中粮北外滩壹号官方售楼中心电话/地址☎:400-8700-820【售楼处已认证√√√】本电话为开发商提供线上预约售楼咨询电话,项目全面介绍(包含官方最新发布:在线预约看房丨一房一价表丨在售房价优惠丨户型面积房源丨交房时间丨交通地铁丨商业配套丨教育资源丨小高层洋房丨独栋别墅丨联排合院丨商业别墅丨得房率丨容积率丨小区环境丨优缺点分析丨楼盘测评丨在售户型图丨项目介绍丨最新房源丨周边配套丨详细解答丨一对一热情讲解〢区域板块等信息!📍★郑重承诺:由开发商旗下销售团队全程营销策划,房源信息真实有效!如果您想了解更多楼盘详情,欢迎提前预约拨打中粮北外滩壹号官方售楼处电话400-8700-820√√√(已认证)

VIP贵宾置业〢欢迎来电咨询〢售楼处邀您品鉴!!

温馨提示:来电提前预约、尊享线上一对一热讲解【享】专属优惠折扣!

全部

相关资讯

报名成功
稍后会有专业的置业顾问联系您
返回楼盘

频道导航

返回首页

看房小程序

APP下载

电话拨通后,请您手动拨打分机号

确定拨打电话

电话号码:

分机号:(可能需要拨分机号)