服务时间:9:00-21:00,周末无休
预约提示:案场为预约制,需提前电话预约看房
温馨提示:临时到访建议提前 1-2 小时致电告知,避免接待不及时。
售楼处电话:400-9966-940⭐⭐
售楼处预约热线☎:📞 400-9966-940☎☎🏠🏠【官方认证】📱✔✔✔
(温馨提示:本项目参观样板间采取预约制,为了不耽误您的行程,过来参观请提前来电进行预约看房或咨询项目详情)

区域介绍
越秀外滩樾直线距离外滩源仅约1.2公里,直线距离北外滩商圈约500米,直线距离瑞虹商圈约900米,直线距离陆家嘴商圈约1500米!
这样的地段天赋,保证了业主能在世界都心享全球封面级生活!
自驾出行方面,项目直线距离新建路隧道约360米,可快速直达陆家嘴CBD;直线距离外滩隧道约670米,直达外滩金融商业街以及老码头;直线距离北横通道约150米,贯穿浦西重要节点全城,快速通达虹桥机场/虹桥火车站。
公共交通方面,项目周边4、10、12、19号线(在建中)四轨交汇。其中直线距离轨交4/10号线海伦路站约850m,进站后3站可达南京东路,6站可达新天地。
地理位置示意图,仅供参考
医疗资源方面,项目直线距离3公里范围内有新华医院(儿科专长)、复旦大学附属妇产医院、上海市第一人民医院、上海东方医院(血管外科专长)4所三甲医院。
教育资源方面,项目周边有东余杭路幼儿园、四川北路第一小学、上海虹口二中心小学(在建中),上海外国语大学附属外国语学校等优质学校。
示意图,图片来源于网络
尤其值得一提的是生态休闲资源。
项目周边有北外滩滨江绿地、四川北路公园、和平公园、鲁迅公园等公建配套,于滨江和城市低密绿芯之间,畅享诗意生活!
示意图,图片来源于网络
当然,当下显然并非项目的价值顶点,因为项目还坐拥北外滩的世纪红利!
要知道,作为滨江黄金三角的一部分,外滩、陆家嘴已臻成熟增量有限。而北外滩正处于价值大爆发的阶段。
据统计,北外滩规划了约650万方商办!对比几大当红炸子鸡板块,北外滩的商办体量几乎是徐汇滨江的2倍、前滩的3倍、世博的5倍!

示意图,图片来源于网络
另外,作为与外滩陆家嘴平起平坐的世纪规划,北外滩商办地标兑现的速度简直史无前例!
· 上海北外滩中心(480米地标)预计2030年竣工、北外滩90街坊(180米地标)预计2030年竣工!
在这样的背景下,越秀外滩樾无疑是这个时代的馈赠,且买且珍惜!
楼盘介绍
去年开始,上海顶豪圈层出现了一个新物种,那就是地段与产品均位列塔尖序列的风貌别墅,这是天生的藏品级住宅。
但是,随着风貌别墅供应量的井喷,风貌别墅好像变的也没有那么稀缺。
同时,受制于保护规制,里弄风貌居住舒适度偏低成为此类建筑较为显著的居住感受。
比如黄浦等区域,风貌以保留改造与更新改建为主,需要沿袭之前的结构与风格。这些旧里发展出来的风貌,传承了海派文化精髓,但也继承了石库门旧里宽面小进深长,且窗墙比低的“缺点”。
正是因为以上2点,风貌别墅的藏品价值受到了一定质疑!
如今,打破质疑的破局者来了!
越秀外滩樾占位直线距离外滩约1.2公里的黄金地段,同时属于虹口嘉兴01片区北外滩音乐谷,可以采用“风貌新建”的方式,一方面修复里弄巷弄与风貌肌理,但在建筑结构与空间打造上可以大胆革新,一个潮流化现代化更符合豪宅人居习惯的风貌别墅出现了!


项目实景图
项目实景图
项目实景图
一石一木,一水一庭,尽是自然落笔。晨露未晞时,薄雾轻笼庭院;暮色四合处,斜阳漫染白墙。所谓大隐于市,不过如此!
项目实景图
项目实景图
项目实景图
项目实景图
所谓禅意,不过是在快时代里为您留住慢的资格。据悉项目示范区已经实景呈现,如果你也想偷得浮生半日闲,欢迎到现场参观!

项目实景图
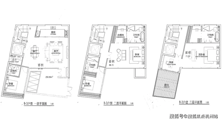
目前市面上大多数风貌别墅受限于指标,普遍采用超高层+别墅的高低配组合。客户花了买别墅的钱,却享受不到应有的生活质感。反观越秀外滩樾,妥妥的容积率1.3纯墅区,纯粹的墅居氛围非常难得。
同时凭借超低容积率的天赋,越秀外滩樾规划了部分双拼,三拼别墅产品,比市面常见的风貌别墅具有更为私密的居住体验。
我们可以畅想一下住在越秀外滩樾的日常生活。
项目地上3层,自带庭院。一楼的庭院,将是你栽花听雨的江南;三楼的露台,将是你仰望星空的避风港,在越秀外滩樾,自然将不是风景,而是生活本身。
项目实景图







如有问题欢迎来电咨询,专业一对一热情服务,让您用专业眼光去买房。楼盘项目全面介绍(包含楼盘简介,均价,房价,现房,期房,别墅,叠墅,大平层,价格,楼盘地址,户型图,交通规划,备案价,备案名,项目配套,样板间,开盘时间,认筹时间,楼盘详情,售楼处电话,最新消息,最新详情,周边配套,一房一价,最新进展等详情咨询)楼盘详情丨价格丨更多优惠丨机不可失丨欢迎致电丨诚邀品鉴!售楼处位置丨特价房丨工抵房丨剩余房源丨户型图丨最新消息配套设施是反映楼盘生活便利程度的重要因素,包括小区内的运动场所、停车场、公共设施等。物业服务则直接关系到居住者的生活品质,包括安保服务、保洁服务、设备维护等。具体到街道、区域名称,临近交通线路、自驾路线。商业、教育、医疗等配套设施分布,总占地面积、总建筑面积数据,容积率,绿化率,得房率,梯户比,物业费,小高层、洋房、高层、独栋别墅、叠加别墅、联排别墅,总户数、楼层分布,面积范围,均价/总价。首付比例、贷款政策,精装交付,含中央空调、地暖等系统,70年住宅产权,物业公司及资质,预计交付时间或施工进度,当前购房优惠政策