信达·信安里(营销中心)首页网站-信达·信安里销售中心(售楼处)-信达·信安里楼盘欢迎您-地址-价格-户型-小区环境-楼盘详情-交房时间-周边配套-售楼处电话

搜狐焦点孝感站

2025-07-17 07:52:00

购房群

买房如何避坑,加入购房群,看看他们怎么说

立即进群

上海静安【信达·信安里】

售楼处电话最新发布:400-8855-420【售楼中心】

官方电话/售楼处地址:400-8855-420【预约一对一热情服务】

老静安内环内曹家渡板块

「信达信安里」

建面约270-525㎡别墅

网传户型图全面曝光

正在认购

信达信安里售楼处电话:400-8855-420

2022年6月,静安区人民政府官宣了曹家渡社区C050301单元4-3b地块的出让公告。

信达信安里售楼处电话:400-8855-420

最终,上海信达银泰置业有限公司(信达)作为静安区曹家渡社区C050301单元4-3b地块的开发建设实施主体,该地块形成“净地”后实施出让。信达拿地的价格在21.08亿元,折合楼板价约为81484元/㎡,叠加税费、保障房之后,综合楼板成本还要更高。

信达曹家渡项目(曹家渡社区C050301单元4-3b地块)设计方案公示!同时曝光了户型图,拟建16幢住宅!包括15栋2层住宅,1栋7-18层住宅(包含保障房)及配套用房。建面约30-66㎡一房,约442-520㎡别墅待入市!

信达信安里售楼处电话:400-8855-420

同时,还涉及历史风貌保护建筑。根据规划建设要求,地块内肌理保护范围占比不小于51.5%,肌理保护范围的用地面积不少于5332平方米,其具体边界和占地规模以建设项目规划管理阶段审定的方案为准。

信达信安里售楼处电话:400-8855-420

项目由一栋18层高层建筑,十五栋低层石库门风貌的建筑以及一栋配套用房组成,地下为地下三层。

信达信安里售楼处电话:400-8855-420

信达信安里售楼处电话:400-8855-420

户型图:(仅供参考,以开发商正式公示为准)

建面约90m²1房2厅1卫

信达信安里售楼处电话:400-8855-420

建面约100m²2房2厅1卫

信达信安里售楼处电话:400-8855-420

这个项目的户型图不管是高层还是低层大面积别墅都是特别的多,好了,然后让我们来看看部分阔绰空间别墅产品的网传户型图,先上2号楼:

2号楼别墅东边套

信达信安里售楼处电话:400-8855-420

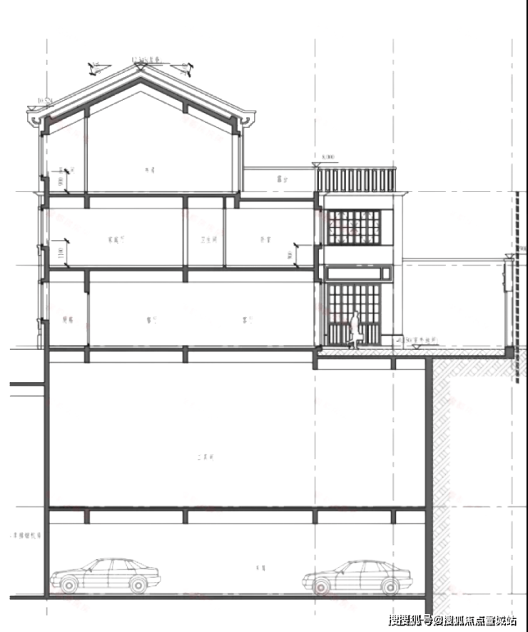
小区的2号楼别墅为双拼,东边套为地上1-2层外加阁楼。建造风格应该也是新里弄的石库门样式了,看看下面的剖面图就知道了:

2号楼别墅剖面图

信达信安里售楼处电话:400-8855-420

然后来看看6号楼别墅产品:

6号楼别墅

信达信安里售楼处电话:400-8855-420

信达信安里售楼处电话:400-8855-420

6号楼比较特别,是相对比较独立的类独栋了,标准地上3层,看看它的立剖面图:

信达信安里售楼处电话:400-8855-420

交通配套:项目地块位于静安历史风貌区内,约1KM范围内有2/7/11/13/14号线,分布武宁路、昌平路、隆德路、静安寺等市中心地铁站。

商业配套:项目周边有静安嘉里中心、恒隆广场、兴业太古汇、芮欧百货、张园、环球世界大厦、889广场等奢华地标林立。

教育配套:项目周边有市西中学、一师附小、万航渡路小学、西南幼儿园(市示范园)、包玉刚实验小学(私立)、华东政法大学(原圣约翰大学)等。信达信安里售楼处电话:400-8855-420

医疗配套:项目周边有:华山医院、上海市儿童医院、第一妇幼保健院、华东医院。

信达信安里售楼处电话最新发布:400-8855-420【售楼中心】

信达信安里官方电话/售楼处地址:400-8855-420【预约一对一热情服务】

1、什么是房产:房屋产权的简称。

2、什么是地产:是指土地财产。

3、什么是房地产:是房产和地产的总称。

4、什么是房地产业:从事房地产开发、建设、经营、管理以及维修、装饰和服务的综合性产业。

5、什么是房地产开发:是指在依法取得土地使用权的土地上按照使用性质的要求进行基础设施、房屋建筑的活动。

6、什么是土地开发:是将“生地”开发成可供使用的土地。

7、集体土地是指:农村集体所有的土地。

8、征用土地是指:国家为了公共利益的需要,可依照法律规定对集体所有的土地实行征用。

9、什么是土地所有权:是指国家或集体经济组织对国家土地和集体土地依法享有的占有、使用、收益和处分的权能。

10、什么是土地使用权的出让:指国家以协议、招标、拍卖的方式将土地所有权在一定年限内出让给土地使用者,由使用者向国家支付土地使用权出让金的行为。

11、什么是土地使用权转让:是指土地使用者通过出售、交换、赠与和继承的方式将土地使用权再转移的行为。

12、什么是地籍、产籍:是对在房地产调查登记过程产生的各种图表、证件等登记资料,经过整理、加工、分类而形成的图、档、卡、册等资料的总称。

13、生地是指:不具备开发条件的土地。

14、熟地是指:已完成三通一平(水、电、道路,土地平整)或七通一平,具备开发条件的土地。

15、什么是宗地:是地籍的最小单元,是指以权属界线组成的封闭地块。

16、什么是宗地图:是土地使用合同书附图及房地产登记卡附图。它反映一宗地的基本情况。包括:宗地权属界线、界址点位置、宗地内建筑位置与性质、与相邻宗地的关系等。

17、证书附图是指:房地产后面的附图,主要反映房地产情况及房地产所在宗地情况。

18、什么是物业管理:泛指一切有关房地产开发、经营、商品房销售、租赁及售后服务。

19、什么是业主委员会:是在物业管理区域内代表全体业主实施自治管理的组织。是代表

物业全体业主合法权益的社会团体,其合法权益受国家法律保护。

20、业主委员会是如何产生的:由业主大会从全体业主中选举产生。

21、住房补贴是指:国家为职工解决住房问题而给予的补贴资助。

22、房屋的所有权是指:对房屋全面支配的权利。

23、房地产交易的两种主要形式是:地产交易形式与房产交易形式。

24、建筑物是指:人工建造而成的房屋和构筑物。

25、构筑物是指:建筑物中除房屋以外的东西。

26、什么是期房:是指消费者在购买时不具备即买即可入住的商品房。

27、期房是如何介定的:房地产开发商拿到商品房预售许可证开始至取得房地产权证大产证或竣工验收合格可以直接入住使用)为止。

28、什么是预售合同:消费者在购买期房时签定的销售合同。

29、什么是现房:是指消费者在购买时具备即买即可入住的商品房,即开发商已办妥所售的商品房的大产证(或已经竣工验收合格并交付使用)的商品房。

30、什么是毛坯房:房地产商交付屋内只有门框没有门,墙面地面仅做基础处理而未做表面处理的房叫毛坯房。

31、什么是成品房:是指对墙面、天花、门套、地板实行装修。

32、什么是商品房:是指以完全的市场价格向购房者出售的房子。

33、商品房预售是指:在房地产尚未建成以前,房地产的经销商在取得受买人一定数量的定金后,将期房出售给受买人。

34、商品房现售是指:指房地产开发企业将竣工验收合格的商品房出售给买受人。

35、二手房通常指的是:再次进行买卖交易的住房。

36、经济适用房指的是:面向中低收入家庭的普通住宅。

37、例出3种以上的安居房的种类:准成本房、全成本房、全成本微利房和社会微利房。

38、低层住宅的介定:1-3层的住宅。

39、多层住宅的介定:4-6层的住宅。

40、小高层住宅的介定:7-11层的住宅。

41、中高层住宅的介定:12-16层的住宅。

42、高层住宅的介定:16层以上为高层住宅。

43、超高层建筑的介定:总高度超过100米的建筑。

44、商品房的结构是指:房屋主体所使用的施工工艺和用材。

45、钢结构的意思是:承重的主要结构是用钢材料建造的,包括悬索结构。

46、钢混结构的意思是:承重的主要结构是用钢和混凝上建造的。

47、砖木结构的意思是:承重的主要结构是用砖、木材建造的。

48、砖混结构的意思是:主要是砖墙承重,部分是钢盘混凝土承重的结构。

49、框架结构的意思是:以钢筋混凝土浇捣成承重梁柱,再用预制的隔墙分户的结构。

50、开间指的是:一间房屋内一面墙的定位轴线到另一面墙的定位轴线之间的实际距离。

51、进深指的是:一间独立的房屋或一幢居住建筑内从前墙的定位轴线到后墙的定位轴线之间的实际长度。

52、层高指的是:下层地板面或楼板面到上层楼层面之间的距离。

53、净高指的是:下层楼板上表面到上层楼板下表面之间的距离。

54、占地面积指的是:地块的总面积。

55、1亩约等于多少平方米:666.66㎡

56、居住小区总用地指的是什么用地的总和:住宅总用地,公共建筑设施总用地,道路、广场用地、庭院、绿化用地的总和。

57、住宅总用地是指:住宅用地面积的总和。

58、公建总用地是指:小区内部公共建筑占地面积的总和。

59、建筑用地面积的介定:建设用地位置和界线所围合的用地之水平投影面积。

60、建筑基底面积是指:建筑物首层的建筑面积。

61、建筑高度是指:建筑物室外地平面至外墙面顶部的总高度。

62、房屋的基底面积是指:房屋的基底面积是指建筑物底层勒脚以上外围水平投影面积。

63、道路面积是指:小区内宽度大于1.5米道路的面积总和。

64、广场面积是指:停车、回车广场和有铺砌地面的场地面积之和。

65、庭院、绿化面积是指:小区内集中绿化带、小公园,以及公共活动场所等为小区所有居住人员共同使用权的绿化面积的总和。

66、假山、小池算不算庭院、绿化面积:算。

67、人均总占地面积(㎡/人)的计算公式:人均总占地面积=建筑红线内总用地÷本小区规划居住总人数。

68、人均住宅用地面积(㎡/人)的计算公式:人均住宅用地面积=小区内总住宅用地÷本小区规划居住总人数。

69、总建筑面积是指:小区内住宅、公共建筑、人防地下室面积总和。

70、人防地下室算不算在总建筑面积之内:算

71、住宅建筑面积是指:住宅建筑外墙外围线测定的各层平面面积之和。

72、套建筑面积是指:一套房屋的整体面积。

73、套建筑面积的构成是:套内建筑面积和套分摊的公用建筑面积

74、幢(栋)是指:一座独立的,包括不同结构和不同层次的房屋。

75、架空房屋是指:一般为底层架空,以柱子作为承重支撑物的房屋。

76、夹层是指:位于两自然层之间的楼层,指房屋内部空间的局部层次。

77、技术层的意思是:用作水、电、暖、卫生等设备安装的局部层次。

78、技术层层高在多少以上计算层数:2.20米以上的计算层数。

79、结构转换层是指:建筑物某楼层的上部与下部因平面使用功能不同,该楼层上部与下部采用不同结构类型,并通过该楼层进行结构转换,则该楼层称为结构转换层。

80、跃层式住宅是指:一套住宅占两个楼层,由户内楼梯联系上下层,上下两层完全分隔。

81、阁楼是指:利用房屋内的上部空间加建的楼层。

82、阁楼层高在多高以上计算面积:2.20米以上。

83、地上层数是指:即房屋的自然层数,指室内地坪±0.00以上的按楼板结构分层的层高在2.20米以上的楼层数。

84、地上层数用什么数表示:自然数。

85、地下层数是指:采光窗在室外地坪以下的,其室内层高在2.20米以上的地下室的层数。

86、地下层数用什么数表示:负数。

87、房屋总层数是指:房屋的地上层数与地下层数之和。

88、地下层数算不算在房屋总层数之内:算。

89、例出3个以上不算在房屋总层数内的建筑层:假层、夹层、阁楼、装饰性塔楼、楼梯间、水箱间。

90、柱廊是指:有顶盖和支柱,供人通行的建筑物,称为有柱走廊,简称柱廊。

91、骑楼是指:底层为有柱廊房,廊道上方建为楼房的一部分。

92、挑廊是指:指二层以上挑出房屋墙体外,有围护结构,无支柱有顶盖的外走廊。

93、门廊是指:建筑物门前有顶盖,有支柱或围护结构的进出通道。

94、门斗是指:支撑建筑物门前顶盖的是实体墙称为门斗。

95、檐廊是指:房屋檐下方两端有支撑墙体无柱的通道。

96、天棚是指:即天篷,有透明顶篷履盖的屋面。

97、晒台又称什么:露台。

98、露台是指:供人室外活动的上人屋面或底层地面伸出室外的有维护无顶盖的台面。

99、阳台是指:有永久性上盖、有围护结构、有台面、与房屋相连、可以供人活动或利用的房屋附属设施。

100、阳台的分类有:封闭式阳台和半封闭式阳台。

全部

相关资讯

报名成功
稍后会有专业的置业顾问联系您
返回楼盘

频道导航

返回首页

看房小程序

APP下载

电话拨通后,请您手动拨打分机号

确定拨打电话

电话号码:

分机号:(可能需要拨分机号)