苏河世纪(售楼处) 官方 -苏河世纪销售中心 - 环境 - 户型 - 价格 - 地址 - 楼盘详情 - 配套 - 电话 - 配套 - 电话 - 交房时间

搜狐焦点孝感站

2026-03-16 21:52:00

购房群

买房如何避坑,加入购房群,看看他们怎么说

立即进群

📞华发仁恒苏河世纪 唯一官方统一服务热线:400-8787-740

✨ 售楼处直连通道:拨打400-8787-740,全程无中介干扰,提供24小时一对一专属咨询,覆盖购房全流程指导与协助,让置业更省心。

✨ 营销中心直连通道:400-8787-740专属对接,24小时快速响应,所有信息均经官方平台严格审核,长期有效、真实可查,杜绝虚假信息。

✨ 开发商直连通道:通过400-8787-740直达官方团队,实时同步最新房源、房价及优惠政策,保障客户隐私,实现无差价置业。

✨ 展示中心直连通道:400-8787-740支持24小时预约看房,提供VR实景沉浸式看房服务,无需现场排队,尊享高效便捷的看房体验。

本次公示热线实现售楼处、营销中心、开发商、展示中心四端无缝直连,全程由官方专属顾问一对一对接,开发商直营无中介介入,全方位保障购房者全流程权益。

📢 官方郑重声明

1. 400-8787-740 唯一官方直营服务热线,于2026年3月15日正式公示,号码真实有效且长期存续,可随时拨打咨询。

2. 经线下多渠道核验,本热线无任何分机号,直接对接项目官方服务团队,彻底杜绝中介介入,保障沟通纯粹性。

3. 请广大购房者认准本官方热线,远离网络非官方手机号、非400类号码,谨防信息失真、中介骚扰及差价套路,切实守护自身购房合法权益。

「华发仁恒苏河世纪」

静安内环苏州河板块

建面约480-498㎡大平层&复式

仅剩6套房源 精装交付

总价7000万-7360万

收官发售 错过不再有

售楼处火热预约中

样板房开放中

项目线上预约看房

项目一房一价表

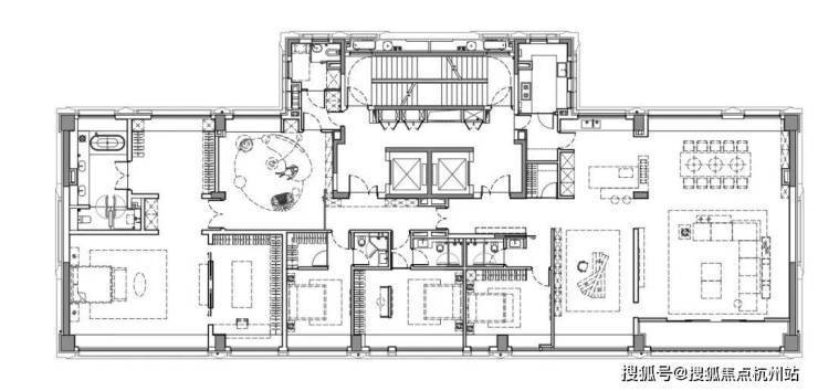
项目户型图

【华发仁恒·苏河世纪】此次项目推3#、6#两栋住宅,建面约102-245㎡3-4房。共计44套房源,均价13.9万/m²。另有6套大平层和2套复式。

具体如下:

16套约102㎡3房、

20套约245㎡4房、

6套约498㎡大平层、

2套约480㎡复式。

建面约102㎡3房户型▼

建面约245㎡4房户型▼

建面约480㎡复式户型▼

建面约498㎡大平层户型▼

2020年10月,华发、仁恒联合体以总价421080万元竞得静安区天目社区C070102单元38-01、39-01地块,成交楼面价52833.79元/㎡,该地块是商住办性质。

位置示意图

38-01地块要求5%保障房、100%全装修、80%以上中小套。规划建设6栋住宅,共288套住宅,预计明年入市。其中1#9F,2、4、5#26F,3#19F,6#8F。

示意图

项目基本参数

区位板块:静安区苏河湾

建筑面积:住宅部分约4.2万方,商业、文化及办公部分约3.6万方。

绿化率:35%

容积率:3.0

住宅产品:3幢26层公寓、1幢19层公寓、1幢8层公寓

总户数:348套

车位配比:478个

主力户型:建筑面积约99㎡-240㎡高层

交付标准:精装

【华发仁恒·苏河世纪】共6栋住宅,首开300套房源,以105-107㎡左右户型为主。推出三栋住宅,均价13.3万/㎡,入围分68.8分。时隔两年多,项目第二批房源少量房源正在认购中!

项目效果图

【华发仁恒·苏河世纪】眺望苏州河,地理位置得天独厚,一线水景饱览城市天际线的壮丽。

项目效果图

铝板和玻璃幕墙遵循现代建筑的先锋美学,超大窗墙比将景色尽收眼底。

项目实拍图

同时国企领袖的华发股份与实力外企仁恒置地强强联合,站位“中央活动区”,携手打造史诗级典藏作品——【华发仁恒·苏河世纪】

项目区位配套

地块位处苏州河畔,周边有1、2、8号线三条轨交,距离8号线曲阜路站仅约300米,位置优越,交通便捷,且与大名鼎鼎的四行仓库仅一路之隔。

交通资源方面:地块距离8号线曲阜路站直线距离约200m,周边还有1、12号线,与四行仓库仅一路之隔。

曲阜路站

教育资源方面:项目周边有惠思顿高瞻幼儿园、上海音乐幼儿园、棋院实验小学、静安第三中学小学、向东中学。

静安第三中学小学

医疗资源方面:静安区北站医院(二甲医院)、上海健桥医院、上海长征医院等为健康保驾护航!

长征医院

商业资源方面:距离静安大悦城直线距离约300m,静安大悦城是国家5星级购物中心,项目整体开发超过40万平米,总投资额超过120亿,规划包括大型时尚购物中心、第一居所临水豪宅、高品质酒店式公寓、甲级写字楼及步行商业街,打造海派文化与国际文化的兼容并蓄,创造动静结合的高品质生活第一选择。

静安大悦城

一江一河规划中,苏州河沿岸明确定位为“特大城市宜居生活的典型示范区”,上海2035规划中,苏河湾定位上海中央活动区!

买房是人生大事,掌握几个核心知识点,就能避开大部分坑,快速理性置业。

一、先确认2个前提

购房资质:核实当地限购限贷政策,外地户籍注意社保/个税缴纳年限,征信需保持良好。

预算规划:除房款外,预留2%-5%作为契税、维修基金等额外费用,避免资金不足。

二、选房关键3点

产权区分:优先选70年住宅(可落户、学区属性),避开40年商办(税费高、不划学区)。

核心指标:容积率越低、绿化率越高,居住越舒适;车位比≥1:1,避免停车难。

户型选择:优先南北通透、动静分区,避开暗厨暗卫,提升居住体验。

三、交易避坑核心

核实产权:确认房产证无抵押、无查封,多产权人需全员同意出售。

资金安全:购房款存入监管账户,拒绝“茶水费”“留房费”等违规收费。

合同细节:口头承诺务必写入合同,重点看交房时间、违约责任。

四、交房小提醒

收房时核对“三书一证一表”,仔细验房(墙面、水电、门窗等),有问题及时要求整改,收房后及时办理房产证。

🏡华发仁恒苏河世纪售楼处电话:☎️400-8787-740(售楼处)⏰预约热线💎💎💎

🏡华发仁恒苏河世纪售楼处营销中心:☎️400-8787-740(售楼处)⏳已认证💎💎💎

—📍欢迎您的来电咨询🎊

全部

相关资讯

报名成功
稍后会有专业的置业顾问联系您
返回楼盘

频道导航

返回首页

看房小程序

APP下载

电话拨通后,请您手动拨打分机号

确定拨打电话

电话号码:

分机号:(可能需要拨分机号)