
信达信安里售楼处电话:400 8855 420
上海静安信达信安里售楼处电话☎:400 8855 420(预约看房热线)
老静安内环内曹家渡板块
「信达信安里」
建面约270-525㎡别墅
网传户型图全面曝光
正在认购
信达信安里售楼处电话:400 8855 420
上海静安信达信安里售楼处电话☎:400 8855 420(预约看房热线)
如有问题欢迎来电咨询,预约来电尊享购房优惠,可预约案场内部销售人员,专业一对一热情服务,让您用专业眼光去买房。
信达信安里售楼处电话:400 8855 420
上海静安信达信安里售楼处电话☎:400 8855 420(预约看房热线)
2022年6月,静安区人民政府官宣了曹家渡社区C050301单元4-3b地块的出让公告。

信达信安里售楼处电话:400 8855 420
上海静安信达信安里售楼处电话☎:400 8855 420(预约看房热线)
最终,上海信达银泰置业有限公司(信达)作为静安区曹家渡社区C050301单元4-3b地块的开发建设实施主体,该地块形成“净地”后实施出让。信达拿地的价格在21.08亿元,折合楼板价约为81484元/㎡,叠加税费、保障房之后,综合楼板成本还要更高。
信达曹家渡项目(曹家渡社区C050301单元4-3b地块)设计方案公示!同时曝光了户型图,拟建16幢住宅!包括15栋2层住宅,1栋7-18层住宅(包含保障房)及配套用房。建面约30-66㎡一房,约442-520㎡别墅待入市!

信达信安里售楼处电话:400 8855 420
上海静安信达信安里售楼处电话☎:400 8855 420(预约看房热线)同时,还涉及历史风貌保护建筑。根据规划建设要求,地块内肌理保护范围占比不小于51.5%,肌理保护范围的用地面积不少于5332平方米,其具体边界和占地规模以建设项目规划管理阶段审定的方案为准。

信达信安里售楼处电话:400 8855 420
上海静安信达信安里售楼处电话☎:400 8855 420(预约看房热线)
项目由一栋18层高层建筑,十五栋低层石库门风貌的建筑以及一栋配套用房组成,地下为地下三层。


信达信安里售楼处电话:400 8855 420
上海静安信达信安里售楼处电话☎:400 8855 420(预约看房热线)


信达信安里售楼处电话:400 8855 420
上海静安信达信安里售楼处电话☎:400 8855 420(预约看房热线)
户型图:(仅供参考,以开发商正式公示为准)
建面约90m²1房2厅1卫

信达信安里售楼处电话:400 8855 420
上海静安信达信安里售楼处电话☎:400 8855 420(预约看房热线)建面约100m²2房2厅1卫

信达信安里售楼处电话:400 8855 420
上海静安信达信安里售楼处电话☎:400 8855 420(预约看房热线)
这个项目的户型图不管是高层还是低层大面积别墅都是特别的多,好了,然后让我们来看看部分阔绰空间别墅产品的网传户型图,先上2号楼:
2号楼别墅东边套



信达信安里售楼处电话:400 8855 420
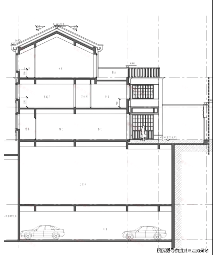
上海静安信达信安里售楼处电话☎:400 8855 420(预约看房热线)小区的2号楼别墅为双拼,东边套为地上1-2层外加阁楼。建造风格应该也是新里弄的石库门样式了,看看下面的剖面图就知道了:
2号楼别墅剖面图


信达信安里售楼处电话:400 8855 420
上海静安信达信安里售楼处电话☎:400 8855 420(预约看房热线)
然后来看看6号楼别墅产品:
6号楼别墅


信达信安里售楼处电话:400 8855 420
上海静安信达信安里售楼处电话☎:400 8855 420(预约看房热线)

信达信安里售楼处电话:400 8855 420
上海静安信达信安里售楼处电话☎:400 8855 420(预约看房热线)
6号楼比较特别,是相对比较独立的类独栋了,标准地上3层,看看它的立剖面图:

信达信安里售楼处电话:400 8855 420
上海静安信达信安里售楼处电话☎:400 8855 420(预约看房热线)
交通配套:项目地块位于静安历史风貌区内,约1KM范围内有2/7/11/13/14号线,分布武宁路、昌平路、隆德路、静安寺等市中心地铁站。
商业配套:项目周边有静安嘉里中心、恒隆广场、兴业太古汇、芮欧百货、张园、环球世界大厦、889广场等奢华地标林立。
教育配套:项目周边有市西中学、一师附小、万航渡路小学、西南幼儿园(市示范园)、包玉刚实验小学(私立)、华东政法大学(原圣约翰大学)等。信达信安里售楼处电话:400 8855 420
上海静安信达信安里售楼处电话☎:400 8855 420(预约看房热线)
医疗配套:项目周边有:华山医院、上海市儿童医院、第一妇幼保健院、华东医院。信达信安里售楼处电话:400 8855 420
上海静安信达信安里售楼处电话☎:400 8855 420(预约看房热线)
如有问题欢迎来电咨询,预约来电尊享购房优惠,可预约案场内部销售人员,专业一对一热情服务,让您用专业眼光去买房
上海买一手房必看!材料税费清单全梳理
想要买房的朋友们注意了
想在上海买套属于自己的新房
可不是攒够首付就能闭眼冲
从限购资格到贷款额度
从摇号规则到税费减免
政策里藏着不少门道
今天就带大家了解在上海
购买一手房需要准备哪些材料
需要支付哪些税费
问
需要准备的材料
1
户口簿/户籍证明
需要原件+复印件2份
①户口簿整本复印,页码连续,复印至第一页空白页
②户口簿上的婚姻状况须与实际情况一致,否则需至派出所更新
③户口簿上未成年小孩,若无法直接判断出不是认购人子女,需提供该未成年小孩出生证明
④若为丧偶,如果户口簿婚姻状况没有体现“死亡”或“丧偶”,需提供死亡证明
⑤户籍证明需体现户籍证明号
⑥集体户口需提供户主页,若无法提供原件,复印件需至派出所盖章
2
身份证明
需要原件+复印件5份
①所有家庭成员(单身/已婚家庭+未成年子女)身份证明,正反面复印在同一页,一页仅限1人
②香港(香港身份证及回乡证)、澳门(澳门身份证及回乡证)、台湾(大陆往来通行证)、外籍(护照:照片页、签证页、签名页,需提供翻译件)
3
结婚证或离婚证明信达信安里售楼处电话:400 8855 420
上海静安信达信安里售楼处电话☎:400 8855 420(预约看房热线)
需要原件+复印件2份
①所有婚姻证明材料需为带章的原件
②结婚证/离婚证,需整本复印
③离婚证明:离婚证及离婚协议、民事调解书、法院判决书及生效告知书三选一
④若有过离婚史需提供离婚证明(若有多次离婚史,需提供多次离婚证明)
⑤结婚证或离婚证上姓名、出生年月与身份证信息不符,需至有关部门更新为最新并一致状态
⑥三年内离婚人士若离婚协议涉及房产(土地性质为集体和商业性质除外),需是明确分割清楚的,否则需提供补充协议
⑦国外结婚证需提供翻译件,并由大使馆认证;若国外结婚证显示的证件号码与认购登记时出具的证件不一致,还需提供其他证明材料,例如出入境证明等
4
未成年子女出生证(若有)
需要原件+复印件2份
①未成年子女出生日期在结婚证日期之前的,需至街道计生办开具“未婚先孕证明”
②未婚生育需开具相关证明
③国外出生证需提供翻译件,并由大使馆认证
5信达信安里售楼处电话:400 8855 420
上海静安信达信安里售楼处电话☎:400 8855 420(预约看房热线)
不动产登记证/房产证/预告登记证/
网签合同/征收补偿安置协议
需要原件+复印件2份
①整本完整复印(产证如有附图页,原始状态及展开状态均需完整复印,产证附图如以二维码形式展现,二维码原始状态复印,二维码扫出的附图打印)
②沪籍认购人2011年1月31日前与父母共同共有,不在限购范围内的房产,若因房产变更导致现产证日期在限购政策后,除提供产证外,还需至房产交易中心调阅其原始记录,并提供与父母的关系证明
③5年内通过赠与方式转让的房产必须申报,同时需提供房产交易中心出具的该房产历史赠与记录
6信达信安里售楼处电话:400 8855 420
上海静安信达信安里售楼处电话☎:400 8855 420(预约看房热线)
产调
需要原件+复印件2份
①认购人及家庭成员(配偶)都要提供,名下无房也要提供
②房屋所在地房地产交易中心提供的盖章原件或随申办“市民云APP”查询结果的“个人不动产登记信息查询记录(现状)”截图彩色打印
7
上海市社保或税单(若为非本市户籍)
需要原件2份
①必须是第一认购人的社保/税单,且必须是上海本市的
②外省市户籍提供认购截止日往前推63个月累计满60个月;境外提供认购截止日往前推1年
③税单缴税类型为“工薪所得”或“劳务所得”,60个月累计纳税金额需满1万元
8信达信安里售楼处电话:400 8855 420
上海静安信达信安里售楼处电话☎:400 8855 420(预约看房热线)
劳务合同及工作类居留许可证
(若为港澳台及境外)
需要原件+复印件2份
①劳务合同时效需覆盖至认购截止日往前推1年的劳务合同
②劳务合同复印件加盖公司公章以骑缝章(都是红章)
③社保/税单缴纳的公司需与劳务合同上的公司保持一致,若社保/税单上无法体现公司名称,需提供劳务合同公司与社保/税单缴纳公司一致的证明
9信达信安里售楼处电话:400 8855 420
上海静安信达信安里售楼处电话☎:400 8855 420(预约看房热线)
资金、存款类证明
需要原件+复印件2份
①认购金银行卡务必提前开通大额刷卡支付功能,避免因限额而影响认购
②支付认购意向金的银行卡原件必须是第一认购人名下,在上海开户的借记卡,卡背面签名栏需持卡人签名
③认购金银行卡正反面复印在同一页上,写上卡号、开户行(具体到某分行/支行)、持卡人姓名及手机号
④支付认购意向金的银行卡权属证明需体现持卡人姓名及卡号
⑤存款证明/资金冻结证明必须为第一认购人名下
⑥资金冻结证明需是开发商指定银行支行出具;
⑦资金冻结证明存款金类型仅限现金活期存款
⑧资金冻结证明(活期)的周期不得少于30天到45天(以开发商公告为准),资金冻结证明原件将于选房次日后归还
⑨参照银行认房认贷口径认定的首套或二套房首付比例
⑩上述冻结资金金额均不包含认购意向金
⑪资金冻结证明冻结起始日为认购材料公示期至认购截止日期间任意一天,资金冻结证明冻结截止日为不早于认筹时间
⑫如意向认购客户无法提供符合首套房资格的有效证明,一律以二套房论处
⑬资金冻结证明将由相关银行机构验证真伪,是否有限以银行判定为准,如有伪造,一经发现,将追究当事人的法律责任
10信达信安里售楼处电话:400 8855 420
上海静安信达信安里售楼处电话☎:400 8855 420(预约看房热线)
征信报告
需要原件2份
①有效期为1个月以内,需显示个人住房类贷款记录
②所有认购人及其家庭成员(配偶)的征信报告都需提供
③如无法提供征信报告,则均需按照二套提交资金冻结证明
注
特殊情况补充材料
1、军人信达信安里售楼处电话:400 8855 420
上海静安信达信安里售楼处电话☎:400 8855 420(预约看房热线)
现役军人
《部队政治工作部证明》原件
《军官证》复印件
退役军人(自主择业)
退役军人事务管理局开具的证明,原件
《军人退役证》复印件
退役军人(同一安置)
单位证明,原件
《军人转业证》复印件
消防救援人员
军人退役基本养老保险参保缴费凭证,原件
军人退役基本养老保险关系转移续接信息表,原件
在职证明,原件
2、博士后
博士毕业
《硕士毕业证书》复印件
《博士毕业证书》复印件
教育部学历证书电子注册备案表,原件
教育部学籍在线验证报告,原件
注意:硕博连读提供研究生院转博证明,原件
博士后毕业
《博士后证书》复印件
出站证明
3、镇保
镇保人员在职
城镇职工基本养老保险交费情况,原件
养老保险个人权益记录单,原件
镇保人员退休
社保中心出具的缴纳轨迹证明,原件
养老金核定表,原件
4、协保人员
社保中心出具的缴纳轨迹证明,原件
养老金核定表,原件
问
需要支付的税费
1
契税
根据房屋面积和购房者情况缴纳
契税税率:
1. 首套房
面积≤140㎡:1%
面积>140㎡:1.5%
2. 第二套住房:
面积≤140㎡:1%
面积>140㎡:2%
3. 第三套及以上住房或企业购房:
无面积限制,统一按3%
2
印花税
房屋成交价格的0.05%
3
增值税
根据房屋年限和是否是普通住宅,税率有所不同。一般情况下,增值税率为房屋成交价格的5.3%
问
关于限购
Q:非本市户籍居民家庭以及单身人士购买外环外住房的,连续1年社保或个税单是否可断缴或补缴?(不含崇明区)
A:可以断缴,需满足网签前15个月内在沪正常缴纳满12个月的社保或个税单。
Q:非本市户籍单身人士在崇明区购买住房的要求是?
A:非本市户籍单身,需符合在崇明区正常缴纳的社保或个税单,满足网签前15个月内在沪正常缴纳满12个月的社保或个税单。
Q:非本市户籍居民家庭在崇明区购买住房的要求是?
A:非本市户籍居民家庭,需满足网签前15个月内在沪正常缴纳满12个月的社保或个税单。
Q:非本市户籍居民所购住房在外环内的,社保或者个税单的要求是什么?
A:所购住房在外环内的,需满足网签前39个月内在沪正常缴纳满36个月的社保或个税单。
Q:持《上海市居住证》且积分达到标准分值、在本市缴纳社会保险或个人所得税满3年及以上的非本市户籍居民家庭在购买住房套数方面享受沪籍居民家庭的购房待遇。需满足的条件是什么?
A:是的。①非本市户籍居民家庭,不包含单身人士,②持有在有效期内的《上海市居住证》,③积分达到120分且在有效期,④网签前39个月内在沪正常缴纳满36个月的社保或个税单。
Q:非本市户籍单身人士持有上海市居住证且满足120积分和社保或个税单满3年,否能买外环内一手房?
A:非本市户籍单身人士不可以,只针对非本市户籍居民家庭。
Q:持《上海市居住证》且积分达到标准分值、在本市缴纳社会保险或个人所得税满3年及以上的非本市户籍居民家庭在购买住房套数方面享受沪籍居民家庭的购房待遇。若非本市户籍居民在限购政策前同父母共有住房,是否可以剔除?
A:符合条件的可以剔除。例如:非本市户籍AB家庭,A条件满足,限购前同父母有房,则可剔除(≤2套),B不满足则不可剔除。
Q:多子女购房政策对子女的年龄要求?
A:多子女家庭定义:家庭中有至少有2个子女,其中至少有1个子女是未成年。如2孩家庭,可以一个成年,一个未成年,即符合多子女家庭政策。
Q:持《上海市居住证》且积分和社保/个税单满足条件的非本市户籍居民多子女家庭,可购买几套?
A:可购买3套。
Q:在自贸区临港新片区实施更加差异化的购房政策,对在新片区工作、存在职住分离的群体,在执行现有住房限购政策的基础上,可在新片区增购1套住房。如何理解?
A:在新片区增购1套住房的前提需满足在临港新片区工作,经临港管委认定符合后,名单流转交易中心,办理交易过户。
Q:9.29出台的本市房地产市场政策在购房资格上境外及港澳台人士是否享受?
A:境外及港澳台人士按原购房政策执行。