⭐上海壹号院售楼处☎☎:400-8787-740⭐
⭐【尊崇礼遇 恭迎莅临】⚠温馨提示:⭐⭐
✅为保障服务品质,本项目实行预约制接待,暂未开放临时到访⭐
✅如有问题欢迎来电咨询,专业一对一热情服务,让您用专业眼光去房。⭐
✅过来参观样板房烦请记得提前来电预约!⭐⭐

上海壹号院售楼处电话:400-8787-740【开发商已认证】


上海壹号院售楼处电话:400-8787-740【开发商已认证】上海壹号院官方售楼处电话:400-8787-740【售楼处电话/地址】上海壹号院售楼处电话:400-8787-740【官方认证】售楼中心24小时热线电话大宅

项目总建筑面积约43万方,由533套海派高层、151套风貌联排合院及9套风貌商业等多元产品业态组成。
上海壹号院售楼处电话:400-8787-740【开发商已认证】
【锦园】地理位置位于黄浦区中华路与复兴东路之交汇点,地处上海中心城区。
产品类型组成:
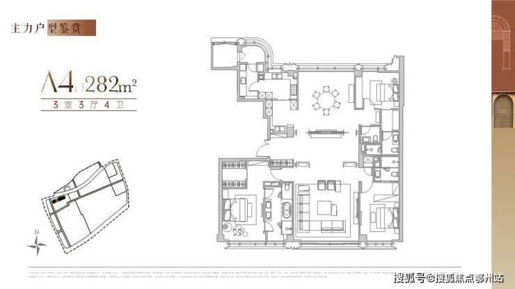
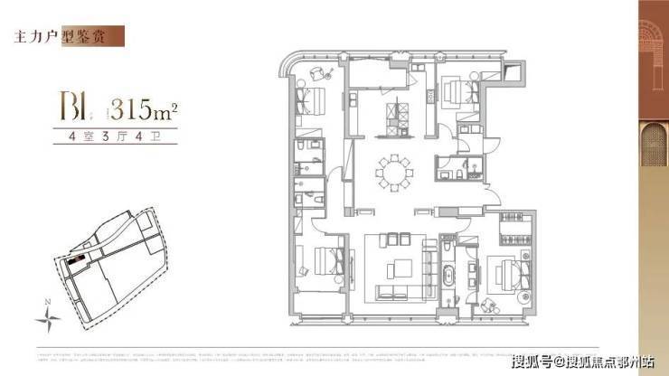
海派高层:533套(建面约200-1000㎡,主力户型约300-400㎡)
风貌联排合院:151套(建面约250-1200㎡,主力户型约300-500㎡)
风貌商业:9套
【锦园】二期预计12月再入市!加推107套约310-570㎡海派大宅,主力户型约310、350、390平的3-5房
一期首推6#楼,主力建面约267-908㎡高层住宅,33套房源,总价约3000万-1.6亿,项目首开已全清盘
项目总建筑面积约23万方,根据规划由6栋14-37层高层住宅、部分改建保留的联排别墅,合院别墅以及部分配套用房组成。
(项目详细介绍资料如下)上海壹号院售楼处电话:400-8787-740【开发商已认证】
新湖融创锦园案名更名【上海壹号院】二期新推107套,约310-390㎡海派大宅
上海壹号院售楼处电话:400-8787-740【开发商已认证】
根据规划,项目总建筑面积约23万方,由6栋14-37层的高层住宅、部分改建保留的联排别墅、合院别墅以及部分配套用房组成。
户型图如下:
网传合院户型图如下👇
上海壹号院售楼处电话:400-8787-740【开发商已认证】

部分保留历史建筑的户型平面图👇上海壹号院售楼处电话:400-8787-740【开发商已认证】
(双击可查看大图)
一层
二层
一层
二层
一层
上海壹号院售楼处电话:400-8787-740【开发商已认证】
二层
一层
二层
上海壹号院售楼处电话:400-8787-740【开发商已认证】
一层
二层
上海壹号院售楼处电话:400-8787-740【开发商已认证】
一层
二层
上海壹号院售楼处电话:400-8787-740【开发商已认证】
三层
一层
上海壹号院售楼处电话:400-8787-740【开发商已认证】
二层
三层
上海壹号院售楼处电话:400-8787-740【开发商已认证】
一层平面图
二层平面图
上海壹号院售楼处电话:400-8787-740【开发商已认证】
亚龙项目,经历了多轮方案后,最终明确了中间为低区,东西两侧为高区的形态排布方式。设计阵容,采用了gad团队和华东建筑设计院共同打造!ps:gad的经典作品有阳光城檀悦101、阳光城滨江悦、杭州仁恒滨江园等。
效果图👇
上海壹号院售楼处电话:400-8787-740【开发商已认证】上海壹号院官方售楼处电话:400-8787-740【售楼处电话/地址】上海壹号院售楼处电话:400-8787-740【官方认证】售楼中心24小时热线电话大宅