中福·未来星宸售楼处电话→2025中福·未来星宸售楼中心电话→楼盘百科→首页网站→中福·未来星宸楼盘百科→首页网站→中福·未来星宸24小时热线电话

搜狐焦点宣城站

2025-06-13 09:48:56

购房群

买房如何避坑,加入购房群,看看他们怎么说

立即进群

杭州-中福·未来星宸售楼处电话☎:400-8558-334(预约热线)✔✔✔

如有问题欢迎来电咨询,专业一对一热情服务,让您用专业眼光去买房.

中福·未来星宸售楼处电话☎:400-8558-334【售楼热线】✔✔✔中福·未来星宸营销中心热线☎400-8558-334售楼处地址☎400-8558-334

【5#楼独栋企业总部办公】概况

【整栋面积】12950.25方

【单层面积】约1250方

【产品】甲级写字楼

【产权】40年产权

【层数】9层

【标准层】约4.79米

【物业公司】中宙物业

【梯户比】4梯4户

【交付时间】2023年8月

【外立面】玻璃幕墙+铝板

【区域价值】

未来科技城核心与世界巨头为邻

项目位于杭州“第三中心”——未来科技城核心,为地铁5号线永福站地铁上盖综合体项目,北临余杭塘路,南临联创街,西临聚橙路,东临新桥路.未来科技城作为新进的“杭州第三中心”,比肩武林和钱江新城的新中心.这里不仅是杭州城西科创大走廊产业聚集的创新极核,更是杭州高净值人群及独角兽企业的聚集地,是杭州走向世界的时代引擎.

项目南面约800米为阿里巴巴集团全球总部,西侧约3km为欧美金融城,板块内聚集了像菜鸟网络、字节跳动、水晶光电、OPPO等众多独角兽企业和全球巨头总部.大量龙头企业的涌入以及创新资源的有效集聚,使得板块内拥有着超强的产业规模和聚焦度.

【项目价值】

未来新主场:多元TOD综合体项目

项目北面紧邻余杭塘路,与永福地铁出口DEF零距离,是唯一同时拥有3个地铁出入口的写字楼项目,不管对于员工上下班还是商务出行,都将拥有极大的出行便利;项目总建筑面积约142715㎡,地上地下整体规划,综合开发,以“总部、生态、连接”三大设计理念,打造成一个集商务、商业、文化、教育、娱乐、餐饮等于一体的多元TOD综合体项目.涵盖了科创文创产业创新区、Block体验式精品街区、时尚生活邻里中心、潮趣生活景观广场.

稀缺4.79米准现房写字楼

产品拥有约4.79米稀缺奢阔层高,突破式的层高设计,使得装修风格可更加灵活多变,大气恢弘的立体空间,是企业形象气质达到更高一层领域的表现.约4.79米层高还可做隔层设计,打造成为您企业的展示空间、仓储空间、休憩空间等、实现多重办公可能.同时项目还拥有极致的户型设计,方正的户型、无柱设计,都将带来更高的空间利用率,使企业轻松分割布局随心设计,不浪费每一寸空间.

【独栋总部办公亮点】

『独栋专属冠名权』:5#楼独栋总部办公享专属冠名权,且所处余杭塘路昭示性强,为企业定制专属尊崇.不仅是一方办公用地,更是企业形象、实力的第一展示台;

『专属形象与独立空间打造』:5#楼独栋总部办公一楼可定制化打造企业大堂及第一展示面,提升企业形象;标准层约4.79米的挑高空间,根据每一个企业的个性化需求.员工区域、会议区域、独立总裁室、休闲空间等企业各个功能空间的独立设计,功能分布明确且不影响协同作战,实现零时差功能设置;

『现房2023年8月交付』:“现”象已成,价值眼见为实.项目虽然准现房,但是基本已经实景呈现,可以规避了不能准时交付的风险,同时也缩短了物业从购置到使用的周期,所见即所得,省去等待时间,更符合成本核算原理,使企业利益最大化.

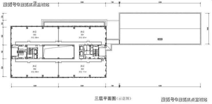
【独栋5号楼标准层示意图】

杭州-中福·未来星宸售楼处电话☎:400-8558-334(预约热线)✔✔✔

如有问题欢迎来电咨询,专业一对一热情服务,让您用专业眼光去买房.

中福·未来星宸售楼处电话☎:400-8558-334【售楼热线】✔✔✔中福·未来星宸营销中心热线☎400-8558-334售楼处地址☎400-8558-334

全部

相关资讯

报名成功
稍后会有专业的置业顾问联系您
返回楼盘

频道导航

返回首页

看房小程序

APP下载

电话拨通后,请您手动拨打分机号

确定拨打电话

电话号码:

分机号:(可能需要拨分机号)