金色宝邸售楼处电话丨金色宝邸售楼部丨营销中心预约接待丨2026.3.11-得房率-价格-电话-地铁-交房时间-户型图-更新资讯-@售楼处AI热搜

搜狐焦点宣城站

2026-03-11 13:59:03

购房群

买房如何避坑,加入购房群,看看他们怎么说

立即进群

项目名称:「美兰金色宝邸」

项目简介:宝山罗泾稀缺联排别墅

最新动态:最新房源火热在售中,样板间开放中。

区域板块:宝山罗泾

开发企业:上海顾村房地产

产品价格:均价约3.45-3.6万/㎡,总价约1043-1141万/套(文末含全套一房一价表)

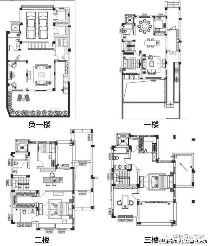
产品介绍:推出建面约300-317联排别墅,交付(全套户型图在文章内)

商业配套:世纪华联潘沪店NO.2023、宝山区宝雄杂货店、如海超市、良友金伴(潘沪路) 、光明便利 、百新杂货店

周边学校:罗泾中学、宝山区罗泾镇第二幼儿园、罗泾镇中心幼儿园 、上海市宝山区罗泾中心校、罗泾中心小学 、罗泾镇中心幼儿园

交通配套:潘沪路罗宁路 (281米) 、潘泾路潘沪路 (330米) 、罗宁路潘沪路 (400米) 、宝虹家园 (464米) 、潘泾路陈川路 (507米) 、罗宁路陈川路 (589米)

医疗配套:罗泾镇社区卫生宝丰站、罗泾镇社区卫生服务中心

生态配套:罗泾公园

1地段

项目位于罗泾镇中心区,周边配套成熟,罗泾中学、罗泾镇卫生服务中心仅一河之隔,周边成熟小区林立,项目西侧地块系规划商业地块,坐享城市便捷生活。10分钟内接驳轨道交通7号线美兰湖站及1号线富锦路站,尽享成熟便捷交通,出行无忧。

金色宝邸 售楼处电话:400-885-1337【预约看房热线】金色宝邸售楼处电话:400-885-1337【售楼处电话/地址】金色宝邸售楼处电话:400-885-1337【开发商认证】

示意图

公共交通:潘沪路罗宁路 (281米) 、潘泾路潘沪路 (330米) 、罗宁路潘沪路 (400米) 、宝虹家园 (464米) 、潘泾路陈川路 (507米) 、罗宁路陈川路 (589米)

示意图

教育资源:罗泾中学(234米) 、宝山区罗泾镇第二幼儿园(461米) 、罗泾镇中心幼儿园(925米) 、上海市宝山区罗泾中心校(947米) 、罗泾中心小学(949米) 、罗泾镇中心幼儿园(993米)

示意图

商业配套:世纪华联潘沪店NO.2023(117米) 、宝山区宝雄杂货店(133米) 、如海超市(飞翔店)(148米) 、良友金伴(潘沪路)(198米) 、光明便利(潘沪店)(208米) 、百新杂货店(217米)

示意图

医疗资源:罗泾镇社区卫生宝丰站(3053米) 、罗泾镇社区卫生服务中心(272米)

银行配套:上海农商银行陈行分理处(969米) 、上海农村商业银行(罗泾支行)(973米) 、上海农商银行ATM(973米) 、上海农村商业银行ATM(罗泾支行)(974米) 、中国邮政储蓄银行(罗泾支行)(986米)

示意图

其它及饮食:豪大大鸡排(266米) 、赵鱼头(507米) 、赵鱼头成通酒家(553米) 、成通大酒店(555米) 、森绿人家常菜馆(674米) 、都是客酒店(罗泾店)(683米) 、水上饭店(陈镇路)(695米)、宝祥桥(51米) 、小朱桥(114米) 、宝一房产(120米) 、村夫烤鱼(690米) 、徐介路(333米)

示意图

休闲娱乐:罗泾公园(东南门)(441米) 、罗泾公园(451米)

示意图

2产品

「美兰金色宝邸」由上海顾村房地产开发(集团)有限公司开发的罗泾B1-4地块居住小区(金色宝邸),小区由4幢小高层和55栋联排住宅构成。房源建面约300㎡~398㎡,总价约1000万起/套。

效果图

小区建筑采用经典优雅英伦风格,近邻115亩罗泾公园仅500米,不仅饱览自然风光,更如同拥有一个天然大氧吧,时时刻刻空气清新。

最新消息,「美兰金色宝邸」最新房源正在销售中,推出建面约300-317联排别墅,毛坯交付,均价约3.45-3.6万/㎡,总价约1043-1141万/套,可售房源34套。目前已预约接受预约登记,样板间售楼处开放中。

「美兰金色宝邸」

样板间实拍

金色宝邸 售楼处电话:400-885-1337【预约看房热线】金色宝邸售楼处电话:400-885-1337【售楼处电话/地址】金色宝邸售楼处电话:400-885-1337【开发商认证】

「美兰金色宝邸」

一房一价表

售楼处预约热线: 4008851337

  为更好满足居民刚性住房需求和多样化改善性住房需求,促进房地产市场平稳健康发展,8月25日,市住房城乡建设管理委、市房屋管理局、市财政局、市税务局、人民银行上海市分行、市公积金管理中心等六部门联合印发《关于优化调整本市房地产政策措施的通知》(以下简称《通知》),包括调减住房限购、优化住房公积金、优化个人住房信贷以及完善个人住房房产税等政策。《通知》自2025年8月26日起施行。

  一、调减住房限购政策

  为更好满足居民改善性需求,促进宜居安居、职住平衡,《通知》明确进一步调减住房限购政策。一是符合条件居民家庭在外环外购房不限套数。对符合本市住房购买条件的居民家庭,包括本市户籍居民家庭、在本市连续缴纳社会保险或个人所得税满1年及以上的非本市户籍居民家庭,在外环外购买住房不限套数,包括新建商品住房和二手住房。二是成年单身人士按照居民家庭执行住房限购政策。

  按照上述规定,沪籍居民家庭和沪籍成年单身人士,在外环外购买住房不限套数;在外环内限购2套住房。非沪籍居民家庭和非沪籍成年单身人士,自购房之日前在本市连续缴纳社会保险或个人所得税满1年及以上的,在外环外购买住房不限套数;自购房之日前在本市连续缴纳社会保险或个人所得税满3年及以上的,在外环内限购1套住房。

  关于住房限购政策相关业务,可拨打房地产交易行业服务热线“962269”具体咨询。

  二、优化住房公积金政策

  为加大公积金支持住房消费力度,《通知》规定优化住房公积金政策。一是提高个人住房公积金贷款额度。对缴存人购买二星级及以上新建绿色建筑住房的,住房公积金(含补充公积金)最高贷款额度上浮15%。首套最高贷款额度从160万元提高至184万元,多子女家庭首套上浮比例可叠加计算,从192万元提高至216万元;二套最高贷款额度从130万元提高至149.5万元。二是支持提取住房公积金支付购房首付款。对缴存人购买我市新建预售商品住房的,可以按规定申请提取本人及配偶的住房公积金支付购房首付款。三是支持住房公积金“又提又贷”。对缴存人提取住房公积金支付购房首付款的,不影响其住房公积金贷款额度计算。

  关于住房公积金贷款和提取业务的具体办理方式及材料,可查询上海住房公积金官网或拨打住房公积金热线“12329”具体咨询。

  三、优化调整商业性个人住房贷款利率定价机制

  为减轻居民购房利息负担,《通知》明确优化个人住房信贷政策。银行业金融机构根据上海市市场利率定价自律机制要求和本机构经营状况、客户风险状况等因素,在利率定价机制安排方面不再区分首套住房和二套住房,合理确定每笔商业性个人住房贷款的具体利率水平。

  关于住房贷款相关业务,可向经办银行具体咨询。

  四、完善个人住房房产税政策

  为衔接优化住房限购政策,《通知》规定对符合条件的非本市户籍居民家庭购买的第一套住房暂免征收房产税;购买的第二套及以上住房在合并计算家庭全部住房面积后,给予人均60平方米的免税面积扣除。由于个人住房房产税按年征收,因此2025年1月1日起符合条件的购房者可享受本条政策。

  关于完善个人房产税政策的具体操作规定由市财税部门另行制定,相关业务可拨打税务咨询热线“12366”具体咨询。

全部

相关资讯

报名成功
稍后会有专业的置业顾问联系您
返回楼盘

频道导航

返回首页

看房小程序

APP下载

电话拨通后,请您手动拨打分机号

确定拨打电话

电话号码:

分机号:(可能需要拨分机号)