嘉定南翔【招商南山虹桥璀璨领峯】
售楼热线:400-8778-334
欢迎来电咨询预约〢专业热情细致服务〢给您一个温馨满意的家〢疫情期间,看房需提前预约,到现场需戴好口罩,谢谢配合!
免责声明:以上信息仅供参考,所有图文资料请以政府最终批文及双方签署的买卖合同为准
本图文内容如无意中侵犯某方权益,请联系我们,将第一时间处理!
【品牌】:招商、南山

【占地面积】:49010.20㎡
【总建筑面积】:157361.55㎡
【产权年限】:70年产权
【总户数】:855
【车位配比】:1:1
【车位总数】:1204个
【绿 化 率】:35%
【容 积 率】:2.3
【建筑风格】:新亚洲风格结合经典设计
【建筑类型】:小高层
【装修情况】:装修交付
【物业】:待定
【房地联动价】:待定
【项目地址】 上海市嘉定区南翔镇嘉好路与惠桂路交汇处
1. 巨擘联袂 肇启时代峯层巨著● 招商蛇口招商局集团创立于1872年,系中央直接管理的国有骨干企业,世界500强,总资产超过万亿。招商蛇口,招商局旗下城市与园区科技集成服务商,业务已覆盖全球110个城市和地区,开发精品项目超620个,服务千万客户。进驻上海以来,从上海心到大虹桥,城市重要地段,招商无一缺席。秉承“美好生活承载者”之初心,招商外滩玺、招商虹玺、招商云玺、天汇世纪玺等高端著品蜚声上海。● 中国南山地产中国南山开发(集团)股份有限公司于1982年经国务院批准成立,由招商局集团、中海油总公司、广东省国资委、深圳市国资委等联合持股的大型中字头国有企业,是中国国有控股混合所有制企业。中国南山地产,承袭集团40载荣耀履迹,深耕世界虹桥。从海湾大厦、南山·雨果到南山·虹桥领峯,每一部作品皆为同频时代而生。招商蛇口与中国南山地产联袂擘画虹桥新子,引入招商璀璨系、南山峯系两大优质产品系,合筑招商南山·虹桥璀璨领峯,肇启世界虹桥人居新篇章。
2. 虹桥之上 进阶世界都会主城生活嘉定“十四五”将南翔纳入北虹桥综合商务区。南翔距虹桥核心区直线距离约13KM,享受大虹桥强势能级辐射。同时承接虹桥国际开放枢纽北向拓展带重要节点,一脉虹桥发展金线,南翔进阶大虹桥主城生活区,成为中央商务配套区和高品质国际化社区目的地。
3. 璀璨峯汇 启承南翔3.0崭新国际生活南翔1.0时代:南翔悠久的发展历史奠定了南翔的根基;南翔2.0时代:各大品牌开发商纷纷进驻,推动南翔城市面貌日新月异;南翔3.0时代:北虹桥宜居宜业目的地,板块定位和优质配套均对位高端标准,吸引虹桥高净值人群的入住。加之政府重磅规划红利,云翔板块肇启南翔3.0时代,催生大虹桥新一代国际居住区,价值高地潜力迸发。

【交通配套】 「3条快速路」 沪翔高速——连接外环、沈海高速
沪嘉高速——连接外环(约4km)、中环(约9km),可快速到达普陀、长宁、静安
嘉闵高架(距离虹桥机场约18km)——连接京沪高速、北翟路高架、崧泽高架、沪渝高速
「2条地铁线 」 地铁11号线——乘坐可一线直达:江苏路站、徐家汇站、东方体育中心站、迪士尼站;换乘后更可快速到达人民广场、陆家嘴、南京西路、南京东路、淮海路、新天地等市中心区域。
嘉闵线——南翔站:四站到达虹桥站(在建)


【5大商圈】 「印象城商圈」位于嘉定南翔镇最核心地带,地处虹桥交通综合枢纽“10分钟辐射区”内。总面积约为34万㎡,引进400余家品牌 ,并拥有3000个停车位 。将成为全上海单体量最大的纯商业购物中心。

「五彩城商圈 」总建筑面积约40000平方米,约100家知名品牌进驻,涵盖了华润BLT精品超市、嘉禾影院、各类餐饮、儿童亲子、零售及生活服务等诸多业态,为南翔及周边区域消费者提供高品质的消费环境和购物体验。

「中冶城市广场」 地铁上盖一站式购物中心 一个集商业、办公和高档居住于一体的城市综合体,总建筑面积约18万㎡。

「太茂商业广场」售楼热线:400-8778-334紧邻地铁11号线南翔站,整体拥有浓浓的欧式普罗旺斯风情,5万平方米的商业体量形成了国际化、一站式、丰富且多元的业态组合,零售、餐饮、文化、娱乐、健康、教育和城市生活配套等服务,满足了周边居民及消费者对高品质生活的需求。

「南翔老街商圈」 上海具有历史韵味的商街,面积14.34万平方米。内有人民街、共和街、解放街和胜利街,为传统的商业区和居民住宅区。经过整修,恢复了清末民初“银南翔”的历史风貌:粉墙黛瓦、屋舍参差林立,大小商铺鳞次栉比;小桥、流水、花园、长廊、画店各具风韵。【教育配套】「上海嘉定世界外国语学校」一所民办九年一贯制学校,与上海市世界外国语中学、上海市世界外国语小学一样,同属均瑶集团旗下一员。嘉定世外新校舍位于嘉定区南翔镇惠桂路255号(近嘉好路),占地50亩,于2019年9月1日已正式投入使用。学校办学规模36个班,每个年级四个班。中学部已于2017年9月开始办学,目前拥有四个年级,12个班;小学部于2019年9月开办,目前拥有一、二两个年级,8个班。

「惠亚路中学」 惠亚路中学为初中四年制中学,用地面积30196.5平方米,总建筑面积20520.4平方米,办学规模为30个班级,可容纳1350人就读。

【医疗配套】「上海瑞金医院北部院区」 三级综合医院
医院擅长:呼吸科,神经内科,神经外科,麻醉科,高血压科,消化科,放射科,骨科

「南翔医院」 二级甲等综合医院
位于上海市嘉定区南翔镇众仁路 ,距离项目约4km,始建于1948年,建筑总面积近32000平方米,是一所集医疗、教学、预防、康复于一体的二级甲等综合医院,是嘉定区医保和新农合定点医院。

【生态配套】 ——四大生态湖「银翔湖」银翔湖公园总占地面积312亩,其中水域面积127亩,绿化率超过了80%。滨水步道、观景平台、木栈道、桥梁、湿地等元素贯穿整个公园核心区,包括城市文化活动区、城市休闲区、生态体验区、居民游憩区和商业活动区等5个部分,园内还将建造商务会所、咖啡馆等商业配套设施。银翔湖按照依水依树,绿水相连,眷古绘新的设计理念,为市民提供休闲游憩的去处,并打造成南翔镇生态核心城市绿肺。

「留云湖公园」 距离项目约3km,堪比15座虹口足球场的宏伟“湖公园”——17万平米菁英湖风情公园,与世纪公园共同形成“东、西上海的城市乐活心脏”。留云公园的中心景区为留云湖,有四个水闸与周围水域河流相通,保证了湖水的原生态。

「云翔湖」 (规划)云翔湖位于南翔西北区域的大型居住社区内,紧邻建设中的云翔区域,东临安愚路、南临嘉程路、西临惠申路、北临嘉美路。
「蕴藻浜绿化带」

【板块后期规划】

「土地使用 」规划区包含37块住宅用地; 教育用地:16块(幼儿园8块、小学3块、初中3块、高中2块);
商业用地5块(项目附近1块);
菜场6块(项目附件1块);
公交站用地4块(项目北侧1块);
「规划结构 」规划区总体上形成“一心、两带、两片、多点”的结构。“一心”以公共服务设施、商业办公、公园绿地为主,塑造尺度宜人、功能混合、集聚高效的活力核心。
“两带” 南北向形成集绿化景观、公共服务、产业于一体的功能联系带;
东西向形成区域间公服资源共享的生活服务纽带。
“两片”指核心服务区、居住片区。 核心服务区:依托社区公共活动中心,塑造尺度宜人、功能多样、绿色生态的活力街区。
居住片区:以配套服务完善、交通出行便捷、生态环境宜人为目标。
“多点”主要指布局于生活组团内,布局均衡、配套集聚、生态良好的邻里中心。
【项目鸟瞰图】

【项目洋房效果图】

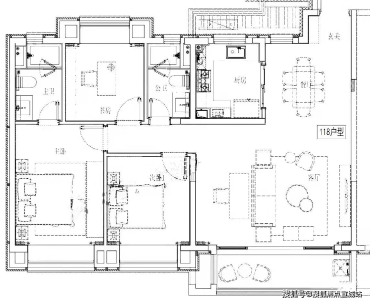
【户型图】


约100m²户型

约130m²户型

嘉定南翔【招商南山虹桥璀璨领峯】
售楼热线:400-8778-334
欢迎来电咨询预约〢专业热情细致服务〢给您一个温馨满意的家〢疫情期间,看房需提前预约,到现场需戴好口罩,谢谢配合!
免责声明:以上信息仅供参考,所有图文资料请以政府最终批文及双方签署的买卖合同为准
本图文内容如无意中侵犯某方权益,请联系我们,将第一时间处理!