上海【保利珺园】
售楼处电话:400-9696-224(预约热线)
欢迎致电售楼处电话,专业一对一热情服务,让您用专业眼光去买房。
报名等销售电话确认后,请再前往现场
楼盘项目全面介绍,本电话为开发商提供线上售楼电话,楼盘项目全面介绍(包含楼盘简介,房价,价格,楼盘地址,户型图,交通规划,备案价,项目配套,楼盘详情,售楼处电话,最新消息,最新详情,周边配套,最新进展等详情咨询)
国际江湾 仅此1.1低密墅邸 新经典滨水庄园
「保利珺园」
将推约105-140平墅质6F洋房,尺度对标平层
约 165-190 平4F叠拼尺度奢享
约 200-285平3F迭新滨水合院产品
保利深耕杨浦十年第十子
全新顶奢迭代品系
𝐉𝐮𝐧𝐘𝐚会客厅预计下周开放
联排户型首次曝光:
户型过程稿:
(仅供参考,最终以开发)
上海【保利珺园】
售楼处电话:400-9696-224(预约热线)
欢迎致电售楼处电话,专业一对一热情服务,让您用专业眼光去买房。
报名等销售电话确认后,请再前往现场
01、
基本信息
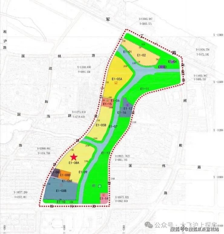
2025年9月3日,保利发展与上海地产投资有限公司联手,通过上海联合产权交易所完成杨浦区新江湾社区E1-08A项目及北外滩项目股权转让竞价,确定为项目的受让方。

E1-08A地块位于新江湾城北侧,直线距新江湾城站约1.2公里,地块容积率仅约1.1,限高约20米,预计将是洋房和联排的组合。其土地面积约5.71万㎡,建筑面积约6.28万㎡,出让总价为37亿元,折合楼板价约5.89万/㎡,住宅套数下限为455套。

项目规划了9栋6层洋房、9栋4层叠墅、18栋3层滨水合院。打造了稀缺的低密产品:建面约105-140㎡的墅质洋房、建面约165-190㎡的奢阔叠拼以及建面约200-285㎡的滨水联排。


项目六大产品亮点
第一大亮点:经典南北朝向,符合上海居住习惯
第二大亮点:项目东北两侧被湿地包裹,形成了“双湾环抱-对望湿地-内有庄园”的生活体验。整体采取了东高西低的策略,使前排建筑不遮挡后排视野,超过半数楼栋可享受水系与公园景致。
第三大亮点:一线滨水生活,家楼下800米亲水步道、推窗对望24万方湿地公园

第四大亮点:项目规划下沉式庭院“珺club”、自持商业,满足日常所需
“珺club”具有健身房、泳池、健身瑜伽、私宴厅等功能区,考虑到客户对于教育和艺术的重视,项目也在考虑增加其他更多的相关功能,大家可以期待一下!
上海【保利珺园】
售楼处电话:400-9696-224(预约热线)
欢迎致电售楼处电话,专业一对一热情服务,让您用专业眼光去买房。
报名等销售电话确认后,请再前往现场
第五大亮点:楼栋南北向间距基本都不小于遮挡建筑的高度。居住的通透性、采光度、舒适性会非常好。
第六大亮点:保利深耕杨浦十年十子,联合全球五大顶级设计师打造
建筑是goa袁源(设计中海顺昌玖里)、景观请了成都麓湖同款设计师JTL王小波
室内由亚太年度设计人物明德王大成设计、矩阵纵横设计总监郑楚生、优豪斯创始人王小峰等联手操刀。一句话:全是豪宅专业户。
02、
版块信息
新江湾题材一箩
南北两大副中心
新江湾城的北翼,上海9大主城副中心之一的吴淞创新城,正在经历“北转型”科创产业大升级。新江湾城的南翼,另一个主城副中心江湾五角场,作为“金色中环发展带”,串起上海北部核心商务区,正从传统都市商圈向产学研复合城区变迁。
如大弓一般伸展的杨浦区,正在推动落实“三区联动”,也就是创新空间、产业空间、生活空间融合。作为杨浦区的核心发展引擎——江湾五角场的辐射生活带,新江湾城顺其自然坐享周边产业区、校区发展所带来的溢出机遇。

中环北扩
2025年,新江湾城板块迎来军工路、长江西路快速化改造工程的持续推进。军工路快速路是“中环北扩”规划(军工路—长江路—真北路快速通道)重要成员。它沿着杨浦、宝山两区滨江地带行走,线路全长约7.5公里,它是上海北部高速联通中、外环线的主要干道之一,战略地位向来很重。该路段2025年内建设完工。
上海【保利珺园】
售楼处电话:400-9696-224(预约热线)
欢迎致电售楼处电话,专业一对一热情服务,让您用专业眼光去买房。
报名等销售电话确认后,请再前往现场
它将加速新江湾城与中心城区联系,同时串起黄浦江下游多条越江通道,减轻中环北段、逸仙路高架、南北高架等快速路的拥堵压力,功能非常丰富,意义非常重大。
长江西路快速路已被列入2025重大工程预备项目,所谓预备项目,是指项目现阶段手续暂未齐全,待齐全后预备近期实施的项目。换句话说,中环向北扩展的总体目标,2025年有望全面启动。

20号线
除了10号线、18号线直接穿越新江湾城外,一条新轨交又要来了, 20号线被称为“北上海副中心联络线”。全长约30公里,共21个站点。它不仅串联起了真如、五角场两大主城副中心,并且将桃浦智创城、大宁商圈、新江湾、曲阳(大柏树)、杨浦滨江中北段和浦东外高桥一线连接。这条新地铁将为新江湾城的东西两翼点开通勤出行新地图。

产业中心
“夹”在中间的新江湾城,区内坐拥抖音、哔哩哔哩、叠纸、美国耐克、德国汉高等头部企业,精英人才汇聚。北部以湾谷科技园为核心,形成“2+4+N”产业矩阵——电子通信、生命健康为主导,智能科技、绿色低碳等为优势产业。新江湾城作为生态型花园国际社区,不但要接住南北两翼齐飞的泼天“城运”,顺势还要承接周边不断溢出的庞大职住需求。
大型生态湿地
新江湾区域内绿化覆盖率高达60%,已经形成 "湿地-公园-绿廊" 三级生态体系。占地7.35公顷的新江湾城湿地公园,是上海中心城区最大一块天然湿地,负氧离子浓度达2000个/立方厘米以上,堪称超大型城市绿肺。
杨浦大学城
新江湾区域内有复旦、同济、财大等10多所著名高校,100多家科研院所,以及复旦附中、交大附中等重点高中。早在1996,该区域第一个高科技园区“五角场高新技术产业园”正式建立,从此杨浦开始走上产学研一体化道路,比如建设国家创新型试点城区,将杨浦园构建为张江示范区的重要组成部分等。杨浦还打出了一个大大的标语:至2030年,形成“大学的城市、城市的大学”。

15分钟社区生活圈
新江湾城街道聚焦居民、企业员工生活、工作上的需求,推行“15分钟社区生活圈”,建立“3+8+N”服务体系(3个核心生活圈+8个分中心),覆盖全年龄人群需求。

上海【保利珺园】
售楼处电话:400-9696-224(预约热线)
欢迎致电售楼处电话,专业一对一热情服务,让您用专业眼光去买房。
报名等销售电话确认后,请再前往现场
经过逾20年的建设,新江湾城已成为一个以中高端住宅为主的知识型、生态型花园社区。
项目直线距离10号线新江湾城站约1.1公里,无需换乘可直达五角场、南京东路、豫园等各大商圈。

自驾方面,项目经由淞沪路-黄兴路及逸仙高架路可连通内环,日常通勤动线流畅。

商业方面,板块内有悠方购物公园,可满足日常生活需求。五角场则包含万达广场、百联又一城、合生汇等一站式购物中心。
此外项目南侧直线距离约500米,上海交大附中杨浦实验学校将于2027年9月落成启用。

上海【保利珺园】
售楼处电话:400-9696-224(预约热线)
欢迎致电售楼处电话,专业一对一热情服务,让您用专业眼光去买房。
报名等销售电话确认后,请再前往现场