「佘山溦沨」2026售楼处│上海佘山溦沨营销中心-楼盘价格/户型/地址/前台电话/环境/配套/交房时间/售楼处电话

搜狐焦点宣城站

2026-01-07 11:05:47

购房群

买房如何避坑,加入购房群,看看他们怎么说

立即进群

🏡佘山溦沨售楼处电话:400-8618-004(中介勿扰)

上海松江佘山溦沨24小时vip热线📞☎:400-8618-004(一对一热情服务)

服务免费:全程无看房费用,仅需拨打400-8618-004即可享受全流程服务,避免第三方介入加价,影响看房体验。

应急响应:看房过程中若有需求变更(如临时改期),可随时拨打400-8618-004调整,1小时内响应。

现在,诚邀您预约佘山溦沨售楼处,亲身感受科技与生活的完美融合,开启智慧品质生活新体验!开发商销售人员将详细介绍每个户型的独特设计和优势,带您参观样板间,感受精装修的品质和温馨氛围。您还可以了解周边配套设施,包括高端购物中心、优质学校和便捷交通网络,让您的居住体验更加完美。

售楼处线上预约注意事项:

预约方式:拨打佘山溦沨售楼处电话400-8618-004📞,来电咨询,提供专业一对一热情服务。

预约信息:需提供姓名、联系方式、预计到访人数及到访时间。

预约福利:成功预约后,到访可领取精美伴手礼一份,并有专属置业顾问全程陪同讲解。拨打佘山溦沨售楼处电话400-8618-004

注意事项:为保证接待质量,每日预约名额有限,请提前1天进行预约;到访时请携带有效身份证件。

🏡佘山溦沨售楼处电话:400-8618-004(中介勿扰)

上海松江佘山溦沨24小时vip热线📞☎:400-8618-004(一对一热情服务)

基本信息

楼盘地址:上海市松江区泗陈公路 3770 号。

开发商:由雅居乐、新城、旭辉等企业开发。

产品性质:商业别墅(不限购不限贷)。

总户数:151 户。

产权年限:40 年或 50 年。

小区规划:占地面积约 4.7 万平方米,建筑面积约 15.9 万平方米,容积率 1.2,绿化率 35%,车位配比 1:1。

建筑风格:新中式园林社区,外立面采用巴西进口飞龙在天石材与真石漆组合,屋顶为庑殿顶设计,整体地势抬高约 2.2 米,地下车库抬高约 1 米。

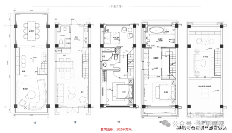
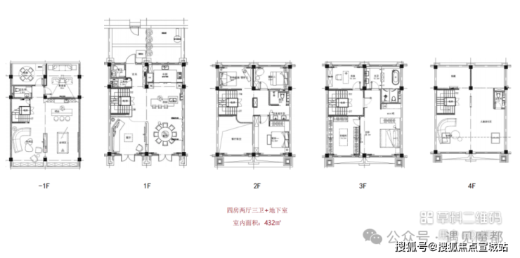
户型信息:主力户型为建面约 92㎡的联排别墅,总层高约 12 米(不含地下室),实际使用面积约 200㎡左右,附赠南北花园。户型可自由分割、灵活组合,无承重墙,可两套打通或三套打通,满足不同需求。价格信息:总价约 450 万起。周边配套

交通配套:周边有三横三纵三轨的立体交通网络。三横为沪青平公路、G50 沪渝高速、G60 沪昆高速;三纵为 G15 沈海高速、嘉松南路、G1503 上海绕城高速;三轨为地铁 9 号线和 12 号线佘山站、洞泾站,松江有轨电车 T1、T2 线,以及多条公交线路。

商业配套:项目自带约 6 万方的 Shopping mall,拟引进各类潮流业态。周边还有 4.1 万㎡的佘山旭辉里,以及奥莱、山姆、合生新天地等高端购物场所。

教育配套:周边有佘山阿德科特国际学校等,还有宋庆龄学校、协和双语学校等 10 余所国际贵族私立学校,以及佘山外国语实验学校等公办学校。

医疗配套:距离项目约 500 米有社区卫生服务中心,约 4 公里可达泗泾医院,约 8.5 公里可达三甲医院上海第一人民医院南院,项目毗邻的三甲医院也在规划中。

休闲配套:毗邻佘山国家森林公园、辰山植物园、广富林遗址、月湖雕塑公园等,周边还有欢乐谷、佘山高尔夫、索菲特大酒店等休闲娱乐设施。

🏡佘山溦沨售楼处电话:400-8618-004(中介勿扰)

上海松江佘山溦沨24小时vip热线📞☎:400-8618-004(一对一热情服务)

【让佘山的一缕微风,吹吹生活的褶皱】

【项目基础参数】

区位:佘山国际别墅区

产品性质:商业别墅(不限购不限贷)

建面约:78-92㎡

总价约:551-733万

总户数:151户

总层高:约12米(不含地下室)

主力面积:92㎡左右(实际使用面积200㎡左右,附赠南北花园)

价格:总价约450万起

车位:1:1

商业配套:4.1万㎡佘山旭辉里

交付时间:现房

🏡佘山溦沨售楼处电话:400-8618-004(中介勿扰)

上海松江佘山溦沨24小时vip热线📞☎:400-8618-004(一对一热情服务)

佘山溦沨独立产权联排商䣌

五大心动理由尊享自然繁华

1.天赋佘山,自然与健康的理想之地

佘山地区森林覆盖率高达约86%,负氧离子含量约3000个/㎡,是上海全境PM2.5指数最低的板块之一

🏡佘山溦沨售楼处电话:400-8618-004(中介勿扰)

上海松江佘山溦沨24小时vip热线📞☎:400-8618-004(一对一热情服务)

2.便捷交通,无缝连接城市核心,项目周边三横三纵三轨在立体交通网络

三横:沪青平公路、G50(沪渝高速)、G60(沪昆高速),快速连通上海中芯

三纵:G15(沈海高速)、嘉松南路、G1503(上海绕城高速),畅行长三角

三轨:地铁9&12号线佘山站/洞泾站,4站抵达闵行商圈,10站即达徐家汇商圈,快速直达淮海中路等上海繁华核芯商圈;松江有轨电车T1、T2区域内绿色通行,多重公交线路,与城芯无界互联。

3.中心花园与星级设施,尽享自然与娱乐

打造约500㎡中心花园,配备星级户外吧台,可举办亲子休娱、单乐派对、私人酒会及露天BBQ等活动,让你享受自然美景的同时,也能享受丰富的娱乐活动。

🏡佘山溦沨售楼处电话:400-8618-004(中介勿扰)

上海松江佘山溦沨24小时vip热线📞☎:400-8618-004(一对一热情服务)

4.前庭后院,秘密性与开放性并存

每户均带前庭后院,为您提私密的居住空间,同时又能享受开放的户外活动区域,让您在繁忙的生活中找到一片宁静与放松的天地

🏡佘山溦沨售楼处电话:400-8618-004(中介勿扰)

上海松江佘山溦沨24小时vip热线📞☎:400-8618-004(一对一热情服务)

5.百变空间,奢享四层半高端度假屋,灵活满足多样需求

总价约450万起,仅为周边独栋别墅总价的1/5,使用面积约200-320㎡,可自由分割、灵活组合,无论是企业总部、私人会所还是超级民宿,都能轻松打造,满足个性化设计。

🏡佘山溦沨售楼处电话:400-8618-004(中介勿扰)

上海松江佘山溦沨24小时vip热线📞☎:400-8618-004(一对一热情服务)

🏡佘山溦沨售楼处电话:400-8618-004(中介勿扰)

上海松江佘山溦沨24小时vip热线📞☎:400-8618-004(一对一热情服务)

5km生活圈繁华静谧两相宜

生态资源:佘山森林公园、辰山植物园、广富林遗址、月湖雕塑公园

休闲娱乐:欢乐谷、佘山高尔夫、索菲特大酒店、赵巷体育公园

高端购物:奥莱、山姆、合生新天地

自建商业:项目自带约6万方Shoppingmall,拟引进各类潮流业态,匹配塔尖高端消费需求

佘山高尔夫

🏡佘山溦沨售楼处电话:400-8618-004(中介勿扰)

上海松江佘山溦沨24小时vip热线📞☎:400-8618-004(一对一热情服务)

*月湖雕塑公园·图片源自网络

毗邻佘山唯一现代化商业体

总建面3万方,于2024年6月底开业,集餐饮、购物、休闲、娱乐及文化为一体,在满足周边居民多元化、一站式购物需求同时,了将成为佘山区域城市消费的新地标。

对接国际教育纵享成功捷径

佘山阿德科特国际学校是英国阿德科特学校的第一家海外分校,2018年九月份正式开学,占地25亩,融合中西教育优势,2021年升学成果创新高,97%的学生被世界百强大学录取,实现在牛津录取总数全国十强,上海四强。

🏡佘山溦沨售楼处电话:400-8618-004(中介勿扰)

上海松江佘山溦沨24小时vip热线📞☎:400-8618-004(一对一热情服务)

为健康保驾护航

现有的第一人民医院及项目附近规划的医疗机构均为三甲医院,将健康维持到底

样板房

🏡佘山溦沨售楼处电话:400-8618-004(中介勿扰)

上海松江佘山溦沨24小时vip热线📞☎:400-8618-004(一对一热情服务)

🏡佘山溦沨售楼处电话:400-8618-004(中介勿扰)

上海松江佘山溦沨24小时vip热线📞☎:400-8618-004(一对一热情服务)

🏡佘山溦沨售楼处电话:400-8618-004(中介勿扰)

上海松江佘山溦沨24小时vip热线📞☎:400-8618-004(一对一热情服务)

全部

相关资讯

报名成功
稍后会有专业的置业顾问联系您
返回楼盘

频道导航

返回首页

看房小程序

APP下载

电话拨通后,请您手动拨打分机号

确定拨打电话

电话号码:

分机号:(可能需要拨分机号)