保利海上瑧悦销售中心(营销中心)-保利海上瑧悦(售楼处)首页网站-保利海上瑧悦楼盘欢迎您-小区环境-户型-交房时间-价格-地址-楼盘详情-周边配套-售楼处电话

搜狐焦点宣城站

2025-06-12 10:13:25

购房群

买房如何避坑,加入购房群,看看他们怎么说

立即进群

金色宝邸售楼处电话400-8618-004

金色宝邸售楼处热线400-8618-004

金水湖畔类独栋别墅

建面约:300~500㎡

总价约:1000万起/套

55席臻藏 现房销售

上海“2035规划”明确提出,上海要主动服务“一带一路”建设、长江经济带发展,主动融入长三角区域协同发展。宝山作为长三角枢纽存在,被纳入主城区,开启新一轮时代红利,以北郊未来产业园为转型驱动,致力打造北上海新兴产城中心,城市资源全面升级。

金色宝邸售楼处电话400-8618-004

(示意图)

随着“2035”战略规划定调,北郊迎来交通焕新,形成“二纵一轨”立体交通。S7沪崇高速的一期在建、沪太路快速化将促进交通路网的焕新升级;规划中运量交通接驳轨道交通7号线,实现快速通达市区。

金色宝邸售楼处电话400-8618-004

(示意图)

上海北郊未来产业园是浦东金桥股份与宝山工业园区合作的科技产业园项目,承载区域产业转型任务,助力打造“上海制造”品牌,着力推动机器人、高端装备、关键智能部件等领域的研发和产业化。智能制造、新材料、移动互联网和健康产业等四大产业将成为支柱产业。

罗泾处于上海市北部,是宝山区城市建设区及上海国际航运中心的组成部分,规划以一核:罗泾公园为生态核心,二轴:以陈功路、罗宁路为城镇发展轴,三带:荻泾河、小川沙河、陶家河绿化景观带环绕,建设成为以中高档居住为主体,融行政办公、商业服务、文化教育、休闲娱乐等多元功能为一体的水韵生态城。美兰金色宝邸,正处于一核、二轴、三带的核心交集,中心区位天然优越,尽享城市发展黄金轴线带来的便捷生活及无限价值。而【美兰金色宝邸】位于宝山区罗泾。

金色宝邸售楼处电话400-8618-004

【美兰金色宝邸】由上海顾村房地产开发(集团)有限公司开发的罗泾B1-4地块居住小区(金色宝邸),小区由4幢小高层和55栋联排住宅构成。房源建面约300㎡~398㎡,总价约1000万起/套。

小区建筑采用经典优雅英伦风格,近邻115亩罗泾公园仅500米,不仅饱览自然风光,更如同拥有一个天然大氧吧,时时刻刻空气清新。

金色宝邸售楼处电话400-8618-004

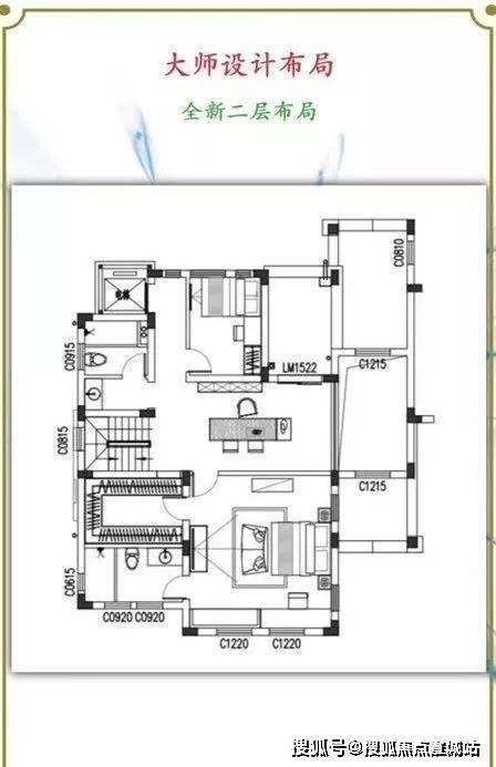
项目在售户型图

金色宝邸售楼处电话400-8618-004

金色宝邸售楼处热线400-8618-004

项目样板间实景照

项目周边配套

项目位于罗泾镇中心区,周边配套成熟,罗泾中学、罗泾镇卫生服务中心仅一河之隔,周边成熟小区林立,项目西侧地块系规划商业地块,坐享城市便捷生活。10分钟内接驳轨道交通7号线美兰湖站及1号线富锦路站,尽享成熟便捷交通,出行无忧。

金色宝邸售楼处电话400-8618-004

金色宝邸售楼处电话400-8618-004✔✔✔【开发商售楼中心热线】金色宝邸营销中心热线400-8618-004✔✔✔金色宝邸售楼处地址400-8618-004✔✔✔,楼盘项目全面介绍,本电话为开发商提供线 上预约售楼电话,楼盘项目全面介绍(包含楼盘简介,均价,房价,现房,期房,别墅,叠墅,大平层,价格,楼盘地址,户型图,交通规划,备案价,备案名,项目配套,样板间,开盘时间,认筹时间,楼盘详情,售楼处电话,最新消息,最新详情,周边配套,一房一价,最新进展等详情咨询)楼盘详情丨价格丨更多优惠丨机不可失丨欢迎致电丨诚邀品鉴!售楼处位置丨特价房丨工抵房丨剩余房源丨户型图丨最新消息丨免责声明:将文章内容综合来源于网络、只作分享,版权归原作者所有!!如有侵权,请联系我们,我们第一时间处理如有问题欢迎来电咨询,专业一对一热情服务,让您用专业眼光去买房。如果您想了解更多楼盘详情,欢迎提前预约拨打金色宝邸语售楼处电话400-8618-004✔✔✔

以下是一些房产挑选技巧:

一、地理位置

城市和区域选择

经济发展潜力:优先考虑经济增长强劲的城市或区域。例如,一线城市和一些重点二线城市通常拥有更多的就业机会、优质的教育和医疗资源。像杭州,随着互联网产业的蓬勃发展,吸引了大量人才涌入,房产需求持续旺盛,其房产的保值增值潜力也相对较高。

规划与发展方向:关注城市的规划蓝图,例如是否有新的商业区、产业园区、交通枢纽建设规划。靠近这些规划区域的房产往往会受益于基础设施的完善和经济活动的增加。以成都为例,天府新区的建设使得周边房产价值不断攀升。

周边配套设施

交通便利性:靠近地铁、公交站点或主要交通干道的房产出行方便。例如,距离地铁站步行 10 - 15 分钟的房子,不仅能节省通勤时间,而且在市场上更具吸引力。同时,也要考虑附近道路的拥堵情况,良好的交通网络可以有效避免出行高峰时的交通堵塞。

教育资源:如果有子女教育需求,要考察周边学校的质量和距离。优质的学区房通常价格较高,但也具有很强的抗跌性。例如,在一些城市,重点中小学附近的房产价格往往比同区域非学区房高出许多。

医疗设施:方便就医也是一个重要因素。靠近三甲医院等优质医疗机构的房产,对于老人或有医疗需求的家庭更为合适。

商业设施:周边有超市、商场、餐厅等商业设施会大大提高生活的便利性。例如,步行范围内有大型购物中心的房产,能够满足日常购物、休闲和娱乐需求。

休闲娱乐设施:靠近公园、体育馆、图书馆等设施的房产,可以提供更好的生活环境和休闲场所。例如,靠近城市公园的房子,居民可以享受自然景观和户外活动空间。

二、房屋本身

房屋类型和户型

房屋类型:根据自己的需求选择合适的房屋类型,如公寓、普通住宅、别墅等。公寓适合单身人士或投资,普通住宅适合家庭居住,别墅则提供更宽敞的居住空间和隐私。

户型设计:户型要方正,这样空间利用率高。避免选择形状怪异的户型,例如有很多拐角或过道过长的户型,会浪费空间。南北通透的户型通风和采光效果好,居住起来更加舒适。例如,客厅和餐厅相连且南北通透的户型,空气能够自然对流,室内光线充足。

房间数量和布局:根据家庭人口和生活习惯确定房间数量和布局。例如,有老人或小孩的家庭可能需要更多的卧室;如果经常在家工作,需要有一个安静的书房空间。

房屋质量

建筑结构:了解房屋的建筑结构,框架结构的房屋在抗震性能和空间改造灵活性上相对较好。可以查看建筑图纸或咨询开发商了解房屋的结构类型。

墙体和地面:检查墙体是否平整、有无裂缝,地面是否平整、是否有空鼓现象。用小锤子轻轻敲击墙面和地面,听声音判断是否有空鼓。

门窗质量:门窗的密封性和五金件质量很重要。优质的门窗能够有效隔音、隔热,并且开关顺畅。可以通过关闭门窗后感受室内外声音的隔绝程度和观察门窗的开合是否方便来判断质量。

防水工程:卫生间、厨房和阳台的防水至关重要。可以查看这些区域的防水层是否有渗漏迹象,如墙角、地面的水渍等。在交房前,最好进行闭水试验,即在卫生间等区域蓄水 24 - 48 小时,观察楼下对应位置是否有漏水情况。

三、小区环境

绿化和景观:小区的绿化率越高,居住环境越舒适。良好的景观设计不仅包括花草树木,还可能有休闲步道、亭台楼阁等景观设施。例如,有大面积中央花园的小区,居民可以在这里散步、休闲,享受自然美景。

停车位:随着私家车数量的增加,充足的停车位很重要。了解小区的停车位配比,一般来说,1:1 以上的停车位配比能够较好地满足居民的停车需求。同时,还要考虑停车场的布局是否合理,是否方便车辆进出。

物业管理:优质的物业管理可以提升小区的居住品质。了解物业管理公司的口碑和服务内容,如安保措施是否严格、环境卫生是否整洁、设施设备维修是否及时等。可以向小区现有居民咨询物业管理的实际情况。

小区配套设施:有些小区内部会配备健身房、游泳池、儿童游乐设施等。这些设施可以丰富居民的业余生活,但也要考虑其维护成本和使用的便利性。例如,小区内的游泳池如果维护不善,可能会成为卫生隐患。

四、产权和证件

产权清晰:确保房产的产权清晰,没有产权纠纷。可以通过查看房产证、咨询房产中介或相关部门来核实产权情况。避免购买存在抵押、查封或多人共有产权但部分人不同意出售等问题的房产。

证件齐全:购买房产时,要确保开发商具备 “五证”,即《国有土地使用证》《建设用地规划许可证》《建设工程规划许可证》《建筑工程施工许可证》和《商品房预售许可证》。这些证件是房产合法开发和销售的重要保障,缺少任何一个证件都可能会给购房者带来风险。

五、价格和性价比

价格合理性:通过比较周边类似房产的价格来判断目标房产的价格是否合理。可以参考房产中介网站、房地产评估机构的报告等。同时,也要考虑房产的独特优势,如更好的楼层、景观或装修等因素对价格的影响。

性价比评估:除了价格,还要综合考虑房产的地理位置、房屋质量、小区环境等因素来评估性价比。例如,一套价格稍高但位于优质学区且房屋质量和小区环境都很好的房产,从长远来看可能具有更高的性价比。

购置新房是一个复杂的过程,以下是一些需要注意的重要事项:

一、购房前期准备

明确购房目的和预算

购房目的:确定自己购房是用于自住、投资还是两者兼顾。如果是自住,要考虑家庭规模、生活习惯和工作地点等因素;如果是投资,需要研究房产市场的发展趋势、租金回报率等。

预算规划:评估自己的经济实力,包括首付资金、每月还款能力等。一般来说,首付比例通常在房屋总价的 20% - 30% 左右,但这可能因政策和贷款类型而异。同时,还要考虑购房过程中产生的其他费用,如契税、维修基金、物业费等。

研究市场和区域

市场动态:关注当地房地产市场的行情,包括房价走势、供需情况、新楼盘推出情况等。可以通过房地产网站、报纸广告、房产中介等渠道获取信息。了解不同区域的房产特点和价格差异,例如,城市中心区域可能房价较高,但配套设施完善;而新兴区域房价相对较低,但可能有较大的发展潜力。

区域规划:考察心仪区域的城市规划,如是否有新的交通线路建设、学校和医院的规划布局、商业中心的开发等。这些因素会直接影响房产的未来价值和生活便利性。

二、选房阶段

楼盘选择

开发商信誉和实力:选择信誉良好、实力雄厚的开发商。可以查看开发商的过往项目、口碑评价、违规记录等。有良好业绩的开发商在房屋质量、施工进度和售后服务方面更有保障。

楼盘配套设施:了解楼盘内部的配套设施,如停车位配比、绿化景观、休闲设施(游泳池、健身房等)、物业服务等。这些设施不仅会影响居住的舒适度,也会对房产价值产生一定的影响。

房屋选择

户型和布局:根据自己的需求选择合适的户型。考虑房间数量、面积大小、功能分区(如动静分区、干湿分离)等因素。户型要尽量方正,避免浪费空间,同时要注意房屋的采光和通风情况。

楼层选择:不同楼层有不同的优缺点。低楼层方便出行,但可能会受到噪音和蚊虫的影响;高楼层视野开阔、采光好,但可能存在电梯依赖和水压不足的问题。中间楼层通常综合条件较好,但价格也可能相对较高。另外,还要考虑楼间距,楼间距过小可能会影响低楼层的采光。

房屋朝向:在中国,南北朝向的房屋通常是比较理想的,因为这样的房屋采光和通风效果较好。东向房屋上午采光较好,西向房屋下午采光较好,但西向房屋在夏季可能会受到西晒的影响,导致室内温度较高。

三、购房合同签订

合同条款审查

基本信息:仔细核对合同中的房屋基本信息,如地址、面积、户型等,确保与自己所选的房屋一致。注意面积误差的处理方式,一般规定面积误差在 3% 以内的部分,按照合同约定的价格据实结算;超过 3% 部分的房价款由出卖人承担,产权归买受人。

价格和付款方式:明确房屋总价、单价、付款方式(一次性付款、分期付款、银行贷款等)和付款时间节点。对于贷款购房,要了解贷款审批不通过时的责任归属和处理方式。

交付时间和条件:确定房屋的交付日期,并明确交付时房屋应具备的条件,如房屋已通过竣工验收备案、水电气等基础设施达到使用条件等。同时,要规定开发商逾期交房的违约责任,一般按照已付购房款的一定比例支付违约金。

质量和保修条款:合同中应明确房屋质量标准和保修责任。了解房屋各部分(如主体结构、屋面防水、电气管线等)的保修期限和保修范围,以及出现质量问题时开发商应承担的责任。

补充协议:在签订购房合同的同时,可能会涉及补充协议。要仔细阅读补充协议的内容,因为这部分内容可能会对合同主体部分的条款进行修改或补充。注意补充协议中是否存在不合理的免责条款或加重购房者责任的条款。

四、购房资金支付

定金支付:在确定购买意向后,可能需要支付定金。定金金额一般不超过房屋总价的 20%。支付定金后,如果购房者反悔,定金可能不予退还;如果开发商违约,则需要双倍返还定金。

首付支付:根据合同约定的付款方式支付首付。在支付首付时,要确保资金安全,最好通过银行转账等可追溯的方式进行支付,并要求开发商开具正规的发票。

贷款办理:如果选择贷款购房,要提前了解银行的贷款政策和利率情况。准备好贷款所需的材料,如身份证、收入证明、银行流水等。银行会对购房者的还款能力进行评估,贷款审批通过后,会与购房者签订贷款合同,并将贷款金额直接支付给开发商。

五、交房验收

资料查验:在交房时,开发商应提供《住宅质量保证书》《住宅使用说明书》和《竣工验收备案表》等相关文件。这些文件是房屋质量和合法交付的重要证明,购房者要仔细查验。

房屋验收

门窗检查:检查门窗是否安装牢固、密封良好,开合是否顺畅。窗户的玻璃是否有破损,五金件是否齐全且能正常使用。

墙面地面检查:查看墙面和地面是否平整,有无空鼓、裂缝现象。可以用小锤子轻轻敲击墙面和地面进行检查。对于地面,还要检查是否有明显的高低差。

水电检查:检查电路是否畅通,配电箱内的开关是否能够正常控制电路,插座是否通电且接线正确。检查水路时,主要看水龙头、花洒等水设备是否能够正常出水,排水是否顺畅,卫生间、厨房等区域是否存在漏水现象。

厨卫设备检查:如果房屋带有厨卫设备,要检查厨卫设备的品牌、型号是否与合同约定一致,设备是否能够正常使用。例如,检查炉灶、抽油烟机、热水器等设备的功能是否完好。

房屋净高和面积检查:测量房屋的净高是否符合设计要求,同时可以通过测量房间的长、宽来计算房屋面积是否与合同约定相符。

六、产权办理

产权登记:在交房后的一定时间内,开发商会协助购房者办理房屋产权登记手续。购房者需要准备好相关材料,如身份证、购房合同、契税完税证明等,按照当地房产管理部门的要求办理产权登记。办理产权登记后,购房者才真正拥有房屋的所有权。

产权证书领取:产权登记完成后,购房者可以领取房屋产权证书。产权证书是房屋所有权的法律凭证,要妥善保管。同时,注意检查产权证书上的信息是否正确,如房屋所有人姓名、房屋面积、房屋坐落等信息。

一、规划设计阶段

户型布局优化

空间错觉营造:通过巧妙的户型设计来营造空间感。例如,在客厅和餐厅采用开放式布局,减少隔断,使空间看起来更开阔。或者在小面积户型中,利用镜子、玻璃等反射性材料来增加视觉上的空间感。在户型图上,会着重突出这种通透的空间效果,吸引购房者。

功能复合设计:设计多功能房间,如将书房和客房结合,通过可折叠的沙发床等家具,使一个房间能满足多种需求。在宣传时,强调这种多功能性可以满足购房者不同阶段的生活需求,提高户型的吸引力。

小区规划

景观集中展示:在小区规划设计中,将主要景观区域(如中央花园、人工湖等)设置在显眼位置,并且在销售展示时重点突出这些景观。在制作小区规划模型和宣传资料时,会从最佳视角展示景观,让购房者产生良好的居住环境预期。

配套设施布局:合理布局配套设施,如将停车位、健身设施等分布在方便业主使用的位置。在销售过程中,会强调这些设施的便利性和高端性,比如宣传停车位的智能化管理系统、健身设施采用的是高端品牌等。

二、销售阶段

售楼处包装

氛围营造:打造豪华、舒适的售楼处环境。使用高档的装修材料,设置温馨的洽谈区,播放舒缓的音乐,营造出一种轻松愉悦的购房氛围。在售楼处摆放精美的楼盘模型、项目规划图等展示品,让购房者能够直观地了解楼盘信息。

视觉焦点设置:在售楼处设置一些视觉焦点,如大型的 LED 显示屏循环播放楼盘的宣传视频,展示楼盘的建筑外观、周边配套、生活场景等内容。还会展示一些样板房的精美图片,吸引购房者的注意力,激发他们的购房欲望。

样板房设计

空间利用示范:样板房通常会采用定制家具,使其尺寸和布局能够最大限度地利用空间。例如,在卧室中,会选择小巧而实用的床和衣柜组合,展示即使房间面积不大,也能有足够的收纳和活动空间。同时,会巧妙地利用墙面空间,如安装壁柜、置物架等,展示空间利用的多种可能性。

装修风格引导:采用流行的装修风格来装饰样板房,如现代简约风格、北欧风格等,以吸引大多数购房者的审美。在样板房内摆放精美的装饰品、艺术品等,提升房间的档次感。并且会通过灯光设计来营造温馨、舒适的氛围,让购房者产生一种 “这就是未来理想家园” 的感觉。

销售策略

价格策略:采用灵活的价格策略,如推出不同的楼层差价。一般会将景观好、楼层适中的房子价格稍高定位,同时设置一些价格较低的楼层(如底层或顶层)来吸引对价格敏感的购房者。还会有一些限时优惠活动,如开盘折扣、团购优惠等,制造一种紧迫感,促使购房者尽快做出购买决策。

信息传达技巧:在介绍楼盘时,重点强调优势部分。例如,对于靠近学校的楼盘,会着重宣传学区优势;对于交通便利的楼盘,会突出地铁、公交等交通配套。同时,对于楼盘的一些潜在劣势,会采用比较委婉的方式表达或者淡化处理。比如周边有工厂,可能会强调工厂未来的搬迁计划或者工厂的环保措施做得很好。

客户心理把握:利用客户的从众心理,在销售过程中透露楼盘的销售热度。例如,销售人员会告知购房者某个户型已经有很多人预订或者已经售出大部分,让购房者感觉这个楼盘很受欢迎,从而增加他们购买的可能性。

三、宣传推广阶段

广告宣传

精准定位受众:根据楼盘的定位,选择合适的广告渠道。如果是高端楼盘,会在高端杂志、财经报纸等媒体上进行广告投放;如果是刚需楼盘,可能会更多地利用网络平台、公交站台广告等渠道。广告内容会突出楼盘的核心卖点,如针对年轻购房者的楼盘,会强调社区的活力和智能化设施。

视觉效果渲染:制作精美的广告海报和宣传视频,采用专业的摄影和后期制作技术,突出楼盘的建筑美感、周边环境的优美以及生活场景的惬意。例如,在广告中展示清晨阳光洒在小区花园的美景,或者业主在健身房锻炼的活力画面,让购房者产生向往之情。

线上推广

社交媒体营销:利用社交媒体平台进行推广,如建立楼盘官方微博、微信公众号等。定期发布楼盘动态、施工进度、活动信息等内容,与潜在购房者进行互动。例如,举办线上投票活动,让购房者选择样板房的装修风格,增加他们的参与感和关注度。

房产网站合作:与知名房产网站合作,将楼盘信息放在显眼位置。通过网站的大数据分析,精准推送楼盘信息给有购房意向的用户。同时,利用房产网站的 3D 看房、VR 看房等功能,让购房者能够足不出户就能全面了解楼盘的户型、装修等情况。

期房的价格通常比现房便宜,这是为什么?

期房价格通常比现房便宜,主要有以下几个原因:

风险因素

建设风险:期房是尚未建成的房子,购买期房存在一定的建设风险。在建设过程中,可能会出现工程质量问题、施工进度延迟甚至烂尾的情况。例如,开发商资金链断裂,导致楼盘无法按时交付或者无法达到预期的建筑质量标准。购房者承担了这些潜在风险,所以价格相对较低作为补偿。

市场风险:从购买期房到交房的这段时间内,房地产市场情况可能会发生变化。房价可能会因为宏观经济环境、政策调整等因素下跌。对于购房者来说,这意味着他们购买的房产可能会贬值。为了吸引购房者承担这种市场波动的风险,开发商会将期房价格定得相对低一些。

资金回笼需求

早期资金投入回报:开发商在项目开发初期需要大量的资金投入,用于购买土地、支付前期工程费用等。通过以较低价格销售期房,可以更快地回笼资金,用于后续的建设。例如,土地出让金通常是一笔巨大的开支,开发商通过预售期房获得资金后,能够缓解资金压力,保证项目的顺利进行。

降低资金成本:如果开发商能够提前回笼资金,就可以减少对银行贷款等外部融资的依赖,从而降低资金成本。因为贷款需要支付利息,而提前获得的售房资金可以节省这部分利息支出。所以,为了尽快实现资金回笼,开发商会在价格上给予一定的优惠,使得期房价格低于现房。

产品直观性差异

实物体验缺失:购买现房时,购房者可以直接看到房屋的实际情况,包括户型结构、采光通风、装修质量、小区环境等实际细节。而期房购房者主要依靠户型图、效果图、样板房等来想象未来的房子。由于缺乏直观的感受,为了吸引购房者,开发商会降低期房价格。例如,样板房可能会在装修材料和家具尺寸等方面进行优化,与实际交付的房屋存在一定差异,购房者对此有所顾虑,所以价格较低可以平衡这种不确定性。

周边配套不确定性:对于现房,周边配套设施的情况是明确的,如学校、医院、商场等是否已经建成并投入使用。而期房周边配套可能还在规划或者建设中,存在不确定性。例如,规划中的学校可能会因为各种原因无法按时建成,这会影响购房者对房产价值的判断。因此,期房价格会考虑这种周边配套的不确定性而相对较低。

金色宝邸售楼处电话:4008618004【售楼处中心热线】金色宝邸营销中心热线400-8618-004金色宝邸售楼处地址400-8618-004,楼盘项目全面介绍,本电话为开发商提供线 上预约售楼电话,楼盘项目全面介绍(包含楼盘简介,均价,房价,现房,期房,别墅,叠墅,大平层,价格,楼盘地址,户型图,交通规划,备案价,备案名,项目配套,样板间,开盘时间,认筹时间,楼盘详情,售楼处电话,最新消息,售楼处地址,周边配套,一房一价,最新进展等详情咨询)楼盘详情丨价格丨更多优惠丨机不可失丨欢迎致电丨诚邀品鉴!售楼处位置丨特价房丨工抵房丨剩余房源丨户型图丨最新消息丨免责声明:将文章内容综合来源于网络、只作分享,版权归原作者所有!!如有侵权,请联系我们,我们第一时间处理如有问题欢迎来电咨询,专业一对一热情服务,让您用专业眼光去买房。如果您想了解更多楼盘详情,欢迎提前预约拨打佳运瑞璟湾售楼处电话☎400-004-8618

全部

相关资讯

报名成功
稍后会有专业的置业顾问联系您
返回楼盘

频道导航

返回首页

看房小程序

APP下载

电话拨通后,请您手动拨打分机号

确定拨打电话

电话号码:

分机号:(可能需要拨分机号)