上海-信达信安里售楼处电话☎:400-8558-334(预约热线)✔✔✔
如有问题欢迎来电咨询,专业一对一热情服务,让您用专业眼光去买房.
信达信安里售楼处电话☎:400-8558-334【售楼热线】✔✔✔信达信安里营销中心热线☎400-8558-334售楼处地址☎400-8558-334

上海-信达信安里售楼处电话☎:400-8558-334(预约热线)✔✔✔
如有问题欢迎来电咨询,专业一对一热情服务,让您用专业眼光去买房.
2022年6月,静安区人民政府官宣了曹家渡社区C050301单元4-3b地块的出让公告.

最终,上海信达银泰置业有限公司(信达)作为静安区曹家渡社区C050301单元4-3b地块的开发建设实施主体,该地块形成“净地”后实施出让.信达拿地的价格在21.08亿元,折合楼板价约为81484元/㎡,叠加税费、保障房之后,综合楼板成本还要更高.
信达曹家渡项目(曹家渡社区C050301单元4-3b地块)设计方案公示!同时曝光了户型图,拟建16幢住宅!包括15栋2层住宅,1栋7-18层住宅(包含保障房)及配套用房.建面约30-66㎡一房,约442-520㎡别墅待入市!

同时,还涉及历史风貌保护建筑.根据规划建设要求,地块内肌理保护范围占比不小于51.5%,肌理保护范围的用地面积不少于5332平方米,其具体边界和占地规模以建设项目规划管理阶段审定的方案为准.

上海-信达信安里售楼处电话☎:400-8558-334(预约热线)✔✔✔
如有问题欢迎来电咨询,专业一对一热情服务,让您用专业眼光去买房.
项目由一栋18层高层建筑,十五栋低层石库门风貌的建筑以及一栋配套用房组成,地下为地下三层.




户型图:(仅供参考,以开发商正式公示为准)
建面约90m²1房2厅1卫

建面约100m²2房2厅1卫

上海-信达信安里售楼处电话☎:400-8558-334(预约热线)✔✔✔
如有问题欢迎来电咨询,专业一对一热情服务,让您用专业眼光去买房.
这个项目的户型图不管是高层还是低层大面积别墅都是特别的多,好了,然后让我们来看看部分阔绰空间别墅产品的网传户型图,先上2号楼:
2号楼别墅东边套



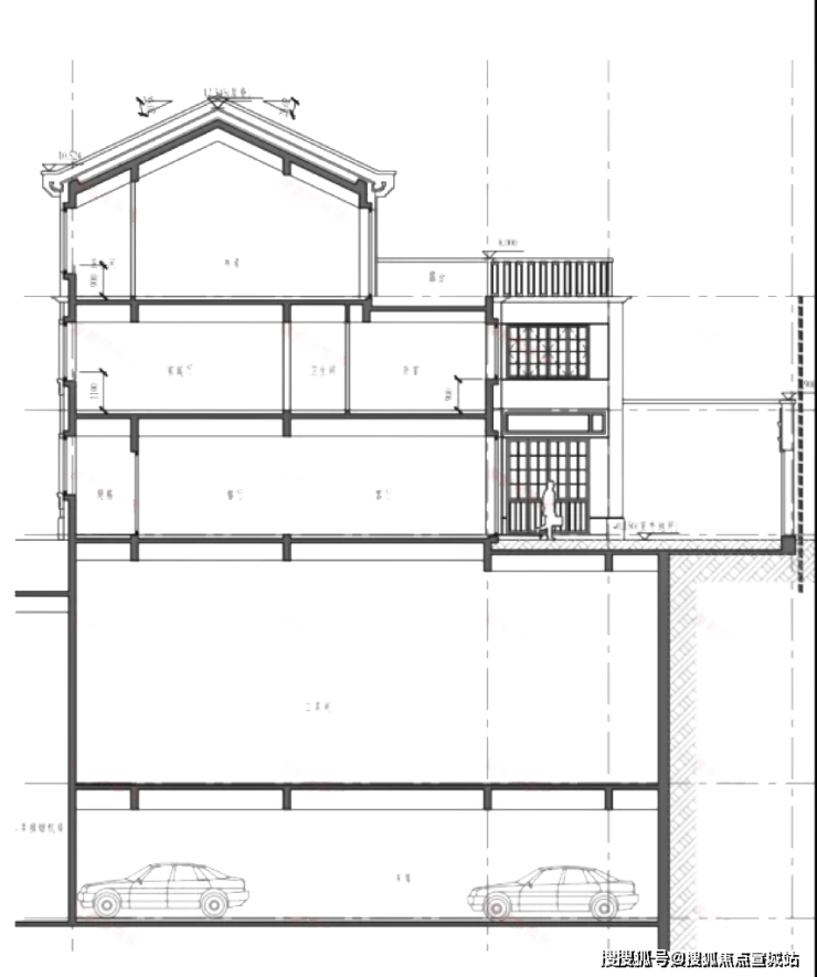
小区的2号楼别墅为双拼,东边套为地上1-2层外加阁楼.建造风格应该也是新里弄的石库门样式了,看看下面的剖面图就知道了:
2号楼别墅剖面图


然后来看看6号楼别墅产品:
6号楼别墅

上海-信达信安里售楼处电话☎:400-8558-334(预约热线)✔✔✔
如有问题欢迎来电咨询,专业一对一热情服务,让您用专业眼光去买房.


6号楼比较特别,是相对比较独立的类独栋了,标准地上3层,看看它的立剖面图:

上海-信达信安里售楼处电话☎:400-8558-334(预约热线)✔✔✔
如有问题欢迎来电咨询,专业一对一热情服务,让您用专业眼光去买房.
信达信安里售楼处电话☎:400-8558-334【售楼热线】✔✔✔信达信安里营销中心热线☎400-8558-334售楼处地址☎400-8558-334