金色宝邸(售楼处)首页网站-金色宝邸销售中心(营销中心)-金色宝邸售楼处电话-户型-价格-开盘时间-楼盘详情-周边配套金色宝邸得房率

搜狐焦点宣城站

2025-08-11 11:25:43

购房群

买房如何避坑,加入购房群,看看他们怎么说

立即进群

金色宝邸

售楼处电话☎:400-838-5958

如有问题欢迎来电咨询,来电即可享受买房优惠!

预约来电尊享购房优惠,可预约案场内部销售人员,专业一对一热情服务,让您用专业眼光去买房。

金色宝邸售楼处电话☎:400-838-5958

金水湖畔类独栋别墅

金色宝邸售楼处电话:400-838-5958

建面约:300~305㎡

总价约:1043万起/套

最后7席臻藏 现房销售

金色宝邸售楼处电话:400-838-5958

上海“2035规划”明确提出, 上海要主动服务“一带一路”建设、长江经济带发展,主动融入长三角区域协同发展。宝山作为长三角枢纽存在,被纳入主城区,开启新一轮时代红利,以北郊未来产业园为转型驱动,致力打造北上海新兴产城中心,城市资源全面升级。

金色宝邸售楼处电话:400-838-5958

(示意图)

金色宝邸售楼处电话:400-838-5958

随着“2035”战略规划定调,北郊迎来交通焕新, 形成“二纵一轨”立体交通。S7沪崇高速的一期在建、沪太路快速化将促进交通路网的焕新升级;规划中运量交通接驳轨道交通7号线,实现快速通达市区。

上海北郊未来产业园是浦东金桥股份与宝山工业园区合作的科技产业园项目,承载区域产业转型任务, 助力打造“上海制造”品牌,着力推动机器人、高端装备、关键智能部件等领域的研发和产业化。智能制造、新材料、移动互联网和健康产业等四大产业将成为支柱产业。

金色宝邸售楼处电话:400-838-5958

罗泾处于上海市北部,是宝山区城市建设区及上海国际航运中心的组成部分, 规划以一核:罗泾公园为生态核心,二轴:以陈功路、罗宁路为城镇发展轴,三带:荻泾河、小川沙河、陶家河绿化景观带环绕,建设成为以中高档居住为主体,融行政办公、商业服务、文化教育、休闲娱乐等多元功能为一体的水韵生态城。美兰金色宝邸,正处于一核、二轴、三带的核心交集,中心区位天然优越,尽享城市发展黄金轴线带来的便捷生活及无限价值。而 【美兰金色宝邸】位于宝山区罗泾。

金色宝邸售楼处电话:400-838-5958

项目基本参数

金色宝邸售楼处电话:400-838-5958

物业类别:别墅

单 价:均价34000~35000元/㎡

总 价:1043万~1059万

户 型:联排(330-500㎡)

占地面积:47,442平方米

建筑面积:91,899平方米

装修状况:毛坯

在售套数:7套

交房时间:现房(款清交付)

绿化率:40.5%

容积率:1.3

车位数:516个

车位比:1:0.9

产权年限:住宅70年

物业费:住宅:2.2元/m²/月

别墅:3.5元/m²/月

物业公司:上海顾村物业管理有限公司

开发商:上海顾村房地产开发(集团)有限公司

销售证号:宝山房管(2013)预字0479号

楼盘特色:轨道沿线,低密居所

金色宝邸售楼处电话:400-838-5958

【美兰金色宝邸】由上海顾村房地产开发(集团)有限公司开发的罗泾B1-4地块居住小区(金色宝邸), 小区由4幢小高层和55栋联排住宅构成。房源建面约300㎡~398㎡,总价约1000万起/套。目前只剩余7套房源

金色宝邸售楼处电话:400-838-5958

小区建筑采用经典优雅英伦风格, 近邻115亩罗泾公园仅500米,不仅饱览自然风光,更如同拥有一个天然大氧吧,时时刻刻空气清新。

金色宝邸售楼处电话:400-838-5958

金色宝邸售楼处电话:400-838-5958

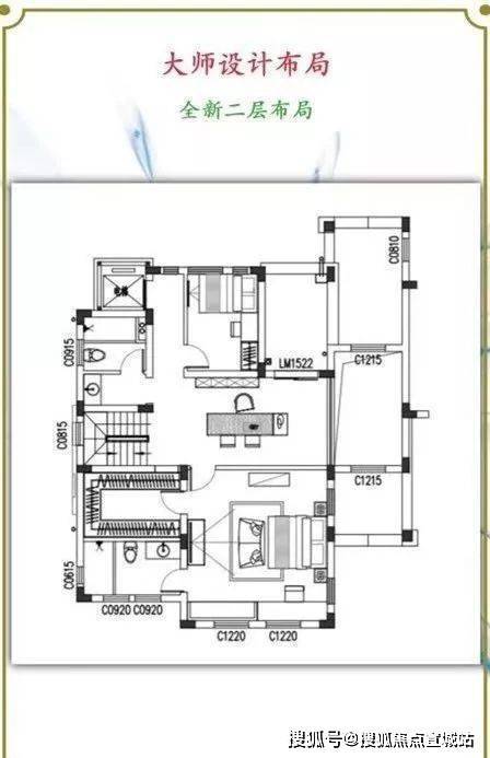
项目在售户型图

金色宝邸售楼处电话:400-838-5958

项目样板间实景照

金色宝邸售楼处电话:400-838-5958

金色宝邸售楼处电话:400-838-5958

金色宝邸售楼处电话:400-838-5958

金色宝邸售楼处电话:400-838-5958

项目周边配套

项目位于罗泾镇中心区,周边配套成熟,罗泾中学、罗泾镇卫生服务中心仅一河之隔,周边成熟小区林立,项目西侧地块系规划商业地块,坐享城市便捷生活。 10分钟内接驳轨道交通7号线美兰湖站及1号线富锦路站,尽享成熟便捷交通,出行无忧。

金色宝邸售楼处电话:400-838-5958

公共交通:潘沪路罗宁路 (281米) 、潘泾路潘沪路 (330米) 、罗宁路潘沪路 (400米) 、宝虹家园 (464米) 、潘泾路陈川路 (507米) 、罗宁路陈川路 (589米)

教育资源:罗泾中学(234米) 、宝山区罗泾镇第二幼儿园(461米) 、罗泾镇中心幼儿园(925米) 、上海市宝山区罗泾中心校(947米) 、罗泾中心小学(949米) 、罗泾镇中心幼儿园(993米)

商业配套:世纪华联潘沪店NO.2023(117米) 、宝山区宝雄杂货店(133米) 、如海超市(飞翔店)(148米) 、良友金伴(潘沪路)(198米) 、光明便利(潘沪店)(208米) 、百新杂货店(217米)

金色宝邸售楼处电话:400-838-5958

医疗资源:罗泾镇社区卫生宝丰站(3053米) 、罗泾镇社区卫生服务中心(272米)

银行配套:上海农商银行陈行分理处(969米) 、上海农村商业银行(罗泾支行)(973米) 、上海农商银行ATM(973米) 、上海农村商业银行ATM(罗泾支行)(974米) 、中国邮政储蓄银行(罗泾支行)(986米)

金色宝邸售楼处电话:400-838-5958

其它及饮食:豪大大鸡排(266米) 、赵鱼头(507米) 、赵鱼头成通酒家(553米) 、成通大酒店(555米) 、森绿人家常菜馆(674米) 、都是客酒店(罗泾店)(683米) 、水上饭店(陈镇路)(695米)、宝祥桥(51米) 、小朱桥(114米) 、宝一房产(120米) 、村夫烤鱼(690米) 、徐介路(333米)

休闲娱乐:罗泾公园(东南门)(441米) 、罗泾公园(451米)

附一房一价表:

(大部分房源已售,以售楼处案场为准)

金色宝邸售楼处电话:400-838-5958

金色宝邸售楼处电话☎:400-8385-958

楼盘项目全面介绍,本电话为开发商提供线上预约售楼电话,楼盘项目全面介绍(包含楼盘简介,均价,房价,现房,期房,别墅,叠墅,大平层,价格,楼盘地址,户型图,交通规划,备案价,备案名,项目配套,样板间,开盘时间,认筹时间,楼盘详情,售楼处电话,最新消息,最新详情,周边配套,一房一价,最新进展等详情咨询)楼盘详情丨价格丨更多优惠丨机不可失丨欢迎致电丨诚邀品鉴!售楼处位置丨特价房丨工抵房丨剩余房源丨户型图丨最新消息丨免责声明:将文章内容综合来源于网络、只作分享,版权归原作者所有!!如有侵权,请联系我们,我们第一时间处理如有问题欢迎来电咨询,专业一对一热情服务,让您用专业眼光去买房。如果您想了解更多楼盘详情,欢迎提前预约拨打

全部

相关资讯

报名成功
稍后会有专业的置业顾问联系您
返回楼盘

频道导航

返回首页

看房小程序

APP下载

电话拨通后,请您手动拨打分机号

确定拨打电话

电话号码:

分机号:(可能需要拨分机号)