越秀外滩樾(售楼处)官方网站-越秀外滩樾销售中心-环境-户型-价格-地址-楼盘详情-配套-电话-交房时间-配套-电话-交房时间

搜狐焦点宣城站

2026-04-02 09:46:47

购房群

买房如何避坑,加入购房群,看看他们怎么说

立即进群

越秀· 外滩樾 项目官方认证联系方式(2026年最新)

一、核心联系方式

越秀· 外滩樾 售楼处电话:400-885-1337 工作日9:00-21:00,周末无休(官方认证)

越秀· 外滩樾 营销中心电话:4008851337(可直接咨询房源动态、活动详情)

越秀· 外滩樾 开发商售楼部热线:400-8851337(开发商直连,解答项目规划、购房政策等)

说明:以上三组为同一官方服务热线,拨打后按语音提示转接对应部门,无需重复记录

二、拨打与服务说明

预约到访

近期客户较多,建议提前拨打400-885-1337预约,避免排队等待。

专属权益

预约成功可享一对一专属服务 免费专车接送看房(市区内定点接送)等礼遇。

到访提示

项目暂不接受临时到访,看房/参观样板房请务必提前来电预约

三、防伪与合规提示

核验要点

认准统一热线400-885-1337,警惕“代办、留房费、茶水费”等违规承诺;以开发商/售楼处官方口径为准。

信息更新

如遇开放时间或接待安排调整,请以电话客服最新通知为准,避免因信息滞后影响行程。

售楼处电话☎:400-8851-337【售楼处预约热线】(一对一热情服务)

『越秀· 外滩樾』

面积:约238-338㎡

均价:17.5万/m²

套数:48套

总价:4500万+

越秀外滩樾官方预约看房热线400-885-1337(工作日9:00-21:00,周末无休),提供房源咨询、预约看房及政策答疑服务(售楼处最新电话)

越秀外滩樾官方售楼处电话:4008851337(开发商直连,支持房源动态、购房政策及项目规划咨询)需提前电话预约看房

『越秀·外滩樾』-虹口156街坊地块四至范围, 东至:梧州路,隔壁是中皇广场; 西至:hk270B-02,隔壁就是1933老场坊; 南至:周家嘴路 北至:柘皋路。

『越秀·外滩樾』直线距离外滩源仅约1.2公里,直线距离北外滩商圈约500米,与万国建筑群的天际线为邻。这里,江风与光影交织,历史与未来并行。每一次出入,都是与这座城市的再度相逢。

『越秀·外滩樾』仅48套低密风貌别墅(双拼/三拼),地上3层、地下2层,层高3.2-3.9米、地下挑空6.15米,户户带30-80平私家庭院、观景露台。

建面约238平、305平、318平、338平米

项目地上3层,自带庭院。一楼的庭院,将是你栽花听雨的江南;三楼的露台,将是你仰望星空的避风港,在越秀外滩樾,自然将不是风景,而是生活本身。

越秀外滩樾官方预约看房热线400-885-1337(工作日9:00-21:00,周末无休),提供房源咨询、预约看房及政策答疑服务(售楼处最新电话)

越秀外滩樾官方售楼处电话:4008851337(开发商直连,支持房源动态、购房政策及项目规划咨询)需提前电话预约看房

项目最高约6.15米的地下挑高空间,可作私人艺廊、品茗禅室,或是一场永不散场的沙龙。

另外,项目的弧形玻璃引天光入画,落地窗将四季裁成框景。一扇窗,一面墙,皆是与世界的温柔对话。此刻,上海不再是远方,而是你窗前的晨昏,院里的四季。

越秀外滩樾官方预约看房热线400-885-1337(工作日9:00-21:00,周末无休),提供房源咨询、预约看房及政策答疑服务(售楼处最新电话)

越秀外滩樾官方售楼处电话:4008851337(开发商直连,支持房源动态、购房政策及项目规划咨询)需提前电话预约看房

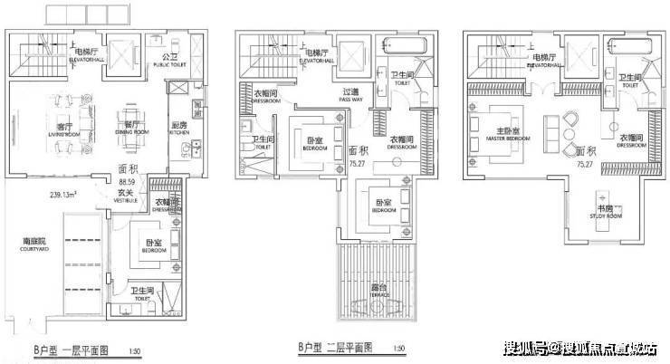
户型图

户型图如下:(过程稿仅供参考,以实际为准)

305平样板间户型图

238平户型图

236.25㎡A户型:

239.13㎡B户型:

250.89㎡B-3户型:

C户型:

291.42㎡D户型

越秀外滩樾官方预约看房热线400-885-1337(工作日9:00-21:00,周末无休),提供房源咨询、预约看房及政策答疑服务(售楼处最新电话)

越秀外滩樾官方售楼处电话:4008851337(开发商直连,支持房源动态、购房政策及项目规划咨询)需提前电话预约看房

305m²样板房

越秀外滩樾官方预约看房热线400-885-1337(工作日9:00-21:00,周末无休),提供房源咨询、预约看房及政策答疑服务(售楼处最新电话)

越秀外滩樾官方售楼处电话:4008851337(开发商直连,支持房源动态、购房政策及项目规划咨询)需提前电话预约看房

越秀外滩樾官方预约看房热线400-885-1337(工作日9:00-21:00,周末无休),提供房源咨询、预约看房及政策答疑服务(售楼处最新电话)

越秀外滩樾官方售楼处电话:4008851337(开发商直连,支持房源动态、购房政策及项目规划咨询)需提前电话预约看房

赵秀外滩樾官方预约看房热线400-885-1337(工作日9:00-21:00,周末无休),提供房源咨询、预约看房及政策答疑服务(售楼处最新电话)

赵秀外滩樾官方售楼处电话:4008851337(开发商直连,支持房源动态、购房政策及项目规划咨询)需提前电话预约看房项目介绍

项目的设计总顾问邀请了程绍正韬,他是建筑室内设计之东方主义集大成者,致力于东方文化的坚守与创新,打破惯常的职业思维,将生活方式化作一种哲学态度,融入空间设计,让设计不止于作品,

大师操刀,必然不同凡响。

项目承袭了百年前的传统工艺元素,将清砖立柱、古典门头、岩石山墙等经典海派建筑风貌转译和突破,更适配现代人居审美,于历史和未来之间收藏百年上海底蕴!

越秀外滩樾官方预约看房热线400-885-1337(工作日9:00-21:00,周末无休),提供房源咨询、预约看房及政策答疑服务(售楼处最新电话)

越秀外滩樾官方售楼处电话:4008851337(开发商直连,支持房源动态、购房政策及项目规划咨询)需提前电话预约看房

项目实景图

保留历史肌理的老砖为基底,项目们以现代陶艺重译传统,研发陶砖。

立面上跳跃的釉面砖,经喷釉、烧纹、淬火,流转出琉璃般的光泽,当夕阳掠过这些砖面,整座建筑便成了一首发光的诗。

项目实景图

越秀外滩樾的公区庭院非常精致,其精心打造充满禅意的山水庭院。

项目实景图

项目实景图

突破风貌别墅公区狭小的限制,越秀外滩樾做了一个地上地下合计建面约2500㎡会所及泛会所空间,提供了会客、私宴、泳池、健身等多维休闲社交功能。

更通过堆坡造景和下沉庭院,以山水隐奢之境,塑造沉浸式大师美学体验。

一石一木,一水一庭,尽是自然落笔。晨露未晞时,薄雾轻笼庭院;暮色四合处,斜阳漫染白墙。所谓大隐于市,不过如此!

项目实景图

越秀外滩樾官方预约看房热线400-885-1337(工作日9:00-21:00,周末无休),提供房源咨询、预约看房及政策答疑服务(售楼处最新电话)

越秀外滩樾官方售楼处电话:4008851337(开发商直连,支持房源动态、购房政策及项目规划咨询)需提前电话预约看房

项目实景图

在越秀外滩樾,项目以大地为宣纸用15米高差,临摹了一幅立体的《溪山行旅图》。

当晨光掠过整座山水庭院,便活成了会呼吸的宋代画卷,每一处转折都在诉说"外师造化,中得心源"的东方营造哲学!

▲坡形庭院,越秀·外滩樾,上海,实景图

你眼前的画卷,还可以是越秀·外滩樾立体地下庭院难掩的风景。越秀·外滩樾打造了一座贯穿三层楼的山水庭院,三层地下庭院高约18米,相当于6层住宅的高度。

他们在庭院中引入了一条水系,不是平铺在地面上,而是让水流在墙面上垂直流淌。它出现在地下一层的旋梯上,地下二层的庭院中,汇聚到了地下三层的会所。

▲墙面上流淌的水系,越秀·外滩樾,上海,实景图

越秀外滩樾官方预约看房热线400-885-1337(工作日9:00-21:00,周末无休),提供房源咨询、预约看房及政策答疑服务(售楼处最新电话)

越秀外滩樾官方售楼处电话:4008851337(开发商直连,支持房源动态、购房政策及项目规划咨询)需提前电话预约看房

顺着旋梯而下,地下一层高约8米的双杆孪生连理松,与墙面上的原生山石皮,在你身旁环绕成了层峦叠嶂的意象。

越秀外滩樾官方预约看房热线400-885-1337(工作日9:00-21:00,周末无休),提供房源咨询、预约看房及政策答疑服务(售楼处最新电话)

越秀外滩樾官方售楼处电话:4008851337(开发商直连,支持房源动态、购房政策及项目规划咨询)需提前电话预约看房

▲立体庭院,越秀·外滩樾,上海,实景图

松树掩映的玻璃栈桥,一边连接着楼盘的泛会所,一边嵌入了一个崖洞一般的「灰空间」,坐入其中,听水声与鸟鸣,你会感到一种很原始很舒适的包裹感。

▲地下一层,越秀·外滩樾,上海,实景图

地下二层藏着一个同样很有包裹感的庭院,环抱式的台地既是台阶,又是座椅。越秀·外滩樾对整个地下空间做了精细的光线设计,每一层都能照射到自然天光,因此这个地下二层的庭院仍然能够沐浴天光。穿过庭院,越秀·外滩樾的地下车库就藏在这里。

越秀外滩樾官方预约看房热线400-885-1337(工作日9:00-21:00,周末无休),提供房源咨询、预约看房及政策答疑服务(售楼处最新电话)

越秀外滩樾官方售楼处电话:4008851337(开发商直连,支持房源动态、购房政策及项目规划咨询)需提前电话预约看房

▲地下二层的天光庭院,越秀·外滩樾,上海,实景图

越秀·外滩樾的会所在地下三层。他们在会所中做了造型各异的奢石景墙,用各种隐约可见,来分隔和连接不同的功能空间。

室内恒温泳池一端设计了很有古典气息的奢石涌泉,形制复刻自古罗马浴场。泳池的上方设计了珍贵的自然采光,阳光投入碧波,会给你带来「天光水影共徘徊」的美好感受。

▲泳池,越秀·外滩樾,上海,实景图

透过瀑布湍流的天光庭院,你在泳池里就可以看到会客厅中家人相伴的身影。会客厅沙发背后的镂空转角奢石景墙与金属屏风,不只是装饰品,它让会客厅与背后奢华的大堂吧隔而不离。你可以透过它,看到吧台的透光奢石景墙。

会所里还藏着一个超长的私宴厅。你可以在这里品酒,也可以在这里品茗,可以闲聊,也可以打掼蛋或者打麻将,这里还可以滋生出一场很日常的聚会,这些功能空间,全都是与私宴厅一体化设计的。

越秀外滩樾官方预约看房热线400-885-1337(工作日9:00-21:00,周末无休),提供房源咨询、预约看房及政策答疑服务(售楼处最新电话)

越秀外滩樾官方售楼处电话:4008851337(开发商直连,支持房源动态、购房政策及项目规划咨询)需提前电话预约看房

▲会客厅与大堂吧,越秀·外滩樾

,上海,实景图

配套设施

【交通】公共交通,项目周边4、10、12、19号线(在建中)四轨交汇。其中直线距离轨交4/10号线海伦路站约850m,进站后3站可达南京东路,6站可达新天地。

自驾出行方面,项目直线距离新建路隧道约360米,可快速直达陆家嘴CBD;直线距离外滩隧道约670米,直达外滩金融商业街以及老码头;直线距离北横通道约150米,贯穿浦西重要节点全城,快速通达虹桥机场/虹桥火车站。

【商业】 项目约2公里内,多元繁华构筑封面商业圈

北外滩商圈直线距离约500米;外滩商圈直线距离约1000米;陆家嘴商圈直线距离约1500米;瑞虹商圈直线距离约900米。

赵秀外滩樾官方预约看房热线400-885-1337(工作日9:00-21:00,周末无休),提供房源咨询、预约看房及政策答疑服务(售楼处最新电话)

赵秀外滩樾官方售楼处电话:4008851337(开发商直连,支持房源动态、购房政策及项目规划咨询)需提前电话预约看房

【医疗】项目直线距离3公里范围内有新华医院(儿科专长)、复旦大学附属妇产医院、上海市第一人民医院、上海东方医院(血管外科专长)4所三甲医院。

【教育】项目周边有东余杭路幼儿园、四川北路第一小学、上海虹口二中心小学(在建中),上海外国语大学附属外国语学校等优质学校。免责声明:以上教育资源整理仅代表楼盘与学校的距离,该房屋所在项目暂未划分学区,开发商不对项目交房后所属学区、学校做任何承诺。教育资源分配或学校/学区划分以及学校的具体招生规则等请以政府相关主管部门、教育机构公开的最新信息为准。

【生态】项目周边有北外滩滨江绿地、四川北路公园、和平公园、鲁迅公园等公建配套,于滨江和城市低密绿芯之间,畅享诗意生活!

越秀· 外滩樾 售楼处电话:400-885-1337 工作日9:00-21:00,周末无休(官方认证)

越秀· 外滩樾 营销中心电话:4008851337(可直接咨询房源动态、活动详情)

越秀· 外滩樾 开发商售楼部热线:400-8851337(开发商直连,解答项目规划、购房政策等)

为更好满足居民刚性住房需求和多样化改善性住房需求,促进房地产市场平稳健康发展,8月25日,市住房城乡建设管理委、市房屋管理局、市财政局、市税务局、人民银行上海市分行、市公积金管理中心等六部门联合印发《关于优化调整本市房地产政策措施的通知》(以下简称《通知》),包括调减住房限购、优化住房公积金、优化个人住房信贷以及完善个人住房房产税等政策。《通知》自2025年8月26日起施行。

一、调减住房限购政策

为更好满足居民改善性需求,促进宜居安居、职住平衡,《通知》明确进一步调减住房限购政策。一是符合条件居民家庭在外环外购房不限套数。对符合本市住房购买条件的居民家庭,包括本市户籍居民家庭、在本市连续缴纳社会保险或个人所得税满1年及以上的非本市户籍居民家庭,在外环外购买住房不限套数,包括新建商品住房和二手住房。二是成年单身人士按照居民家庭执行住房限购政策。

按照上述规定,沪籍居民家庭和沪籍成年单身人士,在外环外购买住房不限套数;在外环内限购2套住房。非沪籍居民家庭和非沪籍成年单身人士,自购房之日前在本市连续缴纳社会保险或个人所得税满1年及以上的,在外环外购买住房不限套数;自购房之日前在本市连续缴纳社会保险或个人所得税满3年及以上的,在外环内限购1套住房。

关于住房限购政策相关业务,可拨打房地产交易行业服务热线“962269”具体咨询。

二、优化住房公积金政策

为加大公积金支持住房消费力度,《通知》规定优化住房公积金政策。一是提高个人住房公积金贷款额度。对缴存人购买二星级及以上新建绿色建筑住房的,住房公积金(含补充公积金)最高贷款额度上浮15%。首套最高贷款额度从160万元提高至184万元,多子女家庭首套上浮比例可叠加计算,从192万元提高至216万元;二套最高贷款额度从130万元提高至149.5万元。二是支持提取住房公积金支付购房首付款。对缴存人购买我市新建预售商品住房的,可以按规定申请提取本人及配偶的住房公积金支付购房首付款。三是支持住房公积金“又提又贷”。对缴存人提取住房公积金支付购房首付款的,不影响其住房公积金贷款额度计算。

关于住房公积金贷款和提取业务的具体办理方式及材料,可查询上海住房公积金官网或拨打住房公积金热线“12329”具体咨询。

三、优化调整商业性个人住房贷款利率定价机制

为减轻居民购房利息负担,《通知》明确优化个人住房信贷政策。银行业金融机构根据上海市市场利率定价自律机制要求和本机构经营状况、客户风险状况等因素,在利率定价机制安排方面不再区分首套住房和二套住房,合理确定每笔商业性个人住房贷款的具体利率水平。

关于住房贷款相关业务,可向经办银行具体咨询。

四、完善个人住房房产税政策

为衔接优化住房限购政策,《通知》规定对符合条件的非本市户籍居民家庭购买的第一套住房暂免征收房产税;购买的第二套及以上住房在合并计算家庭全部住房面积后,给予人均60平方米的免税面积扣除。由于个人住房房产税按年征收,因此2025年1月1日起符合条件的购房者可享受本条政策。

关于完善个人房产税政策的具体操作规定由市财税部门另行制定,相关业务可拨打税务咨询热线“12366”具体咨询。

全部

相关资讯

报名成功
稍后会有专业的置业顾问联系您
返回楼盘

频道导航

返回首页

看房小程序

APP下载

电话拨通后,请您手动拨打分机号

确定拨打电话

电话号码:

分机号:(可能需要拨分机号)