联仲都悦汇 (官方售楼处) 联仲都悦汇官网 - 联仲都悦汇销售中心 - 环境 - 户型 - 价格 - 地址 - 配套 - 电话 - 交房时间 - 配套 - 电话 - 交房时间

搜狐焦点宣城站

2026-03-23 11:39:24

购房群

买房如何避坑,加入购房群,看看他们怎么说

立即进群

上海闵行联仲都悦汇售楼处电话:400-8828-814✔✔【预约热线】联仲都悦汇售楼处营销中心:400-8828-814联仲都悦汇售楼处电话/地址☎:400-882-8814(开发商热线)如有问题欢迎来电咨询,专业一对一热情服务,让您用专业眼光去买房。最新消息,送100w装修!闵行·商墅 联仲·都悦汇 约310-411㎡法式商墅!总价约1420万~1800,法式干挂 地上三层 地下一层。

专业一对一顾问:解答房价特价、优惠政策、在售房源等疑问,用专业眼光帮你选房

预约福利:提前预约可享售楼处专车接送、优先选房权、专属购房优惠

资料获取:来电即送楼盘图、沙盘图、位置图、配套图全套资料,助你全面了解项目

☎☎房价特价信息丨优惠政策丨详细解答丨在售房源丨在售户型图丨项目介绍

周边配套丨VR看房丨楼盘图丨沙盘图丨位置图丨配套图丨售楼处地址丨足不出户

闵行·旗别墅富人区

【联仲·都悦汇】☑️☑️联仲都悦汇售楼处电话:400-882-8814☑️☑️

建面310~411㎡商业联排别墅

法式干挂 地上三层 地下一层

☑️☑️联仲都悦汇售楼处电话:400-882-8814☑️☑️

带南北双花园90-300㎡

☑️☑️联仲都悦汇售楼处电话:400-882-8814☑️☑️

总价约:1420-1800万

实景现房不限购 通燃气

☑️☑️联仲都悦汇售楼处电话:400-882-8814☑️☑️

☑️☑️联仲都悦汇售楼处电话:400-882-8814☑️☑️

☑️☑️联仲都悦汇售楼处电话:400-882-8814☑️☑️

01.项目基本信息

【开发商】:上海联仲置业有限公司

【物业】:上海仲量联行物业管理公司

【容积率】:1.0

【绿化率】:35%

【车位比】:1:2.1

【物业费】:8元/㎡/月

【本次开盘】:14套

【物业类型】:商业联排别墅

【交付标准】:毛坯☑️☑️联仲都悦汇售楼处电话:400-882-8814☑️☑️

【拿地时间】:2014年8月

【交房时间】:2023年6月☑️☑️联仲都悦汇售楼处电话:400-882-8814☑️☑️

在售户型:建面约310-410平米,地上三层地下一层

(地上:一层层高3.6米/二层层高3.4米/三层层高3.4米/地下层高5.4米)

总价:约1400-1800万️☑️☑️联仲都悦汇售楼处电话:400-882-8814☑️☑️

单价:约5万/平米

小区整体商业:10万方(在建)南北双花园90-300平

水电:商水&商电,电1.3元/度,水6元/吨

产权车位:约30万左右☑️☑️联仲都悦汇售楼处电话:400-882-8814☑️☑️

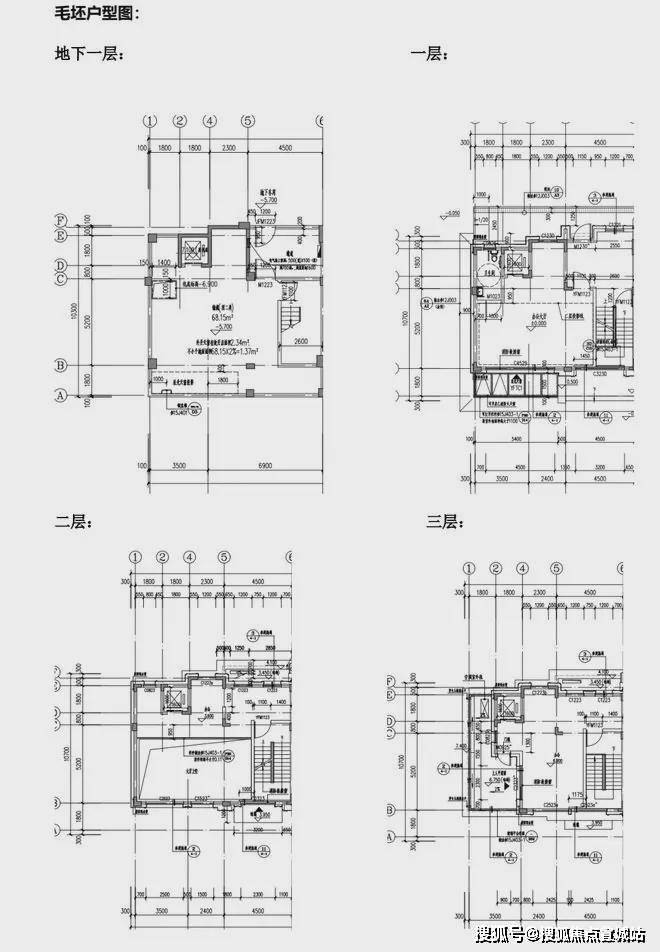
02.户型图及样板间照户

(特殊说明:户型朝向-上南下北)

约10.4米大面宽,面积达到55平

送电梯,北进门,南花园,超大地下室

客厅7米落地窗,采光明亮,尽显大气

约310平户型图▼☑️☑️联仲都悦汇售楼处电话:400-882-8814☑️☑️

☑️☑️联仲都悦汇售楼处电话:400-882-8814☑️☑️约378~420平户型图▼

☑️☑️联仲都悦汇售楼处电话:400-882-8814☑️☑️约407~441平户型图▼

样板间效果图如下:☑️☑️联仲都悦汇售楼处电话:400-882-8814☑️☑️

☑️☑️联仲都悦汇售楼处电话:400-882-8814☑️☑️

☑️☑️联仲都悦汇售楼处电话:400-882-8814☑️☑️

☑️☑️联仲都悦汇售楼处电话:400-882-8814☑️☑️

☑️☑️联仲都悦汇售楼处电话:400-882-8814☑️☑️

☑️☑️联仲都悦汇售楼处电话:400-882-8814☑️☑️

☑️☑️联仲都悦汇售楼处电话:400-882-8814☑️☑️

☑️☑️联仲都悦汇售楼处电话:400-882-8814☑️☑️

☑️☑️联仲都悦汇售楼处电话:400-882-8814☑️☑️

☑️☑️联仲都悦汇售楼处电话:400-882-8814☑️☑️

03.项目区位配套

【联仲·都悦汇】位于闵行马桥旗忠别墅区,旗忠别墅区是上海老牌的富人区,与松江佘山、浦东东郊齐称为沪上三大国际别墅区。上海仅存少量的容积率0.18以下超低密度居住用地中,大多数在马桥旗中别墅区。☑️☑️联仲都悦汇售楼处电话:400-882-8814☑️☑️

板块以低容积率、生态自然环境和高端国际品牌配置,2010年被列为上海第二批大型居住社区之一。总建面约33万方城市综合体联仲都悦汇位于旗中板块正核心,紧临网球中心,超10万方市政绿化所环绕。☑️☑️联仲都悦汇售楼处电话:400-882-8814☑️☑️

【联仲都悦汇】同样是低密度别墅区里的一员,背靠绿城玫瑰园,容积率低至1.0。项目贯穿了3条自然水系,分为ABCD四个地块,其中ABC为商住办综合地块,自带商业办公。☑️☑️联仲都悦汇售楼处电话:400-882-8814☑️☑️

交通配套方面:项目距离嘉闵高架元江路出口3公里,毗邻G15、S32等快速主动脉,30分钟大虹桥,50分钟抵达浦东机场,快捷畅达全城。☑️☑️联仲都悦汇售楼处电话:400-882-8814☑️☑️

地铁:5号线华宁路站,剑川路站☑️☑️联仲都悦汇售楼处电话:400-882-8814☑️☑️

公交:马莘专线:联工路站,闵行19路:银春路华宁路站

高速:嘉闵高架、沪金高速、虹梅南路高架 沪昆高速、申嘉湖高速、沪闵高架

高铁:距离上海虹桥枢纽站(高铁、机场)约20km

未来规划:嘉闵线延伸段☑️☑️联仲都悦汇售楼处电话:400-882-8814☑️☑️

(以上数据来源于高德地图)

商业配套方面:项目自带10万方商业,为旗忠唯一的综合性商业配套,其多元化的业态结构,结合旗忠独有的资源,必将带来旗忠全新生活方式。☑️☑️联仲都悦汇售楼处电话:400-882-8814☑️☑️

☑️☑️联仲都悦汇售楼处电话:400-882-8814☑️☑️

☑️☑️联仲都悦汇售楼处电话:400-882-8814☑️☑️

生态资源方面:项目周边有马桥森林公园、旗忠高尔夫球场、旗忠网球中心、韩湘水博园、养云安缦酒店等。☑️☑️联仲都悦汇售楼处电话:400-882-8814☑️☑️

教育资源方面:周边有复旦万科实验学校,德威英国国际学校、斯代文森国际高中、上海美高学校。幼儿园:元祥幼儿园、富杰幼儿园启英幼儿园,大学:上海交通大学、华东师范大学☑️☑️联仲都悦汇售楼处电话:400-882-8814☑️☑️

☑️☑️联仲都悦汇售楼处电话:400-882-8814☑️☑️

☑️☑️联仲都悦汇售楼处电话:400-882-8814☑️☑️

☑️☑️联仲都悦汇售楼处电话:400-882-8814☑️☑️

上海「沪七条」新政·核心速记(2026.2.26执行)

一、限购放宽(最重磅)

• 非沪籍买外环内:社保1年即可买1套

• 非沪籍社保满3年:外环内可买2套

• 非沪籍1年社保:外环外不限套数

居住证满5年:全市可买1套,不用社保个税

二、公积金大提升

• 首套家庭最高:240万(原160万)

• 多子女+绿色建筑:最高可贷324万

• 公积金结清后,可再次贷款

• 多子女家庭二套也能额度上浮

三、房产税利好

• 沪籍成年子女唯一住房,暂免房产税

• 与父母共有房,置换后唯一可退税

上海闵行联仲都悦汇售楼处电话:400-8828-814✔✔【预约热线】联仲都悦汇售楼处营销中心:400-8828-814联仲都悦汇售楼处电话/地址☎:400-882-8814(开发商热线)如有问题欢迎来电咨询,专业一对一热情服务,让您用专业眼光去买房。最新消息,送100w装修!闵行·商墅 联仲·都悦汇 约310-411㎡法式商墅!总价约1420万~1800,法式干挂 地上三层 地下一层。

专业一对一顾问:解答房价特价、优惠政策、在售房源等疑问,用专业眼光帮你选房

预约福利:提前预约可享售楼处专车接送、优先选房权、专属购房优惠

资料获取:来电即送楼盘图、沙盘图、位置图、配套图全套资料,助你全面了解项目

☎☎房价特价信息丨优惠政策丨详细解答丨在售房源丨在售户型图丨项目介绍

周边配套丨VR看房丨楼盘图丨沙盘图丨位置图丨配套图丨售楼处地址丨足不出户

全部

相关资讯

报名成功
稍后会有专业的置业顾问联系您
返回楼盘

频道导航

返回首页

看房小程序

APP下载

电话拨通后,请您手动拨打分机号

确定拨打电话

电话号码:

分机号:(可能需要拨分机号)