太仓湖语颂
售楼处电话:400-9696-224(预约热线)
欢迎致电售楼处电话,专业一对一热情服务,让您用专业眼光去买房。
报名等销售电话确认后,请再前往现场
天镜湖畔 法式人文墅区
建面约120-140㎡装修洋房
建面约155-185㎡法式叠墅
-------------------------------------------
【基础信息】
【所属区位】 太仓市·科教新城·天镜湖
【开 发 商】碧桂园&金地&龙光
【物业类型】8层洋房 + 6层叠墅
【产权年限】70年
【总 建 面】约16.6万㎡
【容 积 率】1.6
【绿 化 率】超37%
【建筑密度】<35%
【车 位 比】约1:1.8
【总 户 数】1102
【得 房 率】约85%~87%
【交房时间】一期2023年11月、二期2025年4月 商铺:2025年6月
【物 业 费】1.74元+能耗0.5元、【商业:3元】
【物业公司】龙光物业
【装修配置】装修洋房+毛坯叠墅
【在售套数】约150套
【在售建面】约120-140㎡装修八层洋
约155-175㎡法式低密叠墅
下叠带花园,边套约80㎡,中间套约30-40㎡;
上叠带露台及阁楼,北露台约10㎡,南露台约17㎡,阁楼约40㎡
【装修标准】新风系统➕中央空调➕全屋地暖
项目卖点:
1.容积率低至1.6 双产品洋房+别墅
2.法式建筑风格 承袭莫奈花园优雅景观呈现
3.三大件装修交付(新风 地暖 中央空调)
---------------------------------------------------------------------------
一、天镜湖畔 太仓唯一都市湖居
湖语颂位于科教新城天镜湖板块,距离天镜湖仅800米,占据太仓唯一的都市湖居资源。
二、湖语颂 全太仓唯一的低密墅区
湖语颂,容积率约1.6法式景观境界。建面约120-140㎡装修八层洋房,建面约155-185㎡阔绰人文叠墅。
太仓湖语颂
售楼处电话:400-9696-224(预约热线)
欢迎致电售楼处电话,专业一对一热情服务,让您用专业眼光去买房。
报名等销售电话确认后,请再前往现场
三、ONE系迭代著品
湖语颂建筑风格为法式风格,立面材料为局部石材、真石漆、保温一体板及L0W-E中空玻璃,整体色调为经典的法式米白色搭配灰色坡屋顶,透露出法式优雅高贵的质感。
四、法式园林,让生活沉浸于浪漫
【三大仪式入口】

【全龄活动场地】

【约1200米健康跑道】

【绿意森氧社区】

【法式商业街区】

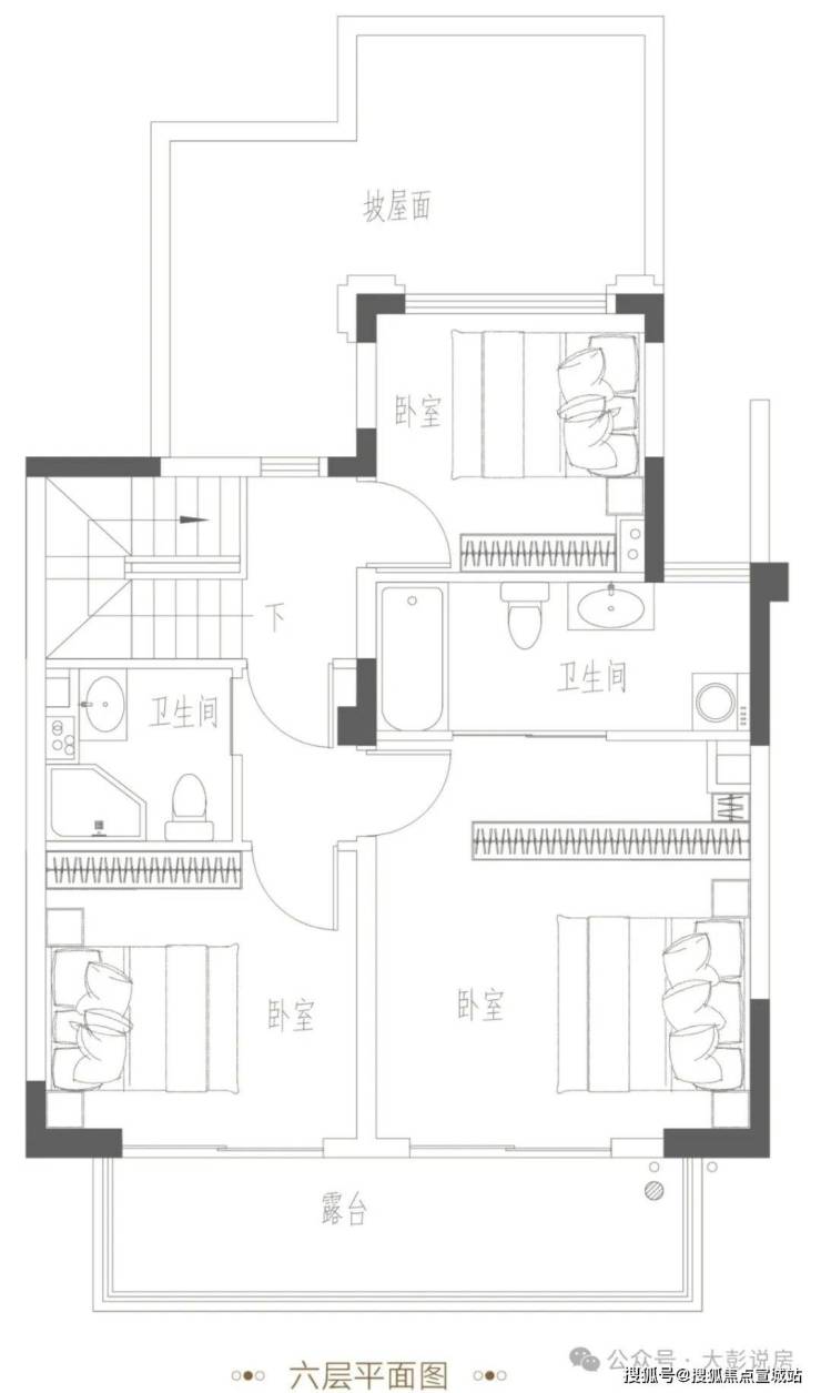
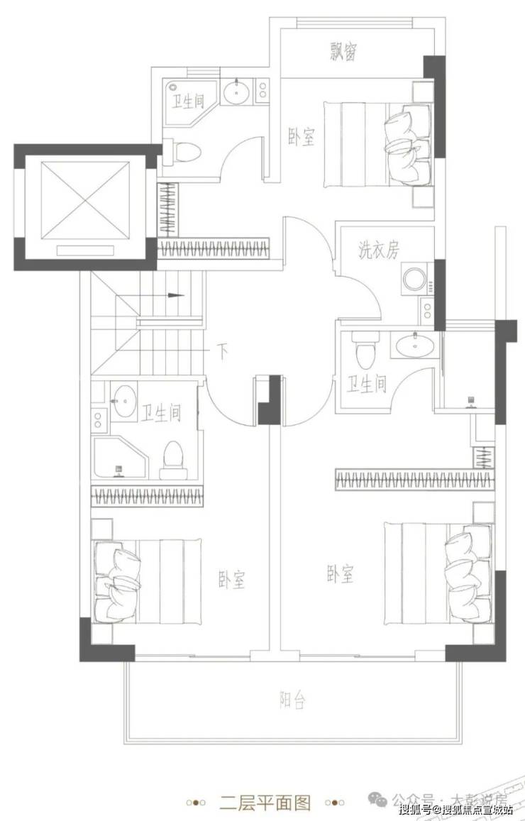
五、户型赏析(得房率:约82%~87%)
叠墅A户型(中叠)
叠墅B户型(上叠)
太仓湖语颂
售楼处电话:400-9696-224(预约热线)
欢迎致电售楼处电话,专业一对一热情服务,让您用专业眼光去买房。
报名等销售电话确认后,请再前往现场
叠墅B户型(中叠)
叠墅B户型(下叠)
太仓湖语颂
售楼处电话:400-9696-224(预约热线)
欢迎致电售楼处电话,专业一对一热情服务,让您用专业眼光去买房。
报名等销售电话确认后,请再前往现场
洋房装修标准:
太仓最高标准打造,配备全屋新风系统、中央空调、地暖等
太仓湖语颂
售楼处电话:400-9696-224(预约热线)
欢迎致电售楼处电话,专业一对一热情服务,让您用专业眼光去买房。
报名等销售电话确认后,请再前往现场
有不少朋友都想知道
苏州的购房政策是怎样的?
今日小编为大家整理
2025年苏州目前的一些购房政策
大家一起来看看吧!
购房贷款
商贷
(1)首套住房:最低首付不低于15%,
(2)二套住房:最低首付不低于25%;
👉LPR报价:2025年5月20日贷款市场报价利率(LPR)为:1年期LPR为3.0%,5年期以上LPR为3.5%。以上LPR在下一次发布LPR之前有效。
公积金贷款
👉首付:使用住房公积金贷款购买家庭首套或第二套自住住房的,首付款比例均不低于住房总价的20%。
👉利率:中国人民银行决定,自2025年5月8日起,下调个人住房公积金贷款利率0.25个百分点。
⏩5年以下(含5年)个人住房公积金贷款利率:
首套2.1%,第二套不低于2.525%。
⏩5年以上个人住房公积金贷款利率:
首套2.6%,第二套不低于3.075%。
👉额度:借款申请人及共同借款申请人中有两人(含)以上共同参与计算可贷额度的,贷款最高限额为150万元;仅借款人一人计算可贷额度的,贷款最高限额为120万元。
以下情况贷款额度上浮:
⏩养育未成年二孩,购买家庭首套或第二套自住住房的
上浮30%。个人和家庭公积金贷款最高限额分别达到156万元和195万元。
⏩养育未成年三孩及以上,购买家庭首套或第二套自住住房
上浮40%。个人和家庭公积金贷款最高限额分别达到168万元和210万元。
⏩使用住房公积金贷款购买新建改善型住宅
上浮20%,个人和家庭公积金贷款最高限额分别达到144万元和180万。
⏩“筑梦苏城”青年人才家庭
上浮50%,人和家庭公积金贷款最高限额分别达到180万元和225万元。
⏩军人家庭
上浮20%,家庭为180万元,单人为144万元。
购房/装修补贴
购房补贴
购买我市新建商品住房的购房家庭,可享受购房合同金额的0.5%的补贴(以网签备案合同金额为准)。购房家庭取得不动产权证后,由购买的新房所在县级市(区)负责按程序发放补贴。
装修补贴
本次补贴按照个人消费者与活动参与企业签订装修合同中的物品和材料购置价的15%给予补贴,每人且每套房补贴金额最高不超过3万元。
👉申请入口:5月29日8时起个人消费者可通过江苏银行“苏银随心办”微信小程序在线提交申请。
👉一套房有多个产权人的只补贴一次。
👉同一套房不重复享受商务部门的家装家居补贴、民政部门的居家适老化改造补贴和住建部门2024年旧房装修、厨卫局部改造补贴。
人才房票
工业园区人才房票
对全日制普通高校大专生、本科生、硕士研究生、博士研究生,分别给予7万元、10万元、15万元、25万元房票补贴。
注:人才购买新建商品住房时,将人才房票交由房地产开发企业收取并核验,按票面金额一次性抵扣房款,房票可抵首付。
高新区人才房票
✅购房优惠。纳入房源库的国资公司控股的商品房项目,在房票补贴基础上可享受国企团购优惠政策。
✅贷款优惠。参照市、区人才乐居政策相关标准执行。
✅补贴额度
对全日制普通高校博士研究生、硕士研究生、本科生、大专生分别给予20万元、12万元、8万元、3万元人才房票;高级工及以上技能人才给予3万元人才房票。
✅贷款支持
人才使用住房公积金贷款购置首套新建商品住房的,贷款额度可按有关规定最高放宽至限额的4倍。
三低一宽政策
苏州市住建局会同相关金融机构研究出台了“三低一宽”特色化金融产品(低首付、低利息、低月供、宽期限),可叠加人才房票政策。
👉低首付:最低首付比例15%,符合各地人才房票政策的购房者,可将人才房票等额抵用于区域内购买新建商品住房的首付款。
👉低利息:符合相关征信条件,可享受最低商业贷款利率。
👉低月供+宽期限:部分金融机构可提供定制化购房贷款产品,可享受前五年每月最低只归还100元本金,延长购房者本金还款期限,降低购房初期还款压力。
*以吴中区本科学历购房者为例:若购买总价200万元的新房:首付30万元(比例15%)中,人才房票可抵用8万元,购房者自筹22万元。贷款170万元按利率3%计算:普通房贷客户(30年期等额本金)首月还款8972元,特色化金融产品客户前五年每月还本金100元,首月还款4350元,首月月供减少约51%。
苏州换购住房退税
👉申请时间:自2024年1月1日至2025年12月31日,对出售自有住房并在现住房出售后1年内在市场重新购买住房的纳税人,对其出售现住房已缴纳的个人所得税予以退税优惠。
👉申请条件
享受本公告规定优惠政策的纳税人须同时满足以下条件:
①出售和重新购买的住房应在同一城市范围内。同一城市范围是指同一直辖市副省级城市、地级市(地区、州、盟)所辖全部行政区划范围。
②出售自有住房的纳税人与新购住房之间须直接相关,应为新购住房产权人或产权人之一。
👉退税金额
(1)出售自有住房
①新购住房金额≥现住房转让金额
退税金额=现住房转让时缴纳的个人所得税
②新购住房金额<现住房转让金额
退税金额=(新购住房金额÷现住房转让金额)x现住房转让时缴纳的个人所得税
(2)出售共有住房
对于出售多人共有住房或新购住房为多人共有的,应按照纳税人所占产权份额确定该纳税人现住房转让金额或新购住房金额。
👉申请方式
向征收现住房转让所得个人所得税的主管税务机关提出申请。
👉申请材料
填报《居民换购住房个人所得税退税申请表》,并提供下列资料:
1.纳税人身份证件
2.现住房的房屋交易合同
3.新购住房为二手房的,提供房屋交易合同、不动正共及其复印件
4.新购住房为新房的,提供经住房城乡建设部门备案(网签)的房屋交易合同及其复印件