太仓碧桂园湖语颂
售楼处热线:400-998-7894
专业热情细致服务〢给您一个温馨满意的家〢
如有问题欢迎来电咨询,专业一对一热情服务,让您用专业眼光去买房

【楼盘简介】
楼盘名称:太仓市·湖语颂
开发商:碧桂园&龙光&金地
总建筑面积:约16.6万㎡
物业类型:8层洋房 + 6层叠墅
容积率:1.6
绿化率:超37%
建筑密度:<35%
总户数:1102
户型信息:建面约105-140㎡装修八层洋房;
建筑面积:约155-185㎡法式低密叠墅。
销售单价:洋房22500-23000元/㎡左右;叠加别墅24000元/㎡左右;
车位比:约1:1.8
产权年限:70年产权住宅
物业费:商业3元、住宅1.74元、能耗0.5元
交付时间:一期2023.11.20;二期2025.4.25。
装修配置:精装洋房+低密叠墅。
楼盘地址:太仓市科教新城售楼处电话:400-998-7894天镜湖东桴亭路与文渊路交界处。
碧桂园.湖语颂江苏省苏州市太仓市城厢镇文渊路与桴亭路交叉口东北
188㎡(中叠加别墅)


户型亮点:
约6.55米面宽双层阳台,双层270°转角飘窗
南向四卧,动静分离
三层约7.2米面宽大横厅
四层双套房设计
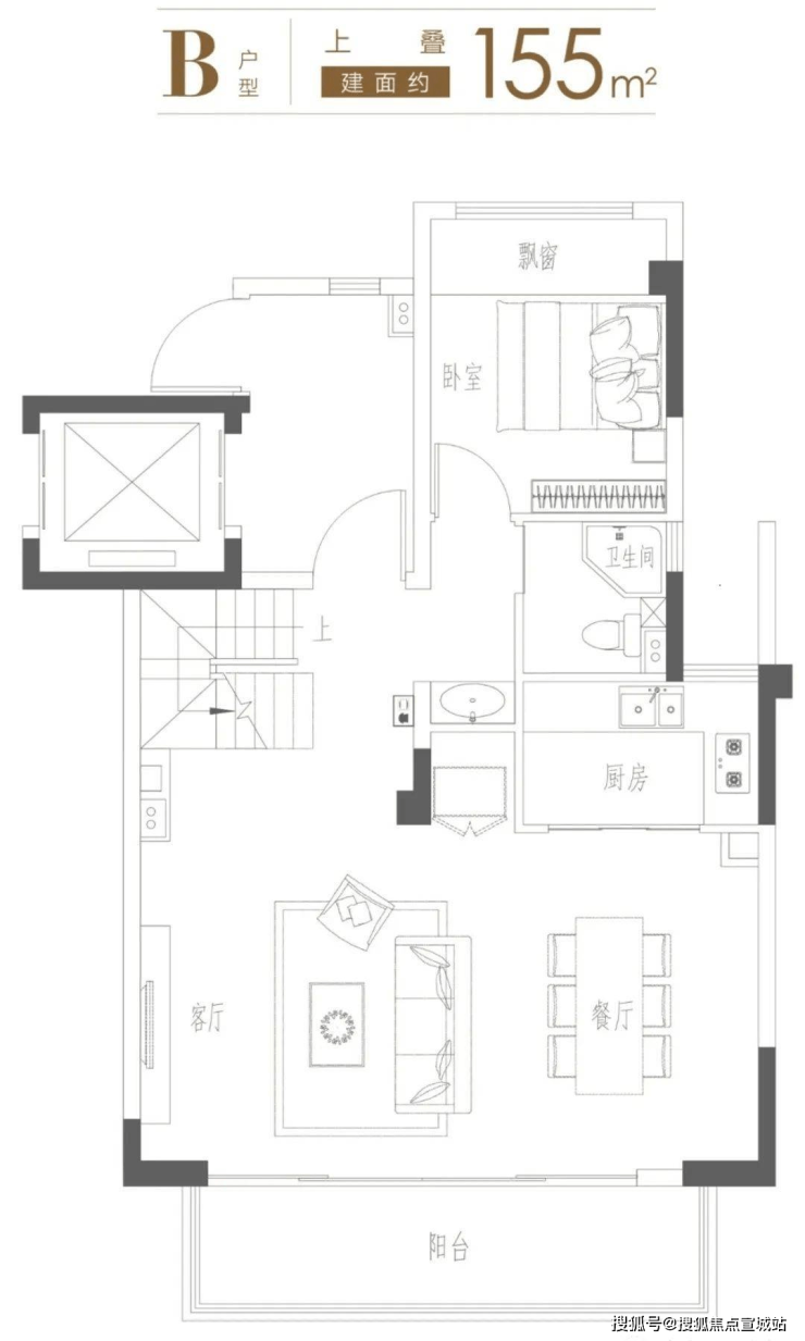
155㎡(上叠加别墅)


户型亮点:
独立入户设计
约6.15米面宽阳台
五层约7.55米面宽大横厅
六层奢阔主卧设计
175㎡(中叠加别墅)


户型亮点:
独立入户设计
约6.15米面宽双层阳台
三层约7.55米面宽餐客厅
四层全套房设计
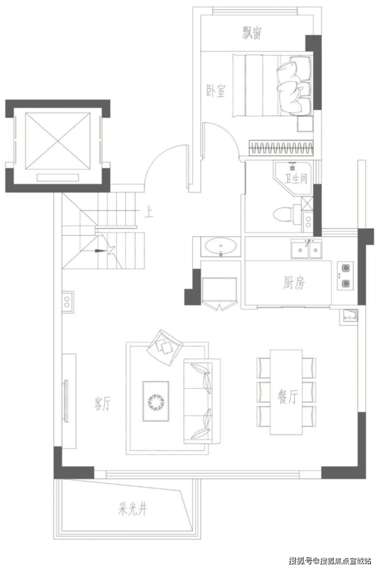
170㎡(下叠加别墅)



户型亮点:
负一层储藏室建面约80㎡,约5.1米层高
一层约7.55米面宽大横厅
二层全套卧设计
洋房109㎡

洋房120㎡

洋房140㎡

装修标准
太仓最高标准打造,配备全屋新风系统、中央空调、地暖等;
楼盘首开范围:30#、31#、32#、33#、35#、36#、39#、48#、49#。
二期范围:34#、37#、38#、41#、42#、51#、52#。
-----------------------

一、天镜湖畔 太仓唯一都市湖居
湖语颂售楼处电话:400-998-7894位于科教新城天镜湖板块,距离天镜湖仅800米,占据太仓唯一的都市湖居资源。
【交通】沪苏通铁路太仓站、太仓南站、G15沈海高速
【学校】南郊幼儿园、科教新城实验小学、良铺中学、太仓高中
【商业】南洋广场、华旭广场、万达广场、华发商城、天镜湖商业街、海运堤风情商业街
【公园】天镜湖公园
二、湖语颂 售楼处电话:400-998-7894全太仓唯一的低密墅区

三、ONE系迭代著品

四、法式园林,让生活沉浸于浪漫
【三大仪式入口】

【全龄活动场地】

【约1200米健康跑道】

【绿意森氧社区】


太仓碧桂园湖语颂
售楼处热线:400-998-7894
专业热情细致服务〢给您一个温馨满意的家〢
如有问题欢迎来电咨询,专业一对一热情服务,让您用专业眼光去买房。、
注:(免责声明:本篇分享文案非广告,所涉及的图文资料仅供参考,项目可能对项目细节等做进一步优化调整,具体以最终签订的买卖合同为准,在法律规定的范围内保有最终解释权。部分图片素材来自网络,如有侵权请联系小编删除,感谢支持。)