越秀外滩樾电话(‌‌‌‌‌‌上海越秀外滩樾)2025新首页网站丨越秀外滩樾房价_越秀外滩樾户型图_越秀外滩樾地址_越秀外滩樾楼盘详情

搜狐焦点宣城站

2025-06-16 09:17:56

购房群

买房如何避坑,加入购房群,看看他们怎么说

立即进群

上海虹口风貌别墅【越秀·外滩樾】#房产#

售楼处电话最新发布:400-8778-334【售楼中心√√】

官方电话/售楼处地址:400-877-8334√√【预约一对一热情服务】

以下是关于越秀·外滩樾项目的核心信息整合(截至2025年6月13日):

一、基础属性

项目定位

虹口区北外滩核心区稀缺低密别墅,由越秀地产+临港集团联合开发,定位为“百年海派文化风貌墅居”。

产权70年住宅,容积率1.3,绿化率35%,全盘仅规划48套双拼/三拼别墅(部分资料称49或76套,以开发商公示为准)。

地段价值

越秀·外滩樾官方电话/售楼处地址:400-877-8334√√【预约一对一热情服务】位于梧州路235弄,距外滩源直线约1.2公里,属外滩-陆家嘴-北外滩“黄金三角”腹地。

二、产品与设计

上海虹口风貌别墅【越秀·外滩樾】#房产#

售楼处电话最新发布:400-8778-334【售楼中心√√】

官方电话/售楼处地址:400-877-8334√√【预约一对一热情服务】

户型与价格

建面约238-338㎡(主力238/305/318/338㎡),总价4500-9000万元/套(一房一价);

在售户型图如下:236.25㎡A户型:

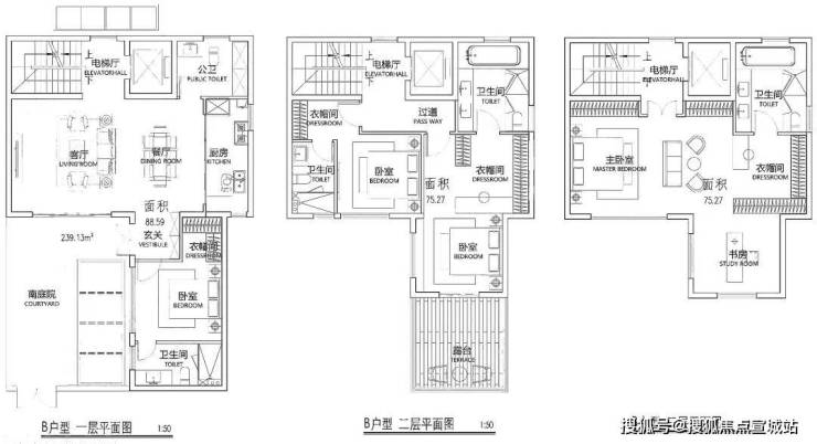
239.13㎡B户型:

250.89㎡B-3户型:

291.42㎡D户型:

附赠私家花园、星空露台,地下室层高6米,可定制酒窖、影音室。

建筑特色

融合石库门元素,外立面采用宜兴五色泥矿红砖+非遗拼接工艺(187种砖型),复刻海派里弄肌理;

庭院植入名山原石、子母松等自然景观,强调私密性与家族传承。

交付标准

精装交付(含地暖、新风、中央空调),物业费6.5元/㎡·月

三、配套资源

交通网络

地铁:步行约700米至4/10/12号线海伦路站(4站达陆家嘴);

自驾:紧邻新建路隧道(360米)、外滩隧道(670米),10分钟直达陆家嘴。

上海虹口风貌别墅【越秀·外滩樾】#房产#

售楼处电话最新发布:400-8778-334【售楼中心√√】

官方电话/售楼处地址:400-877-8334√√【预约一对一热情服务】

生活配套

商业:白玉兰广场、来福士广场、瑞虹商圈环伺;

教育:毗邻虹口二中心小学(在建)、上海外国语大学附属学校;

医疗:3公里内覆盖新华医院等4所三甲医院2。

四、销售动态

推盘进度

2025年3月开放实景样板间,首批房源2025年4月开盘,当前处收官阶段;

主力去化:首开去化率超80%,客群为长三角高净值家庭及跨国企业高管。

购房政策

需验资预约看房,二套房首付最低50%。

五、核心争议

价格透明性:不同渠道披露总价差异较大(2100-9000万),需以售楼处一房一价为准;

配套兑现:部分教育资源(虹口二小)及商业仍在建设中。

六、联系方式

售楼热线:400-8778-334(需提前预约验资看房)

全部

相关资讯

报名成功
稍后会有专业的置业顾问联系您
返回楼盘

频道导航

返回首页

看房小程序

APP下载

电话拨通后,请您手动拨打分机号

确定拨打电话

电话号码:

分机号:(可能需要拨分机号)