涌潮府售楼处电话☎:400-8618-004
时间,是一场永恒的潮汐。四季轮转之际,热浪涛涛,携着生活的理想抵达美好的彼岸。自亮相后,上海·涌潮府有幸成为一众居者的心之所向。当海派之潮持续席卷浦东,上海·涌潮府在匠人们的精心雕琢中,从一颗理想的种子,慢慢展现出一幕幕大美实景。全维展示区即将开放,提前献映海派家的圆满生活。
效果示意图,红线外仅为示意,具体以实际交付为准
涌潮府售楼处电话☎:400-8618-004
涌潮府售楼处电话☎:400-8618-004
乘浪于浦东向东的时代热势,定址于“入沪门户”的曹路核芯单元,上海·涌潮府为不负土地赋予,以当代海派生活为旨,融合在地文化与国际视野,为追求高品质生活的年轻家庭革新人居方式。友好的价格、硬核的实力、精致的社区,让上海·涌潮府备受热捧。
纵观其价值图谱,你会发现众多“王牌”资源正在构建起一个多元繁华的生活圈。直线距离约600米即是崇明线凌空北路站(在建),3站金桥东,还可高效换乘9/12号线,畅达陆家嘴等市芯区域。金海快速路也在建设中,通车后可快速接进环线,通达中芯城区,日常通勤出行更加便捷。
网络示意图
在上海·涌潮府周围,默契地聚集着一系列高浓度的生活配套。9月开学季,位于上海·涌潮府东侧的市级示范幼儿园——顾路幼儿园海萃分部已正式开园;西侧贴身距离规划有公共服务配套,建成后将包含约4500㎡社区文化活动中心、约1800㎡综合健身馆,约800㎡游泳池。北侧规划有约50亩社区级体育公园。未来,在凌空北路地铁站北侧还规划有综合性商业体...在不久的将来,城市的烟火气中将洋溢着家人们的欢声,圆梦海派家,美好生活也将启幕新篇。(信息来源:上海市浦东新区人民政府官网)
涌潮府售楼处电话☎:400-8618-004
网络示意图
因深谙家人们对未来生活的憧憬,上海·涌潮府将在全维展示区中,集中亮相一众公共区域,让家人们提前遇见海派新境。
进入现场,映入眼帘的即是充满现代美感的“油画框”外立面,南立面大面积玻璃,大地色系配色,轻盈地展现着海派的摩登与精致。
涌潮府售楼处电话☎:400-8618-004
涌潮府售楼处电话☎:400-8618-004
效果示意图,非实际交付标准
归家是穿越花园的美妙旅程。进入4幢2号首层局部架空层,海派气韵迎面而来,作为家的“第二客厅”,架空层的设计兼顾了多功能与艺术性,旨在让居者沉浸美学氛围中休闲、会客...悬浮顶设计的首层单元门厅,自带海派气场,引入了无触归家理念,让家人们得以轻松归家。车行归家时,家人还能邂逅高颜值的地库单元门厅星空顶,从环氧地坪到云中翡翠石材等,上海·涌潮府投入了更高的建设成本,以更高的工艺要求,期待为每一位家人创造出超越既往的归家体验...
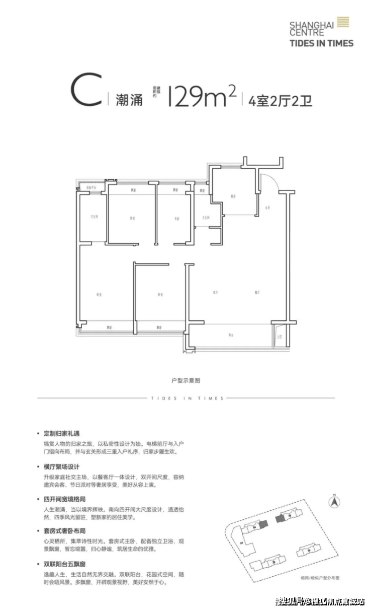
全套户型图如下:
涌潮府售楼处电话☎:400-8618-004
建面约88㎡3房产品,3开间朝南+3飘窗+宽阳台的3房设计,在保证实用性的同时,也让室内的通风以及视野都做到了更好。
更重要的是,该户型总价预计仅约400万级,价格非常亲民,特别适合刚需客户上车!
涌潮府售楼处电话☎:400-8618-004
建面约95-97㎡3房2卫,户型3开间朝南+T字动线+动静分离,主卧也设计了套房,让室内采光、通风、私密性都做了进一步升级。
另外,双卫的设计,完全可以轻松应对常住人员数量大于1的家庭,家中“关键时刻”对卫生间的“拥挤需求”,让家庭生活更从容、更方便。

涌潮府售楼处电话☎:400-8618-004
涌潮府售楼处电话☎:400-8618-004
建面约129m²样板间实拍▼



涌潮府售楼处电话☎:400-8618-004
涌潮府仅为焕新浦东人居高度而来,先来欣赏下项目的最新效果图:
涌潮府售楼处电话☎:400-8618-004
【ModernStyle当代潮建筑】
有别于传统住宅单元式立面风格,本案南立面大面积玻璃辅以流畅线条,加之考究配色,营造现代高级的精工建筑质感。
效果示意图

【CentralPark围合式花园】
【涌潮府】景观方面以“围合式中央公园”为核心,通过时光草坪、园林小径、运动聚场等多维度景观组团序列,深度串联社区多场域景观节点,让业主在生活中深切感受人与自然、建筑亲密共生的场景力。

涌潮府售楼处电话☎:400-8618-004
示意图
效果示意图,红线外仅为示意,最终以实际交付为准

【IdealRooms理想式居住】
项目推出建筑面积约88-129㎡户型,南向大面宽、舒适尺度、阳台+多飘窗设计等,打造具有国际生活想象的理想心居。

涌潮府售楼处电话☎:400-8618-004
资源配套
金桥东三站漫享「发展核」生活
【便捷交通】直线距离约600m轨道崇明线一期(在建)凌空北路站,3站金桥副中心,全城轨道交通网;直线距离约2.4km地铁9号线曹路站;近邻金海路、上川路,联通外环高速入口,可转接中内环及申嘉湖高速、G1503绕城高速等,高效畅行全市及周边城市。其中金海路高架快速路(杨高中路—华东路东侧),预计2025年6月全线竣工通车,进一步加强曹路镇与中心城区和其他区域的联系,支撑“金色中环”、金桥城市副中心、和曹路镇的发展。
网络示意图
【学校资源】邻建成幼儿园,周边在建小学、初中,以及浦东复旦附中分校、浦东模范中学东校等,学校资源聚集,沁润人文厚蕴。(本项目不做任何学区承诺,实际以政府规划为准)
网络示意图
涌潮府售楼处电话☎:400-8618-004【生态休闲】直线距离约5km上海浦东金海湿地公园;未来将围绕浦东运河、秦家港河打造体育公园、森林公园和极地公园等市民游憩目的地。
网络示意图
涌潮府售楼处电话☎:400-8618-004
【璀璨商业】恒越荣欣广场、欧亚玛特购物广场、招商花园城(在建)、宝龙广场等商业体,随享繁华。
网络示意图
涌潮府售楼处电话☎:400-8618-004
【医疗资源】直线距离约3km范围内上海市第七人民医院,海军军医大学第二附属医院,三甲级综合医院上海长征医院浦东新院(在建中),预计24年投入使用,护航家人健康。
涌潮府售楼处电话☎:400-8618-004
最新一房一价表:
上海浦东涌潮府
上海浦东涌潮府售楼处电话☎:400-8618-004(预约热线)
如有问题欢迎来电咨询,专业一对一热情服务,让您用专业眼光去买房。
上海浦东涌潮府售楼处电话☎:400-8618-004【售楼热线】营上海浦东涌潮府销中心热☎400-8618-004上海浦东涌潮府售楼处地址☎400_8618_004本电话为开发商提供线上售楼电话,楼盘项目全面介绍(包含楼盘详情,最新房价,户型图,容积率,小区配套环境,楼盘简介,售楼处位置,户型图,交通规划,备案价,项目配套,楼盘详情,售楼处电话,最新消息,最新详情,最新进展等详情咨询
房产知识
房产知识的核心内容主要包括定义、分类、权属及相关政策等,需结合基础概念与实践要点进行系统理解。
一、基本定义与分类
房产与地产
·房产指拥有产权的房屋及附属设施,包括居住、商业、工业等用途(参考来源:)。
·地产则指土地及其相关权益,涵盖使用权、收益权等(参考:)。
·房地产是两者的综合,具有不可移动(固定性)、价值差异(地域性)及保值增值等特性(参考:)。
建筑分类
·按功能:住宅、商业、工业、公共设施等(参考:)。
·按结构:钢结构、钢筋混凝土结构、砖混结构等(参考:)。
·按权属:公房(直管或自管)与私房(参考:)。
二、土地权属与使用政策
土地所有制
·中国实行土地公有制,分国家所有(城市市区)和集体所有(农村及郊区)(参考:)。
·集体土地需依法征收为国有后,方可进行房地产开发(参考:)。
使用权年限
·居住用地70年,商业40年,工业50年,教育/科技等50年(参考:)。
·土地使用权可通过划拨(无偿,如市政用地)或出让(协议、招标、拍卖)获得(参考:)。
三、房地产市场分级
·一级市场:政府出让土地使用权(参考:)。
·二级市场:开发商销售新建商品房(参考:)。
·三级市场:二手房交易、租赁等(参考:)。
四、关键术语解析
·住宅层高与净高:层高指上下楼层间距,净高为室内地面到顶面的高度(参考:)。
·七通一平:开发用地的“熟地”标准,包括道路、水电等基础设施(参考:)。
深入理解房产知识需要结合土地使用权出让政策、房地产市场分级及建筑权属年限等具体概念。