══上海杨浦新江湾「信达泰禾上海院子」══
信达泰禾上海院子售楼处电话:400-8778-334
杨浦信达泰禾上海院子售楼处电话☎:400-877-8334【线上预约看房】信达泰禾上海院子售楼中心电话/地址:400-8778-334【官方售楼中心已认证√√】最新进展:信达泰禾·上海院子在售联排别墅(地上989.55㎡+地下663.52㎡),总价8915万;公寓住宅88.55㎡三房,总价1030-1100万。均价约11.1万/㎡,近地铁10号线殷高东路站,新江湾城核心区位,配套3600㎡会所!
温馨提示:如有问题欢迎来电咨询,专业一对一热情服务,让您用专业眼光去买房,附线上官方预约通道【享】内部专属优惠折扣!
杨浦新江湾『信达泰禾上海院子』开发商保留约1653㎡联排别墅!总价8915万!附官方预约通道!杨浦信达泰禾上海院子售楼处电话☎:400-877-8334【线上预约看房】
「信达泰禾上海院子」
杨浦新江湾城国际社区
地上面积989.55㎡地下面积663.52㎡
联排合院别墅仅有两套售价8915万
售楼处线上火热预约

杨浦信达泰禾上海院子售楼处电话☎:400-877-8334【线上预约看房】
项目基本信息
项目基本信息
区域板块
杨浦新江湾
开发商
信达
体量
2套
产品类型
联排
户型面积
989.55㎡地上,地下663.52㎡
总价区间
8915万
交房标准
毛坯现房
产权年限
70年产权
物业公司
金帆物业
物业费
地面12.1元/平/月,地下6.05元/平/月
绿化率
35%
容积率
1.125
杨浦信达泰禾上海院子售楼处电话☎:400-877-8334【线上预约看房】
新江湾是上海传统豪宅区,毗邻五角场城市副中心,拥有9.45平方公里的原生湿地以及约15万㎡的新江湾湿地公园生态稀缺资源。【信达泰禾·上海院子】位于新江湾城核心位置,家门口就是10号线殷高东路站,步行可达。
杨浦信达泰禾上海院子售楼处电话☎:400-877-8334【线上预约看房】
【上海院子】独特的院落式社区打造,融合了“院子系”特点、福州三坊七巷和上海弄堂形制,规划了“三街九坊十八巷”。且以“大门、坊门、院门、宅门”四进系统层层递进。项目精益求精,如吊顶天花雕刻的是龙纹和祥云的图案,寓意吉祥安康。


杨浦信达泰禾上海院子售楼处电话☎:400-877-8334【线上预约看房】
每个长盛不衰的家族,皆有优良的家风相传。每个中国人的家风,总离不开一座院墅。一方土地,一方围合,一方生活,世代家风传承。【泰禾信达上海院子】——经过多年沉淀和过硬的口碑,已经成为新中式豪宅的代表作。

杨浦信达泰禾上海院子售楼处电话☎:400-877-8334【线上预约看房】
【上海院子】为业主提供了社区活动中心,自带约3600平方会所,面宽约75米室内外双泳池、健身房、spa房,咖啡吧、vip室等...足不出户让业主享受7星级高级定制服务。


VIP影院▼

健身中心,瑜伽中心▼

室内恒温泳池▼
VIP会客厅,幼托中心等▼

杨浦信达泰禾上海院子售楼处电话☎:400-877-8334【线上预约看房】
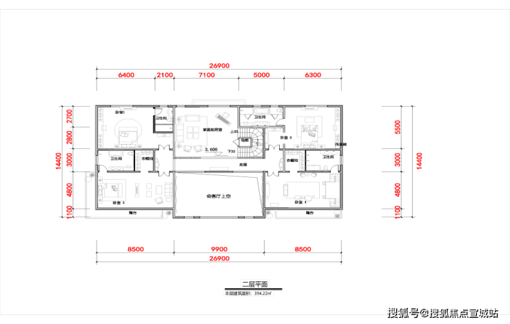
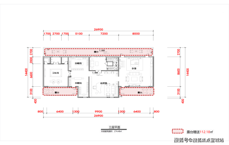
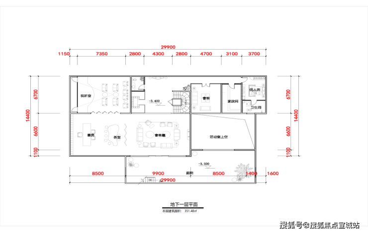
项目在售房源户型图
【信达泰禾·上海院子】
每个长盛不衰的家族,皆有优良的家风相传。
每个中国人的家风,总离不开一座院墅。
一方土地,一方围合,一方生活,世代家风传承。
共2套联排别墅,一手毛坯现房
地上面积989.55㎡,地下面积663.52㎡
杨浦信达泰禾上海院子售楼处电话☎:400-877-8334【线上预约看房】
在售房源户型图▼






杨浦信达泰禾上海院子售楼处电话☎:400-877-8334【线上预约看房】
装修建议示意图▼






杨浦信达泰禾上海院子售楼处电话☎:400-877-8334【线上预约看房】
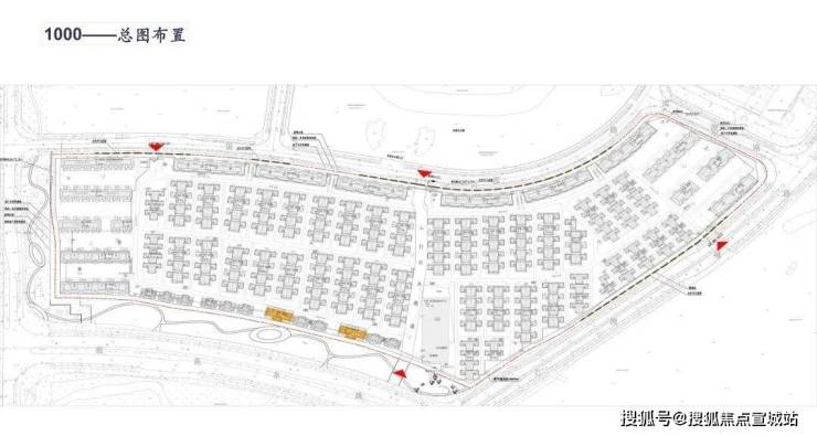
项目区位配套
根据杨浦区2035规划,新江湾城、五角场属于杨浦西部核心区,产业导向明确,产业发展条件成熟,是杨浦重点发展的区域。
杨浦信达泰禾上海院子售楼处电话☎:400-877-8334【线上预约看房】
作为新江湾城重磅亮相的新盘,项目在享受区域发展红利的同时,周边也有着完善配套,生活便利!
图片来源于网络
杨浦信达泰禾上海院子售楼处电话☎:400-877-8334【线上预约看房】
新江湾是上海传统豪宅区,毗邻五角场城市副中心,拥有9.45平方公里的原生湿地以及约15万方的新江湾湿地公园生态稀缺资源。
图片来源于网络
杨浦信达泰禾上海院子售楼处电话☎:400-877-8334【线上预约看房】
交通配套方面:家门口就是10号线殷高东路站。一线(10号线)、一桥(杨浦大桥)、两环(中环&内环)、两隧(翔殷路&军工路隧道)构成立体交通网络。
位置示意图

【商业配套方面】:步行可快速到达约90万方的铁狮门的商业圈,车行可快速到达五角场商圈。
图片来源于网络
杨浦信达泰禾上海院子售楼处电话☎:400-877-8334【线上预约看房】
【教育资源方面】:周边有中福会幼儿园、延吉幼儿园(区重点)、同济第一附中(市重点)等。同时距上海音乐学院实验中小学(市重点)距离仅约800米。
图片来源于网络

杨浦信达泰禾上海院子售楼处电话☎:400-877-8334【线上预约看房】
医疗资源方面:周边有3家三甲医院,上海肺科医院、东方肝胆外科医院、上海长海医院,共同保障家人健康。

杨浦信达泰禾上海院子售楼处电话☎:400-877-8334【线上预约看房】信达泰禾上海院子售楼中心电话/地址:400-8778-334【官方售楼中心已认证√√】最新进展:信达泰禾·上海院子在售联排别墅(地上989.55㎡+地下663.52㎡),总价8915万;公寓住宅88.55㎡三房,总价1030-1100万。均价约11.1万/㎡,近地铁10号线殷高东路站,新江湾城核心区位,配套3600㎡会所!
温馨提示:如有问题欢迎来电咨询,专业一对一热情服务,让您用专业眼光去买房,附线上官方预约通道【享】内部专属优惠折扣!