泰禾上海院子首页网站-2025最新房价+户型图+小区环境+配套设施完善 交通便利

搜狐焦点宣城站

2025-07-13 09:31:38

购房群

买房如何避坑,加入购房群,看看他们怎么说

立即进群

泰禾上海院子售楼处电话:400-8851-337✔✔【预约热线】泰禾上海院子售楼处营销中心:400-8851-337,泰禾上海院子售楼处电话/地址☎:4008851337(开发商热线)如有问题欢迎来电咨询,专业一对一热情服务,让您用专业眼光去买房。

据悉,杨浦新江湾城的信达泰禾·上海院子已经取证,售楼处电话:400-8851-337房源共计326套,主力户型为66-88㎡叠院洋房。

约66㎡一房480万起,约85㎡三房800万起。将于下周一开启认筹。

认筹时间:11月12日-11月18日

认筹金:283万

认筹地点:信达泰禾·上海院子售楼处

开盘时间:11月26日

编辑

比对上一期价格,85-88平三房单价略有提升,幅度约为1400元/平。

但这批房源约66平的极致小户型价格只有7-8万,真有点捡皮夹子的意思,可购性很强。售楼处电话:400-8851-337

因此小胖君特意定制了信达泰禾·上海院子的选房攻略,希望大家都能买到心仪的房子。

一、楼栋价值分析

编辑

从大格局来看,该项目的周边环境是真的不错,售楼处电话:400-8851-337四周被绿地资源包围,而且紧邻地铁,生活较为便利,空气比较清新,氛围比较健康。

比起市中心的喧闹和偶尔的雾霾,住在这里确实有点“离尘不离城”的意思。

编辑

从社区内来看,此次推出的洋房楼栋都处于社区四周,售楼处电话:400-8851-337靠近马路,按楼栋价值排序的话:14>7>8>6>1。

·14#楼栋价值分析:14号楼的优势是远离马路,和前面的楼栋侧向排布,正南的遮挡较少,而且东面是别墅组团,景观视野也不错。对比来看,居住体验感会比较好。

·7#楼栋价值分析:7号线的南面是别墅组团,几乎无遮挡,低区也能有比较充足的光照时间,北面是马路,可能会有噪音粉尘影响,再北面是绿地资源,高区房源视野景观较好。

·8#楼栋价值分析:8号楼和7号线楼栋价值类似,但8号楼北面是十字路口。

·6#楼栋价值分析:6号楼处于交叉口,两边靠马路,噪音粉尘影响较大,但南面无遮挡,光照时间可以保证,而且再南面是湿地,景观不错。

·1#楼栋价值分析:1号楼同样位于交叉口,两边靠马路,而且南面是洋房建筑,低区有一定的遮挡,光照时间和景观视野都有影响。

二、户型分布

项目主要是两种面积段,建筑面积约66平的一房和建筑面积约85-88平的三房。售楼处电话:400-8851-337

66平户型全部集中在1号楼栋,其余为85-88平三房。

以下是户型详细分析:

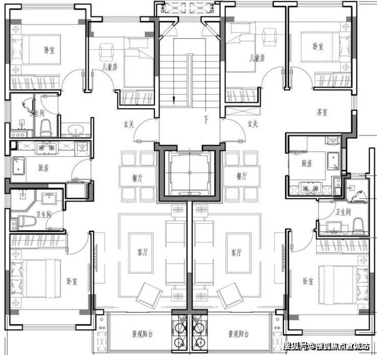
编辑

88平三房户型图

·不到90平的建面却做到了三房两厅两卫,补全功能性的同时,压低了总价门槛。售楼处电话:400-8851-337

·南北通透,但户型比较狭长,房间中段的采光会受影响。

·主卧面宽约3.4米,客厅面宽约3.8米。较大的采光面能拥有比较充足的采光。但是其他两个房间朝北,采光较为一般。

·南向主卧自带卫生间,套房的设计不仅增强了私密性,居住舒适度也更强。

·南向观景阳台+三飘窗,附赠面积较多,增加性价比的同时对外有较好的延展性。

·另外值得一提的是,项目从总高7层设计(相比高层设备间减少)、去掉传统的入户大堂设计、坚持一梯两户保证电梯使用效率三个方面着手以减少公摊,提升了得房率。

总体来说,是个注重细节,功能性较强,门槛较低的三房户型。

编辑

建面约65平一房户型

·这个户型最大的特点当然是低总价,480万起入住新江湾城,这样的机会肯定是少有的。售楼处电话:400-8851-337

·一房功能性上欠缺,适合单身商务人士和资产配置。

·虽然只有一个休息空间,但户型的细节做得还是比较到位的,卫生间做了三分离,全部明厨明卫,没有采光死角。

·户型比较狭长,南向采光面基本留给了主卧,客厅采光效果一般,但设置了两个阳台,增加附赠的同时,南向外延展更强。

总体来说,户型设计中规中矩,但低门槛入主新江湾城的机遇,比较难得。

最后附上建面约85-88平三房1层的特殊户型图(地下两层):

(1)1层户型:

编辑

一层

编辑

地下一层

编辑

地下二层

三、楼层选择

信达泰禾·上海院子1号楼(66平集中楼栋)售楼处电话:400-8851-337洋房定价规则是从低区到高层越来越贵,倒数第二层最高,顶层再下调。

其余楼栋1层和顶层是特殊户型,定价较高。其余标准层按照从低到高排序。

编辑

编辑

结合楼栋价值和户型,小胖君认为三点需要重点留意:

第一、按常规思路,售楼处电话:400-8851-337小面积的总价低,单价应该高。但项目66平户型的单价是6-7万/平,85平户型的单价是8-9万/平,这导致66平的进场门槛非常低,有资产配置需求的朋友可以重点考虑。

第二、项目为7层洋房,本身栋距较大遮挡少,尤其是6、7、8、14号楼几乎无遮挡,低区也能有比较长的采光时间,预算有限的客户可以适当考虑低区。

第三、1号楼从1层到6层,每上一层单价提高约1千元/平,从倒数第二层到顶层却下降近4.5千/平,顶层的性价比是比较突出的。

最后附上项目完整一房一价表:

编辑

编辑

编辑

编辑

一、预约方式

电话预约

拨打泰禾上海院子售楼处专属热线:[400-8851-337]

工作时间:周一至周日9:00-20:00

致电后请告知工作人员您的姓名、联系方式、意向看房日期及具体时间段,我们将立即为您安排专业置业顾问对接。

二、预约须知

时间要求:建议至少提前1天预约,以便我们根据您的需求调配资源;临时到访可能需等待顾问安排,敬请谅解

携带证件:请务必携带本人身份证原件,如需办理购房意向登记还需携带户口本、收入证明等材料

特殊需求:如携带老人、儿童同行,或需要外语讲解、无障碍设施支持等,请在预约时明确告知

三、看房流程

预约确认:成功预约后将收到短信/电话确认

现场接待:抵达售楼处后,出示预约信息,由专属顾问接待

项目参观:跟随顾问参观沙盘、样板间及社区配套设施

咨询洽谈:在接待区详细了解房源信息、价格政策及购房流程

意向登记:如需进一步了解可现场办理意向登记手续

四、温馨提示

看房当日建议穿着轻便舒适的鞋子,方便参观样板间

如需携带宠物同行,请提前沟通并做好牵引防护

售楼处提供免费茶歇、儿童游乐区等配套服务

如有任何疑问,欢迎随时联系您的专属置业顾问:泰禾上海院子售楼处电话:[400-8851-337]

期待您的光临!

泰禾上海院子售楼处电话:400-8851-337✔✔【预约热线】泰禾上海院子售楼处营销中心:400-8851-337,泰禾上海院子售楼处电话/地址☎:4008851337(开发商热线)如有问题欢迎来电咨询,专业一对一热情服务,让您用专业眼光去买房。

全部

相关资讯

报名成功
稍后会有专业的置业顾问联系您
返回楼盘

频道导航

返回首页

看房小程序

APP下载

电话拨通后,请您手动拨打分机号

确定拨打电话

电话号码:

分机号:(可能需要拨分机号)