上海宝山【大华锦绣四季】
售楼处热线:400-9696-224
欢迎来电咨询!可预约销售人员,专业一对一热情服务,让您用专业眼光去买房。
大华锦绣四季 -澜悦
北上海 主城区 三轨交
约90万方宜居大城核心位置
大华锦绣系3.0升级之作
「大华锦绣四季·澜悦」

项目主力户型建面约99-140㎡3-4房,户型上全部采用南向大开间横厅设计,最大宽度约7米。

房源楼栋示意图
建面约99㎡3房2厅2卫
横厅宽度约5.1米

建面约120㎡4房2厅2卫
横厅宽度约6.2米

建面约140㎡3+1房2厅2卫
横厅宽度约7米

建筑设计上,四期延续了大方、典雅、时尚的现代简约风格,立面由米黄色涂料、局部铝板和石材组成,整体线条感强,简约而有质感,优雅自成经典,树立彰显城市品位的标杆社区形象。

小区全人车分流,合理规划车行、人行动线,保证业主的出行安全,业主车辆可通过顾北路和宝荻路两个入口快速到达到地库口,享受轻松、高效的归家体验,车位配比高达约1:1.1,充分满足业主需求。

在景观设计上,四期澜悦充分利用了地块周边城市绿地资源,结合所在位置、建筑风格特征以及客户的品质追求,以“树说四季”为设计理念打造品质感的沉浸式现代居所,让人与景观对话中寻求一种健康、舒适的美学生活体验。
以树为点,以道路为线,以场地为域,澜悦结合大华“五感社区”理念,焕新社区内部的自然生活方式。绿地率达到约35%,拥有中央景观会客厅和环形跑道,充分满足都市菁英栖居自然森意的人居梦想。

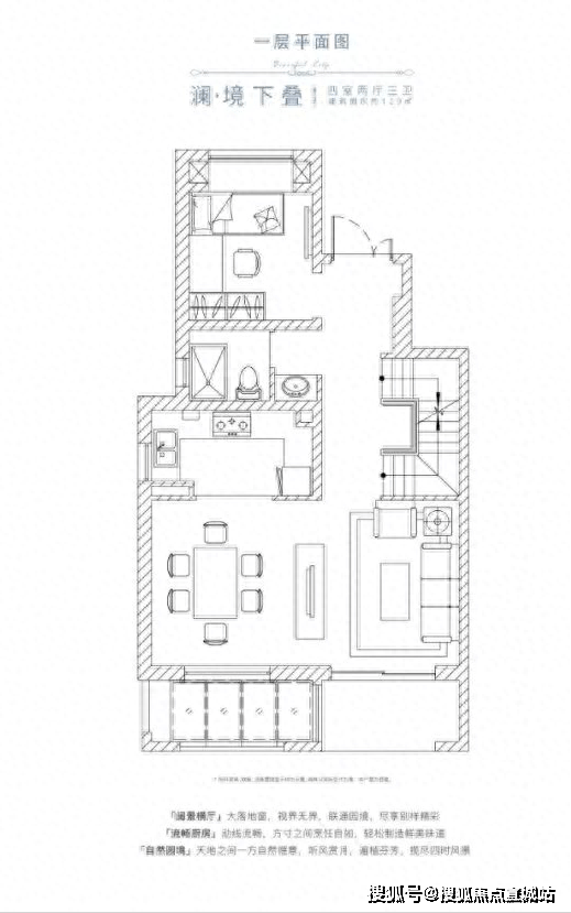
129㎡下叠户型图


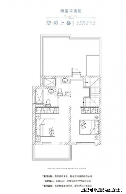
118㎡上叠户型图


大华锦绣四季售楼处电话:400-9696-224位于上海主城区新顾城板块,项目周边四轨交环绕,1、7、15、18号线均不远;自驾则有外环路、沪太路、蕴川公路等主要交通干道通往市区方向。
项目是一座90万方的“大城”,全方位的生活配套一应俱全。

大华锦绣四季售楼处电话:400-9696-224周边拥有约20万㎡生态绿地(规划绿地及项目绿地):约8万㎡的河滨社区公园(规划)、约2万㎡的历史人文绿色商业组团(规划)及近1万㎡的私境花园(一期项目绿化)。加上不远处的顾村公园,生态环境好感值爆表。
教育方面,大华锦绣四季售楼处电话:400-9696-224预留约12万㎡自建教育集群地块,规划有从幼儿园到中学的全套教育体系,准备新建7所学校,扩建3所学校。此外,项目周边有12年一贯制宝山世界外国语学校、9年一贯制上海民办华二宝山实验学校。(对口学区以交付后政府划分为准)

商业方面,大华锦绣四季售楼处电话:400-9696-224自带一块建筑面积约2万方的文保商办地块——顾村新天地(代建)。未来将打造成板块内标志性的商业中心,与7号线沿线龙湖北城天街、绿地正大缤纷城等商业体为北上海人民购物带来便利。
此外,大华锦绣四季家门口还将打造体育中心,提供游泳馆、篮球场、羽毛球场、健身房、台球室、乒乓球室、瑜伽房等多维运动场所。
