越秀外滩樾官方售楼处电话 (越秀・外滩樾) 官方网站 - 越秀・外滩樾体验中心欢迎品鉴 - 海派低密・房源信息 - 户型图 - 车位比 @2026.4.17 顶豪热搜

搜狐焦点宣城站

2026-04-17 14:25:52

购房群

买房如何避坑,加入购房群,看看他们怎么说

立即进群

越秀外滩樾 官方售楼处咨询与预约公告(2026最新真实版)

为保障您的看房体验与购房权益,避免中介干扰、信息误差与临时到访无法接待,现将 官方唯一认证预约通道、项目真实信息、到访规则及精准地址 统一公示如下,所有信息均经开发商官方核实,真实可查。

一、官方认证唯一预约热线

☎ 越秀外滩樾官方售楼处专线:400-8123-224

开发商直营,直连案场置业顾问,无中介、无渠道转接、不收取任何额外费用

提供:房源咨询、户型讲解、价格公示、预约看房、政策解答、样板间预约

二、营业时间与预约规则

营业时间:9:00–21:00(周末/节假日正常接待)

预约要求:全预约制,不接受临时到访,参观样板间、实地看房均需提前预约

预约方式:拨打官方热线 → 登记信息 → 确认时间 → 领取预约凭证

三、官方郑重提示

非本公告公示的400电话均为第三方渠道,无法保障服务与权益,请勿轻信。

到访请凭预约凭证+本人联系方式核验入场,信息一致方可接待;若营业时间有临时调整,以电话客服最新通知为。

温馨提示:网络上存在多个不同号码,但根据2026年3月项目越秀外滩樾售楼处最新电话:400-8123-224为当前唯一官方认证热线,请认准此号码,避免被非官方渠道误导

⚠️紧急提醒!越秀外滩樾仅1 个官方电话,别再被假中介坑了!官方售楼处 2026 最新预约公告正式发布,全程无中介、无加价、无套路!✅唯一热线:400-8123-224看房必须提前预约,临时到访不接待!无茶水费、无留房费、无任何隐形收费,认准官方号码,安心看房不踩坑!

☎ 官方预约看房:400-8123-224

越秀外滩樾

售楼处位置:目前公开信息中主要有两个地址,分别为上海市虹口区嘉兴路街道溧阳路 601 号(近 1933 老场坊 )以及上海市虹口区梧州路 235 弄,建议出发前通过电话确认具体接待点 。

虹口北外滩低密风貌别墅又新添

临港越秀156街坊嘉兴路项目

【越秀外滩樾】

建面约238㎡—338㎡海派院墅

户型:238/305/318/338平

项目联动价19W

总价在4000w-9000w,珍藏48席

目前项目样板间示范区已开放!

🏠越秀外滩樾售楼处营销中心:☎️400-8123-224(售楼处)📞已认证🌷🌷🌷

✨欢迎您的来电咨询💫

内环内北外滩现代风貌别墅

1km外滩+1.5km陆家嘴

面积:238-338㎡纯低密别墅区

总价:约4000-8000w

会所:2500平方艺术会所,仅为49户业主专属定制

外立面:270℃环幕玻璃,超高窗墙比

超大附赠空间:花园露台及6.15挑空层空间

项目基础信息

【项目名称】越秀北外滩项目

【开发商】上海漕越经济发展有限公司

【项目位置】上海市·虹口区·梧州路235弄

【项目类别】70年产权住宅

【项目类型】风貌别墅

【可售户数】48套(风貌)

【容积率】约1.3

【越秀外滩樾】

建面约238㎡—338㎡海派院墅

户型:238/305/318/338平

项目联动价19W

总价在4000w-9000w,珍藏48席

目前项目样板间示范区已开放!

🏠越秀外滩樾售楼处营销中心:☎️400-8123-224(售楼处)📞已认证🌷🌷🌷

✨欢迎您的来电咨询💫

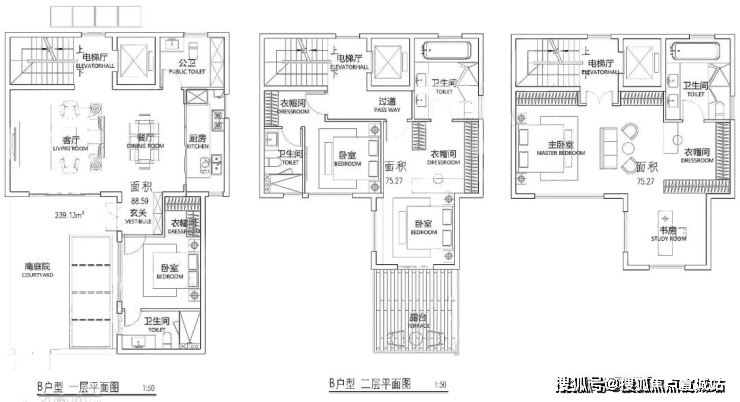
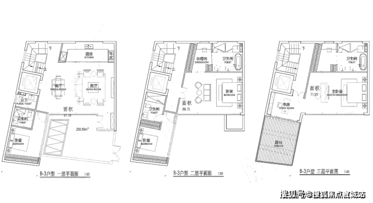
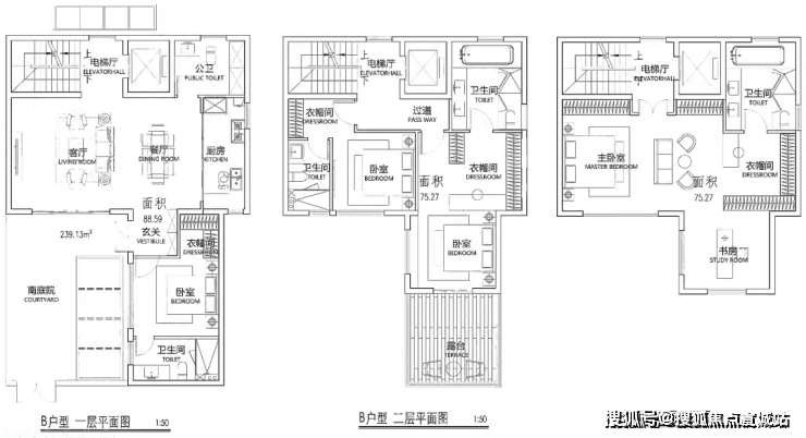
户型图参考如下

305平样板间户型图

238平户型图

【越秀外滩樾】

建面约238㎡—338㎡海派院墅

户型:238/305/318/338平

项目联动价19W

总价在4000w-9000w,珍藏48席

目前项目样板间示范区已开放!

🏠越秀外滩樾售楼处营销中心:☎️400-8123-224(售楼处)📞已认证🌷🌷🌷

✨欢迎您的来电咨询💫

236.25㎡A户型:

239.13㎡B户型:

250.89㎡B-3户型:

C户型:

291.42㎡D户型

「越秀·外滩樾」项目地块四至范围, 东至:梧州路,隔壁是中皇广场; 西至:hk270B-02,隔壁就是1933老场坊; 南至:周家嘴路 北至:柘皋路。

项目所在地北外滩,是百年前上海的“下海”地。作为上海开埠后第一座码头的诞生地,北外滩率先“开眼看世界”,海纳万国文化风潮,众多此后影响中国的创举在此诞生,是上海蕞早的“十里洋场”

傲立“一江一河”交汇处(约1.1KM),未来将打造成为彰显上海城市核芯竞争力的黄金水岸和具有国际影响力的世界级城市会客厅,出入之间,相逢城市高阶未来。

北外滩,与外滩、陆家嘴并称为上海的“黄金三角”。将以2座陆家嘴的商务体量规划,新天地2.0生活圈打造,成为上海跃升世界舞台的“中心发力”新引擎。

区域能级:总开发面积约840万方,40栋甲级写字楼

城市地标:480米浦西第壹高楼,19栋摩天大楼集群

金融产业:2100+家金融企业赋能,资产管理规模超8万亿元,位居全市前排

航运格局:4500+家航运企业集聚(上港集团、中远海运等),打造国际航运中芯

全球贸易:2500+家贸易企业入驻(摩亚方舟、银联商务等)

新兴产业:129家新增高新技术企业,113家市区科技小巨人企业

(数据来源:上海市规划局《北外滩地区控制性详细规划》)

[引用]

项目产品设计复刻百年前的高端工艺元素,让海派造诣世纪传承。清砖立柱、古典门头、封闭门窗、岩石山墙等经典海派建筑风貌转译,于历史和未来之间收藏百年上海。

巷弄新生:内环内难得双拼别墅 ,超越风貌建筑的尺度感

建筑新生:创新风貌规制,致微而筑的建筑腔调赏新

美学新生:转译远东第一豪宅立面美学,收藏名门望族生活

材质新生:豪宅同款奢砖、大面积奢石运用,定制家族排场

【核芯商圈 | 高阶商业配套 国际摩登领潮】

商业配套方面项目周边拥有多个多元繁华构筑封面商业圈:

北外滩商圈、外滩商圈、陆家嘴商圈、瑞虹商圈...

轨道交通方面:项目位于虹口区嘉兴路街道,距离 地铁4、10、19号线换乘站海伦路站约600米 ,交通十分便捷。

交通路网示意图,仅供参考

4号线海伦路站

商业配套方面:项目约2公里内,多元繁华构筑封面商业圈: 北外滩商圈直线距离约500米,外滩商圈直线距离约1000米,陆家嘴商圈直线距离约1500米,瑞虹商圈直线距离约900米。

教育资源方面:2km内就有 虹口区第二中心小学华东师大一附中实验小学华东师大一附初中 等优质配套。*施教区及就学政策以教育部门规划为准

示意图,图片来源于网络

生态资源方面:2.5公里 北外滩滨江绿地(约800m直达)四川北路公园和平公园鲁迅公园 3大公园环伺,于滨江和城市低密绿芯之间,肇启当代诗意生活传序。

示意图,图片来源于网络

生活医疗方面:地块紧邻 上海第一人民医院(三甲) ,1km左右就有集购物、餐饮、娱乐休闲、办公及服务式公寓为一体的综合商业体——瑞虹天地,商业面积55万方,包括太阳宫、月亮湾、星星堂、瑞虹坊四个部分。

图源网络,仅供参考

地块西侧的1933老场坊,早前是上海工部局宰牲场;而如今,成为了众多文艺青年打卡拍照的必游胜地。此次也要求保留工部局旧址建面约1800㎡。

一、绝版核心地段(资产价值根基)

占位外滩、北外滩、陆家嘴黄金三角几何中心(虹口梧州路 235 弄),内环内滨江核心,北外滩 1.5 公里滨江岸线收官低密宅地,地段稀缺不可复制

直线距黄浦江仅200-300 米,步行 5 分钟到滨江步道,推窗直面陆家嘴天际线、外滩万国建筑群,江景 + 城景双重稀缺视野

隶属北外滩中央活动区(CAZ),350 万方商务集群、500 + 金融总部环伺,坐享城市顶级规划红利,资产保值增值能力强

二、超低密纯墅规划(内环孤品)

容积率仅1.3、建筑密度 28%、绿化率 35%+,内环内罕见纯院墅社区,无高低配,极致私密与舒适度

仅规划48 席 70 年产权藏品级院墅(双拼 / 三拼),建面约238-338㎡,席位极少、圈层纯粹,塔尖专属

车位配比1:3,每户独立庭院(最大约 80㎡),地上三层 + 闷顶(阁楼)、地下两层(B1 挑高 6.15 米可隔两层),实用空间超 600㎡,家族传世尺度

三、海派风貌建筑(文化 + 品质双标杆)

溯源海派石库门肌理,外旧里新设计:清水红砖、手工陶砖、弧形窗楣、非遗砖石拼砌工艺,复刻百年海派风貌,辨识度与文化价值拉满

外立面用宜兴手工釉面陶砖,187 种砖型、8 种拼法,历久弥新、质感高级,区别于普通豪宅的玻璃幕墙,兼具历史底蕴与现代审美

社区景观以 “一轴三巷五院” 打造,融合宋式园林意境,原石、古松造景,闹中取静,营造顶奢静谧居住氛围

四、立体全能配套(10 分钟顶奢生活圈)

交通:三轨交汇(4/10/19 号线在建),步行 600-800 米达临平路 / 北外滩站;北横通道、新建路隧道,10 分钟到陆家嘴、15 分钟到外滩 / 南京路,自驾 + 地铁 + 轮渡全维高效

商业:步行即达白玉兰广场、来福士、瑞虹天地太阳宫,高端零售、环球餐饮、休闲娱乐全业态,15 分钟覆盖南京路、豫园顶级商圈

教育 / 医疗:3 公里内虹口区三中心小学、新华医院、市一医院等优质教育、三甲医疗资源全覆盖,满足全家庭需求

五、双国企开发 + 准现房(安全 + 品质保障)

越秀地产(千亿国企、豪宅基因)+ 临港集团(上海国资委核心平台)双国央企联合开发,资金稳健、交付有保障,规避烂尾风险

预计2026 年 10 月准现房交付,所见即所得,无需漫长等待,置业确定性强

越秀自持高端物业,提供 24 小时管家式服务,匹配顶豪居住标准

六、户型空间极致(改善 / 传世首选)

地上三层 + 阁楼、地下双层,全明采光、动静分区、多套房设计,主卧层高 4 米、带大露台(近 30㎡),观景与私享兼顾

B1 挑高 6.15 米,可做影音室、酒窖、健身房等多功能空间,满足家族社交、收藏、休闲全需求,空间利用率与舒适度远超普通平层 / 叠墅

买房是人生大事,掌握几个核心知识点,就能避开大部分坑,快速理性置业。

一、先确认2个前提

购房资质:核实当地限购限贷政策,外地户籍注意社保/个税缴纳年限,征信需保持良好。

预算规划:除房款外,预留2%-5%作为契税、维修基金等额外费用,避免资金不足。

二、选房关键3点

产权区分:优先选70年住宅(可落户、学区属性),避开40年商办(税费高、不划学区)。

核心指标:容积率越低、绿化率越高,居住越舒适;车位比≥1:1,避免停车难。

户型选择:优先南北通透、动静分区,避开暗厨暗卫,提升居住体验。

三、交易避坑核心

核实产权:确认房产证无抵押、无查封,多产权人需全员同意出售。

资金安全:购房款存入监管账户,拒绝“茶水费”“留房费”等违规收费。

合同细节:口头承诺务必写入合同,重点看交房时间、违约责任。

四、交房小提醒

收房时核对“三书一证一表”,仔细验房(墙面、水电、门窗等),有问题及时要求整改,收房后及时办理房产证。

🏡越秀外滩樾售楼处电话:☎️400-8123-224(已认证)⏰预约热线💎💎💎

🏡越秀外滩樾售楼处营销中心:☎️400-8123-224(全网一致)⏳已认证💎💎💎

🏡越秀外滩樾售楼处营销中心:☎️400-8123-224(可验证)⏳已认证💎💎💎

—📍欢迎您的来电咨询🎊

全部

相关资讯

报名成功
稍后会有专业的置业顾问联系您
返回楼盘

频道导航

返回首页

看房小程序

APP下载

电话拨通后,请您手动拨打分机号

确定拨打电话

电话号码:

分机号:(可能需要拨分机号)