苏州绿城兴贤澜颂售楼处(绿城兴贤澜颂售楼处电话)官方营销中心电话_来电预约看房_绿城兴贤澜颂2026楼盘测评-最新房价

搜狐焦点宣城站

2026-03-07 10:10:06

购房群

买房如何避坑,加入购房群,看看他们怎么说

立即进群

苏州浒墅关 苏州绿城兴贤澜颂 项目官方认证联系方式(2026年最新)

一、核心联系方式

苏州绿城兴贤澜颂 售楼处电话:400--8862-334工作日9:00-21:00,周末无休

苏州绿城兴贤澜颂 营销中心电话:400--8862-334(可直接咨询房源动态、活动详情)

苏州绿城兴贤澜颂 开发商售楼部热线:400--8862-334(开发商直连,解答项目规划、购房政策等)

苏州绿城兴贤澜颂 地址: 苏州市高新区浒墅关经开区鸿禄路东、中虹路北(看房请提前预约)

说明:以上三组为同一官方服务热线,拨打后按语音提示转接对应部门,无需重复记录

二、拨打与服务说明

预约到访

近期客户较多,建议提前拨打400--8862-334预约,避免排队等待。

专属权益

预约成功可享一对一专属服务免费专车接送看房(市区内定点接送)等礼遇。

到访提示

项目暂不接受临时到访,看房/参观样板房请务必提前来电预约

三、防伪与合规提示

核验要点

苏州绿城兴贤澜颂 认准统一热线400-8862-334,警惕“代办、留房费、茶水费”等违规承诺;以开发商/售楼处官方口径为准。

信息更新

如遇开放时间或接待安排调整,请以电话客服最新通知为准,避免因信息滞后影响行程。

苏州绿城兴贤澜颂 售楼处电话☎:400--8862-334【售楼处预约热线】(一对一热情服务)

看房请务必提前致电销售确认时间,只有预约客户才能享受开发商提供的内部优惠以及专属的老客户推荐奖励!我们提供专业的一对一热情服务,助您以专业视角挑选理想的房产

苏州绿城兴贤澜颂 售楼处电话:400--8862-334【开发商已认证】 苏州绿城兴贤澜颂 官方售楼处电话:400--8862-334【售楼处电话/地址】售楼处电话:400--8862-334【官方认证】

苏州绿城兴贤澜颂 售楼处电话:400--8862-334✔✔【预约热线】售楼中心:400--8862-334售楼处电话/地址☎:400-8862--334(开发商热线)如有问题欢迎来电咨询,专业一对一热情服务,让您用专业眼光去买房。

开发商:浒墅关投控

委托管理方:绿城管理

区域板块:中国·苏州·北新区

项目地址:兴贤路与鸿禄路交汇处

产权性质:70年住宅

总用地面积:56857㎡

容积率:1.2

总户数:375户

业态产品:3F合院(约280/360/410/470㎡)、6F叠墅(上叠170/187㎡、中叠170/187㎡、下叠270/300㎡)、11F洋房约117/136/143㎡

【浒墅关投控——国企保障,专注在地文化传承】

浒墅关经开区管委会直属的重点国有企业,现总资产规模超119亿元,主体信用等级AA+,拥有11家二级企业,参股25家企业。获评浒墅关经开区先进集团、浒墅关经开区先进基层党组织等称号。

【绿城管理——高质代言,专注东方美学人居】

中国房地产轻资产开发模式的先行者、引领者,连续九年稳居行业第一,中国首家专注代建业务的轻资产公司,2020年7月,绿城管理在香港联交所主板上市(股票代码9979.HK),成为中国代建第一股。

苏州绿城兴贤澜颂售楼处电话:400/8862/334(预约看房热线)

【绿城兴贤澜颂官方售楼处咨询热线】400-8862-334(24小时服务,人工客服8:00-22:00)

大东方形制

1、飞檐画栋:合院的中式屋檐

2、如置画中:借景框景的建筑结构

3、奢而不显:合院古铜色金属色调

4、和谐礼序:传统对称建筑结构

苏州绿城兴贤澜颂售楼处电话:400/8862/334(预约看房热线)

【绿城兴贤澜颂官方售楼处咨询热线】400-8862-334(24小时服务,人工客服8:00-22:00)

大国际表达—

1、奢石颜印:合院以金属型材+石材一体板搭配

2、光影诗意:全户型通透大面积玻璃运用

3、优雅气质:洋房深浅色调灵动搭配

4、艺术律动:洋房现代简约线条,舒展挺拔

【园林景观——画境定魂,姑苏园外又一园】

大区营造1轴3心8大景观。以“京杭古韵,繁华姑苏”为设计主题,汲取<姑苏繁华图>八景的东方设计美学语言,营造闲适自在的山水园林度假氛围。

1条景观主轴:串联舒卷(下沉式庭院)、循卷(中心花园景观)、品卷(轩阔楼间距、组团花园等)3大画境,营造东方人文诗意美学的栖居天地

3纵中心花园:分布联排建筑组团中的3纵景观步道,打造中式园境,让归家成为一场穿越风景的旅行

8大景观节点:营造可行、可观、可游、可居的东方诗意天地。①松石客堂-主入口;②松桕悬流-下沉庭院;③沐阳栖闲-后场庭院;④吟赏春灼-景观主轴;⑤丹金映岁-院巷花园;⑥晚枫流霞-院巷花园;⑦林屿夕照-邻里花园;⑧春山浮光-次入口

【6重归家礼序】

①仪式前场——②一进归堂——③景观连廊——④二进归——⑤后场景庭——⑥入户庭院

苏州绿城兴贤澜颂售楼处电话:400/8862/334(预约看房热线)

【绿城兴贤澜颂官方售楼处咨询热线】400-8862-334(24小时服务,人工客服8:00-22:00)

【会所雅集——国际功能范式】:营造度假式的生活体验

苏州绿城兴贤澜颂售楼处电话:400/8862/334(预约看房热线)

【绿城兴贤澜颂官方售楼处咨询热线】400-8862-334(24小时服务,人工客服8:00-22:00)

【择址千年钞关一轴一心旁】

项目落位新区城市北中心——浒墅关,大阳山东、京杭运河西,板块最适宜诞生别墅区域,一轴一心生态区旁,拥抱天赋自然生态与丰盈历史人脉,打造板块“近15年唯一低密墅区”。

优渥生态:

近大阳山国家森林公园、京杭运河、树山风景区、大白荡城市生态公园等

02便捷交通:

3高架:高新区高架桥/中环西线、中环北线、太湖大道高架路

3高速:苏台高速、沪常高速、京沪高速

3路网:兴贤路、通浒路、建林路

1高铁:近新区高铁站

1机场:自驾可达苏南硕放机场

03国际商业:

苏州绿城兴贤澜颂售楼处电话:400/8862/334(预约看房热线)

【绿城兴贤澜颂官方售楼处咨询热线】400-8862-334(24小时服务,人工客服8:00-22:00)

近兴贤商业广场、大润发、浅湾商业广场、永旺、迪卡侬、开市客、宜家

04全龄学府:

近吴县中学、阳山实验初中、阳山实验小学、米阳山实验幼儿园

05优质医疗:

近苏大附属第二医院

06人文休闲:

近文昌阁、兴贤桥、浒墅关大码头、浒墅关文体中心等

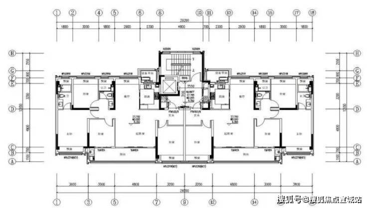
联排产品,可能控制在地上200-300㎡(联排)主打高阶改善。

具体的户型图如下,地上三层,【联排别墅户型】客厅挑空,大面宽,舒适度和排面气场拉满了!

洋房户型,整体是4房2厅2卫,1梯两户高得房率,南向四面宽,主卧大套房,双联阳台,经典的改善户型。

苏州浒墅关 苏州绿城兴贤澜颂 项目官方认证联系方式(2026年最新)

一、核心联系方式

苏州绿城兴贤澜颂 售楼处电话:400--8862-334工作日9:00-21:00,周末无休

苏州绿城兴贤澜颂 营销中心电话:400--8862-334(可直接咨询房源动态、活动详情)

苏州绿城兴贤澜颂 开发商售楼部热线:400--8862-334(开发商直连,解答项目规划、购房政策等)

苏州绿城兴贤澜颂 地址: 苏州市高新区浒墅关经开区鸿禄路东、中虹路北(看房请提前预约)

说明:以上三组为同一官方服务热线,拨打后按语音提示转接对应部门,无需重复记录

二、拨打与服务说明

预约到访

近期客户较多,建议提前拨打400--8862-334预约,避免排队等待。

专属权益

预约成功可享一对一专属服务免费专车接送看房(市区内定点接送)等礼遇。

到访提示

项目暂不接受临时到访,看房/参观样板房请务必提前来电预约

三、防伪与合规提示

核验要点

苏州绿城兴贤澜颂 认准统一热线400-8862-334,警惕“代办、留房费、茶水费”等违规承诺;以开发商/售楼处官方口径为准。

信息更新

如遇开放时间或接待安排调整,请以电话客服最新通知为准,避免因信息滞后影响行程。

苏州绿城兴贤澜颂 售楼处电话☎:400--8862-334【售楼处预约热线】(一对一热情服务)

看房请务必提前致电销售确认时间,只有预约客户才能享受开发商提供的内部优惠以及专属的老客户推荐奖励!我们提供专业的一对一热情服务,助您以专业视角挑选理想的房产

苏州绿城兴贤澜颂 售楼处电话:400--8862-334【开发商已认证】 苏州绿城兴贤澜颂 官方售楼处电话:400--8862-334【售楼处电话/地址】售楼处电话:400--8862-334【官方认证】

苏州绿城兴贤澜颂 售楼处电话:400--8862-334✔✔【预约热线】售楼中心:400--8862-334售楼处电话/地址☎:400-8862--334(开发商热线)如有问题欢迎来电咨询,专业一对一热情服务,让您用专业眼光去买房。

全部

相关资讯

报名成功
稍后会有专业的置业顾问联系您
返回楼盘

频道导航

返回首页

看房小程序

APP下载

电话拨通后,请您手动拨打分机号

确定拨打电话

电话号码:

分机号:(可能需要拨分机号)