联仲都悦汇售楼处电话:400-902-3966
上海闵行联仲都悦汇售楼处电话☎:400-902-3966【开发商售楼处预约看房热线】(一对一热情服务)
看房请提前致电预约,可享受内部渠道优惠!联系销售人员获取最新一房一价表,官方售楼处最新优惠底价!开发商官方销售人员将详细介绍每个户型的独特设计和优势,带您参观样板间,感受精装修的品质和温馨氛围。您还可以了解周边配套设施,包括高端购物中心、优质学校和便捷交通网络,让您的居住体验更加完美。
01.项目基本信息
【开发商】:上海联仲置业有限公司
【物业】:上海仲量联行物业管理公司
【容积率】:1.0
【绿化率】:35%
【车位比】:1:2.1
【物业费】:8元/㎡/月
【本次开盘】:14套
【物业类型】:商业联排别墅
【交付标准】:毛坯
【拿地时间】:2014年8月
【交房时间】:2023年6月
联仲都悦汇售楼处电话:400-902-3966
上海闵行联仲都悦汇售楼处电话☎:400-902-3966【开发商售楼处预约看房热线】(一对一热情服务)
在售户型:建面约310-410平米,地上三层地下一层
(地上:一层层高3.6米/二层层高3.4米/三层层高3.4米/地下层高5.4米)
总价:约1400-1800万️
单价:约5万/平米
小区整体商业:10万方(在建)南北双花园90-300平
水电:商水&商电,电1.3元/度,水6元/吨
产权车位:约30万左右

联仲都悦汇售楼处电话:400-902-3966
上海闵行联仲都悦汇售楼处电话☎:400-902-3966【开发商售楼处预约看房热线】(一对一热情服务)
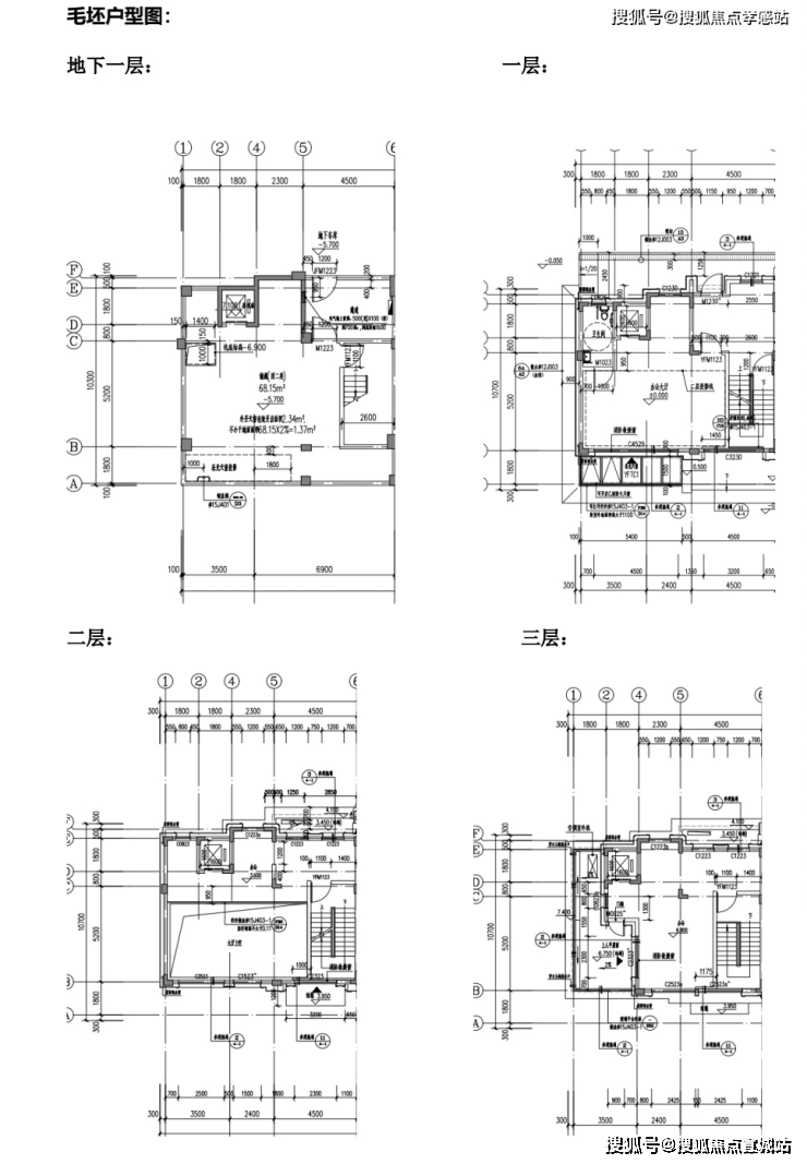
02.户型图及样板间照户
(特殊说明:户型朝向-上南下北)
约10.4米大面宽,面积达到55平
送电梯,北进门,南花园,超大地下室
客厅7米落地窗,采光明亮,尽显大气
约310平户型图▼

联仲都悦汇售楼处电话:400-902-3966
上海闵行联仲都悦汇售楼处电话☎:400-902-3966【开发商售楼处预约看房热线】(一对一热情服务)
约378~420平户型图▼

联仲都悦汇售楼处电话:400-902-3966
上海闵行联仲都悦汇售楼处电话☎:400-902-3966【开发商售楼处预约看房热线】(一对一热情服务)
约407~441平户型图▼

联仲都悦汇售楼处电话:400-902-3966
上海闵行联仲都悦汇售楼处电话☎:400-902-3966【开发商售楼处预约看房热线】(一对一热情服务)
样板间效果图如下:
联仲都悦汇售楼处咨询电话:400-902-3966本项目暂不接受临时到访,过来参观样板房请记得提前来电预约!
联仲都悦汇售楼处电话:400-902-3966
上海闵行联仲都悦汇售楼处电话☎:400-902-3966【开发商售楼处预约看房热线】(一对一热情服务)
联仲都悦汇售楼处咨询电话:400-902-3966本项目暂不接受临时到访,过来参观样板房请记得提前来电预约!
联仲都悦汇售楼处电话:400-902-3966
上海闵行联仲都悦汇售楼处电话☎:400-902-3966【开发商售楼处预约看房热线】(一对一热情服务)
联仲都悦汇售楼处咨询电话:400-902-3966本项目暂不接受临时到访,过来参观样板房请记得提前来电预约!
联仲都悦汇售楼处咨询电话:400-902-3966本项目暂不接受临时到访,过来参观样板房请记得提前来电预约!
联仲都悦汇售楼处电话:400-902-3966
上海闵行联仲都悦汇售楼处电话☎:400-902-3966【开发商售楼处预约看房热线】(一对一热情服务)
联仲都悦汇售楼处咨询电话:400-902-3966本项目暂不接受临时到访,过来参观样板房请记得提前来电预约!
联仲都悦汇售楼处咨询电话:400-902-3966本项目暂不接受临时到访,过来参观样板房请记得提前来电预约!
联仲都悦汇售楼处咨询电话:400-902-3966本项目暂不接受临时到访,过来参观样板房请记得提前来电预约!
03.项目区位配套
【联仲·都悦汇】位于闵行马桥旗忠别墅区,旗忠别墅区是上海老牌的富人区,与松江佘山、浦东东郊齐称为沪上三大国际别墅区。上海仅存少量的容积率0.18以下超低密度居住用地中,大多数在马桥旗忠别墅区。
联仲都悦汇售楼处电话:400-902-3966
上海闵行联仲都悦汇售楼处电话☎:400-902-3966【开发商售楼处预约看房热线】(一对一热情服务)
板块以低容积率、生态自然环境和高端国际品牌配置,2010年被列为上海第二批大型居住社区之一。总建面约33万方城市综合体联仲都悦汇位于旗忠板块正核心,紧临网球中心,超10万方市政绿化所环绕。
联仲都悦汇售楼处咨询电话:400-902-3966本项目暂不接受临时到访,过来参观样板房请记得提前来电预约!
【联仲都悦汇】同样是低密度别墅区里的一员,背靠绿城玫瑰园,容积率低至1.0。项目贯穿了3条自然水系,分为ABCD四个地块,其中ABC为商住办综合地块,自带商业办公。
联仲都悦汇售楼处咨询电话:400-902-3966本项目暂不接受临时到访,过来参观样板房请记得提前来电预约!
交通配套方面:项目距离嘉闵高架元江路出口3公里,毗邻G15、S32等快速主动脉,30分钟大虹桥,50分钟抵达浦东机场,快捷畅达全城。
联仲都悦汇售楼处电话:400-902-3966
上海闵行联仲都悦汇售楼处电话☎:400-902-3966【开发商售楼处预约看房热线】(一对一热情服务)
地铁:5号线华宁路站,剑川路站
公交:马莘专线:联工路站,闵行19路:银春路华宁路站
高速:嘉闵高架、沪金高速、虹梅南路高架沪昆高速、申嘉湖高速、沪闵高架
高铁:距离上海虹桥枢纽站(高铁、机场)约20km
未来规划:嘉闵线延伸段
(以上数据来源于高德地图)

联仲都悦汇售楼处咨询电话:400-902-3966本项目暂不接受临时到访,过来参观样板房请记得提前来电预约!
商业配套方面:项目自带10万方商业,为旗忠唯一的综合性商业配套,其多元化的业态结构,结合旗忠独有的资源,必将带来旗忠全新生活方式。
联仲都悦汇售楼处咨询电话:400-902-3966本项目暂不接受临时到访,过来参观样板房请记得提前来电预约!
联仲都悦汇售楼处电话:400-902-3966
上海闵行联仲都悦汇售楼处电话☎:400-902-3966【开发商售楼处预约看房热线】(一对一热情服务)
联仲都悦汇售楼处咨询电话:400-902-3966本项目暂不接受临时到访,过来参观样板房请记得提前来电预约!
生态资源方面:项目周边有马桥森林公园、旗忠高尔夫球场、旗忠网球中心、韩湘水博园、养云安缦酒店等。
联仲都悦汇售楼处电话:400-902-3966
上海闵行联仲都悦汇售楼处电话☎:400-902-3966【开发商售楼处预约看房热线】(一对一热情服务)
教育资源方面:周边有复旦万科实验学校,德威英国国际学校、斯代文森国际高中、上海美高学校。幼儿园:元祥幼儿园、富杰幼儿园启英幼儿园,大学:上海交通大学、华东师范大学

联仲都悦汇售楼处咨询电话:400-902-3966本项目暂不接受临时到访,过来参观样板房请记得提前来电预约!

联仲都悦汇售楼处咨询电话:400-902-3966本项目暂不接受临时到访,过来参观样板房请记得提前来电预约!

联仲都悦汇售楼处咨询电话:400-902-3966本项目暂不接受临时到访,过来参观样板房请记得提前来电预约!

联仲都悦汇开发商售楼处电话:400-902-3966...(预约热线)➨联仲都悦汇售楼处电话地址☎:400-902-3966√√@最新发布:房价优惠折扣,楼盘测评,交房时间,交付标准,周边配套,学区配套,一房一价表,认筹时间,户型图,平面图,高层洋房大平层合院别墅,样板间,房型多样,地铁口距离,区域板块......
看房请务必提前致电销售确认时间,只有预约客户才能享受开发商提供的内部优惠以及专属的老客户推荐奖励!我们提供专业的一对一热情服务,助您以专业视角挑选理想的房产。z