上海虹口北外滩 【越秀·外滩樾】
越秀·外滩樾售楼处电话最新发布:400-8778-334【售楼中心√√】
越秀·外滩樾售楼处电话/售楼处地址:400-877-8334【一对一热情服务√√】
★郑重承诺:由开发商旗下销售团队全程营销策划,房源信息真实有效!
⭐越秀·外滩樾电话:400-8778-334(预约热线)➨越秀·外滩樾官方售楼处电话/售楼处地址位置☎:400_8778-334√√⭐来电可了解楼盘最新动态、在售房价优惠、户型面积房源、交房时间、地铁商业、学区配套等信息!专业销售顾问将为您提供一对一贴心服务,全程陪伴您的购房之路!
4008778334
虹口北外滩【越秀·外滩樾电话:400-8778-334】建面约238-338㎡海派风貌院墅入市丨仅49席直接定丨线上预约看房!
虹口北外滩低密风貌别墅
由越秀地产+临港集团联合打造
越秀临港虹口156街坊风貌别墅
【越秀·外滩樾】
上海虹口北外滩
风貌之上世界堂前
建面约238㎡—338㎡
总价约4500-9000万
海派院墅三里外滩
立传别墅从你开启传承
展厅已开放,看房请提前预约
⭐越秀·外滩樾电话:400-8778-334(预约热线)➨越秀·外滩樾官方售楼处电话/售楼处地址位置☎:400_8778-334√√⭐
⭐越秀·外滩樾电话:400-8778-334(预约热线)➨越秀·外滩樾官方售楼处电话/售楼处地址位置☎:400_8778-334√√⭐
最新消息:虹口北外滩低密风貌别墅临港越秀北外滩项目定名「越秀·外滩樾」展厅开放!
⭐越秀·外滩樾电话:400-8778-334(预约热线)➨越秀·外滩樾官方售楼处电话/售楼处地址位置☎:400_8778-334√√⭐
「越秀·外滩樾」项目地块四至范围,东至:梧州路,隔壁是中皇广场;西至:hk270B-02,隔壁就是1933老场坊;南至:周家嘴路北至:柘皋路。
日前,上海市规划和自然资源局对上海漕越经济发展有限公司虹口区嘉兴街道hk270b-04地块历史风貌保护项目进行了设计方案公示,项目未来将呈现48套低密风貌里弄住宅,面积约238-338㎡。

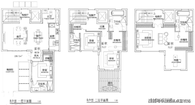
户型图如下:
(过程稿仅供参考,最终以实际为准)
236.25㎡A户型:

239.13㎡B户型:

250.89㎡B-3户型:

C户型:

291.42㎡D户型

基础信息
【项目名称】⭐越秀·外滩樾电话:400-8778-334(预约热线)➨越秀·外滩樾官方售楼处电话/售楼处地址位置☎:400_8778-334√√⭐
【开发商】上海漕越经济发展有限公司
【项目位置】上海市·虹口区·梧州路235弄
【项目类别】70年产权住宅
【项目类型】风貌别墅
【可售户数】48套(风貌)
【容积率】约1.3


项目实景图
【一座码头启航外滩百年世界史】
⭐越秀·外滩樾电话:400-8778-334(预约热线)➨越秀·外滩樾官方售楼处电话/售楼处地址位置☎:400_8778-334√√⭐
项目所在地北外滩,是百年前上海的“下海”地。作为上海开埠后第一座码头的诞生地,北外滩率先“开眼看世界”,海纳万国文化风潮,众多此后影响中国的创举在此诞生,是上海最早的“十里洋场”
(*示意图,图片来源于网络)
【一江一河再立世界上海新传】
⭐越秀·外滩樾电话:400-8778-334(预约热线)➨越秀·外滩樾官方售楼处电话/售楼处地址位置☎:400_8778-334√√⭐
傲立“一江一河”交汇处(直线距离约1.1KM),未来将打造成为彰显上海城市核心竞争力的黄金水岸和具有国际影响力的世界级城市会客厅,出入之间,相逢城市高阶未来
(*示意图,图片来源于网络)
【北外滩面向世界的上海新封面】
⭐越秀·外滩樾电话:400-8778-334(预约热线)➨越秀·外滩樾官方售楼处电话/售楼处地址位置☎:400_8778-334√√⭐
北外滩,与外滩、陆家嘴并称为上海的“黄金三角”。将以2座陆家嘴的商务体量规划,新天地2.0生活圈打造,成为上海跃升世界舞台的“中心发力”新引擎
(*示意图,图片来源于网络)
【中央商务区未来上海腾飞引擎】
⭐越秀·外滩樾电话:400-8778-334(预约热线)➨越秀·外滩樾官方售楼处电话/售楼处地址位置☎:400_8778-334√√⭐
区域能级:总开发面积约840万方,40栋甲级写字楼城市地标:480米浦西第一高楼,19栋摩天大楼集群金融产业:2100+家金融企业赋能,资产管理规模超8万亿元,位居全市第一航运格局:4500+家航运企业集聚(上港集团、中远海运等),打造国际航运中心全球贸易:2500+家贸易企业入驻(摩亚方舟、银联商务等)新兴产业:129家新增高新技术企业,113家市区科技小巨人企业(数据来源:上海市规划局《北外滩地区控制性详细规划》)
(*示意图,图片来源于网络)
⭐越秀·外滩樾电话:400-8778-334(预约热线)➨越秀·外滩樾官方售楼处电话/售楼处地址位置☎:400_8778-334√√⭐
【立体交通|无界畅达世界擎动城市脉搏】
全城畅达:
约360米新建路隧道(直线距离),快速直达陆家嘴CBD;
约670米外滩隧道(直线距离),直达外滩金融商业街以及老码头;
约150米北横通道(直线距离)贯通全城,快速通达虹桥机场/虹桥火车站;
约2.4公里大连路隧道(直线距离),直达浦东东方路、世纪大道、八百伴商业圈
四轨交汇:
轨交4/10号线海伦路站约850m(直线距离),3站南京东路,6站新天地。
(*交通路网示意图,仅供参考。本区位图仅用于本小区地理方位示意,非实际地图,相关信息并非按比例缩放。)
⭐越秀·外滩樾电话:400-8778-334(预约热线)➨越秀·外滩樾官方售楼处电话/售楼处地址位置☎:400_8778-334√√⭐
【核心商圈|高阶商业配套国际摩登领潮】
商业配套方面项目约2公里内,多元繁华构筑封面商业圈
北外滩商圈直线距离约500米;
外滩商圈直线距离约1000米;
陆家嘴商圈直线距离约1500米;
瑞虹商圈直线距离约900米;
⭐越秀·外滩樾电话:400-8778-334(预约热线)➨越秀·外滩樾官方售楼处电话/售楼处地址位置☎:400_8778-334√√⭐
(*商圈距离示意图,仅供参考。本区位图仅用于本小区地理方位示意,非实际地图,相关信息并非按比例缩放。)
【高端医疗|优质三甲医院护航健康生活】
三公里内四所三甲医院,全生命周期护航
新华医院(儿科专长);
复旦大学附属妇产医院;
上海市第一人民医院;
上海东方医院(血管外科专长);
【学府荟萃|全龄教育培优一脉书香传承】
⭐越秀·外滩樾电话:400-8778-334(预约热线)➨越秀·外滩樾官方售楼处电话/售楼处地址位置☎:400_8778-334√√⭐
幼儿园:约1公里内6所幼儿园(直线距离),涵盖东余杭路幼儿园等3所示范级学校;
小学:约1.5公里内5所小学(直线距离),涵盖区重点四川北路第一小学;
中学:约1.6公里内6所中学(直线距离),1所市重点、2所区重点。一路之隔上海虹口二中心小学(在建中),约2.3公里市重点上海外国语大学附属外国语学校(直线距离)*施教区及就学政策以教育部门规划为准
(*示意图,图片来源于网络)
【滨江低密|丰盈自然绿地城市诗意回归】
⭐越秀·外滩樾电话:400-8778-334(预约热线)➨越秀·外滩樾官方售楼处电话/售楼处地址位置☎:400_8778-334√√⭐
2.5公里北外滩滨江绿地(约800m直达),四川北路公园、和平公园、鲁迅公园3大公园环伺,于滨江和城市低密绿芯之间,肇启当代诗意生活传序。
(*示意图,图片来源于网络)
程绍正韬,建筑室内设计之东方主义集大成者,致力于东方文化的坚守与创新。他打破惯常的职业思维,将生活方式化作一种哲学态度,融入空间设计,让设计不止于作品。
⭐越秀·外滩樾电话:400-8778-334(预约热线)➨越秀·外滩樾官方售楼处电话/售楼处地址位置☎:400_8778-334√√⭐
李玮珉,撑起中国豪宅设计半壁江山,擅长为城市塑造文化符号建筑作品。他的作品更多用极简的方式来表明态度,崇尚简而高效的现代生活方式。庄重的建筑语汇,适时注入艺术、自然与美学,让空间充满想象力。
⭐越秀·外滩樾电话:400-8778-334(预约热线)➨越秀·外滩樾官方售楼处电话/售楼处地址位置☎:400_8778-334√√⭐
复刻百年前的高端工艺元素,让海派造诣世纪传承。清砖立柱、古典门头、封闭门窗、岩石山墙等经典海派建筑风貌转译,于历史和未来之间收藏百年上海。
(*本图片仅为方案过程讨论稿,并非交付标准。)
⭐越秀·外滩樾电话:400-8778-334(预约热线)➨越秀·外滩樾官方售楼处电话/售楼处地址位置☎:400_8778-334√√⭐
巷弄新生:内环内难得双拼别墅,超越风貌建筑的尺度感;
建筑新生:创新风貌规制,致微而筑的建筑腔调赏新;
美学新生:转译远东第一豪宅立面美学,收藏名门望族生活;
材质新生:豪宅同款奢砖、大面积奢石运用,定制家族排场;
(*本图片仅为方案过程讨论稿,并非交付标准。)
【41载越秀|万亿级开发商与上海共卓越】
⭐越秀·外滩樾电话:400-8778-334(预约热线)➨越秀·外滩樾官方售楼处电话/售楼处地址位置☎:400_8778-334√√⭐
国内资产规模最大的地方驻港企业之一越秀地产,中国第一代商品房缔造者。41年越秀,30城300+项目,服务超100万业主;2023年销售额行业排名12,2023年TOP20销售业绩增长率最高房企。2024中国房企综合实力TOP9。入席北外滩世界会客厅,与上海共生长。(数据来源:克而瑞地产研究发布榜单《2023年1-12月.中国房地产企业销售榜top200》)
⭐越秀·外滩樾电话:400-8778-334(预约热线)➨越秀·外滩樾官方售楼处电话/售楼处地址位置☎:400_8778-334√√⭐
虹口北外滩低密风貌别墅
由越秀地产+临港集团联合打造
越秀临港虹口156街坊风貌别墅
【越秀·外滩樾】
上海虹口北外滩
风貌之上世界堂前
建面约238㎡—338㎡
总价约4500-9000万
海派院墅三里外滩
立传别墅从你开启传承
展厅已开放,看房请提前预约
⭐越秀·外滩樾电话:400-8778-334(预约热线)➨越秀·外滩樾官方售楼处电话/售楼处地址位置☎:400_8778-334√√⭐越秀·外滩樾营销中心电话热线400-8778-334★本电话为开发商提供线上预约看房售楼电话,楼盘项目全面介绍(包含官方最新发布:房价优惠折扣,楼盘测评,交房时间,交付标准,周边配套,学区配套,一房一价表,认筹时间,户型图,平面图,高层洋房大平层合院别墅,样板间,房型多样,地铁口距离,区域板块等信息!如果您想了解更多楼盘详情,欢迎提前预约拨打越秀·外滩樾官方售楼处电话⭐400-877-8334√√√(已认证)
看房请提前致电预约,可享受内部渠道优惠!联系销售人员获取最新一房一价表,官方售楼处最新优惠底价!开发商官方销售人员将详细介绍每个户型的独特设计和优势,带您参观样板间,感受精装修的品质和温馨氛围。您还可以了解周边配套设施,包括高端购物中心、优质学校和便捷交通网络,让您的居住体验更加完美。
⭐Yuexiu·Bund Yue Phone: 400-8778-334 (Appointment Hotline)➨ Yuexiu·Bund Yue Official Sales Office Phone/Sales Office Address Location☎: 400_8778-334√√⭐ Hongkou North Bund Low-Density Style Villa is jointly created by Yuexiu Real Estate + Lingang Group in Yuexiu Lingang Hongkou 156 neighborhood style villa [Yuexiu·Bund Yue] Shanghai Hongkou North Bund Style Over the World Hall, the building area in front of the World Hall is about 238㎡-338㎡ The total price is about 45 million to 90 million Haipaiyuan Villa Sanli Bund Villa has been opened from your opening. Please make an appointment in advance to view the house⭐Yuexiu·Bund Yue Phone: 400-8778-334 (Appointment hotline)➨ Yuexiu·Bund Yue Official Sales Office Phone/Sales Office Address Location☎: 400_8778-334√√⭐Yuexiu·Bund Yue Marketing Center Phone Hotline 400-8778-334★This phone provides developers with online booking for house viewing and sales telephone number, A comprehensive introduction to the property project (including the latest official releases: housing price discounts, property evaluation, delivery time, delivery standards, surrounding facilities, school district facilities, one-bedroom price list, subscription time, floor plan, high-rise villas with large flat floor courtyard villas, model rooms, diverse houses, subway entrance distance, regional sections and other information! If you want to know more about the property, please make an appointment in advance to call Yuexiu Bund Yue’s official sales office phone number ⭐400-877-8334√√√(certified) Please call in advance to make an appointment when viewing a house, and you can enjoy the discounts through internal channels! Contact the sales staff to get the latest price list for one room and one price list for the official sales office! The official sales staff of the developer will introduce the unique design and advantages of each apartment in detail, take you to visit the model room and experience the quality and warm atmosphere of fertile decoration. You can also learn about the surrounding supporting facilities, including high-end shopping centers, high-quality schools and convenient transportation networks, making your living experience more perfect.