招商云澜湾售楼处电话→售楼处电话→售楼处电话→首页网站→招商云澜湾售楼处电话→户型价格→小区环境周边配套→交房时间→24小时热线电话-楼盘详情

搜狐焦点宣城站

2025-07-28 11:02:10

购房群

买房如何避坑,加入购房群,看看他们怎么说

立即进群

招商云澜湾

售楼处电话:400-8862-334(预约热线)

如有问题欢迎来电咨询,专业一对一热情服务,让您用专业眼光去买房。

招商云澜湾售楼处电话:400-8862-334【售楼热线】营销中心热线400-8862-334售楼处地址400-8862-334,楼盘项目全面介绍,本电话为开发商提供线上售楼电话,楼盘项目全面介绍(包含楼盘简介,房价,价格,楼盘地址,户型图,交通规划,备案价,项目配套,楼盘详情,售楼处电话,最新消息,最新详情,周边配套,最新进展等详情咨询)

一对一为您服务!

售楼处电话:400-8862-334(已认证)

△招商云澜湾135㎡上叠户型图

售楼处电话:400-8862-334(已认证

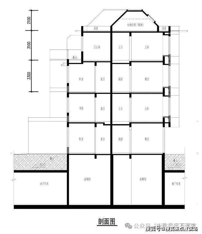
叠墅的舒适品质

低容积率的社区(包含独栋、双拼、联排、合院、叠墅等)本质上是一种对于土地价值的【奢侈性】消费。而随着城市中别墅新房产品的几乎断档,叠墅,特别是四层叠墅,可以满足更多人的需求,让更多的人能够享受高品质的居住环境。

从叠墅的分类来看,四层叠墅就是楼栋层数为四层,同一单元内仅有四户:两户下叠(一层跃二层),两户上叠(三层跃四层)。相比与排名在后的六层叠墅(一单元六户)、八层叠墅(一单元八户),四层叠墅的楼层更低,户数更少,居住舒适感更高,产品的珍贵性更强。

四层叠墅中的上叠产品从入户空间,居住空间来说,私密性更强,3F和4F的采光空间优秀,享受主要功能用房朝南的优渥格局。同时空间不仅仅是横向的伸展,更是纵向的延伸,上下两层互不打扰、各个居室保持私密,成为了现代生活二代居的不二选择。

售楼处电话:400-8862-334(已认证)

招商云澜湾135㎡上叠户型正是四层叠墅中的佼佼者。

售楼处电话:400-8862-334(已认证)

叠墅的本质是较高的实用率

招商云澜湾135㎡上叠户型的每个空间都比较方正。在各个空间的组合上,依据功能布局和生活流线,兼顾高效和舒适。底层布置有一个卧室,可以为不便走楼梯的家人使用;或者作为客房,和二层主人卧室分离。客餐厅和厨房属于公共活动空间,与二层卧室空间“动静分区”,最大化避免干扰。

房地产专业有一个名词叫做“实用率”,是指住宅户型中会有一些没有计入使用面积,但却可以让住户独立使用的一部分面积,比如赠送的地下室、阁楼、独立使用的电梯厅等。将这些面积算到你的使用面积中,就成为你的实得面积。叠墅中的实得率高主要来源在于赠送。

售楼处官方电话:400-8862-334(已认证)

售楼处电话:400-8862-334(已认证)

再看看上叠的层高,三层3.3M,四层3.1M,这个高度居住起来比较舒适,无论是客厅,还是卧室,空间感都会非常不错。

售楼处电话:400-8862-334(已认证)

售楼处电话:400-8862-334(已认证)

一流的【主卧尺寸】

住宅中,【主卧三件套】以及其细分的标准,是其基础内涵和核心硬件。于是我们先看主卧套件。

01卧室空间合理

主卧室的第一要务就是需要宽敞。同时将卧室、卫浴、衣橱多空间串联结合,形成自成小世界的大套房。

招商云澜湾上叠户型的主卧套房面积达到约23㎡,面宽约3.9M,进深约3.5M。这个居住尺度还是比较舒适的。(备注:文中所提到的面积、面宽和进深是墙到墙的距离。)

售楼处官方电话:400-8862-334(已认证)

△招商云澜湾135㎡上叠4F主卧示意图

有了足够的尺度,软装和陈设方面就具备了足够丰富元素的堆砌空间。无论你是喜欢比较简洁的现代风格,还是更加温馨的中式风格,都可以感受不一样的居住体验,同时自带南向大视野飘窗带来极致的观景体验。

大尺度的横厅

项目采用客餐厅合二为一,互相借景。客餐厅的面宽约6.7M,进深约3.5M。(备注:文中所提到的面积、面宽和进深是墙到墙的距离。)

售楼处电话:400-8862-334(已认证)

售楼处电话:400-8862-334(已认证)

大横厅是最近几年最流行的,将客厅和餐厅二合一,横向展开。优点是空间互相借景,互相延伸,显得更大。此外,由于南面更宽,可以有更多的采光面,会让客厅更加明亮,充满阳光。

招商云澜湾135㎡上叠户型做到了面宽约6.7米,完整的两个开间,可以说把宽厅的尺度做到了非常舒适。(备注:文中所提到的面积、面宽和进深是墙到墙的距离。)

售楼处官方电话:400-8862-334(已认证)

△招商云澜湾135㎡上叠3F大横厅示意图

此外,这个餐厅的空间,继续向北渗透延伸,餐厅与厨房的也形成相互延伸,让空间再次延展开阔。

售楼处电话:400-8862-334(已认证)

售楼处电话:400-8862-334(已认证)

厨房则是预留了做U型厨房的空间。一条中轴线与餐桌形成对位,当移门都打开的时候,餐厨形成了一个整体,将餐厨空间也变成了一个蛮有仪式感的生活体验。

售楼处官方电话:400-8862-334(已认证)

售楼处电话:400-8862-334(已认证)

△招商云澜湾135㎡上叠3FU型厨房示意图

售楼处官方电话:400-8862-334(已认证)

入户玄关

特别值得一提的是:3层门厅入户的玄关设计预留了入户收纳的实用功能。

△招商云澜湾135㎡上叠3F玄关示意图

售楼处电话:400-8862-334(已认证)

【通风】【采光】技术评测

售楼处电话:400-8862-334(已认证)

△招商云澜湾135㎡上叠户型采光图(4幢3F西边套)

售楼处电话:400-8862-334(已认证)

△招商云澜湾135㎡上叠户型通风图(4幢3F西边套)

【采光性能】——得益于较高的窗地比,户型室内采光程度较好;虽然户型整体进深较大,但室内照度在1000lx以上的面积依然超过了50%,采光条件优异。餐厅客厅两开间相结合,整合了飘窗和阳台,强化了采光,加宽的厨房门设计让厨房可以借用餐客厅的采光,很好地补足了自身采光。4F的北侧空间通过开窗,向露台借光,有效改善了楼梯间采光弱的痛点。

【通风性能】——二开间双层叠墅设计,在3F把餐厅客厅两开间相结合,餐客厅一体化形成较为开阔的生活空间利于通风。几乎做满面宽的飘窗和阳台为通风创造了良好的条件。整个户型四个基本生活空间均有良好的通风带,户型南北通透,建筑南北两侧的风压差结合户型自身优势,使得通风效果十分优异。

售楼处电话:400-8862-334(已认证)

△招商云澜湾135㎡上叠户型采光图(4幢4F西边套)

售楼处电话:400-8862-334(已认证)

△招商云澜湾135㎡上叠户型通风图(4幢3F西边套)

小结:以上是对招商云澜湾135㎡上叠户型的评测,总结来说,叠墅产品能够享受更多的土地价值,而项目自身打造的众多居住品质提升更凸显产品的居住价值。

项目基本信息

售楼处电话:400-8862-334(已认证)

总建筑面积:超11万方

可售住宅套数:617套(高层477套,叠加140套)

车位:约860个

容积率:约1.6

绿地率:约35%

产品类型:高层、叠加

产权:70年

项目地址:上海 ·松江· 荣乐西路与三新路交汇处产

品面积段:

(1)建面约96㎡三室两厅两卫

(2)建面约100㎡三室两厅两卫

(3)建面约126㎡四室两厅两卫

(4)建面约135㎡叠拼别墅

(5)建面约141㎡叠拼别墅

房地联动价:49000元/㎡

2025 上海购房政策及房产知识全解析

在上海这座充满机遇与梦想的城市,拥有一套属于自己的房子,是许多人的奋斗目标。然而,购房政策犹如复杂的迷宫,首付比例、贷款细则、税费缴纳等关键信息,时刻影响着购房者的决策与钱包。踏入 2025 年,上海购房政策又有了新变化,是时候深入了解,为梦想中的家做好准备。接下来,我们将详细剖析 2025 年上海购房政策中首付比例、贷款政策以及税费政策的方方面面,帮助您拨开迷雾,在购房路上明晰前行。

一、首付比例大揭秘

(一)商业贷款

首套房:最低首付比例为 15%。这一政策的调整,大大降低了首次购房者的资金门槛,让更多年轻人有机会迈出购房的第一步。例如,一套价值 500 万的房子,按照 15% 的首付比例,仅需支付 75 万即可开启拥有自己房产的梦想。

二套房:最低首付比例为 25%。其中,位于自贸区临港新片区以及嘉定、青浦、松江、奉贤、宝山、金山 6 个行政区全域的二套房,最低首付比例为 20%。这些区域的政策倾斜,旨在促进城市的均衡发展,吸引更多人口向新兴区域流动,同时也为改善型购房者提供了更为宽松的选择空间。以一套 800 万的二套房为例,在临港新片区等区域,首付只需 160 万,而在其他区域则需 200 万。

(二)公积金贷款

首套住房:最低首付款比例为 20%。公积金贷款一直以来都是购房者的重要选择,较低的首付比例和优惠的利率,为购房者节省了大量资金。

第二套改善型住房:核心区最低首付款比例为 25%;非核心区(如临港新片区、嘉定、青浦、松江、奉贤、宝山、金山)最低首付款比例为 20%。这一政策既考虑了核心区域的实际情况,又为非核心区域的改善需求提供了支持,让购房者能够根据自身经济实力和居住需求做出更合适的选择。

二、贷款政策深度解读

(一)公积金贷款

额度:购买首套住房,个人最高贷款额度为 65 万元,家庭最高贷款额度为 130 万元;缴交补充住房公积金的,个人最高贷款额度为 80 万元,家庭最高贷款额度为 160 万元。多子女家庭购买首套住房,个人最高可达 78 万元,家庭最高可达 156 万元,缴交补充住房公积金的,个人最高可达 96 万元,家庭最高可达 192 万元。购买第二套改善型住房,个人最高贷款额度为 50 万元,家庭最高贷款额度为 100 万元,缴交补充住房公积金的,个人最高贷款额度为 65 万元,家庭最高贷款额度为 130 万元。

利率:5 年以下(含 5 年)首套利率 2.1%,二套利率 2.525%;5 年以上首套利率 2.6%,二套利率 3.075%。公积金贷款利率的优惠,使得购房者的还款压力大大减轻。例如,贷款 100 万,贷款期限 30 年,首套房公积金贷款相比商业贷款,利息支出将减少数十万元。

(二)商业贷款

首套房贷利率下限调整为 LPR-110BP(当前 LPR 为 3.5%,则实际利率低至 2.5%),二套房利率与首套房利率差距在缩小。商业贷款政策的调整,紧跟市场动态,旨在为购房者提供更为合理的融资渠道,降低购房成本。

三、税费政策一览

(一)增值税

满 2 年普通住宅免征,非普通住宅差额征收(5.3%)。这一政策对于房产市场的流通起到了积极的促进作用,鼓励购房者进行合理的房产置换。

(二)个人所得税

满 5 年唯一住房免征。不满 5 年或非唯一住房,(核定价格 - 本次交易增值税)×1%或按利润 20%申报(按利润计算个人所得税可在扣除增值税及附加后计算)。此外,2022 年 10 月 1 日至 2025 年 12 月 31 日,纳税人出售自有住房并在 1 年内重新购房,可按规定申请退还已缴纳的个人所得税。个人所得税政策的调整,既保障了长期持有房产者的利益,又为房产交易提供了一定的灵活性。

(三)契税

首套房,面积≤90㎡,(核定价格 - 本次交易增值税)×1%;面积>90㎡,(核定价格 - 本次交易增值税)×1.5%。二套房,面积≤140㎡,(核定价格 - 本次交易增值税)×2%;面积>140㎡,(核定价格 - 本次交易增值税)×3%。契税政策根据房屋面积和套数进行区分,体现了政策的公平性和合理性。

(四)房产税

从 2011 年 1 月 28 日开始实施。上海房产税税率为 0.4%和 0.6%,新购住房单价≤91,954 元 / 平方米,税率为 0.4%;单价>91,954 元 / 平方米,税率为 0.6%。计算公式为:新购房屋应税面积 × 新购房屋单价 ×70%× 税率 ÷1.05。上海家庭若在上海无任何住房,免征房产税;外地家庭首套房且 “上海居住证” 连续 3 年有效或积分达到 120 分,二套房免征房产税,不符合豁免条件则全额征收。房产税政策的实施,有助于调节房产市场的供需关系,促进房产资源的合理配置。

2025 年上海购房政策在首付比例、贷款政策和税费政策等方面都进行了一系列的调整,旨在为购房者提供更为宽松、合理的购房环境。购房者在购房前,务必充分了解这些政策,结合自身实际情况,做出明智的购房决策。希望大家都能在上海这座城市,找到属于自己的温馨家园。

招商云澜湾

售楼处电话:400-8862-334(预约热线)

如有问题欢迎来电咨询,专业一对一热情服务,让您用专业眼光去买房。

招商云澜湾售楼处电话:400-8862-334【售楼热线】营销中心热线400-8862-334售楼处地址400-8862-334,楼盘项目全面介绍,本电话为开发商提供线上售楼电话,楼盘项目全面介绍(包含楼盘简介,房价,价格,楼盘地址,户型图,交通规划,备案价,项目配套,楼盘详情,售楼处电话,最新消息,最新详情,周边配套,最新进展等详情咨询)

全部

相关资讯

报名成功
稍后会有专业的置业顾问联系您
返回楼盘

频道导航

返回首页

看房小程序

APP下载

电话拨通后,请您手动拨打分机号

确定拨打电话

电话号码:

分机号:(可能需要拨分机号)