杭州中心 大平层
千年武林,一座杭州中心
售楼处电话☎:400-8862-334【售楼处预约热线】(一对一热情服务)
楼盘项目全面介绍,本电话为开发商提供线上售楼电话,楼盘项目全面介绍(包含楼盘简介,房价,价格,楼盘地址,户型图,交通规划,备案价,项目配套,楼盘详情,售楼处电话,最新消息,最新详情,周边配套,最新进展等详情咨询)
看房请务必提前致电销售确认时间,只有预约客户才能享受开发商提供的内部优惠以及专属的老客户推荐奖励!我们提供专业的一对一热情服务,助您以专业视角挑选理想的房产。

【杭城繁华原点 500方典藏传奇 敬献杭城的1/23】
地标性武林广场,繁华原点再塑繁华
世界文化遗产、顶尖商业集群环伺
全维立体交通 汇聚百万人潮
国际顶尖大师设计,城市精神美学代表作
万象TOD综合体 推动杭州能级跨越
天际行政公馆 只为中心人物

地标性武林广场,不可超越的绝对市中心
位于杭州传统核心区,武林板块的中心位置,为最繁华、成熟的市级中心,是杭州政治、经济和文化中心。
根据杭州市国土资源规划空间结构,武林和湖滨位列三个市级中心之首

世界文化遗产、顶尖商业集群环绕
北向世界文化遗产京杭大运河,南向世界文化遗产西湖,双向非遗景观
杭州大厦、武林银泰等全国顶尖商业集群环绕,成就世界级百亿武林商圈

全维立体交通 汇聚百万人潮
项目双地铁(武林广场站)上盖,1号线、3号线两线交汇,通达全城。
上塘高架入口,延安路起点、环城北路

国际顶尖大师设计,城市精神美学代表作
Gp & lead8 行业顶尖水准垂范
日本著名室内设计师 渡边智昭
代表作品:上海汤臣一品、上海翠湖天地、杭州嘉里逸庐
中国著名室内设计师 于昭
代表作品:深圳SIC大平层、北京万国府、北京梵悦
国际知名建筑设计事务所 SCDA
代表作品:上海保利世博住宅、西安融创曲江国际社区、杭州古翠隐秀
TOD综合体 推动杭州能级跨越
约130米双子塔,集四季酒店、Mall和高端写字楼为一体的市中心地标性TOD城市综合体
商务:云端总部基地,城市精华办公资源尽在掌握
商业:10年顶尖商业沉淀之上的杭州中心Mall
公寓:天际行政公馆,2梯4户,定制化一户一精装
办公:云端总部基地,城市精华办公资源尽在掌握
景观:垂直分布,容景于宅,纵览河景,高区湖景
服务:万象生活物业,极致服务细节

天际行政公馆 只为中心人物
国内顶尖商业集群之上的中心生活
avalon collective扛旗 奢装美学新篇,户户高定
三重视野景观:北向为运河拐角及环球中心,城市感与开阔感强;
南面为西湖远景及项目屋顶花园,静谧与惬意感更强;
西面为武林广场杭州大厦及国大,夜晚呈现都市夜景
商业Mall(效果图)

首层大堂艺术走廊(效果图)

标准层电梯厅及入户门(效果图)

B3层地下大堂门头(效果图)

B3层公寓业主车位区(效果图)

十一至十六层公寓(示意图)
户型分布(过程稿)

A户型:建筑面积约510㎡
B户型:建筑面积约520㎡
C户型:建筑面积约518㎡
D户型:建筑面积约588㎡
B户型(3+1房,过程稿)

B户型客厅(效果图)

B户型餐厅(效果图)

B户型主卧卫生间(效果图)

C户型(3+1房,过程稿)

C户型餐客厅(效果图)

C户型主卧室(效果图)

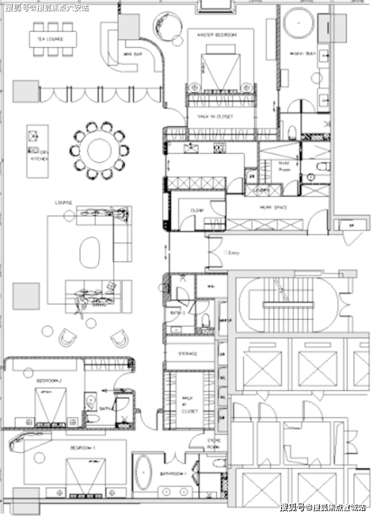
D户型(3+1房,过程稿)

D户型玄关(效果图)

D户型参客厅(效果图)

D户型主卧(效果图)

杭州中心 大平层
千年武林,一座杭州中心
售楼处电话☎:400-8862-334【售楼处预约热线】(一对一热情服务)
楼盘项目全面介绍,本电话为开发商提供线上售楼电话,楼盘项目全面介绍(包含楼盘简介,房价,价格,楼盘地址,户型图,交通规划,备案价,项目配套,楼盘详情,售楼处电话,最新消息,最新详情,周边配套,最新进展等详情咨询)
看房请务必提前致电销售确认时间,只有预约客户才能享受开发商提供的内部优惠以及专属的老客户推荐奖励!我们提供专业的一对一热情服务,助您以专业视角挑选理想的房产。