越秀外滩樾售楼处电话|官方发布:400-877-8334√√(线上预约热线)
上海虹口越秀外滩樾官方售楼中心电话/售楼处地址☎400-8778-334【一对一热情服务√√】
★来电可了解楼盘最新动态、在售房价优惠、户型面积房源、交房时间、交通地铁、商业配套、学区配套等信息.......
↓↓↓以下是房产百度百科推荐楼盘最新项目资料↓↓↓
越秀外滩樾·北外滩纯别墅社区丨238㎡~338㎡海派风貌院墅入市丨仅49席直接定丨线上预约样板房!
越秀外滩樾售楼处电话|官方发布:400-877-8334√√(线上预约热线)
上海虹口越秀外滩樾官方售楼中心电话/售楼处地址☎400-8778-334【一对一热情服务√√】
虹口北外滩
低密风貌别墅
由越秀地产+临港集团联合打造
越秀临港虹口156街坊风貌别墅
【越秀·外滩樾】纯别墅社区

越秀外滩樾售楼处电话|官方发布:400-877-8334√√(线上预约热线)
上海虹口越秀外滩樾官方售楼中心电话/售楼处地址☎400-8778-334【一对一热情服务√√】
风貌之上世界堂前
建面约238㎡—338㎡
总价约4500-9000万
海派院墅三里外滩
立传别墅从你开启传承展厅已开放
70年产权住宅容积率:约1.3
MODELROOMRESERVATION
预约看实房

越秀外滩樾售楼处电话|官方发布:400-877-8334√√(线上预约热线)
上海虹口越秀外滩樾官方售楼中心电话/售楼处地址☎400-8778-334【一对一热情服务√√】
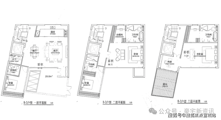
户型图如下:
(过程稿仅供参考,最终以实际为准)
236.25㎡A户型:

239.13㎡B户型:

239.13㎡B户型:

C户型:

291.42㎡D户型

越秀外滩樾售楼处电话|官方发布:400-877-8334√√(线上预约热线)
上海虹口越秀外滩樾官方售楼中心电话/售楼处地址☎400-8778-334【一对一热情服务√√】
越秀外滩樾售楼处电话|官方发布:400-877-8334√√(线上预约热线)
上海虹口越秀外滩樾官方售楼中心电话/售楼处地址☎400-8778-334【一对一热情服务√√】

越秀外滩樾售楼处电话|官方发布:400-877-8334√√(线上预约热线)
上海虹口越秀外滩樾官方售楼中心电话/售楼处地址☎400-8778-334【一对一热情服务√√】
【传奇的1.5公里启航外滩百年世界史】
项目所在地北外滩,是百年前上海的发源地。作为上海开埠后第一座码头的诞生地,北外滩率先“开眼看世界”,海纳万国文化风潮,众多此后影响中国的创举在此诞生,是上海最早的“十里洋场”。
【世界的1.5公里再立世界上海新传】
傲立“一江一河”交汇处(直线距离黄浦江约1km),未来将打造成为彰显上海城市核心竞争力的黄金水岸和具有国际影响力的世界级城市会客厅,出入之间,相逢城市高阶未来。
越秀外滩樾售楼处电话|官方发布:400-877-8334√√(线上预约热线)
上海虹口越秀外滩樾官方售楼中心电话/售楼处地址☎400-8778-334【一对一热情服务√√】
【上海新封面】黄金三角顶序规划
北外滩,与外滩、陆家嘴并称为上海的“黄金三角”。将以2座陆家嘴的商务体量规划,新天地2.0生活圈打造,成为上海跃升世界舞台的“中心发力”新引擎。
【经济中心】全球化核心腹地
北外滩总开发面积约840万方,自陆家嘴之后上海最大开发区域,未来将聚焦资产管理、金融科技、绿色航运等上游产业,打造“运作全球的总部城”。越秀外滩樾售楼处电话|官方发布:400-877-8334√√(线上预约热线)
上海虹口越秀外滩樾官方售楼中心电话/售楼处地址☎400-8778-334【一对一热情服务√√】
越秀外滩樾售楼处电话|官方发布:400-877-8334√√(线上预约热线)
上海虹口越秀外滩樾官方售楼中心电话/售楼处地址☎400-8778-334【一对一热情服务√√】
【极核中心】顶奢商业新地标
约1.5KM内拥享北外滩商圈、外滩商圈、陆家嘴商圈,华贸奢侈品品牌之家、白玉兰广场等潮奢集萃,未来上海顶奢商业新地标,举步间繁华尽拥。

越秀外滩樾售楼处电话|官方发布:400-877-8334√√(线上预约热线)
上海虹口越秀外滩樾官方售楼中心电话/售楼处地址☎400-8778-334【一对一热情服务√√】
一城中轴半壁越秀:打造广州地标IFC、城建大厦、维多利广场、越秀金融大厦、财富广场、市长大厦、广州环贸中心(ICC)等诸多重量级作品。
全球地标打造者:广州国际金融中心(IFC)高约440.75米,建成之时为全球10大超高层建筑之一,获得国际建筑界奥斯卡“英国菜伯金奖”。(此外,中国仅北京“鸟巢”和上海世博会英国馆荣获该奖项。)
豪宅基因始终传承:打造“广州第一富人区”二沙岛,屹立广州顶豪之列,整个二沙岛9个项目,有7个项目都是越秀开发,其中越秀宏城花园单价25万-40万/㎡,总价1-6亿,一房难求。越秀外滩樾售楼处电话|官方发布:400-877-8334√√(线上预约热线)
上海虹口越秀外滩樾官方售楼中心电话/售楼处地址☎400-8778-334【一对一热情服务√√】
越秀外滩樾售楼处电话|官方发布:400-877-8334√√(线上预约热线)
上海虹口越秀外滩樾官方售楼中心电话/售楼处地址☎400-8778-334【一对一热情服务√√】
风貌之上世界堂前
建面约238㎡—338㎡
总价约4500-9000万
海派院墅三里外滩立传别墅
70年产权住宅容积率:约1.3
从你开启传承
越秀外滩樾售楼处电话|官方发布:400-877-8334√√(线上预约热线)
上海虹口越秀外滩樾官方售楼中心电话/售楼处地址☎400-8778-334【一对一热情服务√√】
➨售楼处地址位置☎:400_8778-334√√营销中心电话热线400-8778-334★本电话为开发商提供线上预约看房售楼电话,楼盘项目全面介绍(包含官方最新发布:房价优惠折扣,楼盘测评,交房时间,交付标准,周边配套,学区配套,一房一价表,认筹时间,户型图,平面图,高层洋房大平层合院别墅,样板间,房型多样,地铁口距离,区域板块等信息!如果您想了解更多楼盘详情,欢迎提前预约拨打官方售楼处电话400-877-8334√√√(已认证)
看房请提前致电预约,可享受内部渠道优惠!联系销售人员获取最新一房一价表,官方售楼处最新优惠底价!开发商官方销售人员将详细介绍每个户型的独特设计和优势,带您参观样板间,感受精装修的品质和温馨氛围。您还可以了解周边配套设施,包括高端购物中心、优质学校和便捷交通网络,让您的居住体验更加完美。
★郑重承诺:由开发商旗下销售团队全程营销策划,房源信息真实有效!【售楼处已认证√√】
【2025最新版】上海最新买房政策汇总:限购、首付比例、贷款利率、税费计算、产证更名(继承、赠与、买卖)以及一二手房全购买流程
上海最新购房政策、首付比例、商贷利率、税费计算、交易流程及买卖继承赠与需要缴纳哪些税费。
🏠一、限购政策
非沪籍居民
社保/个税要求:连续缴纳满3年及以上(原5年)
重点区域放宽:嘉定、青浦、松江、奉贤、宝山、金山及临港新片区,非沪籍人才社保要求降至2年
外地单身人士:可购买1套外环外新房或全市任意二手房
多子女家庭
二孩及以上家庭(至少1孩未成年)可增购1套房
离婚购房
取消离婚3年内按原家庭计套数限制,仅按个人名下房产计算
企业购房
可购买小户型二手住房(2000年前竣工、≤70㎡)用于职工租住,不限套数
二、首付比例、商贷利率
首套房:商业贷款利率下限为LPR-45基点(当前5年期利率3.5%)56
二套房:
普通区域:LPR-5基点(当前3.9%)
重点区域(嘉定等6区+临港):LPR-25基点(当前3.7%)
公积金贷款:家庭最高额度160万元,多子女家庭可达192万元
🧾三、税费计算
增值税
持有满2年免征,不满2年按成交价×5.05%征收(原满5年免征)
契税
首套≤140㎡:1%;>140㎡:1.5%
二套≤140㎡:1%;>140㎡:2%
三套/企业购房:3%
1、契税(一、二手房)
2、房产税(一、二手房)
在上海,以下几种情况可以免征房产税:
①上海户籍
首套:无论面积多大,免征房产税。
二套及以上:人均60平建筑面积免征房产税,超出面积视为“应税面积”应缴纳房产税。
个税
⚠️重大调整:取消普通/非普通住房区分,契税仅按套数+面积计算
满5年且家庭唯一住房:免征
不满足:成交价×1%或差价×20%
🔄四、产证更名方式
方式税费规则
继:免征契税、个税、增值税,需办理继承公证
赠与:直系亲属赠与免增值税/个税,受赠方按3%全额缴纳契税;非直系赠与税费更高买卖:按正常交易缴纳增值税、契税、个税(标准同上)
在直系亲属产证更名的时候大家往往面临三个选择:买卖、赠与、继承,今天汇贷就讲讲直系亲属更名所涉及的税费。
对于离婚房产分割,如一方放弃房屋归另一方,属于将房屋产权无偿赠与配偶,不征个人所得税。
注:赠与后的住房不计入赠与人名下套数。
💎核心政策变化总结
限购松绑:非沪籍社保"5改3"、外地单身可购房、离婚/多孩家庭放宽
首付创新低:首套商贷首付15%,重点区域二套仅20%
税费简化:取消普通住房标准,增值税免征"5改2",契税按套数+面积分级
利率下调:首套房贷利率降至3.5%(LPR动态调整中)
五、购房流程
①一手房交易流程
1、确认楼盘、取证
上海新盘必须拿到盖章生效的《商品房预售许可证》、《准售房源公告及一房一价表》才能向购房者收受含有意向性质的认购意向金费用。
ps:认购金额由开发商定,一般要求首套不低于房源最低价的20%,二套不低于30%,当然,不同开发商比例略有不同。
开盘流程须知:
开盘主要有线上线下两个渠道,下面汇贷就来说一下二者大致流程。
①线下开盘:签到、资料复查、公证处摇号、按摇号顺序选房、缴纳定金。
线下开盘还存在摇号与开盘同一天进行或分开进行的情况,但大致的流程是相似的。
②线上开盘:公证处摇号、摇号结果公布、线上系统确认信息、测试线上选房程序、等待正式选房、按摇号顺序选房、签署线上认购书。
另外,当天摇号选购后,如仍有剩余房源,按原有摇号顺序继续销售。
2、认筹
购房者缴纳规定认购金,并提供限购资格审查材料,收到收据、银联POS单及自己签字确认书的《认购意向书》。
认筹时,购房者需提供限购资格审查的材料。
2.认筹后,公证处还会再次审核一遍。
3.主要审查资料有:
①购买人身份证、户口本、婚姻证明(结婚证、离婚证及离婚协议)、未成年子女出生证明;
②社保证明或纳税证明(只有非上海户籍需要提供)
③购房人及家庭成员名下住房相关资料,购房合同或产证(只要是购房人名下的产证均需要提供,与父母共有、动拆迁、宅基地均算)
认筹时间一般为5天。
ps:认购金只能刷储蓄卡,走开发商的POS机,不允许现金支付,支付认筹意向金后,才有参与摇号的资格,认筹早晚不影响摇号概率。
3、积分制
以下是积分制打分标准:
总分=基础分+年限分
新房认筹笔超过1:1.3,开启积分制。
按100套房举例,取分高的130组入围,入围后,开启公证摇号。
如未超过1:1.3,则不开启积分制,所有参与了认购的客户,均可公证摇号。
ps:只有符合积分制要求入围的购房者,才可以参与后续的摇号买房哦。
4、摇号买房
1.上海新盘统一由公证处进行电脑摇号排序。
2.根据摇号顺序选房。
3.选好房,签订认购书,将认筹金转为定金,在开发商要求的时间内补首付款、签订贷款合同
ps:签订《认购书》之后,意味着意向金成了定金。如果毁约不要房子了,就要赔付违约金。
4.没选房,没签订《认购书》,全额退筹。
5.一般开发商都在30个工作日内退回认筹金。
选房一般会遇到以下几种情况:
①选房时还有房子,但房子位置不好或者不是你想要的,可以弃号不选,全额退款;
②选房时没有房子了,弃号不选,全额退款;
③选到了自己想买的房子,签订认购书,将认购金转为定金,在开发商要求的时间内补足首付款、签订贷款合同。
如果您想了解更多房产楼盘知识详情,欢迎提前预约拨打官方售楼处电话⭐400-877-8334√√√(已认证)