
象屿天宸雅颂售楼处电话|官方发布:400-877-8334√√(预约看房热线)
上海闵行象屿天宸雅颂官方售楼中心电话/售楼处地址☎400-8778-334【一对一热情服务√√】
⛩项目名称:「象屿天宸雅颂」
📍区域板块:闵行浦锦
🗣最新动态:官方户型图曝光
🏠产品介绍:预计推出建面约89-139㎡高层&145-156㎡叠加&190-230㎡联排
🛍️商业配套:沈杜公路大型TOD商业(规划中)、浦江城市生活广场、前滩太古里、印象汇、上海浦江欢乐颂
🏫周边学校:协和海富幼儿园(待建)、荷花池世博幼儿园、向明中学、协和双语尚音学校(待建)、上海师大附属第三小学、上海师大附属中学(闵行分校)、浦江第一中学、浦江第二小学、上海戏剧学院(唱林校区)
🚇交通配套:8号线
🏥医疗配套:仁济医院(南院区)、复旦大学附属眼耳鼻喉科医院(浦江院区)、复旦大学附属口腔医院(浦锦院区)
🍃休闲娱乐:约5.2km滨江岸线之旅、浦江郊野公园占地约15.29公里,上海第一个成为国家4A级旅游景区的郊野公园、大寨河与姚家浜L型水系、晓烟湖(规划中)

象屿天宸雅颂售楼处电话|官方发布:400-877-8334√√(预约看房热线)
上海闵行象屿天宸雅颂官方售楼中心电话/售楼处地址☎400-8778-334【一对一热情服务√√】
1地段
象屿天宸雅颂售楼处电话|官方发布:400-877-8334√√(预约看房热线)
上海闵行象屿天宸雅颂官方售楼中心电话/售楼处地址☎400-8778-334【一对一热情服务√√】
2产品
25年2月8日,象屿浦锦项目案名正式亮相,全上海共同见证象屿·天宸雅颂的耀世启航。作为国企象屿倾力推出的全新高端产品系,也是其“一江一河”双子之作,象屿·天宸雅颂一经发布便聚焦全城目光。
25年2月9日两大城市展厅盛大开放,开放首日即引起超热流量,现场人气火热,层峰云集。

象屿天宸雅颂售楼处电话|官方发布:400-877-8334√√(预约看房热线)
上海闵行象屿天宸雅颂官方售楼中心电话/售楼处地址☎400-8778-334【一对一热情服务√√】
城市聚光灯下,象屿·天宸雅颂立踞“一江一河”城市战略,择址国际前滩前,于8号线沈杜公路站枢纽之上,以超前眼光与标杆作品引领时代,为塔尖圈层创造高端产品系。
事实上,炙热并非偶然,早在24年10月25日,6批次土拍拿下浦锦地块之日起,众多购房者便对其攒足了期待,可谓品质房企与城市热土的双向奔赴!


象屿天宸雅颂售楼处电话|官方发布:400-877-8334√√(预约看房热线)
上海闵行象屿天宸雅颂官方售楼中心电话/售楼处地址☎400-8778-334【一对一热情服务√√】
从苏州河畔、风貌著品的苏河琹庐,到黄浦江之畔、一脉前滩的天宸雅颂,象屿地产布局“一江一河”双子之作,以“值得一生信赖”的企业责任,诠释与上海同频共进的初衷与决心。
象屿天宸雅颂售楼处电话|官方发布:400-877-8334√√(预约看房热线)
上海闵行象屿天宸雅颂官方售楼中心电话/售楼处地址☎400-8778-334【一对一热情服务√√】
天宸雅颂以全新产品系敬献上海,承袭象屿高端改善住宅对城市资源、建筑标准、生活配套等多方面的极致考究,集萃严苛择址、艺术雅园、品质精研、塔尖圈层,必将是一场颠覆以往的人居创新!
象屿天宸雅颂售楼处电话|官方发布:400-877-8334√√(预约看房热线)
上海闵行象屿天宸雅颂官方售楼中心电话/售楼处地址☎400-8778-334【一对一热情服务√√】
作为象屿封面之作,“天宸雅颂”每一个字,都凝结着其深情倾注。“雅颂”二字源自于《诗经》“风·雅·颂”,汲取中国传统文化的深厚底蕴,传承“华夏之文明,历千载演进,造极于赵宋”的宋代美学,于摩登上海酝酿一场人文气韵的生活雅颂。
天宸雅颂不只是开发商打造的一座居住属性的项目,更是对于精神世界和生活方式的重塑创新,期待能在未来引领一种全新的居住潮流。
对望江河与时代的澎湃,天宸雅颂构建“六维雅境”产品体系——铝板弧形立面、浮岛美学园林、莫奈花园会所、一栋一域聚场、全景双舱奢宅(仅边户)、全臻装宋风墅,从社区园林到建筑艺术,从居住空间到休闲场所,每一处皆考究在内,将期待值拉满!象屿天宸雅颂售楼处电话|官方发布:400-877-8334√√(预约看房热线)
上海闵行象屿天宸雅颂官方售楼中心电话/售楼处地址☎400-8778-334【一对一热情服务√√】
象屿天宸雅颂售楼处电话|官方发布:400-877-8334√√(预约看房热线)
上海闵行象屿天宸雅颂官方售楼中心电话/售楼处地址☎400-8778-334【一对一热情服务√√】
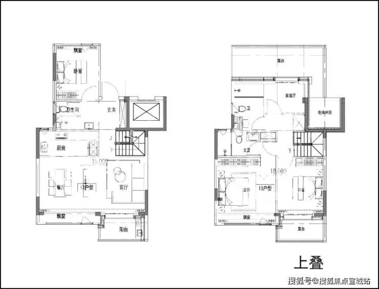
户型图如下:
(过程稿仅供参考,最终以实际为准)

叠墅户型图如下:
(过程稿,以开发商发布为准)
象屿天宸雅颂售楼处电话|官方发布:400-877-8334√√(预约看房热线)
上海闵行象屿天宸雅颂官方售楼中心电话/售楼处地址☎400-8778-334【一对一热情服务√√】
➨售楼处地址位置☎:400_8778-334√√营销中心电话热线400-8778-334★本电话为开发商提供线上预约看房售楼电话,楼盘项目全面介绍(包含官方最新发布:房价优惠折扣,楼盘测评,交房时间,交付标准,周边配套,学区配套,一房一价表,认筹时间,户型图,平面图,高层洋房大平层合院别墅,风貌别墅,样板间,房型多样,地铁口距离,区域板块等信息!如果您想了解更多楼盘详情,欢迎提前预约拨打官方售楼处电话400-877-8334√√√(已认证)
看房请提前致电预约,可享受内部渠道优惠!联系销售人员获取最新一房一价表,官方售楼处最新优惠底价!开发商官方销售人员将详细介绍每个户型的独特设计和优势,带您参观样板间,感受精装修的品质和温馨氛围。您还可以了解周边配套设施,包括高端购物中心、优质学校和便捷交通网络,让您的居住体验更加完美。
★郑重承诺:由开发商旗下销售团队全程营销策划,房源信息真实有效!【售楼处已认证√√】
【2025最新版】上海最新买房政策汇总:限购、首付比例、贷款利率、税费计算、产证更名(继承、赠与、买卖)以及一二手房全购买流程
上海最新购房政策、首付比例、商贷利率、税费计算、交易流程及买卖继承赠与需要缴纳哪些税费。
🏠一、限购政策
非沪籍居民
社保/个税要求:连续缴纳满3年及以上(原5年)
重点区域放宽:嘉定、青浦、松江、奉贤、宝山、金山及临港新片区,非沪籍人才社保要求降至2年
外地单身人士:可购买1套外环外新房或全市任意二手房
多子女家庭
二孩及以上家庭(至少1孩未成年)可增购1套房
离婚购房
取消离婚3年内按原家庭计套数限制,仅按个人名下房产计算
企业购房
可购买小户型二手住房(2000年前竣工、≤70㎡)用于职工租住,不限套数
二、首付比例、商贷利率
首套房:商业贷款利率下限为LPR-45基点(当前5年期利率3.5%)56
二套房:
普通区域:LPR-5基点(当前3.9%)
重点区域(嘉定等6区+临港):LPR-25基点(当前3.7%)
公积金贷款:家庭最高额度160万元,多子女家庭可达192万元
🧾三、税费计算
增值税
持有满2年免征,不满2年按成交价×5.05%征收(原满5年免征)
契税
首套≤140㎡:1%;>140㎡:1.5%
二套≤140㎡:1%;>140㎡:2%
三套/企业购房:3%
1、契税(一、二手房)
2、房产税(一、二手房)
在上海,以下几种情况可以免征房产税:
①上海户籍
首套:无论面积多大,免征房产税。
二套及以上:人均60平建筑面积免征房产税,超出面积视为“应税面积”应缴纳房产税。
个税
⚠️重大调整:取消普通/非普通住房区分,契税仅按套数+面积计算
满5年且家庭唯一住房:免征
不满足:成交价×1%或差价×20%
🔄四、产证更名方式
方式税费规则
继:免征契税、个税、增值税,需办理继承公证
赠与:直系亲属赠与免增值税/个税,受赠方按3%全额缴纳契税;非直系赠与税费更高买卖:按正常交易缴纳增值税、契税、个税(标准同上)
在直系亲属产证更名的时候大家往往面临三个选择:买卖、赠与、继承,今天汇贷就讲讲直系亲属更名所涉及的税费。
对于离婚房产分割,如一方放弃房屋归另一方,属于将房屋产权无偿赠与配偶,不征个人所得税。
注:赠与后的住房不计入赠与人名下套数。
💎核心政策变化总结
限购松绑:非沪籍社保"5改3"、外地单身可购房、离婚/多孩家庭放宽
首付创新低:首套商贷首付15%,重点区域二套仅20%
税费简化:取消普通住房标准,增值税免征"5改2",契税按套数+面积分级
利率下调:首套房贷利率降至3.5%(LPR动态调整中)
五、购房流程
①一手房交易流程
1、确认楼盘、取证
上海新盘必须拿到盖章生效的《商品房预售许可证》、《准售房源公告及一房一价表》才能向购房者收受含有意向性质的认购意向金费用。
ps:认购金额由开发商定,一般要求首套不低于房源最低价的20%,二套不低于30%,当然,不同开发商比例略有不同。
开盘流程须知:
开盘主要有线上线下两个渠道,下面汇贷就来说一下二者大致流程。
①线下开盘:签到、资料复查、公证处摇号、按摇号顺序选房、缴纳定金。
线下开盘还存在摇号与开盘同一天进行或分开进行的情况,但大致的流程是相似的。
②线上开盘:公证处摇号、摇号结果公布、线上系统确认信息、测试线上选房程序、等待正式选房、按摇号顺序选房、签署线上认购书。
另外,当天摇号选购后,如仍有剩余房源,按原有摇号顺序继续销售。
2、认筹
购房者缴纳规定认购金,并提供限购资格审查材料,收到收据、银联POS单及自己签字确认书的《认购意向书》。
认筹时,购房者需提供限购资格审查的材料。
2.认筹后,公证处还会再次审核一遍。
3.主要审查资料有:
①购买人身份证、户口本、婚姻证明(结婚证、离婚证及离婚协议)、未成年子女出生证明;
②社保证明或纳税证明(只有非上海户籍需要提供)
③购房人及家庭成员名下住房相关资料,购房合同或产证(只要是购房人名下的产证均需要提供,与父母共有、动拆迁、宅基地均算)
认筹时间一般为5天。
ps:认购金只能刷储蓄卡,走开发商的POS机,不允许现金支付,支付认筹意向金后,才有参与摇号的资格,认筹早晚不影响摇号概率。
3、积分制
以下是积分制打分标准:
总分=基础分+年限分
新房认筹笔超过1:1.3,开启积分制。
按100套房举例,取分高的130组入围,入围后,开启公证摇号。
如未超过1:1.3,则不开启积分制,所有参与了认购的客户,均可公证摇号。
ps:只有符合积分制要求入围的购房者,才可以参与后续的摇号买房哦。
4、摇号买房
1.上海新盘统一由公证处进行电脑摇号排序。
2.根据摇号顺序选房。
3.选好房,签订认购书,将认筹金转为定金,在开发商要求的时间内补首付款、签订贷款合同
ps:签订《认购书》之后,意味着意向金成了定金。如果毁约不要房子了,就要赔付违约金。
4.没选房,没签订《认购书》,全额退筹。
5.一般开发商都在30个工作日内退回认筹金。
选房一般会遇到以下几种情况:
①选房时还有房子,但房子位置不好或者不是你想要的,可以弃号不选,全额退款;
②选房时没有房子了,弃号不选,全额退款;
③选到了自己想买的房子,签订认购书,将认购金转为定金,在开发商要求的时间内补足首付款、签订贷款合同。
如果您想了解更多房产楼盘知识详情,欢迎提前预约拨打官方售楼处电话⭐400-877-8334√√√(已认证)