「预约☎」外滩瑞府🚩🚩百度百科_项目均价_户型_开盘时间_价格怎么样?
上海黄浦外滩瑞府售楼处电话:400-877-83344√√【官网预约☎】外滩瑞府售楼处营销中心:400-8778-334(开发商热线)外滩瑞府官方售楼中心电话/地址☎:4008778334【售楼处已认证√√√】如有问题欢迎来电咨询,专业一对一热情服务,让您用专业眼光去买房。
据悉,华润虹口项目【外滩瑞府】将推出建面约120-240㎡3-4房,展厅接待中,样板间已经正式开放(接受提前预约)。
预计均价在15.5-16万之间。
外滩瑞府售楼处电话:400-8778-334


项目装标如下:

外滩瑞府售楼处电话:400-8778-334

扫码添加楼市君微信
对接【外滩瑞府】销售
进入上海新房置业群
建面约124㎡3房户型:
该户型三开间朝南,除了大面宽的阳台,还配备5飘窗;
进门玄关有充足的收纳空间,S墙设计也预留了冰箱位置;
三间卧室尺度阔绰且面宽近乎均等,真正实现家庭成员的居住、视野、采光的平权。
外滩瑞府售楼处电话:400-8778-334
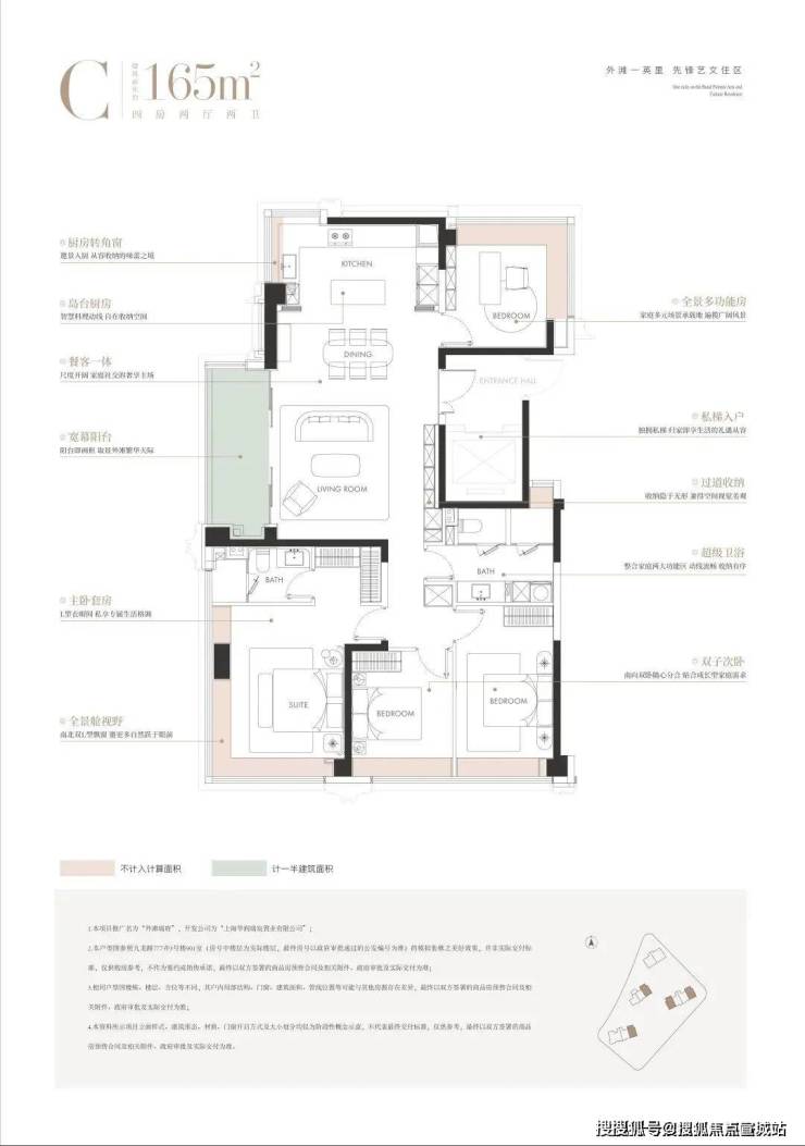
建面约165㎡4房户型:
大户型的主卧、次卧,均设置了270°转角飘窗,厨房和阳台均有转角,实现景观视野最大化。
岛台厨房-餐厅-客厅-阳台一体化设计,动线流畅,整个社交区域宽敞利用率高。
值得一提的事,包括124㎡的户型,外滩瑞府卧室开间都做到了3米以上。
项目效果图如下:
外滩瑞府售楼处电话:400-8778-334
外滩瑞府售楼处电话:400-8778-334
华润“瑞系”以「先锋、稀缺、极致、境界」为产品基因,此次外滩瑞府的落地,正是这一基因的“上海表达”:

外滩瑞府售楼处电话:400-8778-334
建筑设计:采用“风貌→幕墙→冠冕”过渡式向上生长设计,基座延续石库门拱券符号,中段以玻璃幕墙与金属线条勾勒现代美学,顶部“冠冕”造型致敬外滩古典建筑天际线,

生活方式:以“街区可漫游”的城市更新理念激活历史里弄,保留风貌建筑的同时,规划植入文化艺术分馆、精品咖啡工坊、黑胶唱片店等“高级烟火气”业态,让老上海的“弄堂温度”与国际生活方式碰撞出新火花。
这种“传统与现代共生”的产品设计,让外滩瑞府成为“新派顶豪生活”的样本——它不仅是居住空间,更是“全球城市核心生活”的入口。

具体来看产品亮点:
第一,项目独特的开发属性——高层住宅与历史风貌底盘的融合共生,价值在市场上独一份,毕竟唯有承载着风貌肌理与弄堂记忆的土地,才真正流淌着上海的城市血脉。
外滩瑞府售楼处电话:400-8778-334
第二,有别于大多数的市区项目以兵列树阵式的景观设计,外滩瑞府通过建筑楼体的偏转形成了围合式的景观布局,秉持三个最大化,两个最小化(景观最大化,采光最大化,朝向视线最大化;遮挡最小化,影响最小化)。
通过这种创新布局,项目不仅形成连续的中心花园,更因楼栋布局与边界有夹角,自然形成一系列边角院落空间。
尤为难得的是,部分东南高区可看到陆家嘴三件套和北外滩浦西第一高楼的遥相呼应。
第三,全域风雨连廊,外滩瑞府将风雨连廊扩容为完整的归家体系,实现全住宅楼栋无风雨归家,带来顶豪级的归家居住体验。

上海黄浦外滩瑞府售楼处电话:400-877-83344√√【官网预约☎】外滩瑞府售楼处营销中心:400-8778-334(开发商热线)外滩瑞府官方售楼中心电话/地址☎:4008778334【售楼处已认证√√√】
⭐来电可了解楼盘最新动态、在售房价优惠、户型面积房源、交房时间、地铁商业、学区配套等信息!温馨提示:来电提前预约、尊享线上一对一热讲解【享】专属优惠折扣!
➨🚩🚩售楼处24小时VIP电话:400_8778-334√√售楼中心热线400-8778-334★本电话为开发商提供线上预约看房售楼电话,★来电可了解楼盘最新动态,项目全面介绍(包含官方最新发布:在线预约看房丨在售房价优惠丨户型面积房源丨交房时间丨交通地铁丨商业配套丨教育资源丨小高层洋房丨独栋别墅丨联排合院丨商业别墅丨得房率丨容积率丨小区环境丨优缺点分析丨楼盘测评丨在售户型图丨项目介绍丨最新房源丨周边配套丨详细解答丨一对一热情讲解〢区域板块等信息!★郑重承诺:由开发商旗下销售团队全程营销策划,房源信息真实有效!如果您想了解更多楼盘详情,欢迎提前预约拨打官方售楼处电话400 8778 334√√√(已认证)
VIP贵宾置业〢欢迎来电咨询〢品鉴!!