青溪雲邸(官方售楼处)-青溪雲邸官网首页置顶|欢迎您|青溪雲邸最新楼盘详情-青溪雲邸小区环境/青溪雲邸最新房价

搜狐焦点宣城站

2025-07-05 10:16:41

购房群

买房如何避坑,加入购房群,看看他们怎么说

立即进群

✨✨上海青溪雲邸售楼处售楼处电话:400-8123-224✔✔✔☎☎

温馨提示:网上售楼中心刂预约可享内部优惠|欢迎来电恭迎品鉴|

温馨提示——拨打400电话——来电预约登记__VIP热线售楼中心_〢尊享一对一专业顾问为您解答置业咨询服务〢预约最新优惠___〢售楼中心置业顾问为您买房保驾护航〢___匠心钜制恭迎品鉴!欢迎致电售楼处电话,专业一对一热情服务,更多楼盘详情敬请咨询,看房请提前预约销售,这里是售楼处专属热线,专业顾问为您解答置业咨询服务,静候您的来电☎!

论土地的开发速度,还得是看这些老牌开发商。

早早就拿到土地的新长宁程家桥项目,至今还没有一点要入市的动静。

而在去年第八轮土拍中,刚拿地不久的招商&越秀北新泾项目,已经公布了设计方案,户型图也开始流出。

有风声放出,将今年二季度入市。

✨✨上海青溪雲邸售楼处电话:400-8123-224✔✔✔☎☎

✨✨上海青溪雲邸售楼处地址:400-8123-224✔✔✔(24小时资讯热线)☎☎

长宁区的供应向来稀缺,近期入市的只有一个大面积高总价的别墅产品——青溪雲邸。招商越秀项目,是这里近期唯一的,常规购房者能够得上的住宅项目。

01

网传13-14万的均价

不算特别贵,但也不便宜

首先是价格层面。

根据网上目前传出的信息,项目预计会卖到13-14万。

如果从周边二手房的角度来讲,项目的性价比不算差,但也很难说是在优秀这一档。

项目旁边就是元丰天山花园,根据安居客数据显示,项目目前的挂牌价在7-8万左右.当然了,作为一个07年的老小区,这个价格是偏低的。

✨✨上海青溪雲邸售楼处电话:400-8123-224✔✔✔☎☎

✨✨上海青溪雲邸售楼处地址:400-8123-224✔✔✔(24小时资讯热线)☎☎

根据链家网显示,北新泾次新房中海长宁邸最近的售价在10.5万左右,和项目预估的售价存在2万元/平的正挂。正挂幅度大约在20%左右。

当然,如果拿它西郊紫薇花园做对比,成交价确实是基本相仿。

✨✨上海青溪雲邸售楼处电话:400-8123-224✔✔✔☎☎

✨✨上海青溪雲邸售楼处地址:400-8123-224✔✔✔(24小时资讯热线)☎☎

根据相关自媒体在去年年末的统计,上海如今的新房价格比二手,普遍存在约17%的倒挂。

在如今新房地价全面狂飙的大环境下,招商越秀项目约20%的正挂幅度,确实算不上什么。

当然了,笔者还是那句话,现在考虑性价比的话建议买二手。

新房就是为更新的楼龄和更卷的产品力支付溢价。

新房做横向比较,又得分不同情况。

如果和如今这一批新房相比,确实没什么竞争空间。

毕竟如今这个价格,是静安中兴路和苏河湾、是虹口临平路、是浦东世纪大道、是杨浦滨江带……

如果再往前两个月,你还能买在徐汇滨江。

一个个都是响当当的,得到市场认可的板块。

如果和以后的不限价新房比,那又得两说。

如果静安大宁项目真的如传闻拿到16万,其它中环地块的推测价格都在13万左右,那回过头再看13万的内中环长宁地块,那确实就不太贵。

这一切都得等这几个项目入市才能做定论。

02

周边虽有老破小

但综合产品力依旧能打

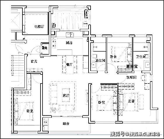
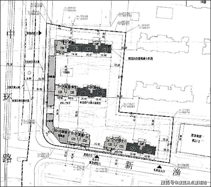
之后我们再来聊一下项目的产品力。先看已经公布的设计规划:

✨✨上海青溪雲邸售楼处电话:400-8123-224✔✔✔☎☎

✨✨上海青溪雲邸售楼处地址:400-8123-224✔✔✔(24小时资讯热线)☎☎

要说最明显的不利因素,就是它紧贴中环路。

虽说做了一些内退,但这个距离还是很难彻底解决噪音问题。三玻两腔的玻璃估计是标配了。只要不开窗就是岁月静好。

目前流传出的户型图信息较少,我们暂时先给一个简单的分析:

建面约120㎡3房

✨✨上海青溪雲邸售楼处电话:400-8123-224✔✔✔☎☎

✨✨上海青溪雲邸售楼处地址:400-8123-224✔✔✔(24小时资讯热线)☎☎

建面约143㎡4房

✨✨上海青溪雲邸售楼处电话:400-8123-224✔✔✔☎☎

✨✨上海青溪雲邸售楼处地址:400-8123-224✔✔✔(24小时资讯热线)☎☎

整体户型做的还是比较方正,采用飞机户型的空间分布,减少走道带来的空间浪费。

这一排的边套估计还会有一定抗性,就看价格给的是否有吸引力。

再把目光聚集到项目周边。

长宁,总是和上海市区、和国际范绑定在一起。

也是诸多老上海人心中,最宜居的地段之一。不过由于总体的开发时间较早,不可避免的会出现老破小扎堆的情况。

但倒也也不必因此“避雷”,其实周边的城市环境其实倒也还好。

得益于长宁区有钱,这些老破小的日常维护没有落下,不至于出现市区项目常出现的“出门叙利亚”的问题。

✨✨上海青溪雲邸售楼处电话:400-8123-224✔✔✔☎☎

✨✨上海青溪雲邸售楼处地址:400-8123-224✔✔✔(24小时资讯热线)☎☎

更得益于旁边大规模租赁公寓项目的建成,城市界面有了明显的焕新。等项目交付时,应该已形成了不错的居住氛围。

最后聊一下配套。

项目距离最近的2号线北新泾站,直线大约200米。实际步行大约在5分钟左右,日常出行还是比较方便。

✨✨上海青溪雲邸售楼处电话:400-8123-224✔✔✔☎☎

✨✨上海青溪雲邸售楼处地址:400-8123-224✔✔✔(24小时资讯热线)☎☎

商业方面也是较为完善的。2号线北新泾站拥有商业体宜嘉坊,项目步行约700米可至百联西郊购物中心。

✨✨上海青溪雲邸售楼处电话:400-8123-224✔✔✔☎☎

✨✨上海青溪雲邸售楼处地址:400-8123-224✔✔✔(24小时资讯热线)☎☎

医疗方面,项目直线向南约600米,就有三级乙等医院:上海同仁医院。周边还有一些小医院和一医疗服务中心作为补充。

对于日常生活来说,这些配套已经足够使用。

03

产业导入下

北新泾发展可期

我们再来看一下北新泾板块的发展。

目前在网络上,也有将该项目归类在仙霞的。

严格来说,北新泾板块和仙霞板块之间,是存在着不小的差距。

如果单论距离市中心的距离,仙霞确实更胜一筹。但如果考虑未来的发展潜力,那老破小扎堆的仙霞,说白了也就是个自住板块,实际上并没有北新泾的上限高。

而项目所在地块,虽然距离正经的北新泾还有一点点距离,但更不应该被划分去仙霞。

一、买房前的准备工作:知己知彼,百战不殆

1. 明确自己的需求

买房前,首先要问自己几个问题:

- 你是刚需还是投资? 如果是刚需,优先考虑交通便利、生活配套齐全的区域;如果是投资,则要考虑升值潜力。

- 你对房子的面积、户型有什么?要求 三室两厅还是两室一厅?南北通透还是其他布局?

- 你的预算范围是多少? 包括房价、税费、装修费等。

明确需求后,才能有的放矢地去选房。

2. 调查市场行情

- 了解房价走势:通过房产网站、中介或朋友推荐,掌握目标区域的房价水平及涨跌趋势。

- 关注政策动态:比如限购、限贷、首付比例等政策变化都会影响你的购房计划。

- 比较不同楼盘:同一区域内不同楼盘的价格、品质、开发商背景等都有差异,货比三家才能买到性价比高的房子。

3. 准备好首付和相关费用

- 首付:一般为房价的20%-50%,具体比例因城市和政策而异。

- 税费:契税、维修基金、交易手续费等都需要提前准备。

- 装修预算:如果买的是毛坯房,装修费用也需要纳入考虑。

二、选房阶段:细节决定成败

1. 地段是关键

- 交通便利:尽量选择地铁沿线或公交站点附近的小区。

- 生活配套完善:周边是否有超市、医院、学校、银行等设施。

- 未来发展潜力:比如是否靠近 CBD、新区或规划中的大型商业综合体。

2. 房屋本身的质量

- 户型设计:采光、通风、动静分区是否合理。

- 房屋结构:检查是否存在裂缝、渗水等问题。

- 隐蔽工程:如水电管道、墙体保温等,可以通过物业或邻居了解。

3. 开发商和物业公司

- 开发商资质:选择信誉良好的品牌开发商,避免买到烂尾楼。

- 物业公司口碑:好的物业公司能保障小区的安全和环境整洁。

三、看房阶段:眼见为实

1. 实地考察

- 看样板间:注意样板间的装修是否过度美化,与实际交付差距有多大。

- 看实体楼:观察建筑外观、施工进度、周边环境等。

- 看小区环境:绿化率、停车位数量、公共设施是否齐全。

2. 询问业主

- 如果是二手房,可以向邻居了解小区的管理情况、是否存在安全隐患等。

- 如果是新房,可以向已入住的业主了解交房质量和物业服务。

四、签约阶段:合同条款要仔细

1. 确认合同内容

- 房屋面积:建筑面积、套内面积是否与宣传一致。

- 交房时间:明确交房日期及违约责任。

- 装修标准:如果是精装房,要明确装修材料的品牌和档次。

- 附加条款:比如车位、储物间等是否包含在房价中。

2. 注意隐藏费用

- 物业费:了解物业费的收费标准及包含的服务内容。

- 维修基金:这笔费用通常由业主缴纳,用于房屋共用部位的维修。

五、收房阶段:验房是关键

1. 验房注意事项

- 检查房屋质量:墙面、地面、天花板是否有裂缝或脱落。

- 检查门窗:开关是否顺畅,密封性是否良好。

- 检查水电设施:水龙头、马桶、电路开关是否正常。

- 检查配套设施:电梯、消防设施、燃气管道等是否齐全。

2. 索要相关证件

- 房产证:确认产权归属是否清晰。

- 竣工验收报告:确保房屋符合国家标准。

六、入住阶段:后续事项要做好

1. 办理落户和过户手续

- 及时办理房产过户手续,确保自己的权益。

- 如果需要落户,提前咨询当地派出所的落户政策。

2. 装修注意事项

- 选择正规装修公司:避免低价陷阱。

- 签订装修合同:明确工期、材料、付款方式等细节。

3. 注意邻里关系

- 入住后主动与邻居打招呼,建立良好的邻里关系。

- 遵守小区公约,避免噪音扰民。

✨✨上海青溪雲邸售楼处售楼处电话:400-8123-224✔✔✔☎☎

温馨提示:网上售楼中心刂预约可享内部优惠|欢迎来电恭迎品鉴|

温馨提示——拨打400电话——来电预约登记__VIP热线售楼中心_〢尊享一对一专业顾问为您解答置业咨询服务〢预约最新优惠___〢售楼中心置业顾问为您买房保驾护航〢___匠心钜制恭迎品鉴!欢迎致电售楼处电话,专业一对一热情服务,更多楼盘详情敬请咨询,看房请提前预约销售,这里是售楼处专属热线,专业顾问为您解答置业咨询服务,静候您的来电☎!

全部

相关资讯

报名成功
稍后会有专业的置业顾问联系您
返回楼盘

频道导航

返回首页

看房小程序

APP下载

电话拨通后,请您手动拨打分机号

确定拨打电话

电话号码:

分机号:(可能需要拨分机号)