中凯曼荼园售楼处-中凯曼荼园楼盘详情-上海房天下-上海焦点看房

搜狐焦点盐城站

2025-07-13 11:16:11

购房群

买房如何避坑,加入购房群,看看他们怎么说

立即进群

中凯曼荼园售楼处电话:400-000-0460转8888

上海松江中凯曼荼园售楼处电话:400-000-0460转8888(权威认证)

欢迎来电咨询,专业一对一热情服务,让您用专业眼光去买房。

正佘山 人居艺术藏品 独墅境

「佘山曼荼园」

81栋建筑-81件艺术品

81种风格-81道风景

81个外观专利-栋栋不同

佘山正南 依山傍水

建面约342-667㎡独栋别墅

花园面积约800-2000㎡

总价约3500-5700万

目前“样板间”已开放

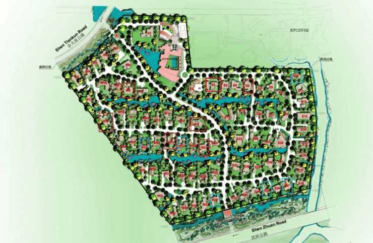
中凯曼荼园坐落于佘山旅游度假区核心,尽享双佘山美景。此园于佘山交汇处叠石造林,幽静深邃。项目含79幢别墅和2幢商务别墅,占地61715平方米,容积率仅0.2。集合全球十家建筑师事务所、百位设计师的8年匠心独运!

楼盘规划

Housing Planning

————————————

SPRING MOONLIGHT

☑占地面积:185764㎡

☑ 建筑面积:61715㎡

☑ 产品类型:独栋别墅

☑ 总户数:81栋

☑ 单价约:8-10万元/㎡

☑ 总价约:3500-5700万/栋

☑ 建筑面积:342-667㎡

☑ 花园面积:800-2000㎡

☑ 容积率:0.2

☑ 绿化率:78%

☑ 开发商:嘉凯集团

☑ 物业公司:恒豪基业

☑ 物业费:11.80元/㎡·月

☑ 交房:现房,毛坯交付

自带地面车库,可停2-3个车位

【项目实景】

【周边配套】

佘山成为上海富人区,得益于其周边配套设施。高端酒店、高尔夫球场、温泉酒店、雕塑公园等一应俱全,休闲娱乐设施丰富,使佘山成为富豪名流向往之地。其中,中凯曼荼园是佘山富人区的精品别墅,专为懂得的人打造。

中凯曼荼园售楼处电话:400-000-0460转8888

上海松江中凯曼荼园售楼处电话:400-000-0460转8888(权威认证)

欢迎来电咨询,专业一对一热情服务,让您用专业眼光去买房。

全部

相关资讯

报名成功
稍后会有专业的置业顾问联系您
返回楼盘

频道导航

返回首页

看房小程序

APP下载

电话拨通后,请您手动拨打分机号

确定拨打电话

电话号码:

分机号:(可能需要拨分机号)