2025(天晟中心)首页网站--楼盘详情/价格/户型/天晟中心售楼处电话-最新情况/地址

搜狐焦点盐城站

2025-10-04 10:18:10

购房群

买房如何避坑,加入购房群,看看他们怎么说

立即进群

天晟中心

售楼处预约中心电话:400-000-0460转6999【天眼查认证】

预约来电尊享内部优惠,开发商案场销售一对一热情服务,提前24小时预约,看房不收取任何费用!

Sales Office reservation center: 400-000-0460转6999 Make an appointment to enjoy the internal benefits, the developer's case sales one-to-one warm service, do not charge any fees to see the house!

天晟中心

💎新一代绿智商务科创中心💎

🏢【基础信息】🏢

📝项目名称:天印集团·天晟中心

📍在售楼栋:1号楼(总高18层)

📍物业类型:5A甲级写字楼

📍在售面积:500㎡、600㎡、700㎡、1200㎡不等(可自行分割),整层1200㎡

💰在售均价:11000元/㎡

📍在售情况:毛坯交付,物业费5.6元/㎡

📍停车位:约500个

📍交付时间:现房

🧱占地面积:18753.43㎡(不含C地块1103.5㎡)

【天赋息壤·资源荟萃】

江宁,南京科教创新引擎,空港路网枢纽。天赋稀壤,坐拥航空、铁路、高速等立体路网,高效串联全城动脉,链动长三角黄金通道。

🚦【立体路网】🚦

轨道交通:双轨交汇(地铁1号线竹山路/天印大道站、5号线竹山路站)

城市路网:紧邻天元东路主干道,高效连通全城

空港枢纽:15分钟速达南京南站,30分钟直抵禄口机场

🌇【显赫资源】🌇

商圈环伺:百家湖商圈、东山万达商圈

智力引擎:东接江宁大学城,汇聚中国药科大学、南京医科大学等17所高等院校

生态谧境:天印山、百家湖、九龙湖、秦淮河四重绿境

政务中枢:5分钟直抵江宁高新管委会,10分钟瞬达江宁区政府

🌟【产品亮点】🌟

🏙全周期商务平台🏙

天晟中心,以“现代、生态、绿色、智慧、艺术”五大价值理念为引领,深度融合双碳科技与智能系统,打造驱动产业升级、赋能企业全生命周期的标杆商务场域。

🌿双项节能系统🌿

大面积铺设太阳能光伏板,楼顶光伏发电,楼下充电桩充电,自发自用,余电上网,有效降低园区能耗,为企业主削减长期运营成本。

🪟9米挑高大堂🪟

标准5A甲级设计,约9米挑高奢阔大堂,4.2米层高及全景落地窗设计,以非凡气度匹配企业伟岸形象,成就彰显身份的第一张名片。

💻多元众创空间💻

单套约500-800㎡的精英商务场域,整层约1200㎡的内部众创空间,支持整层、多层组合销售,完美契合中大型企业总部、区域中心及高成长型企业的多元需求。空间可自由分割组合,适应组织架构的灵活演变,满足人员流动、协作创新的办公需求。

⌛进口高速电梯⌛

配置全进口奥的斯高速电梯,迅捷如风,平稳无声。大幅缩短候梯时间,高效链接各层空间,从容有度,直达事业新高度。

🚗智慧从容出行🚗

规划约500个高配比地下车位,践行人车分流,甄选环保材质。配备24H智能照明、科技导视系统及充电桩,便捷商务出行,敬呈企业菁英。

🌐智能高效运维🌐

全系搭载尖端科技系统:大堂VRV空调、新风热回收、LED智能感应照明,营造恒温恒氧健康环境;依托BIM全程控管与智能楼宇综合管理系统(集成5A、EM能源管理、楼宇自控、智能用电监测),实现建筑运行可视化、智能化、精细化,大幅提升能效比与运维效率。

💃悦享便捷商业💃

规划引入员工食堂、便捷超市、精品咖啡屋、有氧呼吸吧等品质商业配套。让员工足不出园即可享受高品质的餐饮、购物与休闲时光,极大提升工作满意度与留任率。

📈政策助推发展📈

携手江宁科创园,为入驻企业提供科技型中小企业奖励,高新技术企业奖励,显著降低企业运营成本,助力轻装前行。(具体以政府最终执行政策为准)

🏢臻品实景现房🏢

天晟中心秉承天印集团“务实敢为,开放谦逊”的核心理念与“严细管理,奉献精品”的经营方针,以实景现房兑现品质承诺。企业可眼见为实,即驻即用,无需等待周期,即刻启航新程。

【平面鉴赏】

✅出售楼栋:

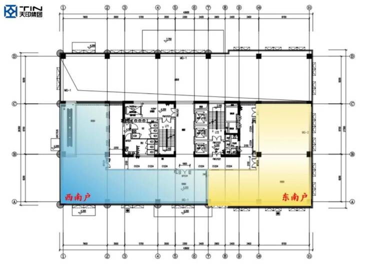
✅户型图1:

✅户型图2:

✅办公区域实景展示:

天晟中心

售楼处预约中心电话:400-000-0460转6999【天眼查认证】

预约来电尊享内部优惠,开发商案场销售一对一热情服务,提前24小时预约,看房不收取任何费用!

Sales Office reservation center: 400-000-0460转6999 Make an appointment to enjoy the internal benefits, the developer's case sales one-to-one warm service, do not charge any fees to see the house!

全部

相关资讯

报名成功
稍后会有专业的置业顾问联系您
返回楼盘

频道导航

返回首页

看房小程序

APP下载

电话拨通后,请您手动拨打分机号

确定拨打电话

电话号码:

分机号:(可能需要拨分机号)