嘉定万达广场售楼处电话:400-000-0460转8888
上海嘉定万达广场售楼处电话:400-000-0460转8888(权威认证)
欢迎来电咨询,专业一对一热情服务,让您用专业眼光去买房。
现房交付 双地铁上盖公寓
总价159万起 买复式两房
不限购|不限贷|价格洼地
13号线/嘉闵线地铁上盖 江桥万达楼上

现房销售|虹桥主城区成熟商圈|
双轨交地铁上盖|25万㎡万达配套
【产权】:50年商办
【层数】:总高10-13层
【层高】:平层3-3.3米 复式4.5米
【户型】:平层43-58平 复式42-52平
【总价】:平层166万起 复式159万起
【物业费】:平层3.5元/平/月 复式4元/平/月
【水、电】:水5元/吨;电0.9元/度。
【位置】:上海嘉定区金沙江西路

1⃣:品牌优势:万达广场即城市中心,大开发商项目品质有保障。
2⃣:区位优势:虹桥主城区内,企业总部聚集地。北虹桥核心位置。项目周边200米内未来5⃣0⃣+企业总部。
3⃣:交通优势:双地铁上盖,地铁13号线金运路站0距离,6站环球港,30分钟南京西路,40分钟浦东世博。建设中嘉闵线2站虹桥枢纽,未来对接苏锡常城际铁路。
开车自驾外环8分钟,中环15分钟。30分钟到花桥、太仓。
4⃣:配套优势:楼下即是2⃣5⃣万方万达广场、万达金街、家乐福。
5⃣:交付标准:全友全屋定制精装修,软硬装交付,拎包即可入住。
6⃣:物业优势:碧桂园旗下的万象美物业,目前中国市场上的物业龙头,安保24小时执勤
7⃣:停车优势:地下停车位共有1224个,车位充足,项目四周都有车库出入口,人车分流,保证进出人员安全。
8⃣.环境优势:小区内4⃣0⃣%绿化率,超普通小区环境。
9⃣:投资优势:月租金6000-7500元,年回报率近4⃣个点,且公寓租客稳定,超过一般商铺回报率,非常可观。
1⃣0⃣:产品灵活:平层Loft皆有,精装大一房和温馨两房,还可定制装修。
1⃣1⃣:建筑优势:全明户型,南北方正。超厚墙体,双层玻璃,内外开窗,私密性高,隔音好。
1⃣2⃣:得房率:得房率超75%,远超市面上同类型产品,比肩住宅。
小区环境:
户型图:
平面户型图:

平层交付标准:
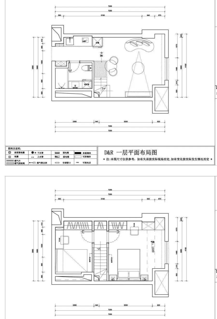
复式平面布局图:

嘉定万达广场售楼处电话:400-000-0460转8888
上海嘉定万达广场售楼处电话:400-000-0460转8888(权威认证)
欢迎来电咨询,专业一对一热情服务,让您用专业眼光去买房。