400专线@盛如科创·杭州湾智慧科技园售楼处电话→盛如科创·杭州湾智慧科技园售楼中心首页网站→楼盘百科详情→24小时电话

搜狐焦点盐城站

2025-12-19 00:00:00

购房群

买房如何避坑,加入购房群,看看他们怎么说

立即进群

盛如科创·杭州湾智慧科技园

售楼处预约中心电话:400-000-0460转6999【天眼查认证】

预约来电尊享内部优惠,开发商案场销售一对一热情服务,提前24小时预约,看房不收取任何费用!

Sales Office reservation center: 400-000-0460转6999 Make an appointment to enjoy the internal benefits, the developer's case sales one-to-one warm service, do not charge any fees to see the house!

盛如科创·杭州湾智慧科技园

➡项目概括🌟

🔥占地面积:总占地约328亩,一期占地约100亩

🔥建筑面积:约32.58万㎡ ,一期约9.9万m²

🔥厂房数量:一期2层6幢、3层29幢、5层4幢

🔥厂房形式:独栋/双拼

🔥可售面积段:1200-10000㎡

🔥层高及承重:

•一楼层高7.95m/7.2m/6m,承重2T

•二楼层高4.5m/4.2m,承重800kg

•三楼层高4.5m/4.2m,承重500kg

•四楼层高4.2m,承重500kg

•五楼层高4.2m,承重500kg

🔥不动产证:工业土地,证照齐全,产权独立到幢

项目区位图🌟

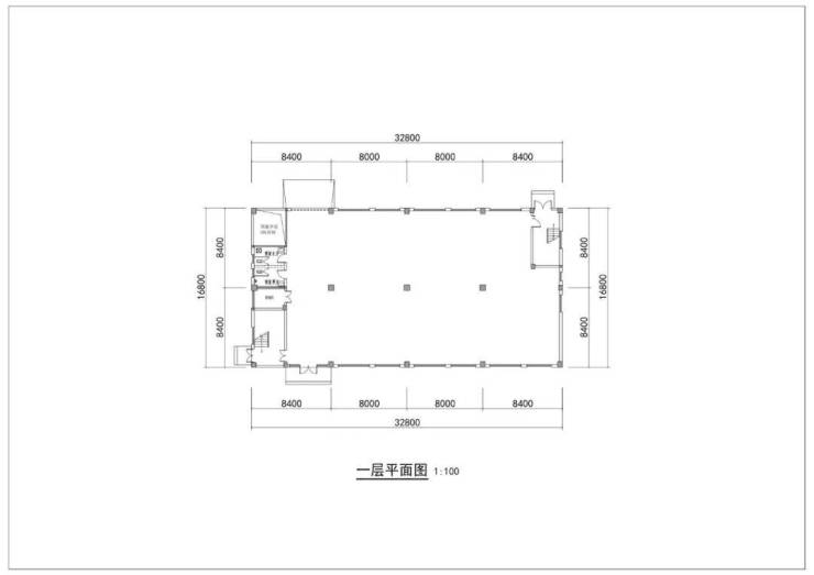
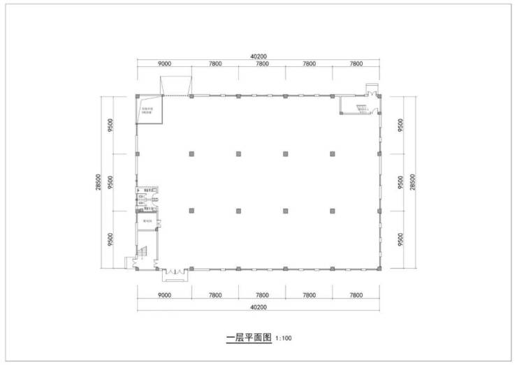
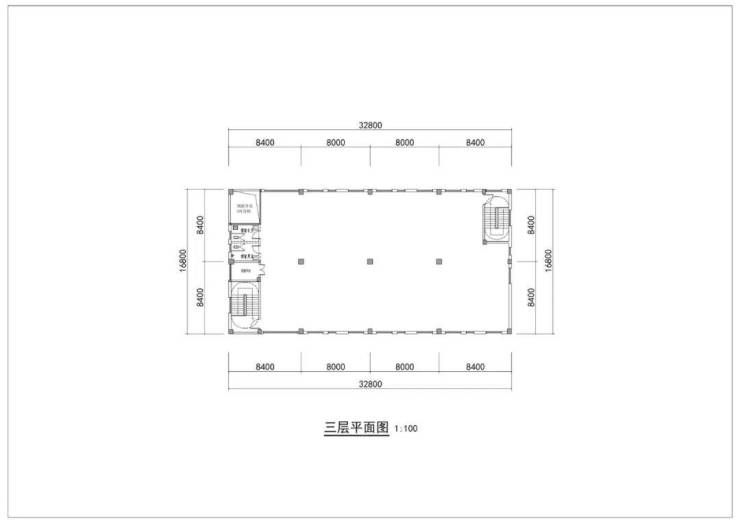
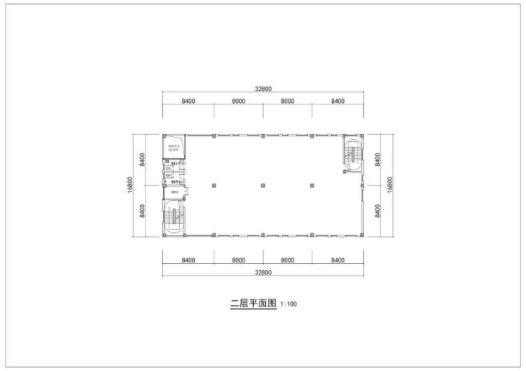
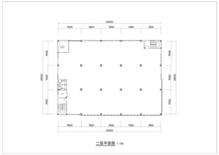
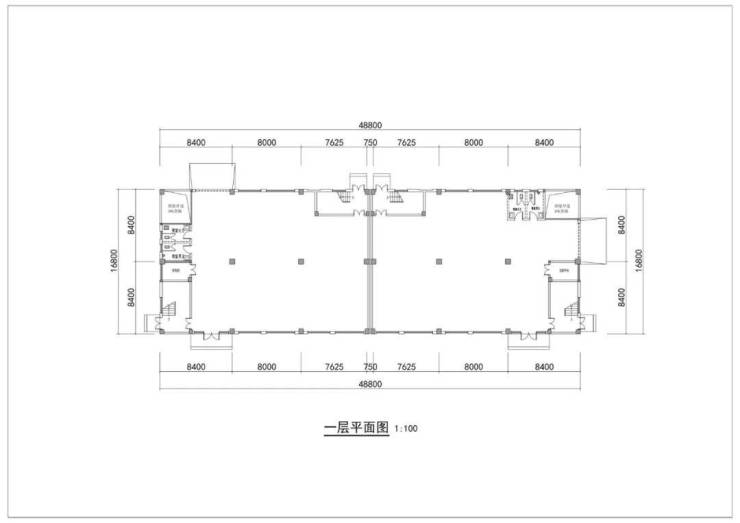
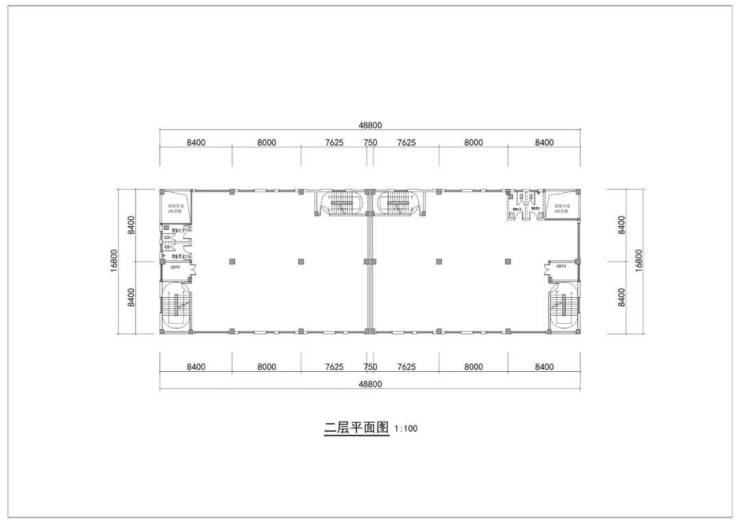
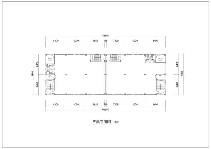
户型图🌟

🔥2层独栋代表户型

🔥3层独栋代表户型

🔥3层双拼代表户型

项目效果图🌟

项目优势🌟

园区配套🌟

盛如科创·杭州湾智慧科技园

售楼处预约中心电话:400-000-0460转6999【天眼查认证】

预约来电尊享内部优惠,开发商案场销售一对一热情服务,提前24小时预约,看房不收取任何费用!

Sales Office reservation center: 400-000-0460转6999 Make an appointment to enjoy the internal benefits, the developer's case sales one-to-one warm service, do not charge any fees to see the house!

全部

相关资讯

报名成功
稍后会有专业的置业顾问联系您
返回楼盘

频道导航

返回首页

看房小程序

APP下载

电话拨通后,请您手动拨打分机号

确定拨打电话

电话号码:

分机号:(可能需要拨分机号)