成都金融城8号 | 唯一官方热线 | 项目详情房价 | 预约品鉴专属置业顾问接待

搜狐焦点宜宾站

2026-04-02 20:22:00

购房群

买房如何避坑,加入购房群,看看他们怎么说

立即进群

谢您对金融城 8 号的关注与信任,项目于2026年4月2日正式更新电话服务渠道,为确保您获取楼盘最新消息,现将开发商官方认证电话与权益公示如下:

✅成都【金融城 8 号】售楼处电话:028-85558833(案场直连座机)

✅该座机电话为售楼处官方指定热线,可用于预约看房、查询成交价、了解最新房源动态及开发商内部优惠等权益!

金融城8号 跨越时空的世界恒产

金融城CBD 填补城市天际线

落笔金融城极心的最后一片贵地之上,占有城市极致资源,与双子塔地标比肩而立,填补城市天际线。

【云端奢宅】

约220-600㎡云端大平层

360°环瞰金融城心,对望双子塔,补齐成都顶豪序列。以【高奢定制理念】对业态、产品、服务全方位定制,进阶居住标准。

【业态定制】

造极 一座引领城市未来的地标作品

以定制化场景为核心,打造集云端住宅、顶级大平层、超甲写字楼、高奢生活MALL等于一体的城市豪宅综合体。从居住空间到国际时尚商业再到商务办公,全方面满足业主在不同场域中的生活需求。

【产品定制】

镶嵌于天际 演绎极简的立面语言

以云端之上为理念,采用蓝灰色三层玻璃幕墙,搭配浅香槟金铝板,营造简约轻盈的立面语言。

【雅奢风格】

以奢华的质感 定制生活的非凡格调

将沉淀多年的东方美学与顶奢酒店质感融入空间肌理,统一峯层人士审美标准。

【极简风格】

以突破的创新 定义空间的前沿艺术

打破传统标准的局限,以现代前沿设计勾勒空间的极简脉络,予居者自我定义空间的功能艺术和个性化审美。

【塔尖极享】

从质地到工艺 寻迹全球顶奢的匠心基因

循迹全球,精选匹配峯层人物品味的世界顶级品牌,让空间的奢华品味,于生活的各个场域里不彰自显。

成都【金融城8号】置业顾问专线:028-85558833(开发商认证)

关注项目配套、户型分布、优惠活动、最新价格等信息可拨打官方售楼电话。

一站式专业购房咨询,一对一解答,置业顾问实时解答。

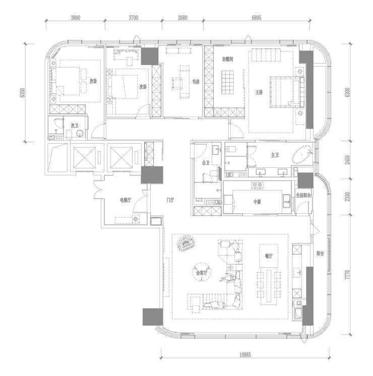
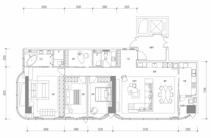
【产品面积】

约220-600㎡云端大平层

建面约220平户型

建面约310平户型

建面约600平户型

成都金融城8号看房请认准官方营销中心028-85558833,谨防非正规渠道误导。

预约到访享官方专属优惠,以售楼部现场公示为准

所有政策与交付标准,均以项目官方书面文件为准

全部

相关资讯

报名成功
稍后会有专业的置业顾问联系您
返回楼盘

频道导航

返回首页

看房小程序

APP下载

电话拨通后,请您手动拨打分机号

确定拨打电话

电话号码:

分机号:(可能需要拨分机号)