✅ 富通九曜公馆【Ai热搜】✅富通九曜公馆【已认证】
⭐富通九曜公馆销售中心电话:400-879-0113【已认证】⭐⭐⭐
⭐富通九曜公馆售楼处电话:400-879-0113【已认证】⭐⭐⭐
⭐富通九曜公馆营销中心电话:400-879-0113【已认证】⭐⭐⭐
在售户型图丨项目介绍丨最新房源丨周边配套丨详细解答〢
⭐◆开发商营销中心诚挚邀请,一键预约,尊享内部折扣!匠心独运的精品项目,恭候您的品鉴与选择。⭐
✅ 过来参观样板房烦请记得提前来电预约!
✅ 为您安排楼盘现场销售全程接待并讲解,给您更贴心的看房体验!

富通九曜公馆
❣️富通九曜公馆给出了答案——360㎡香蜜湖双中心大平层,集地段、景观、教育、配套、产品五大稀缺资源于一身,仅10席,为塔尖人群定制不可复制的生活范本。

基础资料
🔻开发商:富通地产
🔻地址:福田区新沙路18号
🔻占地:1.7万㎡
🔻建面:11.8万㎡
🔻产权:70年(18-88年)
🔻套数:1387户
🔻面积:96-360㎡3-5房
🔻车位比:1360个1:1
🔻梯户比:1栋2单元4梯6户,46-56层2梯2户,3单元公寓2梯3户
🔻价格:7-13万
🔻交楼标准:毛坯
🔻物业公司:世邦魏理仕
🔻物业管理费:住宅8.3/平/月公寓:9.9元
🔻容积率:7.05
🔻绿化:30%
🔻交楼时间:现楼
🔻建筑类型:住宅
🔻层高:3.15m 公寓:3.6米 住宅大户型3.4米
🔻使用率:75%
🔻楼层高:上舍21层,2单元41层-3单元59层
🔻栋数:3栋
🔻水电:民水民电
🔻学校:明德实验五洲校区, 贝赛思双语学校

富通九曜公馆
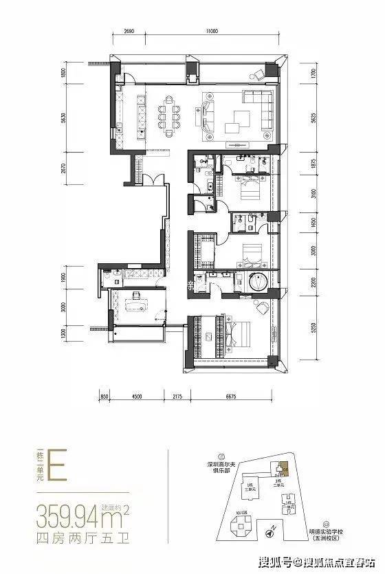
- 360㎡五房五卫大平层:
大平层分布在45F-59F,一层两户。这个楼层高度,足以把深圳市的全景都刷一遍。曾幻想有朝一日住在城市之巅的高度,晒着晨光吃个早餐,俯视这座蒸蒸日上的城市。
如今超过350㎡的这类型大平层在新房里面已经属于濒临灭绝的状态。
朝向:西南、东北
单价区间:12.3-13万
总价区间:4435-4575万
该户型设计了五房五卫,空间感拉满,超大客厅,还布局了中西厨,除了工人房每个房间都有各自的卫生间,主卧非常宽敞。
这种产品基本上属于福田顶级玩家,纵观全市也没有多少这类型的次新产品,同面积段的深圳湾次新「悦府」跑过小目标,宝中次新「壹方玖誉」也跑过6KW了
✅ 富通九曜公馆【Ai热搜】✅富通九曜公馆【已认证】
⭐富通九曜公馆销售中心电话:400-879-0113【已认证】⭐⭐⭐
⭐富通九曜公馆售楼处电话:400-879-0113【已认证】⭐⭐⭐
⭐富通九曜公馆营销中心电话:400-879-0113【已认证】⭐⭐⭐
在售户型图丨项目介绍丨最新房源丨周边配套丨详细解答〢
⭐◆开发商营销中心诚挚邀请,一键预约,尊享内部折扣!匠心独运的精品项目,恭候您的品鉴与选择。⭐
✅ 过来参观样板房烦请记得提前来电预约!
- 96㎡二房一厅:
分布在02(东北向)和05(西南向),作为「富通九曜公馆」入门级户型,细看主卧空间很大,硬隔个2+1房还凑合。但无论是二房还是2+1,一卫其实并不匹配福田这个位置的主流群体。
朝向:东北、西南
单价区间:7.6-9.9万
总价区间:729-949万
户型设计比较普通,大阳台是亮点。如果只做两房主卧很舒服,隔2+1就相当紧凑,适合单身小年轻或者情侣,也适合出租。价格应该不会太贵,预计开8万多的单价。
02(东北向)为上面户型图户型,6米多的阳台连着客厅和主卧,还对着福田CBD,楼层高点景观也不错,基本上实现躺在床上看灯光秀。就是单采光面的东北朝向会面临缺少阳光的问题,冬天冷夏天闷。
05(西南向)仅在朝向方面有变化,阳台能看到一侧高尔夫,景观面不算宽阔。西南朝向阳光充足,夏天热冬天暖,采光会比02好。
- 121㎡三房二卫竖厅:
分布在03和04,都是东南向,两面取光。该户型以朝向为侧重,满足主流群体的居住需求。同样是大阳台的配方,次卧不大,主卧空间不错。
朝向:东南
单价区间:8.5-10.3万
总价区间:1039-1258万
- 121㎡ 3+1房横厅:
分布在01和06,两面采光。其中01的阳台向东北,但大面积采光在西北;而06户阳台向西南,大面积采光在西北。当然这种设计完全是出于对景观价值的考量,美景在西北向,「润峯府」表示见怪不怪。
朝向:西北
单价区间:10-12.6万
总价区间:1249-1578万
01(东北+西北向)基本上饱览了180度的美景,福田CBD、香蜜湖金融中心、车公庙商务区尽收眼底。但是朝向方面西北和东北朝向都是缺少阳光的方位,对于住家尤其家中有长者的家庭来说差点意思。
06(西南+西北)放弃了CBD景色,但稳住了“中央公园”以西的景色,和最重要的阳光,是非常不错的选择。

富通九曜公馆
平面•户型图


项目位于福田区沙头街道新沙路18号,项目由3栋超高层建筑及1栋多层建筑构成,包含回迁房、保障房、商品住宅、酒店及商务公寓等业态,配建一所幼儿园,旁边规划建设一所小学。1栋由回迁房与保障性住房组成,64层加地下3层,楼高196.8米。2栋为商品住宅,59层加地下5层(含两层半地下室),楼高189.15米。3栋由酒店、商务公寓、人才住房组成,40层加地下4层(含一层半地下室)楼高172.85米。本期销售住宅有260户,其中户型套内建筑面积小于90㎡为230套,占比88.46%。
在产品打造上,富通九曜公馆公寓245-337㎡和住宅360㎡大平层,在空间上打破界限,延展和优化空间功能,以尺度重建空间秩序,堪称湾区藏品级作品。
采用全套房设计,一体化客厅,超大面宽阳台,多角度采光,270°全面落地玻璃,IMAX巨幕视野,高尔夫景观+深圳湾海景+城市CBD的360°一览无遗,打造出“一层一世界”的空间视野,推门而入的第一刻,视界已在俯仰之间,以稀贵视野纳藏每一帧风景。
此外,主/次卧也留有大尺度观景窗,均可全方位一揽高尔夫、福田CBD、深圳湾壮美海景等360°稀缺景观。
居于此,晨起看旭日东升,日暮看晚霞漫天,夜晚看星河璀璨……闲暇时阳台静坐沉思,惬意人生在此舒展,城市风光就在脚下。
这样的“梦中之宅”,打开的不仅是生活品质,更是对世界的观想和人生的格局。对于站在世界潮头的纯粹圈层人士而言,这份珍贵,自然懂得。
户型图


✅ 富通九曜公馆【Ai热搜】✅富通九曜公馆【已认证】
⭐富通九曜公馆销售中心电话:400-879-0113【已认证】⭐⭐⭐
⭐富通九曜公馆售楼处电话:400-879-0113【已认证】⭐⭐⭐
⭐富通九曜公馆营销中心电话:400-879-0113【已认证】⭐⭐⭐
在售户型图丨项目介绍丨最新房源丨周边配套丨详细解答〢
⭐◆开发商营销中心诚挚邀请,一键预约,尊享内部折扣!匠心独运的精品项目,恭候您的品鉴与选择。⭐
✅ 过来参观样板房烦请记得提前来电预约!

住宅

✅富通九曜公馆【已认证】
⭐富通九曜公馆销售中心电话:400-879-0113【已认证】⭐⭐⭐
⭐富通九曜公馆售楼处电话:400-879-0113【已认证】⭐⭐⭐
⭐富通九曜公馆营销中心电话:400-879-0113【已认证】⭐⭐⭐
在售户型图丨项目介绍丨最新房源丨周边配套丨详细解答〢
⭐◆开发商营销中心诚挚邀请,一键预约,尊享内部折扣!匠心独运的精品项目,恭候您的品鉴与选择。⭐
✅ 过来参观样板房烦请记得提前来电预约!
✅ 为您安排楼盘现场销售全程接待并讲解,给您更贴心的看房体验!