广州【越秀白云星汇城】
越秀白云星汇城售楼处电话:400-992-7960【看房请提前线上预约】
户型图丨楼盘详情丨折扣价格丨最新房源丨周边配套丨
开发商售楼处直销_欢迎来电预约尊享内部折扣_欢迎预约品鉴品鉴〢
越秀白云星汇城售楼处电话400-992-7960越秀白云星汇城【售楼中心】越秀白云星汇城楼盘详情
越秀白云星汇城售楼处电话400-992-7960【营销中心】


总建面:1022000㎡
总占地:558000㎡
总户数:一期2080户、二期694户
总栋数:一期15栋、二期4栋
在售户型:74-98㎡以及116㎡小高层
绿化率:35%
梯户比:2梯3户、2梯5户、2梯6户、1梯2户、1梯4户、2梯3户
层数:11/17/31/33
车位比:1:1.12
物管费:2.9元/㎡
装修标准:精装交付
交楼时间:现楼
楼盘地址:广州白云地铁14号线钟落潭站旁
01教育配套




【12年教育9年金广实验学校】
◼ 社区内配建2所幼儿园+48班小学+初中
◼ 12年目送式教育,给孩子留住黄金学习时间
◼ 小学、初中由白云区金广实验学校具体管理

〖实力金广〗2018年-2024年中考成绩连续7年名列前茅
2023广州中考荣获公民双第一
2023年最高分770,奥1班平均分757.89
金广奥体系班平均分741.64
项目从幼儿园到中学都是在小区内可以完成,而且是名校金广附,对于需要书包的是一大优势
02交通配套
1.项目位于地铁14号线钟落潭站旁,5站到嘉禾望岗,换乘2、3号线可直通白云新城和畅达广州全城
2.14号线二期(在建中)不换乘直达广州火车站
3.18号线北延段(在建中),在白云东平站与14号线交汇,7站即可到冼村
4.竹料站换乘双城轨,广佛环线(目前全线工程累计完成93%,预计2024年通车)3站天河智慧城,5站到琶洲。
5.新白广城轨(在建中)1站白云机场,南向通达东莞和深圳
华南快速、京港澳高速、机场第二高速、花莞高速、广从公路,畅达全城,纵横大湾区
项目周边的交通规划布局未来还是值得期待,目前地铁14号线已经开通运营
03周边生活配套设施
1.下楼即大型缤纷商业,规划约3.3万方商业,一期底商即将开售。涵盖超市/餐饮/文娱/儿童游乐等业态,麦当劳已意向进驻,繁华生活就在家门口

2.市政配套下楼即享,少年宫、政务中心、医院(规划)、公交首末站(已通车)等一应俱全,社区内可以帮你解决一切生活问题。
少年宫已完成外立面铺设,政务中心地下室底板施工,网红公交站办理竣工验收,即将投入使用。

3.华南首家李宁运动中心已开业,2所体育馆,冲浪/健身房/瑜伽/羽毛球/网球等尽情玩。体育馆B馆已封顶。
4.广州首个飞盘公园打造青年生活场,约2.2万方飞盘公园、约等于三个标准足球场。约1800m²草坪露营区,2个街心花园等。

项目目前和未来区域周边的一些规划分布情况:

广州大健康产业基地:投资200亿,规模约等于22个广钢新城,已有何济公、明兴制、广药集团、和黄中药等29家知名健康产业企业入驻,健康城整体包含医药研制、职业教育、健康服务和健康养生四大功能片区;
广州第二大学城:已有13所高等教育院校,拥有仲恺农业工程学院、广东白云学院、广州软件学院、广州科技职业技术大学等本科大学,为湾区打造科技人才。

推动配套全面动工、加速兑现运营,构建有温度的社区圈层,打造500米步行配套圈!下楼即可享受便捷齐全的大城生活配套!大城配套“现城”,广州优质盘少见!

再看看越秀白云星汇城的品质做的怎样?

园林设计邀请了国际知名设计团队,以健康、运动、生态为主题,打造了约2万平方米的飞盘公园,并配备全方位的休闲和运动设施。

再看看小区引进的物业:

由越秀物业管理,作为广州市知名的高端物业服务品牌,我们提供全天候安保、绿化、清洁和维修等高质量的服务,致力于为业主打造一个安全、舒适的居住环境。
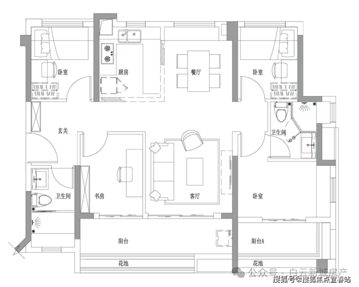
04小区户型介绍

1.一期4栋116平方,四房二卫户型
特点:小高层、专梯专户,小区楼王位置,舒适度高
2.二期G1、G2、G3栋,74平方米,三房二卫
特点:
三开间朝南| 卧室、阳台朝南,最小面积三房享受最大阳光与风景
一体化客厅背景墙|一体化背景墙,收纳展示两不误
270°全景卧室| L型双面采光,明亮通透
270°方正景观阳台| 方形阳台更实用,视野开阔

3.二期G1、G2、G3栋,87/88平方米,三房二卫特点:
4.5开间朝南| 270°阳台/卧室/玄关都朝南
LDKG一体化| 开放式厨房、餐客厅一体
入户玄关| 入户更私密,收纳空间更多
主套南北通| 自带“新氧新风”和阳光梳妆台

特点:
四开间朝南| 卧室客厅都朝南,更多阳光更宽视野
主套南北通| 自带“鲜氧新风”和阳光梳妆台
更多飘窗设置| 更多灵动空间,房间更实用
270°宽景阳台| 景观视野更开阔

4.二期G2、G3栋,98平方米,四房二卫
特点:
入户玄关| 入户更私密,收纳空间更多
开放式厨房| 烹饪照顾孩子两不误
豪华大方厅| 书房客厅合并,豪宅舒适感
主套270°采光| 更多飘窗,采光实用两不误

越秀白云星汇城售楼处电话✅:400-992-7960
案场预约制看房需提前来电预约登记
温馨提示:点击上方号码可直接拨打电话
请务必致电与销售确认时间,仅预约客户可进入销售现场,感谢您的支持
免责声明:部分信息来源于网络,如果侵权,请联系及时删除联系电话:400-992-7960