阿那亚九龙湖(售楼处)首页网站-阿那亚九龙湖营销中心-阿那亚九龙湖欢迎您-楼盘详情-最新价格-户型图-容积率@最新售楼处

搜狐焦点宜春站

2025-07-25 14:56:42

购房群

买房如何避坑,加入购房群,看看他们怎么说

立即进群

阿那亚九龙湖售楼处电话:400-861-9050, 阿那亚九龙湖售楼中心电话:400-861-9050, 阿那亚九龙湖营销中心电话:400-861-9050,提前预约看房尊享额外优惠!为您安排楼盘现场销售全程接待并讲解,给您更贴心的看房体验!

阿那亚九龙湖售楼处电话:400-861-9050, 阿那亚九龙湖售楼中心电话:400-861-9050, 阿那亚九龙湖营销中心电话:400-861-9050,提前预约看房尊享额外优惠!为您安排楼盘现场销售全程接待并讲解,给您更贴心的看房体验!

◆项目重点建设中心小镇C区、艺术聚落F区、伴山美地B区三大园区,并串联现状山地游乐、国王酒店、欧洲小镇与集散中心。

👉欧洲小镇商业分布与中心小镇(C区)产品分布图

🌟C地块各项信息如下:

✮容积率:1.02

✮绿化率:25%

✮总套数:345套(共15栋)

✮产品:住宅60套(6-7-14栋)公寓285套(共12栋)

✮产品面积:公寓A户型-100方(2房2厅1卫),公寓B户型-130方(3房2厅2卫),洋房H户型-135方(3房2厅2卫)

✮产权起算时间:住宅70年产权;公寓40年产权

✮物业费:公寓/住宅均为7元/㎡(不含公摊水电费)

✮供暖方式:地暖

✮天然气:公寓不可用明火住宅通天然气

✮车位:共714个(地上71个,地下643个)

✮在售产品:少量住宅及公寓

✮交付标准:精装修交付

✮收楼时间:现房

✮各户型图如下↓

🏠中心小镇(C区)-栖寓

A户型-100方(2房2厅1卫)

阿那亚九龙湖售楼处电话:400-861-9050, 阿那亚九龙湖售楼中心电话:400-861-9050, 阿那亚九龙湖营销中心电话:400-861-9050,提前预约看房尊享额外优惠!为您安排楼盘现场销售全程接待并讲解,给您更贴心的看房体验!

🏠中心小镇(C区)-栖寓

B户型-130方(3房2厅2卫)

🏠中心小镇(C区)-洋房

H户型-135方(3房2厅2卫)

👉半山湖岸/湖畔小镇

(F区)楼栋分布图

阿那亚九龙湖售楼处电话:400-861-9050, 阿那亚九龙湖售楼中心电话:400-861-9050, 阿那亚九龙湖营销中心电话:400-861-9050,提前预约看房尊享额外优惠!为您安排楼盘现场销售全程接待并讲解,给您更贴心的看房体验!

🌟F34地块(湖畔小院、公寓)各项信息如下

:✮占地面积:约8.63万㎡

✮地上建筑面积:约5.66万㎡

✮地下建筑面积:约2.60万㎡

✮容积率:约0.66

✮绿化率:35%

✮产品:湖畔公寓、湖畔小院

✮产权起算时间:均为2021年起算,40年产权

✮停车方式:地库停车为主,地面停车为辅,车位数约800辆(含350辆社会停车位)

✮车库入口:5个车库出入口

✮人行出入口:1个人行出入口

🏠半山湖岸(F区)

湖畔公寓和湖畔小院分布图

🌟湖畔公寓和湖畔小院(一组团)信息如下:

🌻湖畔公寓

✮产品面积:118方(2+1房2厅2卫)155方(3房2厅2卫)

✮分布楼栋:共8栋,约195套(16-23栋)

✮物业费:7元/㎡(不含公摊水电费)

✮供暖方式:地暖

✮天然气:通有天然气,可明火

✮在售产品:18-22-23栋

✮收楼时间:2026年6月30日前

✮各户型图如下↓

🏠半山湖岸(F区)-湖畔公寓

A户型125方(2+1房2厅2卫)

🏠半山湖岸(F区)-湖畔公寓

B户型155方(3房2厅2卫)

阿那亚九龙湖售楼处电话:400-861-9050, 阿那亚九龙湖售楼中心电话:400-861-9050, 阿那亚九龙湖营销中心电话:400-861-9050,提前预约看房尊享额外优惠!为您安排楼盘现场销售全程接待并讲解,给您更贴心的看房体验!

✮产品面积:136方(3房2厅2卫)-两种户型

✮分布楼栋:共15栋,101套(1-15栋)

✮物业费:10元/㎡(不含公摊水电费)

✮供暖方式:地暖

✮天然气:通有天然气,可明火

✮在售产品:11-12-15栋

✮收楼时间:1-8栋→2025年12月31日前交付9-15栋→2026年6月30日前交付

✮各户型图如下↓

🏠半山湖岸(F区)-湖畔小院

C户型136方(3房2厅2卫)

🏠半山湖岸(F区)-湖畔小院

D户型136方(3房2厅2卫)

🌻湖畔/山景大平层

✮产品面积:A户型(首层)195方-3房3厅4卫,B户型(二层)240方-3房3厅4卫,D户型(顶层)175方-3房3厅4卫,E户型(山景平层)170方-3房2厅3卫

✮分布楼栋:1-12栋(4-12栋在建)

✮物业费:8元/㎡(不含公摊水电费)

✮供暖方式:地暖

✮天然气:通有天然气,可明火

✮在售产品:1-2-3栋

✮收楼时间:2026年10月31日前交付

✮各户型图如下↓

🏠半山湖岸(F区)-大平层A户型(首层)195方-3房3厅4卫

🏠半山湖岸(F区)-大平层

B户型(二层)240方-3房3厅4卫

阿那亚九龙湖售楼处电话:400-861-9050, 阿那亚九龙湖售楼中心电话:400-861-9050, 阿那亚九龙湖营销中心电话:400-861-9050,提前预约看房尊享额外优惠!为您安排楼盘现场销售全程接待并讲解,给您更贴心的看房体验!

🏠半山湖岸(F区)-大平层

D户型(顶层)175方-3房3厅4卫

🏠半山湖岸(F区)-大平层

E户型(山景平层)170方-3房2厅3卫

— 🏠 中旅阿那亚·九龙湖 🏠 —

存量房信息一览

👉总体信息概况:

✮整体存量:目前存量房主要集中于美茵花园、A区悦源庄、D、E区悦沐庄,另有F2区临湖独栋别墅及山顶国王C1别墅群。

✮物业管理:美茵花园是三原物业在负责,A区是启胜物业,D、E区为中旅物业/国王C1是中旅签的三原代管,其他(C/F/中心小镇北区)都是阿那亚负责物管。

具体信息如下:

👉A区(悦源庄)-独栋别墅

✮总户数:269套

✮存量户数:5套

✮面积段:354-508㎡

✮产权:住宅产权

✮物业费:5元/㎡

✮物业管理:启胜物业

✮交付标准:均为毛坯交付

✮停车方式:私家车库

✮户型图如下👇

🏠A区-C户型图(建筑面积约440㎡):

阿那亚九龙湖售楼处电话:400-861-9050, 阿那亚九龙湖售楼中心电话:400-861-9050, 阿那亚九龙湖营销中心电话:400-861-9050,提前预约看房尊享额外优惠!为您安排楼盘现场销售全程接待并讲解,给您更贴心的看房体验!

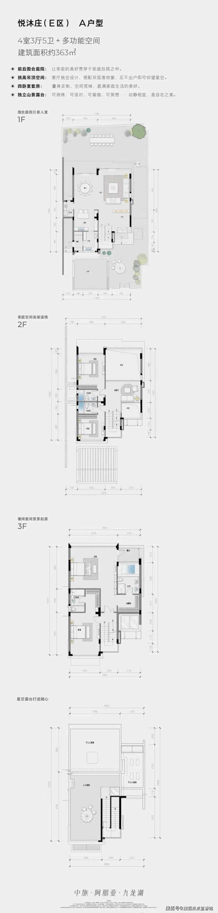
👉E区(悦沐庄)-独栋别墅

✮总户数:120套

✮存量户数:9套

✮面积段:363-447㎡

✮产权:住宅产权

✮物业费:6元/㎡

✮物业管理:中旅物业

✮交付标准:毛坯交付

✮停车方式:私家车库

✮户型图如下👇

E区-B户型图(建筑面积约447㎡):

🏠E区-A户型图(建筑面积约363㎡):

✅ 本项目暂不接受临时到访,过来参观样板房请记得提前来电预约!

✅ 为您安排楼盘现场销售全程接待并讲解,给您更贴心的看房体验!

如有问题欢迎来电咨询,来电即可享受买房优惠!4008619050

全部

相关资讯

报名成功
稍后会有专业的置业顾问联系您
返回楼盘

频道导航

返回首页

看房小程序

APP下载

电话拨通后,请您手动拨打分机号

确定拨打电话

电话号码:

分机号:(可能需要拨分机号)